Under Construction
| Description | Milestone Event | (%) Value |
|---|---|---|
| Down Payment | Immediate | 20% |
| Payment At Handover | On Completion | 80% |
Title :
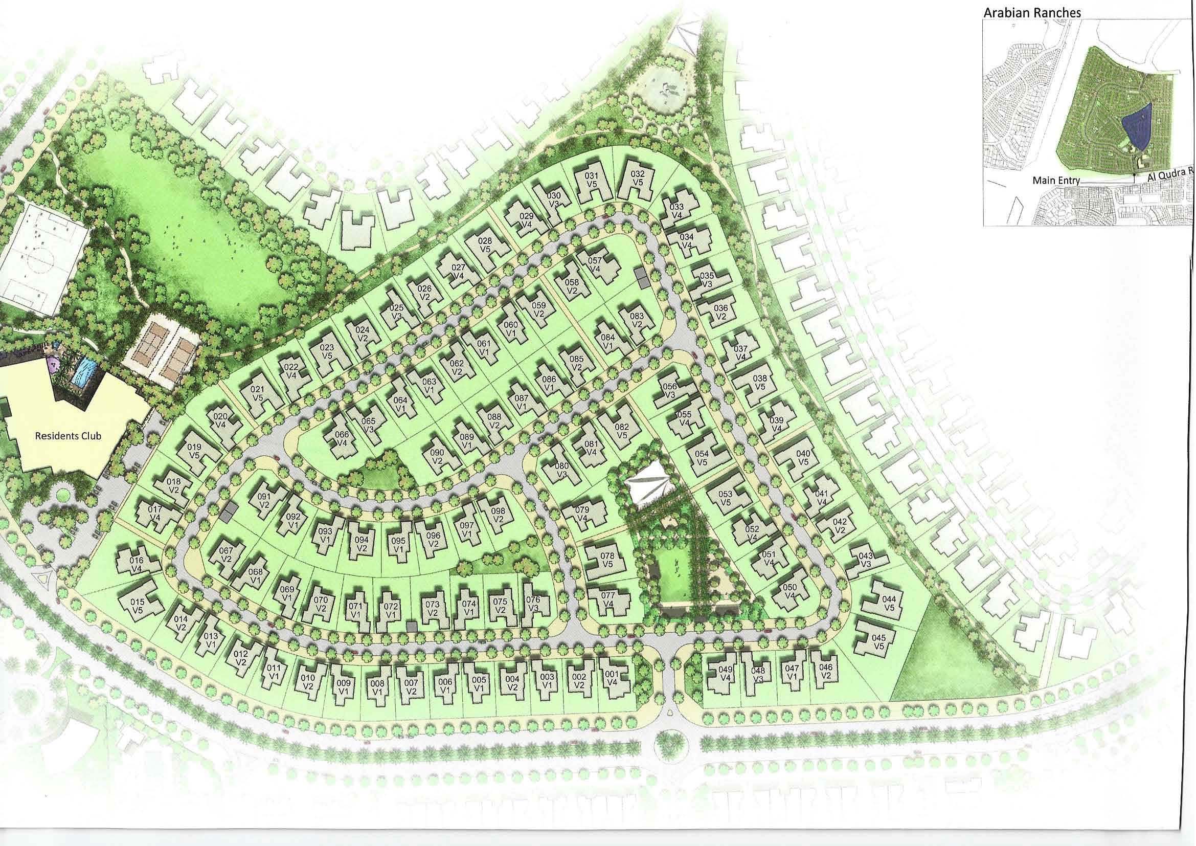
Yasmin
Type :
Free Hold
Project Number :
N/A
Completion Status :
Completed/Ready
Life Cycle :
N/A
Master Development :
Arabian Ranches 2
Developer :
Plot Number :
6651502
Project Configuration :
G+1
Number Of Units :
98
Number Of Sold Units :
N/A
Number Of Remaining Units :
N/A
Number Of Floor :
2
Plot Area :
7,546 Square Meter
Built Up Area :
142,652 Square Feet
Status Percentage :
100
Launch Date :
05-Feb-2014
Registration Date :
05-Feb-2014
Construction Started Date :
01-Mar-2015
Anticipated Completion Date :
01-Jul-2017
Cost Consultants :
N/A
Piling Contractors :
N/A
Handover Date :
01-Jul-2017
Main Contractors :
N/A
Sub Contractors :
N/A
Architects :
N/A
MEP Contractors :
N/A
Project Managers :
N/A
Type 1
4
5
G+1
N/A
Ground
4309 Square Feet
4309 Square Feet
N/A
N/A
N/A
N/A
N/A
N/A
Type 2
4
5
G+1
N/A
Ground
4354 Square Feet
4354 Square Feet
N/A
N/A
N/A
N/A
N/A
N/A
Type 3
4
6
G+1
N/A
Ground
4857 Square Feet
4857 Square Feet
N/A
N/A
N/A
N/A
N/A
N/A
Type 4
5
7
G+1
N/A
Ground
5457 Square Feet
5457 Square Feet
N/A
N/A
N/A
N/A
N/A
N/A
Type 5
6
8
G+1
N/A
Ground
6006 Square Feet
6006 Square Feet
N/A
N/A
N/A
N/A
N/A
N/A
.jpg)
.jpg)
.jpg)
.jpg)
.jpg)
.jpg)