Under Construction
Title :
The Springs 8
Type :
Free Hold
Project Number :
N/A
Completion Status :
Completed/Ready
Life Cycle :
N/A
Master Development :
The Springs
Developer :
N/A
Plot Number :
N/A
Project Configuration :
N/A
Number Of Units :
304
Number Of Sold Units :
N/A
Number Of Remaining Units :
N/A
Number Of Floor :
2
Plot Area :
N/A
Built Up Area :
N/A
Status Percentage :
100
Launch Date :
17-Aug-2002
Registration Date :
N/A
Construction Started Date :
N/A
Anticipated Completion Date :
01-Aug-2006
Cost Consultants :
N/A
Piling Contractors :
N/A
Handover Date :
01-Jan-2004
Main Contractors :
N/A
Sub Contractors :
N/A
Architects :
N/A
MEP Contractors :
N/A
Project Managers :
N/A
Springs 8 is a part of Springs, a gated community that offers the perfect combination of comfort and luxury. Providing a serene environment, the neighborhood features 2 to 3-bedroom lavish villas. Springs 8 is a gated residential sub-community of The Springs and is situated to the east of the development, close to Al Asayel Street (D72).
About The Springs 8
Amenities:
Nearby locations:
| Title | Floor Level | From | To | Action |
|---|---|---|---|---|
| The Spring 8 | N/A | N/A | N/A | View Details |
The Spring 8
N/A
N/A
N/A
N/A
Type 4E
3
4
G+1
N/A
N/A
N/A
N/A
N/A
N/A
N/A
N/A
N/A
1794 Square Feet
2 Bedroom Villa Type 4E End Unit
It has two floor levels:
Features:
Type 4M Left
2
3
G+1
N/A
N/A
N/A
N/A
N/A
N/A
N/A
N/A
N/A
N/A
2 Bedroom - Middle Unit (4M left)
It has a two-floor level
Features:
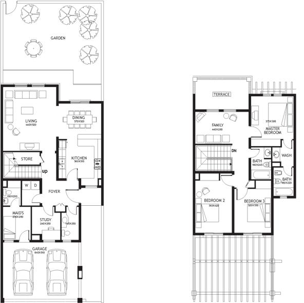
Type 4M Right
3
4
G+1
N/A
N/A
N/A
N/A
N/A
N/A
N/A
N/A
N/A
1690 Square Feet
Type 4M 3-Bedroom villa at The Springs
It has two-floor levels:
Features:
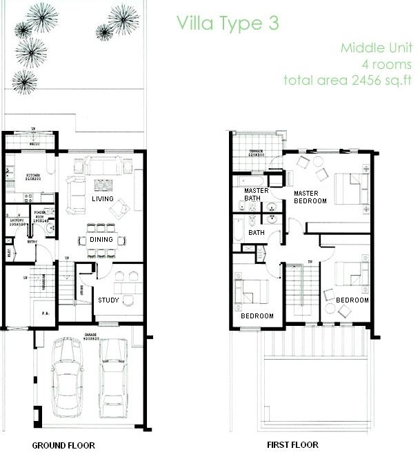
Type 3M
3
4
G+1
N/A
N/A
N/A
N/A
N/A
N/A
N/A
N/A
N/A
2456 Square Feet
3bedroom 3M Middle Unit villa at The Springs
It has two-floor levels
Features:
Type 2M
3
4
G+1
N/A
N/A
N/A
N/A
N/A
N/A
N/A
N/A
N/A
N/A
It is a Type 2M 3-bedroom villa at The Springs
It has two-floor levels:
Features:
Type 1E
3
4
G+1
N/A
N/A
N/A
N/A
N/A
N/A
N/A
N/A
N/A
3032 Square Feet
It is a Type 1E,3Bedroom villa at The Springs
It has two-floor levels:
Features:
Type End Unit
3
4
G+1
N/A
N/A
N/A
N/A
N/A
N/A
N/A
N/A
N/A
N/A
Type End Unit 3Bedroom villa at The Springs
It has two-floor levels
Features:





