Under Construction
Title :
The Springs 6
Type :
Free Hold
Project Number :
N/A
Completion Status :
Completed/Ready
Life Cycle :
N/A
Master Development :
The Springs
Developer :
N/A
Plot Number :
N/A
Project Configuration :
N/A
Number Of Units :
198
Number Of Sold Units :
N/A
Number Of Remaining Units :
N/A
Number Of Floor :
2
Plot Area :
N/A
Built Up Area :
N/A
Status Percentage :
100
Launch Date :
17-Aug-2002
Registration Date :
N/A
Construction Started Date :
N/A
Anticipated Completion Date :
01-Aug-2006
Cost Consultants :
N/A
Piling Contractors :
N/A
Handover Date :
01-Jan-2004
Main Contractors :
N/A
Sub Contractors :
N/A
Architects :
N/A
MEP Contractors :
N/A
Project Managers :
N/A
ABOUT THE SPRINGS 6
The Springs 6 is a residential block in The Springs, a modern residential development in Dubai featuring rental and freehold properties. Springs Dubai, which was developed by Emaar Properties, is a famous residential area in the emirate. Springs 6 is a gated villa-only community comprised of a mix of 2- and 3-bedroom houses. The area is especially favored for its lush green landscaping. Those who prefer a quiet and family-oriented neighborhood can rent or buy properties in The Springs 6.
About The Spring 6
| Title | Floor Level | From | To | Action |
|---|---|---|---|---|
| Spring 6 | N/A | N/A | N/A | View Details |
Spring 6
N/A
N/A
N/A
N/A
Type 4E
3
3
G+1
N/A
N/A
N/A
N/A
N/A
N/A
N/A
N/A
N/A
1794 Square Feet
2 Bedroom Villa Type 4E End Unit
It has two floor levels:
Features:
Type 4M Left
2
3
G+1
N/A
N/A
N/A
N/A
N/A
N/A
N/A
N/A
N/A
N/A
2 Bedroom - Middle Unit (4M left)
It has two-floor level
Features:
Type 4M Right
3
4
G+1
N/A
N/A
N/A
N/A
N/A
N/A
N/A
N/A
N/A
1690 Square Feet
3Bedroom villa at The Springs
It has two-floor levels:
Features:
Type 3M
3
4
G+1
N/A
N/A
N/A
N/A
N/A
N/A
N/A
N/A
N/A
2456 Square Feet
3bedroom 3M Middle Unit villa at The Springs
It has two-floor levels
Features:
Type 2M
3
4
G+1
N/A
N/A
N/A
N/A
N/A
N/A
N/A
N/A
N/A
N/A
It is a Type 2M 3Bedroom villa at The Springs
It has two-floor levels:
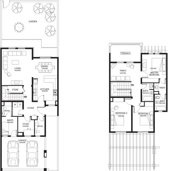
Garden
3Bedroom
4Bathroom'
Kitchen
Dining
Living
Study
Store
Deck
Balcony
Type 1E
3
3
G+1
N/A
N/A
N/A
N/A
N/A
N/A
N/A
N/A
N/A
3032 Square Feet
It is Type 1E,3Bedroom villa at The Springs
It has two-floor levels:
Features:
Type End Unit
4
4
G+1
N/A
N/A
N/A
N/A
N/A
N/A
N/A
N/A
N/A
N/A
Type End Unit 3Bedroom villa at The Springs
It has two-floor levels
It has a dining
It has a verandah
It has a kitchen
It has a living room
It has an entry
It has a laundry
It has a lobby
It has a toilet
It has a maid room
It has a garage
It has a balcony
It has a master bath
It has a master bedroom
It has two other bedrooms





