Under Construction
Title :
The Springs 5
Type :
Free Hold
Project Number :
N/A
Completion Status :
Completed/Ready
Life Cycle :
N/A
Master Development :
The Springs
Developer :
N/A
Plot Number :
N/A
Project Configuration :
N/A
Number Of Units :
272
Number Of Sold Units :
N/A
Number Of Remaining Units :
N/A
Number Of Floor :
N/A
Plot Area :
N/A
Built Up Area :
N/A
Status Percentage :
100
Launch Date :
17-Aug-2002
Registration Date :
N/A
Construction Started Date :
N/A
Anticipated Completion Date :
01-Aug-2006
Cost Consultants :
N/A
Piling Contractors :
N/A
Handover Date :
01-Jan-2004
Main Contractors :
N/A
Sub Contractors :
N/A
Architects :
N/A
MEP Contractors :
N/A
Project Managers :
N/A
ABOUT THE SPRINGS 5
The Springs 5 is a residential block in The Springs, a modern residential development in Dubai featuring rental and freehold properties. It was developed by Emaar Properties, and Springs Dubai is a famous residential area in the emirate. Springs 5 is a gated villa-only community comprised of a mix of 2- and 3-bedroom houses. The area is especially favored for its lush green landscaping. Those who prefer a quiet and family-oriented neighborhood can rent or buy properties in The Springs.
About The Spring 5
| Title | Floor Level | From | To | Action |
|---|---|---|---|---|
| Spring 5 | N/A | N/A | N/A | View Details |
Spring 5
N/A
N/A
N/A
N/A
Type 4E End Unit
2
3
G+1
N/A
N/A
N/A
N/A
N/A
1794 Square Feet
N/A
N/A
N/A
N/A
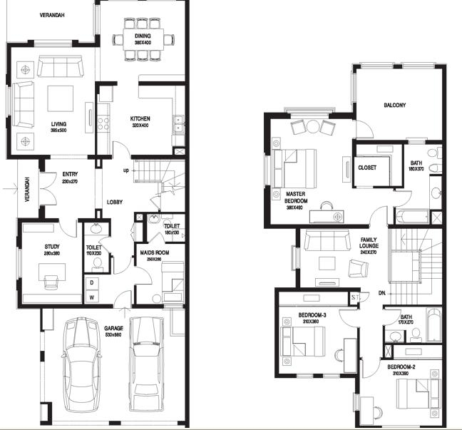
2 Bedroom Villa Type 4E End Unit
It has two - floor levels:
Master bedroom
Master bathroom
Store
Powder
Living Area
Dining
Kitchen
Garage
Verandah
Entry area
Terrace
Type 4M Left
2
3
G+1
N/A
N/A
N/A
N/A
N/A
N/A
N/A
N/A
N/A
N/A
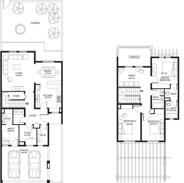
2 Bedroom - Middle Unit (4M left)
It has two-floor level
2-Bedroom
3-Bathroom
Kitchen
Living
Dining
Deck
Lawn
Study
Garage
Balcony
Type 4M Right
3
4
G+1
N/A
N/A
N/A
N/A
N/A
1690 Square Feet
N/A
N/A
N/A
N/A
It is a Type 1E 3Bedroom villa at The Springs
It has two-floor levels:
Ground Floor
First Floor
Type 3M
3
4
G+1
N/A
N/A
N/A
N/A
N/A
2456 Square Feet
N/A
N/A
N/A
N/A
3bedroom 3M Middle Unit villa at The Springs
It has two-floor levels
Master bedroom
Master bathroom
Two other bedroom
Study
Garage
Store
Foyer
Laundry
Living
Dining
Kitchen
Type 2M
3
4
G+1
N/A
N/A
N/A
N/A
N/A
N/A
N/A
N/A
N/A
N/A
It is a Type 2M 3Bedroom villa at The Springs
It has two floor levels:
Garden
3Bedroom
4Bathroom'
Kitchen
Dining
Living
Study
Store
Deck
Balcony
Type 1E
3
4
G+1
N/A
N/A
N/A
N/A
N/A
3032 Square Feet
N/A
N/A
N/A
N/A
It is Type 1E,3Bedroom villa at The Springs
It has two-floor levels:
Ground Floor
First Floor
3Bedroom
3bathroom
Kitchen
Dining
Living
Study
Garden
Garage
Type E
4
4
G+1
N/A
N/A
N/A
N/A
N/A
N/A
N/A
N/A
N/A
N/A
Type End Unit 3Bedroom villa at The Springs
It has two-floor levels
Dining
Verandah
Kitchen
Living room
An entry
Laundry
Lobby
Toilet
Maid room
Garage
Balcony
Master bath
Master bedroom
Two other bedrooms


