Under Construction
Title :
The Springs 12
Type :
Free Hold
Project Number :
N/A
Completion Status :
Completed/Ready
Life Cycle :
N/A
Master Development :
The Springs
Developer :
N/A
Plot Number :
N/A
Project Configuration :
N/A
Number Of Units :
308
Number Of Sold Units :
N/A
Number Of Remaining Units :
N/A
Number Of Floor :
2
Plot Area :
N/A
Built Up Area :
N/A
Status Percentage :
100
Launch Date :
17-Aug-2002
Registration Date :
N/A
Construction Started Date :
N/A
Anticipated Completion Date :
01-Aug-2006
Cost Consultants :
N/A
Piling Contractors :
N/A
Handover Date :
01-Jan-2004
Main Contractors :
N/A
Sub Contractors :
N/A
Architects :
N/A
MEP Contractors :
N/A
Project Managers :
N/A
ABOUT SPRINGS 12
Springs 12 is part of Dubai’s most popular community, The Springs. It is a well-constructed gated community consisting of townhouses and villas with views of the scenic waterways; it is also a highlight of the residential district. The Springs is comprised of 15 sub-communities showcasing 4,800 townhouses and villas. It is also the largest of the Emirates Living communities.
Features:
The following are the sub-highlights:
| Title | Floor Level | From | To | Action |
|---|---|---|---|---|
| The Spring 12 | N/A | N/A | N/A | View Details |
The Spring 12
N/A
N/A
N/A
N/A
Type 4E
3
3
G+1
N/A
N/A
N/A
N/A
N/A
N/A
N/A
N/A
N/A
1794 Square Feet
2 Bedroom Villa Type 4E End Unit
It has two-floor levels:
Features:
Type 4M Left
2
3
G+1
N/A
N/A
N/A
N/A
N/A
N/A
N/A
N/A
N/A
N/A
2 Bedroom - Middle Unit (4M left)
It has two floor level
Features:
Type 4M Right
3
4
G+1
N/A
N/A
N/A
N/A
N/A
N/A
N/A
N/A
N/A
1690 Square Feet
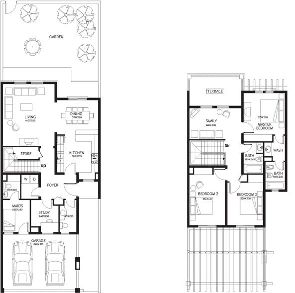
3Bedroom villa at The Springs
It has two floor levels:
Features:
Type 3M
3
4
G+1
N/A
N/A
N/A
N/A
N/A
N/A
N/A
N/A
N/A
2456 Square Feet
3bedroom 3M Middle Unit villa at The Springs12
It has two-floor levels
Features:
Type 2M
3
4
G+1
N/A
N/A
N/A
N/A
N/A
N/A
N/A
N/A
N/A
N/A
It is a Type 2M 3Bedroom villa at The Springs 12, The springs
It has two-floor levels:
Features:
Type 1E
3
4
G+1
N/A
N/A
N/A
N/A
N/A
N/A
N/A
N/A
N/A
3032 Square Feet
The Springs12, The Springs12, Type 1E, 3 Bedroom villa
It has two floor levels:
Features:
type End Unit
4
4
G+1
N/A
N/A
N/A
N/A
N/A
N/A
N/A
N/A
N/A
N/A
Type End Unit 3-Bedroom villa at The Springs
It has two-floor levels
Features:




