Under Construction
Title :
The Springs 11
Type :
Free Hold
Project Number :
N/A
Completion Status :
Completed/Ready
Life Cycle :
N/A
Master Development :
The Springs
Developer :
N/A
Plot Number :
N/A
Project Configuration :
N/A
Number Of Units :
484
Number Of Sold Units :
N/A
Number Of Remaining Units :
N/A
Number Of Floor :
2
Plot Area :
N/A
Built Up Area :
N/A
Status Percentage :
100
Launch Date :
17-Aug-2002
Registration Date :
N/A
Construction Started Date :
N/A
Anticipated Completion Date :
01-Aug-2006
Cost Consultants :
N/A
Piling Contractors :
N/A
Handover Date :
01-Jan-2004
Main Contractors :
N/A
Sub Contractors :
N/A
Architects :
N/A
MEP Contractors :
N/A
Project Managers :
N/A
ABOUT SPRINGS 11
Springs 11 is a sub-community of the Springs. The parent district offers over 4,800 townhouses equipped with luxurious lifestyle facilities. It is one of the famous pet-friendly areas of Dubai, featuring scenic lakes and greenery. The neighborhood offers peace and tranquility to the residents.
Springs 11 is a residential community perfect for newcomers in Dubai. Villas and townhouses are the primary residential units, equipped with lush green landscapes. Jumeirah Islands and Emirates Hills are near the locality. Families living in Spring 11 can head over to Dubai Sports City and Dubai Miracle Garden to spend some quality time.
About The Spring 11
Facilities:
| Title | Floor Level | From | To | Action |
|---|---|---|---|---|
| The Spring 11 | N/A | N/A | N/A | View Details |
The Spring 11
N/A
N/A
N/A
N/A
Type 4E
2
3
G+1
N/A
N/A
N/A
N/A
N/A
N/A
N/A
N/A
N/A
1794 Square Feet
2 Bedroom Villa Type 4E End Unit
It has two-floor levels:
Type 4M Left
2
3
G+1
N/A
N/A
N/A
N/A
N/A
N/A
N/A
N/A
N/A
N/A
2 Bedroom - Middle Unit (4M left)
It has two-floor level
2-Bedroom
3-Bathroom
Kitchen
Living
Dining
Deck
Lawn
Study
Garage
Balcony
Type 4M Right
3
4
G+1
N/A
N/A
N/A
N/A
N/A
N/A
N/A
N/A
N/A
1690 Square Feet
It is Type 4M 3Bedroom villa at The Springs
It has two-floor levels:
Ground Floor
First Floor
Master bedroom
Master bathroom
Store
Verandah
Store
Powder
Garage
Dining
Living
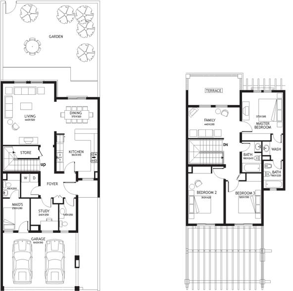
Type 3M
3
4
G+1
N/A
N/A
N/A
N/A
N/A
N/A
N/A
N/A
N/A
2456 Square Feet
3bedroom 3M Middle Unit villa at The Springs
It has two-floor levels
Master bedroom
Master bathroom
Two other bedroom
Study
Garage
Store
Foyer
Laundry
It has a living
It has a dining
It has a kitchen
Type 2M
3
4
G+1
N/A
N/A
N/A
N/A
N/A
N/A
N/A
N/A
N/A
N/A
It is a Type 2M 3Bedroom villa at The Springs
It has two-floor levels:
It has a Garden
It has 3Bedroom
It has 4Bathroom'
It has a Kitchen
It has a Dining
It has a Living
It has a Study
It has a Store
It has a Deck
It has a Balcony
Type 1E
3
4
G+1
N/A
N/A
N/A
N/A
N/A
N/A
N/A
N/A
N/A
3032 Square Feet
It is a Type 1E,3Bedroom villa at The Springs
It has two floor levels:
Ground Floor
First Floor
3Bedroom
3bathroom
Kitchen
Dining
Living
Study
Garden
Garage
Type End Unit
3
4
G+1
N/A
N/A
N/A
N/A
N/A
N/A
N/A
N/A
N/A
N/A
It is Type 1E,3Bedroom villa at The Springs1, The springs
It has two floor levels:
Ground Floor
First Floor
3- Bedroom
3- bathroom
Kitchen
Dining
Living
Study
Garden
G


















