Service Charges
Completion Status
Payment Plan
Handover
Title :
The 8
Type :
Free Hold
Project Number :
1617
Completion Status :
Under Construction
Life Cycle :
Developing
Master Development :
The Crescent
Developer :
N/A
Plot Number :
2000-0
Project Configuration :
N/A
Number Of Units :
305
Number Of Floor :
7
Plot Area :
47,773 Square Feet
Built Up Area :
N/A
Construction Status :
100
Launch Date :
N/A
Registration Date :
23-Dec-2014
Construction Started Date :
13-Oct-2014
Anticipated Completion Date :
31-Aug-2019
Cost Consultants :
N/A
Piling Contractors :
N/A
Handover Date :
N/A
Main Contractors :
N/A
Sub Contractors :
N/A
Architects :
N/A
MEP Contractors :
N/A
Project Managers :
N/A
The 8:
Amenities:
| Title | Action |
|---|---|
| UNIT A | View Details |
| Unit B | View Details |
| Unit C | View Details |
| Unit D | View Details |
| Unit E | View Details |
| Unit A | View Details |
| Unit B | View Details |
| Unit C | View Details |
| Unit D | View Details |
| PH-A | View Details |
| PH-A-2 | View Details |
| PH-B1 | View Details |
| PH-B-2 | View Details |
| PH-C1 | View Details |
| PH-C2 | View Details |
| PH-D1 | View Details |
| TH-A2 | View Details |
UNIT A
2
2
N/A
N/A
N/A
N/A
N/A
N/A
N/A
N/A
N/A
N/A
N/A
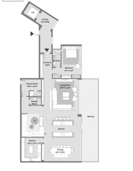
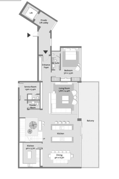
UNIT A:
Two bedrooms
Two bathrooms
Balcony
Kitchen
Living/dining
Ensuite
Service room
Entrance foyer
Utility
Powder
| Title | Floor | Width (Square Feet) | Length (Square Feet) | Total (Square Feet) |
|---|---|---|---|---|
| MASTER BEDROOM | N/A | 3.60 | 3.90 | 14.04 |
| LIVING ROOM | N/A | 4.60 | 3.60 | 16.56 |
| BEDROOM | N/A | 3.40 | 3.80 | 12.92 |
| SERVICE ROOM | N/A | 3.00 | 1.80 | 5.40 |
Unit B
2
2
N/A
N/A
N/A
N/A
N/A
N/A
N/A
N/A
N/A
N/A
N/A
UNIT B:
Two bedrooms
Two bathrooms
Balcony
Kitchen
Living/dining
Ensuite
Service room
Entrance foyer
Utility
Powder
| Title | Floor | Width (Square Feet) | Length (Square Feet) | Total (Square Feet) |
|---|---|---|---|---|
| bedroom | N/A | 3.60 | 3.70 | 13.32 |
| master bedroom | N/A | 4.00 | 3.60 | 14.40 |
| living room | N/A | 4.00 | 4.00 | 16.00 |
| services room | N/A | 2.00 | 1.80 | 3.60 |
| utility | N/A | 1.00 | 1.80 | 1.80 |
Unit C
2
2
N/A
N/A
N/A
N/A
N/A
N/A
N/A
N/A
N/A
N/A
N/A
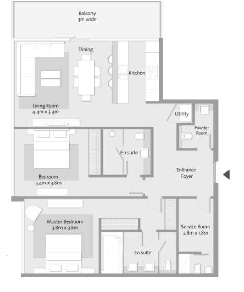
Unit C:
Master bedroom
Master bathroom
Bedroom
Bathroom
Balcony
Ensuite
Living room
Dining
Living room
Kitchen
It has an entrance foyer
It has a powder room
| Title | Floor | Width (Square Feet) | Length (Square Feet) | Total (Square Feet) |
|---|---|---|---|---|
| master bedroom | N/A | 4.00 | 3.90 | 15.60 |
| bedroom | N/A | 3.40 | 3.20 | 10.88 |
| living room | N/A | 4.40 | 4.00 | 17.60 |
| service room | N/A | 2.00 | 1.90 | 3.80 |
Unit D
2
2
N/A
N/A
N/A
N/A
N/A
N/A
N/A
N/A
N/A
N/A
N/A
Unit D:
Two bedrooms
Two bathrooms
Balcony
Kitchen
Living/dining
Ensuite
Service room
Entrance foyer
Utility
Powder
| Title | Floor | Width (Square Feet) | Length (Square Feet) | Total (Square Feet) |
|---|---|---|---|---|
| living room | N/A | 4.70 | 3.60 | 16.92 |
| bedroom | N/A | 2.00 | 1.80 | 3.60 |
| master bedroom | N/A | 4.00 | 3.80 | 15.20 |
Unit E
2
2
N/A
N/A
N/A
N/A
N/A
N/A
N/A
N/A
N/A
N/A
N/A
Unit E:
Two bedrooms
Two bathrooms
Balcony
Kitchen
Living/dining
Ensuite
Service room
Entrance foyer
Utility
Powder
| Title | Floor | Width (Square Feet) | Length (Square Feet) | Total (Square Feet) |
|---|---|---|---|---|
| dining | N/A | N/A | N/A | N/A |
| balcony | N/A | N/A | N/A | N/A |
| kitchen | N/A | N/A | N/A | N/A |
| living room | N/A | 4.40 | 3.40 | 14.96 |
| bedroom | N/A | 3.40 | 3.80 | 12.92 |
| master bedroom | N/A | 3.80 | 3.80 | 14.44 |
| service room | N/A | 2.80 | 1.80 | 5.04 |
Unit A
3
3
N/A
N/A
N/A
N/A
N/A
N/A
N/A
N/A
N/A
N/A
N/A
Unit A:
Ensuite
Wall in the wardrobe
Master bedroom
Entrance foyer
Dining
Living room
Balcony
Kitchen
Utility
Service room
It has an ensuite
| Title | Floor | Width (Square Feet) | Length (Square Feet) | Total (Square Feet) |
|---|---|---|---|---|
| master bedroom | N/A | 3.80 | 4.20 | 15.96 |
| living room | N/A | 4.60 | 3.80 | 17.48 |
| bedroom | N/A | 3.30 | 4.00 | 13.20 |
| bedroom | N/A | 3.60 | 3.60 | 12.96 |
| service room | N/A | 2.40 | 2.00 | 4.80 |
Unit B
3
3
N/A
N/A
N/A
N/A
N/A
N/A
N/A
N/A
N/A
N/A
N/A
Unit B:
Store
Foyer
Dining
Living
Balcony
Kitchen
Service room
Utility
Ensuite
Wall in the wardrobe
| Title | Floor | Width (Square Feet) | Length (Square Feet) | Total (Square Feet) |
|---|---|---|---|---|
| STORE | N/A | 2.00 | 2.10 | 4.20 |
| LIVING ROOM | N/A | 4.80 | 4.80 | 23.04 |
| BEDROOM | N/A | 4.00 | 3.60 | 14.40 |
| SERVICE ROOM | N/A | 2.00 | 2.00 | 4.00 |
| MASTER BEDROOM | N/A | 4.00 | 4.70 | 18.80 |
Unit C
3
3
N/A
N/A
N/A
N/A
N/A
N/A
N/A
N/A
N/A
N/A
N/A
UNIT C:
Balcony
Living room
Dining
Kitchen
3 bedroom
3 bathroom
Ensuite
Entrance foyer
Utility
Service room
| Title | Floor | Width (Square Feet) | Length (Square Feet) | Total (Square Feet) |
|---|---|---|---|---|
| living room | N/A | 4.60 | 3.50 | 16.10 |
| bedroom | N/A | 3.70 | 3.50 | 12.95 |
| bedroom | N/A | 3.70 | 3.00 | 11.10 |
| master bedroom | N/A | 3.90 | 3.80 | 14.82 |
| service room | N/A | 2.90 | 1.70 | 4.93 |
Unit D
3
3
N/A
N/A
N/A
N/A
N/A
N/A
N/A
N/A
N/A
N/A
N/A
Unit D:
Master bedroom
Master bathroom
Balcony
Dining
Living room
Kitchen
Entrance foyer
Utility
Service room
En-Suite
| Title | Floor | Width (Square Feet) | Length (Square Feet) | Total (Square Feet) |
|---|---|---|---|---|
| living room | N/A | 4.70 | 4.00 | 18.80 |
| bedroom | N/A | 3.50 | 3.30 | 11.55 |
| service room | N/A | 2.00 | 1.80 | 3.60 |
| bedroom | N/A | 4.00 | 3.60 | 14.40 |
| master bedroom | N/A | 4.40 | 3.50 | 15.40 |
PH-A
1
1
N/A
N/A
N/A
N/A
N/A
N/A
N/A
N/A
N/A
N/A
N/A
PENTHOUSE-A:
Lobby
Foyer
En-Suite
Bedroom
Service room
Living room
Balcony
Kitchen
Dining
| Title | Floor | Width (Square Feet) | Length (Square Feet) | Total (Square Feet) |
|---|---|---|---|---|
| living | N/A | N/A | N/A | N/A |
| dining | N/A | N/A | N/A | N/A |
| kitchen | N/A | N/A | N/A | N/A |
| bedroom | N/A | N/A | N/A | N/A |
| bathroom | N/A | N/A | N/A | N/A |
| balcony | N/A | N/A | N/A | N/A |
PH-A-2
2
2
N/A
N/A
N/A
N/A
N/A
N/A
N/A
N/A
N/A
N/A
N/A
PH-A-2:
Lobby
Entrance foyer
Bedroom
Family lounge
Master bedroom
Master bathroom
| Title | Floor | Width (Square Feet) | Length (Square Feet) | Total (Square Feet) |
|---|---|---|---|---|
| LIVING | N/A | N/A | N/A | N/A |
| DINING | N/A | N/A | N/A | N/A |
| KITCHEN | N/A | N/A | N/A | N/A |
| BEDROOM | N/A | N/A | N/A | N/A |
| BATHROOM | N/A | N/A | N/A | N/A |
PH-B1
1
1
N/A
N/A
N/A
N/A
N/A
N/A
N/A
N/A
N/A
N/A
N/A
PH-B1:
Lobby
Entrance
Dining
Living
Kitchen
Bedroom
Bathroom
| Title | Floor | Width (Square Feet) | Length (Square Feet) | Total (Square Feet) |
|---|---|---|---|---|
| LIVING | N/A | N/A | N/A | N/A |
| KITCHEN | N/A | N/A | N/A | N/A |
| BALCONY | N/A | N/A | N/A | N/A |
| BEDROOM | N/A | N/A | N/A | N/A |
| BATHROOM | N/A | N/A | N/A | N/A |
PH-B-2
3
3
N/A
N/A
N/A
N/A
N/A
N/A
N/A
N/A
N/A
N/A
N/A
PH-B-2:
Master bedroom
Two other bedrooms
Living
Dining
Kitchen
Balcony
Lobby
| Title | Floor | Width (Square Feet) | Length (Square Feet) | Total (Square Feet) |
|---|---|---|---|---|
| BEDROOM | N/A | N/A | N/A | N/A |
| MASTER BEDROOM | N/A | N/A | N/A | N/A |
| KITCHEN | N/A | N/A | N/A | N/A |
| LIVING | N/A | N/A | N/A | N/A |
| DINING | N/A | N/A | N/A | N/A |
| BALCONY | N/A | N/A | N/A | N/A |
| LOBBY | N/A | N/A | N/A | N/A |
PH-C1
1
1
N/A
N/A
N/A
N/A
N/A
N/A
N/A
N/A
N/A
N/A
N/A
PENTHOUSE C1:
Dining
Kitchen
Living
Balcony
Living room
Bedroom
Bathroom
Lobby
| Title | Floor | Width (Square Feet) | Length (Square Feet) | Total (Square Feet) |
|---|---|---|---|---|
| kitchen | N/A | N/A | N/A | N/A |
| living | N/A | N/A | N/A | N/A |
| dining | N/A | N/A | N/A | N/A |
| balcony | N/A | N/A | N/A | N/A |
| bedroom | N/A | N/A | N/A | N/A |
PH-C2
3
3
N/A
N/A
N/A
N/A
N/A
N/A
N/A
N/A
N/A
N/A
N/A
PENTHOUSE C2:
Master bedroom
Living
Dining
Kitchen
Balcony
Entrance lobby
| Title | Floor | Width (Square Feet) | Length (Square Feet) | Total (Square Feet) |
|---|---|---|---|---|
| LIVING | N/A | N/A | N/A | N/A |
| DINING | N/A | N/A | N/A | N/A |
| KITCHEN | N/A | N/A | N/A | N/A |
| BEDROOM | N/A | N/A | N/A | N/A |
| BATHROOM | N/A | N/A | N/A | N/A |
| LOBBY | N/A | N/A | N/A | N/A |
| BALCONY | N/A | N/A | N/A | N/A |
PH-D1
3
3
N/A
N/A
N/A
N/A
N/A
N/A
N/A
N/A
N/A
N/A
N/A
PENTHOUSE D1:
3 bedrooms
Living
Dining
Kitchen
Lobby
Balcony
Store
En-suite
| Title | Floor | Width (Square Feet) | Length (Square Feet) | Total (Square Feet) |
|---|---|---|---|---|
| LIVING | N/A | N/A | N/A | N/A |
| DINING | N/A | N/A | N/A | N/A |
| KITCHEN | N/A | N/A | N/A | N/A |
| BEDROOM | N/A | N/A | N/A | N/A |
| BATHROOM | N/A | N/A | N/A | N/A |
| LOBBY | N/A | N/A | N/A | N/A |
| LAUNDRY | N/A | N/A | N/A | N/A |
TH-A2
3
3
N/A
N/A
N/A
N/A
N/A
N/A
N/A
N/A
N/A
N/A
N/A
TOWNHOUSE-A2
3 bedrooms
Balcony
En-suite
Living room
Wall in wardrobe
| Title | Floor | Width (Square Feet) | Length (Square Feet) | Total (Square Feet) |
|---|---|---|---|---|
| BEDROOMS | N/A | N/A | N/A | N/A |
| LIVING | N/A | N/A | N/A | N/A |
| BATHROOM | N/A | N/A | N/A | N/A |













