UAE > Dubai > Mohammad Bin Rashid City > District One > The Residences at District One > Residences 16
Service Charges
Completion Status
Payment Plan
Handover
Title :
Residences 16
Type :
Free Hold
Project Number :
1997
Completion Status :
Under Construction
Life Cycle :
Developing
Master Development :
The Residences at District One
Developer :
N/A
Plot Number :
N/A
Project Configuration :
G+9
Number Of Units :
95
Number Of Floor :
9
Plot Area :
N/A
Built Up Area :
N/A
Construction Status :
100
Launch Date :
N/A
Registration Date :
23-Nov-2017
Construction Started Date :
01-Dec-2017
Anticipated Completion Date :
06-Nov-2022
Cost Consultants :
N/A
Piling Contractors :
N/A
Handover Date :
N/A
Main Contractors :
MS Construction and Wade Adams
Sub Contractors :
N/A
Architects :
N/A
MEP Contractors :
N/A
Project Managers :
N/A
The Residences 16 at District One is a project of The Residences at District One, Mohammed Bin Rashid City, Dubai. The project is being developed by Meydan Group.
IN A NUTSHELL
Amenities:
Unit G01
1
2
N/A
N/A
G
N/A
N/A
N/A
N/A
N/A
357 Square Feet
708 Square Feet
1,065 Square Feet
This is an Apartment in Residences 16
This includes:
| Title | Floor | Width (Square Feet) | Length (Square Feet) | Total (Square Feet) |
|---|---|---|---|---|
| Master Bedroom | 1-4 | 43.06 | 43.06 | 1,854.16 |
| Master Bathroom | 1-4 | 23.68 | 22.60 | 535.17 |
| Living/Dining | 1-4 | 60.28 | 41.98 | 2,530.55 |
| Kitchen | 1-4 | 25.83 | 27.99 | 722.98 |
| Powder Room | N/A | 12.92 | 18.30 | 236.44 |
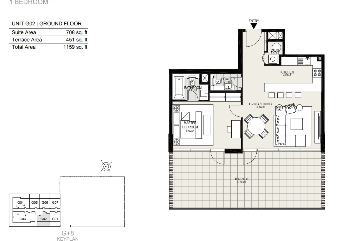
Unit G02
1
2
N/A
N/A
G
N/A
N/A
N/A
N/A
N/A
451 Square Feet
708 Square Feet
1,159 Square Feet
This is an Apartment in Residences 16
This includes:
| Title | Floor | Width (Square Feet) | Length (Square Feet) | Total (Square Feet) |
|---|---|---|---|---|
| Master Bedroom | 1-4 | 34.44 | 50.59 | 1,742.32 |
| Master Bathroom | N/A | 19.38 | 26.91 | 521.52 |
| Living/Dining | N/A | 41.98 | 57.05 | 2,394.96 |
| Kitchen | N/A | 25.83 | 41.98 | 1,084.34 |
| Powder Room | N/A | 12.92 | 22.60 | 291.99 |
Unit G03
1
2
N/A
N/A
G
N/A
N/A
N/A
N/A
N/A
319 Square Feet
708 Square Feet
1,027 Square Feet
This is an Apartment in Residences 16
This includes:
| Title | Floor | Width (Square Feet) | Length (Square Feet) | Total (Square Feet) |
|---|---|---|---|---|
| Powder Room | N/A | 12.92 | 18.30 | 236.44 |
| Master Bedroom | 1-4 | 43.06 | 41.98 | 1,807.66 |
| Master Bathroom | N/A | 23.68 | 22.60 | 535.17 |
| Living/Dining | N/A | 60.28 | 41.98 | 2,530.55 |
| Kitchen | N/A | 25.83 | 27.99 | 722.98 |
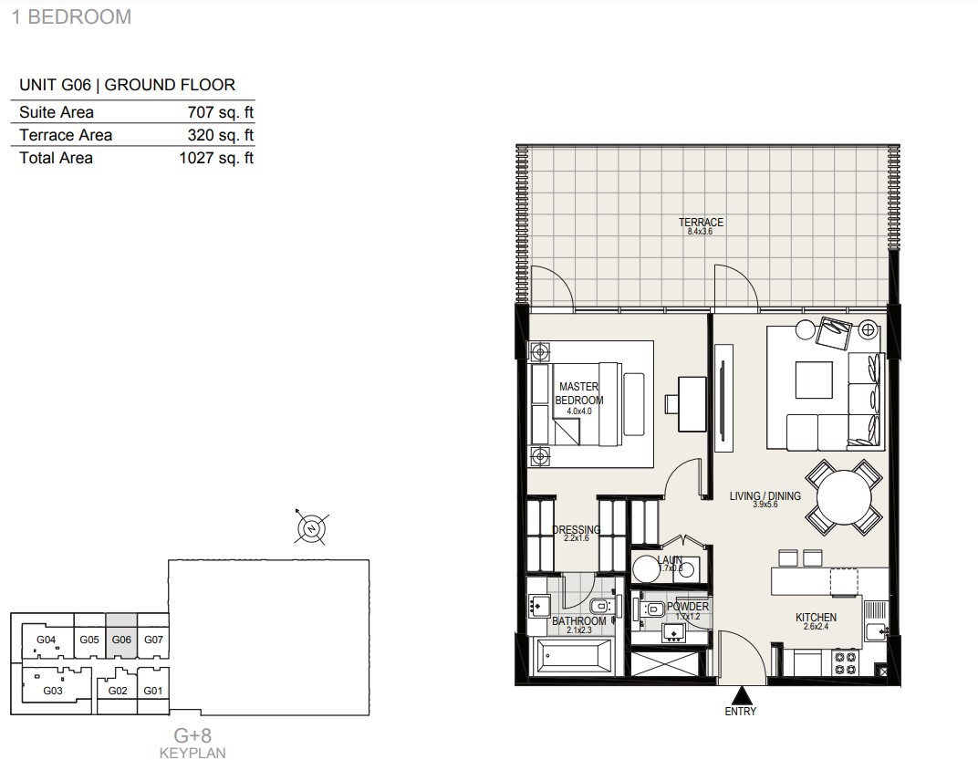
Unit G06
1
2
N/A
N/A
G
N/A
N/A
N/A
N/A
N/A
320 Square Feet
707 Square Feet
1,027 Square Feet
This is an Apartment in Residences 16
This includes:
| Title | Floor | Width (Square Feet) | Length (Square Feet) | Total (Square Feet) |
|---|---|---|---|---|
| Master Bedroom | 1-4 | 43.06 | 43.06 | 1,854.16 |
| Powder Room | N/A | 12.92 | 18.30 | 236.44 |
| Master Bathroom | N/A | 24.76 | 22.60 | 559.58 |
| Living/Dining | N/A | 60.28 | 41.98 | 2,530.55 |
| Kitchen | N/A | 25.83 | 27.99 | 722.98 |
Unit G07
1
2
N/A
N/A
G
N/A
N/A
N/A
N/A
N/A
320 Square Feet
711 Square Feet
1,031 Square Feet
This is an Apartment in Residences 16
This includes:
| Title | Floor | Width (Square Feet) | Length (Square Feet) | Total (Square Feet) |
|---|---|---|---|---|
| Master Bedroom | 1-4 | 43.06 | 43.06 | 1,854.16 |
| Powder Room | N/A | 12.92 | 18.30 | 236.44 |
| Master Bathroom | N/A | 23.68 | 23.68 | 560.74 |
| Living/Dining | N/A | 60.28 | 41.98 | 2,530.55 |
| Kitchen | N/A | 25.83 | 27.99 | 722.98 |
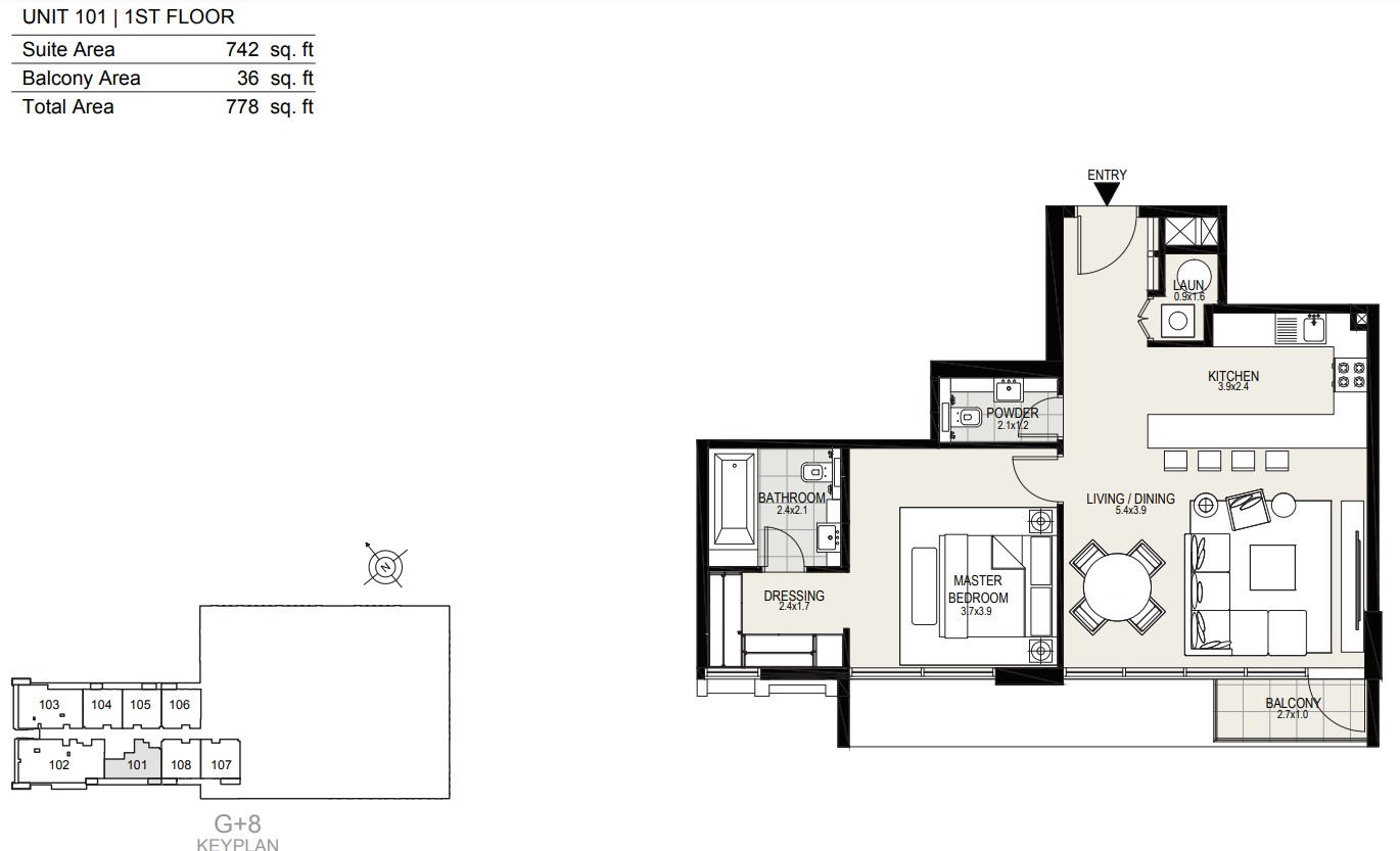
Unit 101
1
2
N/A
N/A
1
N/A
N/A
N/A
N/A
36 Square Feet
N/A
742 Square Feet
778 Square Feet
This is an Apartment in Residences 16
This includes:
| Title | Floor | Width (Square Feet) | Length (Square Feet) | Total (Square Feet) |
|---|---|---|---|---|
| Master Bedroom | 1-4 | 41.98 | 39.83 | 1,672.06 |
| Powder Room | N/A | 12.92 | 22.60 | 291.99 |
| Master Bathroom | N/A | 22.60 | 25.83 | 583.76 |
| Living/Dining | N/A | 41.98 | 58.13 | 2,440.30 |
| Kitchen | N/A | 25.83 | 41.98 | 1,084.34 |
Unit 104
1
2
N/A
N/A
1
N/A
N/A
N/A
N/A
33 Square Feet
N/A
708 Square Feet
741 Square Feet
This is an Apartment in Residences 16
This includes:
| Title | Floor | Width (Square Feet) | Length (Square Feet) | Total (Square Feet) |
|---|---|---|---|---|
| Powder Room | N/A | 12.92 | 18.30 | 236.44 |
| Master Bedroom | 1-4 | 43.06 | 41.98 | 1,807.66 |
| Master Bathroom | N/A | 23.68 | 22.60 | 535.17 |
| Living/Dining | N/A | 60.28 | 33.37 | 2,011.54 |
| Kitchen | N/A | 25.83 | 27.99 | 722.98 |
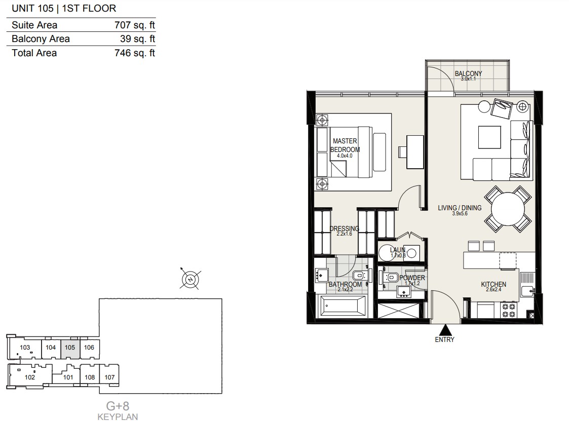
Unit 105
1
2
N/A
N/A
1
N/A
N/A
N/A
N/A
39 Square Feet
N/A
707 Square Feet
746 Square Feet
This is an Apartment in Residences 16
This includes:
| Title | Floor | Width (Square Feet) | Length (Square Feet) | Total (Square Feet) |
|---|---|---|---|---|
| Powder Room | N/A | 12.92 | 18.30 | 236.44 |
| Master Bedroom | N/A | 43.06 | 43.06 | 1,854.16 |
| Master Bathroom | N/A | 23.68 | 22.60 | 535.17 |
| Living/Dining | N/A | 60.28 | 41.98 | 2,530.55 |
| Kitchen | N/A | 25.83 | 27.99 | 722.98 |
Unit 106
1
2
N/A
N/A
1
N/A
N/A
N/A
N/A
42 Square Feet
N/A
711 Square Feet
753 Square Feet
This is an Apartment in Residences 16
This includes:
| Title | Floor | Width (Square Feet) | Length (Square Feet) | Total (Square Feet) |
|---|---|---|---|---|
| Powder Room | N/A | 12.92 | 18.30 | 236.44 |
| Master Bedroom | N/A | 43.06 | 43.06 | 1,854.16 |
| Master Bathroom | N/A | 23.68 | 23.68 | 560.74 |
| Living/Dining | N/A | 60.28 | 41.98 | 2,530.55 |
| Kitchen | N/A | 25.83 | 27.99 | 722.98 |
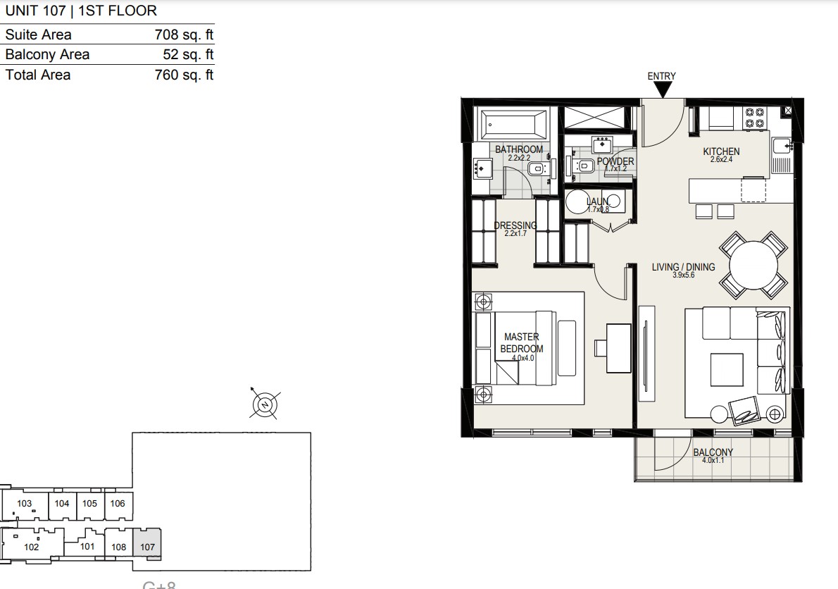
Unit 107
1
2
N/A
N/A
1
N/A
N/A
N/A
N/A
52 Square Feet
N/A
708 Square Feet
760 Square Feet
This is an Apartment in Residences 16
This includes:
| Title | Floor | Width (Square Feet) | Length (Square Feet) | Total (Square Feet) |
|---|---|---|---|---|
| Powder Room | N/A | 12.92 | 18.30 | 236.44 |
| Master Bedroom | 1-4 | 43.06 | 41.98 | 1,807.66 |
| Master Bathroom | N/A | 23.68 | 23.68 | 560.74 |
| Living/Dining | N/A | 60.28 | 41.98 | 2,530.55 |
| Kitchen | N/A | 25.83 | 27.99 | 722.98 |
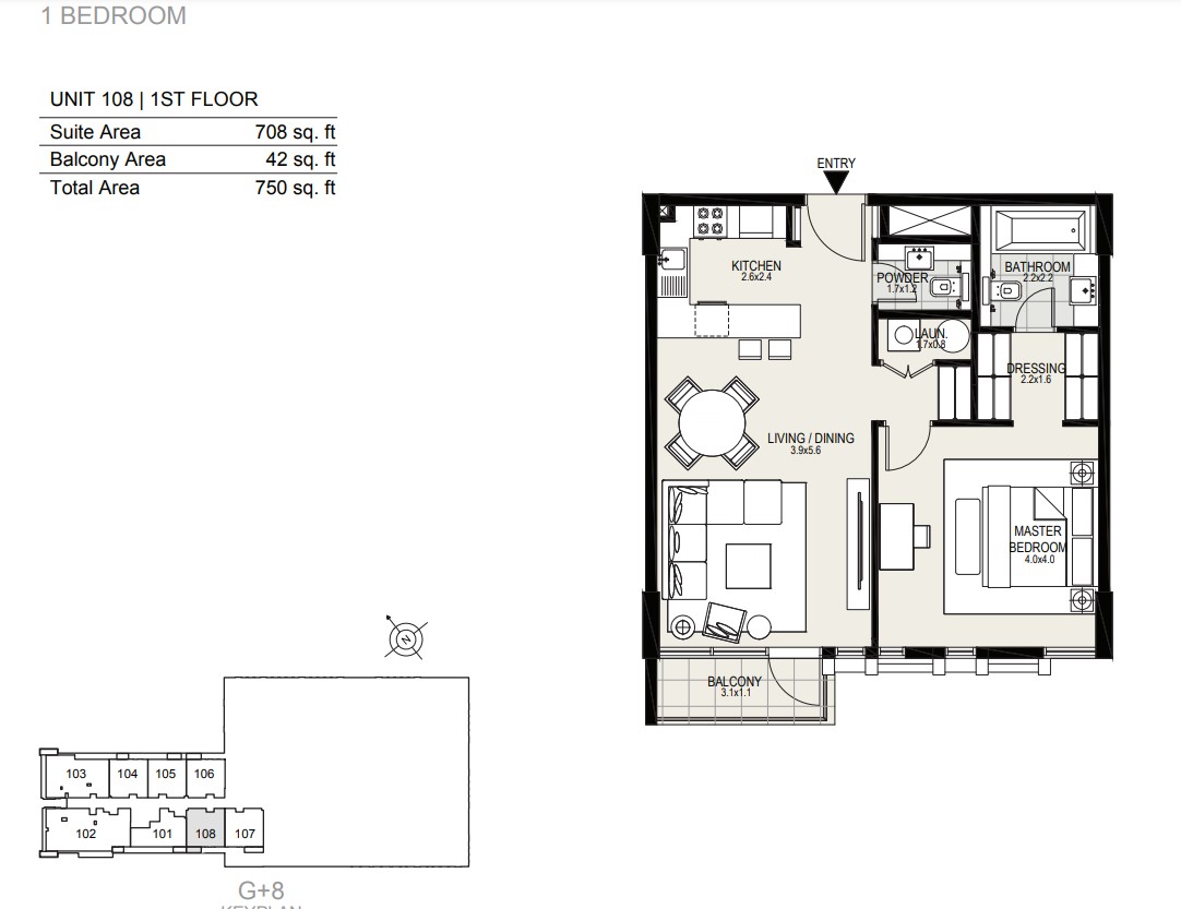
Unit 108
1
2
N/A
N/A
1
N/A
N/A
N/A
N/A
42 Square Feet
N/A
708 Square Feet
750 Square Feet
This is an Apartment in Residences 16
This includes:
| Title | Floor | Width (Square Feet) | Length (Square Feet) | Total (Square Feet) |
|---|---|---|---|---|
| Master Bedroom | 1-4 | 43.06 | 43.06 | 1,854.16 |
| Powder Room | N/A | 12.92 | 18.30 | 236.44 |
| Master Bathroom | N/A | 23.68 | 23.68 | 560.74 |
| Living/Dining | N/A | 60.28 | 41.98 | 2,530.55 |
| Kitchen | N/A | 25.83 | 27.99 | 722.98 |
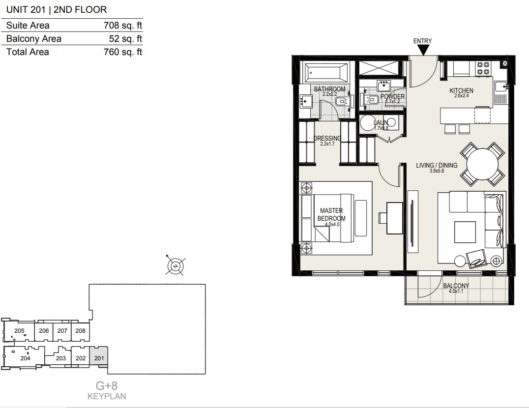
Unit 201
1
2
N/A
N/A
2
N/A
N/A
N/A
N/A
52 Square Feet
N/A
708 Square Feet
760 Square Feet
This is an Apartment in Residences 16
This includes:
| Title | Floor | Width (Square Feet) | Length (Square Feet) | Total (Square Feet) |
|---|---|---|---|---|
| Powder Room | N/A | 12.92 | 18.30 | 236.44 |
| Master Bedroom | N/A | 43.06 | 43.06 | 1,854.16 |
| Master Bathroom | N/A | 23.68 | 23.68 | 560.74 |
| Living/Dining | N/A | 60.28 | 41.98 | 2,530.55 |
| Kitchen | N/A | 25.83 | 27.99 | 722.98 |
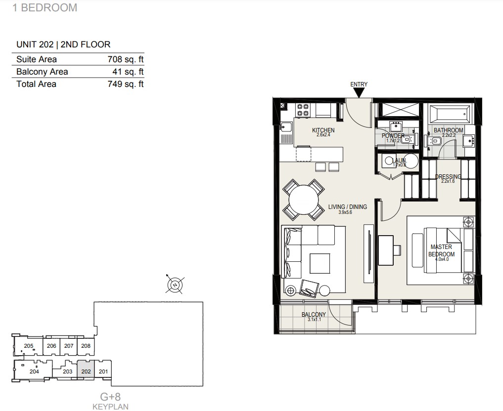
Unit 202
1
2
N/A
N/A
2
N/A
N/A
N/A
N/A
41 Square Feet
N/A
708 Square Feet
749 Square Feet
This is an Apartment in Residences 16
This includes:
| Title | Floor | Width (Square Feet) | Length (Square Feet) | Total (Square Feet) |
|---|---|---|---|---|
| Powder Room | N/A | 12.92 | 18.30 | 236.44 |
| Master Bedroom | N/A | 43.06 | 43.06 | 1,854.16 |
| Master Bathroom | N/A | 23.68 | 23.68 | 560.74 |
| Living/Dining | N/A | 60.28 | 41.98 | 2,530.55 |
| Kitchen | N/A | 25.83 | 27.99 | 722.98 |
Unit 203
1
2
N/A
N/A
2
N/A
N/A
N/A
N/A
36 Square Feet
N/A
742 Square Feet
778 Square Feet
This is an Apartment in Residences 16
This includes:
| Title | Floor | Width (Square Feet) | Length (Square Feet) | Total (Square Feet) |
|---|---|---|---|---|
| Powder Room | N/A | 12.92 | 22.60 | 291.99 |
| Master Bedroom | N/A | 41.98 | 39.83 | 1,672.06 |
| Master Bathroom | N/A | 22.60 | 25.83 | 583.76 |
| Living/Dining | N/A | 41.98 | 58.13 | 2,440.30 |
| Kitchen | N/A | 25.83 | 41.98 | 1,084.34 |
Unit 206
1
2
N/A
N/A
2
N/A
N/A
N/A
N/A
33 Square Feet
N/A
708 Square Feet
741 Square Feet
This is an Apartment in Residences 16
This includes:
| Title | Floor | Width (Square Feet) | Length (Square Feet) | Total (Square Feet) |
|---|---|---|---|---|
| Powder Room | N/A | 12.92 | 22.60 | 291.99 |
| Master Bedroom | N/A | 43.06 | 41.98 | 1,807.66 |
| Master Bathroom | N/A | 23.68 | 22.60 | 535.17 |
| Living/Dining | N/A | 60.28 | 41.98 | 2,530.55 |
| Kitchen | N/A | 25.83 | 27.99 | 722.98 |
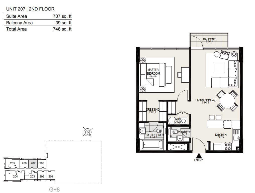
Unit 207
1
2
N/A
N/A
2
N/A
N/A
N/A
N/A
39 Square Feet
N/A
707 Square Feet
746 Square Feet
This is an Apartment in Residences 16
This includes:
| Title | Floor | Width (Square Feet) | Length (Square Feet) | Total (Square Feet) |
|---|---|---|---|---|
| Powder Room | N/A | 12.92 | 18.30 | 236.44 |
| Master Bedroom | N/A | 43.06 | 43.06 | 1,854.16 |
| Master Bathroom | N/A | 23.68 | 22.60 | 535.17 |
| Living/Dining | N/A | 60.28 | 41.98 | 2,530.55 |
| Kitchen | N/A | 25.83 | 27.99 | 722.98 |
Unit 208
1
2
N/A
N/A
2
N/A
N/A
N/A
N/A
42 Square Feet
N/A
711 Square Feet
753 Square Feet
This is an Apartment in Residences 16
This includes:
| Title | Floor | Width (Square Feet) | Length (Square Feet) | Total (Square Feet) |
|---|---|---|---|---|
| Powder Room | N/A | 12.92 | 18.30 | 236.44 |
| Master Bedroom | N/A | 43.06 | 43.06 | 1,854.16 |
| Master Bathroom | N/A | 23.68 | 23.68 | 560.74 |
| Living/Dining | N/A | 60.28 | 41.98 | 2,530.55 |
| Kitchen | N/A | 25.83 | 27.99 | 722.98 |
Unit 301
1
2
N/A
N/A
3
N/A
N/A
N/A
N/A
54 Square Feet
N/A
709 Square Feet
763 Square Feet
This is an Apartment in Residences 16
This includes:
| Title | Floor | Width (Square Feet) | Length (Square Feet) | Total (Square Feet) |
|---|---|---|---|---|
| Powder Room | N/A | 12.92 | 18.30 | 236.44 |
| Master Bedroom | N/A | 43.06 | 43.06 | 1,854.16 |
| Master Bathroom | N/A | 23.68 | 23.68 | 560.74 |
| Living/Dining | N/A | 60.28 | 41.98 | 2,530.55 |
| Kitchen | N/A | 25.83 | 27.99 | 722.98 |
Unit 302
1
2
N/A
N/A
3
N/A
N/A
N/A
N/A
53 Square Feet
N/A
708 Square Feet
760 Square Feet
This is an Apartment in Residences 16
This includes:
| Title | Floor | Width (Square Feet) | Length (Square Feet) | Total (Square Feet) |
|---|---|---|---|---|
| Powder Room | N/A | 12.92 | 18.30 | 236.44 |
| Master Bedroom | N/A | 43.06 | 43.06 | 1,854.16 |
| Master Bathroom | N/A | 23.68 | 23.68 | 560.74 |
| Living/Dining | N/A | 60.28 | 41.98 | 2,530.55 |
| Kitchen | N/A | 25.83 | 27.99 | 722.98 |
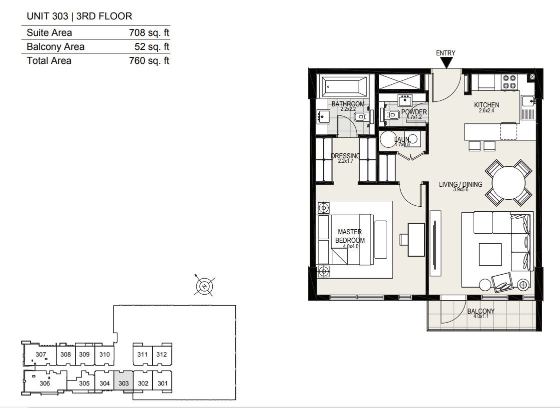
Unit 303
1
2
N/A
N/A
3
N/A
N/A
N/A
N/A
52 Square Feet
N/A
708 Square Feet
760 Square Feet
This is an Apartment in Residences 16
This includes:
| Title | Floor | Width (Square Feet) | Length (Square Feet) | Total (Square Feet) |
|---|---|---|---|---|
| Powder Room | N/A | 12.92 | 18.30 | 236.44 |
| Master Bedroom | N/A | 43.06 | 43.06 | 1,854.16 |
| Master Bathroom | N/A | 23.68 | 23.68 | 560.74 |
| Living/Dining | N/A | 60.28 | 41.98 | 2,530.55 |
| Kitchen | N/A | 25.83 | 27.99 | 722.98 |
Unit 304
1
2
N/A
N/A
3
N/A
N/A
N/A
N/A
41 Square Feet
N/A
708 Square Feet
749 Square Feet
This is an Apartment in Residences 16
This includes:
| Title | Floor | Width (Square Feet) | Length (Square Feet) | Total (Square Feet) |
|---|---|---|---|---|
| Powder Room | N/A | 12.92 | 18.30 | 236.44 |
| Master Bedroom | N/A | 43.06 | 43.06 | 1,854.16 |
| Master Bathroom | N/A | 23.68 | 23.68 | 560.74 |
| Living/Dining | N/A | 60.28 | 41.98 | 2,530.55 |
| Kitchen | N/A | 25.83 | 27.99 | 722.98 |
Unit 305
1
2
N/A
N/A
3
N/A
N/A
N/A
N/A
36 Square Feet
N/A
742 Square Feet
778 Square Feet
This is an Apartment in Residences 16
This includes:
| Title | Floor | Width (Square Feet) | Length (Square Feet) | Total (Square Feet) |
|---|---|---|---|---|
| Powder Room | N/A | 12.92 | 22.60 | 291.99 |
| Master Bedroom | N/A | 41.98 | 39.83 | 1,672.06 |
| Master Bathroom | N/A | 22.60 | 25.83 | 583.76 |
| Living/Dining | N/A | 41.98 | 58.13 | 2,440.30 |
| Kitchen | N/A | 25.83 | 41.98 | 1,084.34 |
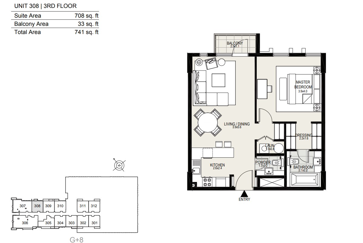
Unit 308
1
2
N/A
N/A
3
N/A
N/A
N/A
N/A
33 Square Feet
N/A
708 Square Feet
741 Square Feet
This is an Apartment in Residences 16
This includes:
| Title | Floor | Width (Square Feet) | Length (Square Feet) | Total (Square Feet) |
|---|---|---|---|---|
| Powder Room | N/A | 12.92 | 18.30 | 236.44 |
| Master Bedroom | N/A | 43.06 | 41.98 | 1,807.66 |
| Master Bathroom | N/A | 23.68 | 22.60 | 535.17 |
| Living/Dining | N/A | 60.28 | 41.98 | 2,530.55 |
| Kitchen | N/A | 25.83 | 27.99 | 722.98 |
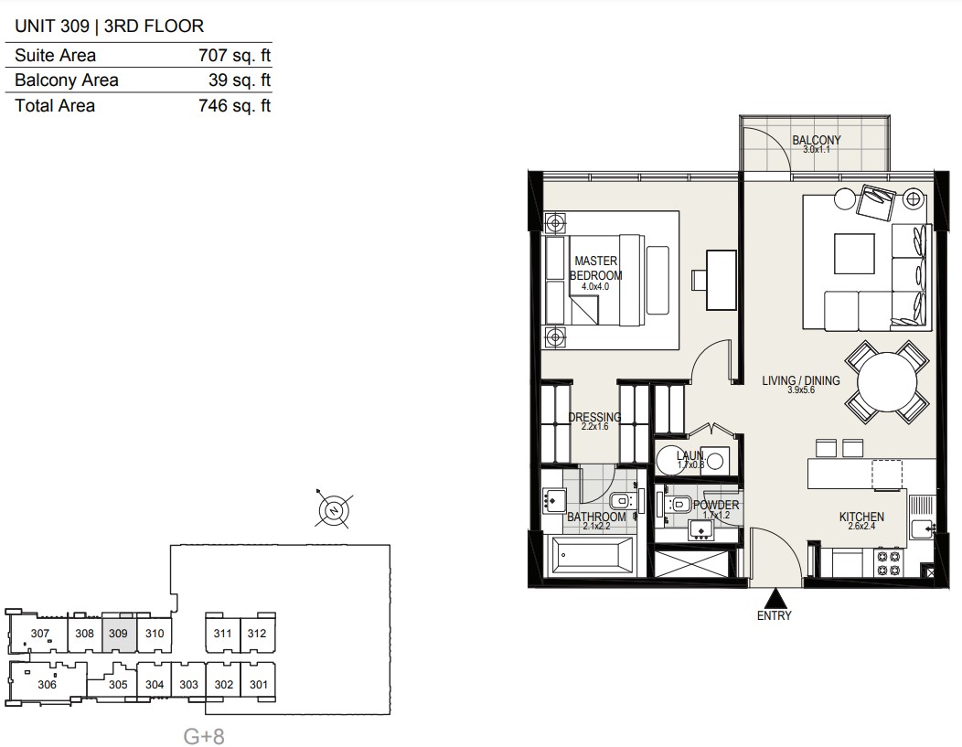
Unit 309
1
2
N/A
N/A
3
N/A
N/A
N/A
N/A
39 Square Feet
N/A
707 Square Feet
746 Square Feet
This is an Apartment in Residences 16
This includes:
| Title | Floor | Width (Square Feet) | Length (Square Feet) | Total (Square Feet) |
|---|---|---|---|---|
| Powder Room | N/A | 12.92 | 18.30 | 236.44 |
| Master Bedroom | N/A | 43.06 | 43.06 | 1,854.16 |
| Master Bathroom | N/A | 23.68 | 22.60 | 535.17 |
| Living/Dining | N/A | 60.28 | 41.98 | 2,530.55 |
| Kitchen | N/A | 25.83 | 27.99 | 722.98 |
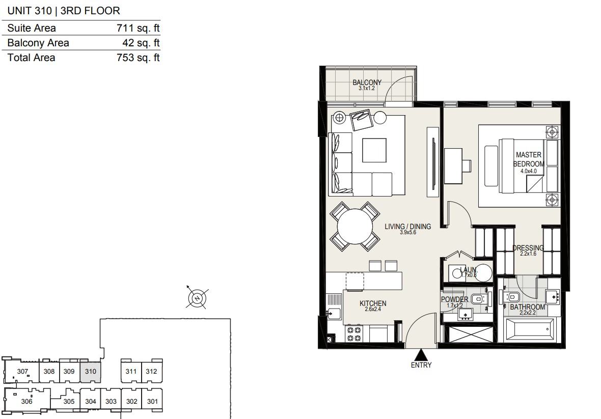
Unit 310
1
2
N/A
N/A
3
N/A
N/A
N/A
N/A
42 Square Feet
N/A
711 Square Feet
753 Square Feet
This is an Apartment in Residences 16
This includes:
| Title | Floor | Width (Square Feet) | Length (Square Feet) | Total (Square Feet) |
|---|---|---|---|---|
| Powder Room | N/A | 12.92 | 18.30 | 236.44 |
| Master Bedroom | N/A | 43.06 | 43.06 | 1,854.16 |
| Master Bathroom | N/A | 23.68 | 23.68 | 560.74 |
| Living/Dining | N/A | 60.28 | 41.98 | 2,530.55 |
| Kitchen | N/A | 25.83 | 27.99 | 722.98 |
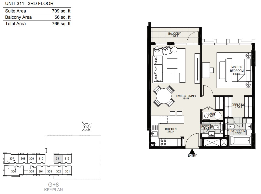
Unit 311
1
2
N/A
N/A
3
N/A
N/A
N/A
N/A
56 Square Feet
N/A
709 Square Feet
765 Square Feet
This is an Apartment in Residences 16
This includes:
| Title | Floor | Width (Square Feet) | Length (Square Feet) | Total (Square Feet) |
|---|---|---|---|---|
| Powder Room | N/A | 12.92 | 18.30 | 236.44 |
| Master Bedroom | N/A | 43.06 | 43.06 | 1,854.16 |
| Master Bathroom | N/A | 23.68 | 23.68 | 560.74 |
| Living/Dining | N/A | 60.28 | 41.98 | 2,530.55 |
| Kitchen | N/A | 25.83 | 27.99 | 722.98 |
Unit 312
1
2
N/A
N/A
3
N/A
N/A
N/A
N/A
59 Square Feet
N/A
710 Square Feet
769 Square Feet
This is an Apartment in Residences 16
This includes:
| Title | Floor | Width (Square Feet) | Length (Square Feet) | Total (Square Feet) |
|---|---|---|---|---|
| Powder Room | N/A | 12.92 | 18.30 | 236.44 |
| Master Bedroom | N/A | 43.06 | 43.06 | 1,854.16 |
| Master Bathroom | N/A | 23.68 | 23.68 | 560.74 |
| Living/Dining | N/A | 60.28 | 41.98 | 2,530.55 |
| Kitchen | N/A | 25.83 | 27.99 | 722.98 |
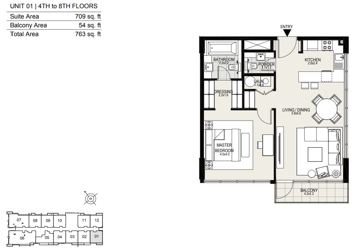
Unit 01
1
2
N/A
N/A
4-8
N/A
N/A
N/A
N/A
54 Square Feet
N/A
709 Square Feet
763 Square Feet
This is an Apartment in Residences 16
This includes:
| Title | Floor | Width (Square Feet) | Length (Square Feet) | Total (Square Feet) |
|---|---|---|---|---|
| Powder Room | N/A | 12.92 | 18.30 | 236.44 |
| Master Bedroom | N/A | 43.06 | 43.06 | 1,854.16 |
| Master Bathroom | N/A | 23.68 | 23.68 | 560.74 |
| Living/Dining | N/A | 60.28 | 41.98 | 2,530.55 |
| Kitchen | N/A | 25.83 | 27.99 | 722.98 |
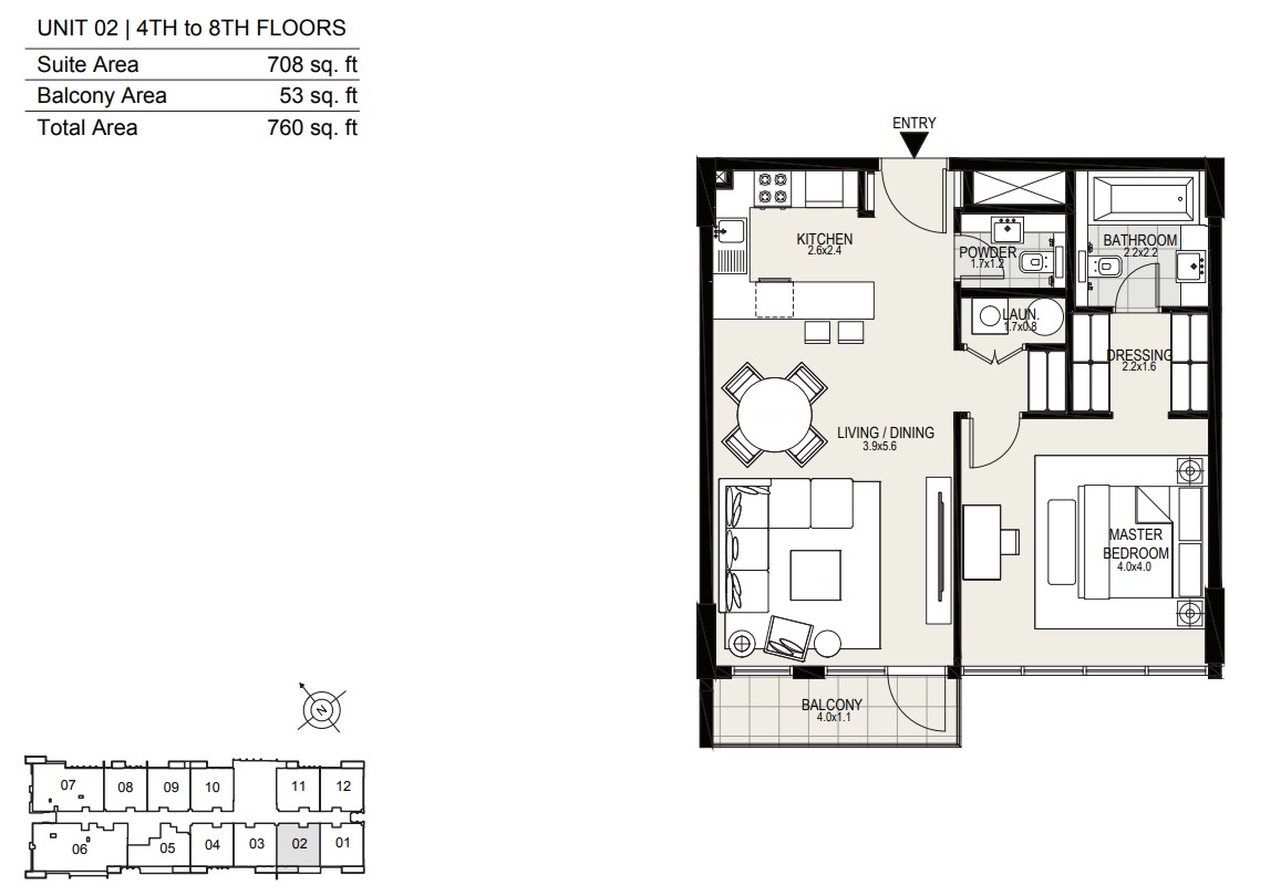
Unit 02
1
2
N/A
N/A
4-8
N/A
N/A
N/A
N/A
53 Square Feet
N/A
708 Square Feet
760 Square Feet
This is an Apartment in Residences 16
This includes:
| Title | Floor | Width (Square Feet) | Length (Square Feet) | Total (Square Feet) |
|---|---|---|---|---|
| Powder Room | N/A | 12.92 | 18.30 | 236.44 |
| Master Bedroom | N/A | 43.06 | 43.06 | 1,854.16 |
| Master Bathroom | N/A | 23.68 | 23.68 | 560.74 |
| Living/Dining | N/A | 60.28 | 41.98 | 2,530.55 |
| Kitchen | N/A | 25.83 | 27.99 | 722.98 |
Unit 03
1
2
N/A
N/A
4-8
N/A
N/A
N/A
N/A
52 Square Feet
N/A
708 Square Feet
760 Square Feet
This is an Apartment in Residences 16
This includes:
| Title | Floor | Width (Square Feet) | Length (Square Feet) | Total (Square Feet) |
|---|---|---|---|---|
| Powder Room | N/A | 12.92 | 18.30 | 236.44 |
| Master Bedroom | N/A | 43.06 | 43.06 | 1,854.16 |
| Master Bathroom | N/A | 23.68 | 23.68 | 560.74 |
| Living/Dining | N/A | 60.28 | 41.98 | 2,530.55 |
| Kitchen | N/A | 25.83 | 27.99 | 722.98 |
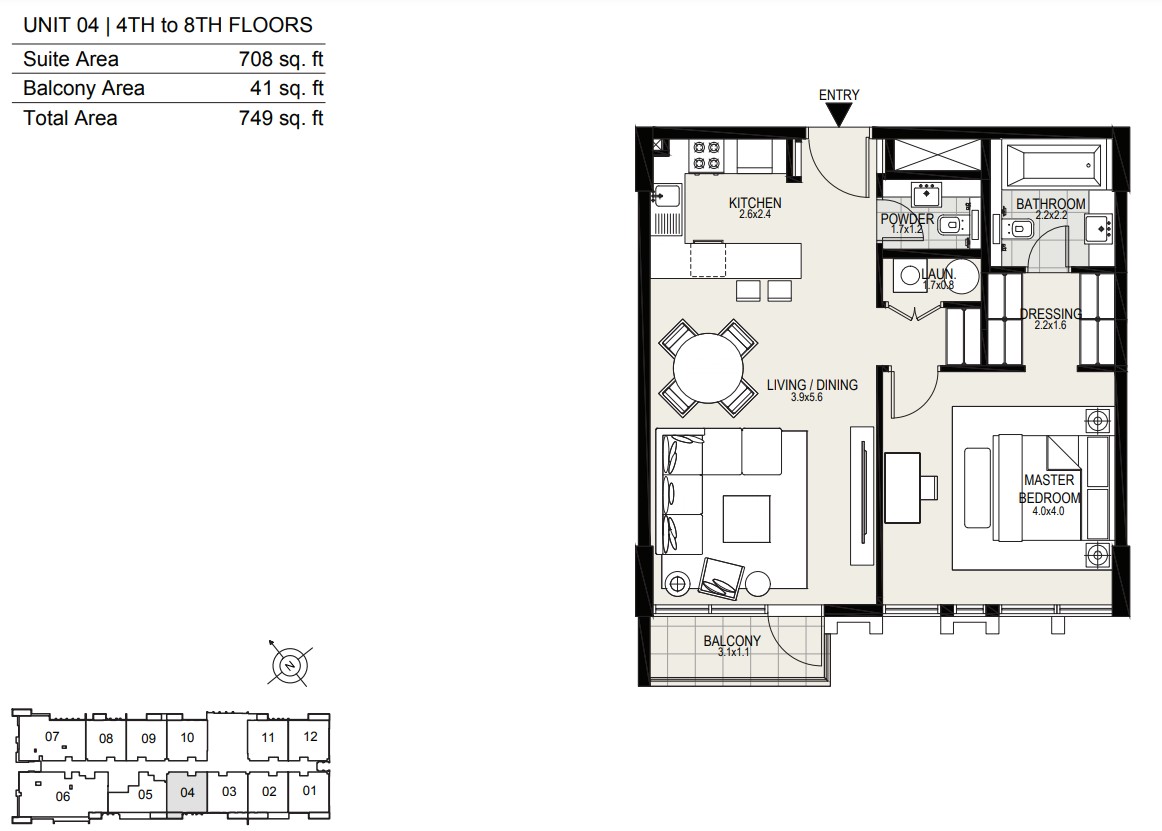
Unit 04
1
2
N/A
N/A
4-8
N/A
N/A
N/A
N/A
41 Square Feet
N/A
708 Square Feet
749 Square Feet
This is an Apartment in Residences 16
This includes:
| Title | Floor | Width (Square Feet) | Length (Square Feet) | Total (Square Feet) |
|---|---|---|---|---|
| Powder Room | N/A | 12.92 | 18.30 | 236.44 |
| Master Bedroom | N/A | 43.06 | 43.06 | 1,854.16 |
| Master Bathroom | N/A | 23.68 | 23.68 | 560.74 |
| Living/Dining | N/A | 60.28 | 41.98 | 2,530.55 |
| Kitchen | N/A | 25.83 | 27.99 | 722.98 |
Unit 05
1
2
N/A
N/A
4-8
N/A
N/A
N/A
N/A
43 Square Feet
N/A
742 Square Feet
785 Square Feet
This is an Apartment in Residences 16
This includes:
| Title | Floor | Width (Square Feet) | Length (Square Feet) | Total (Square Feet) |
|---|---|---|---|---|
| Powder Room | N/A | 12.92 | 22.60 | 291.99 |
| Master Bedroom | N/A | 41.98 | 39.83 | 1,672.06 |
| Master Bathroom | N/A | 22.60 | 24.76 | 559.58 |
| Living/Dining | N/A | 41.98 | 58.13 | 2,440.30 |
| Kitchen | N/A | 25.83 | 41.98 | 1,084.34 |
Unit 08
1
2
N/A
N/A
4-8
N/A
N/A
N/A
N/A
33 Square Feet
N/A
708 Square Feet
741 Square Feet
This is an Apartment in Residences 16
This includes:
| Title | Floor | Width (Square Feet) | Length (Square Feet) | Total (Square Feet) |
|---|---|---|---|---|
| Powder Room | N/A | 12.92 | 18.30 | 236.44 |
| Master Bedroom | N/A | 43.06 | 41.98 | 1,807.66 |
| Master Bathroom | N/A | 23.68 | 22.60 | 535.17 |
| Living/Dining | N/A | 60.28 | 41.98 | 2,530.55 |
| Kitchen | N/A | 25.83 | 27.99 | 722.98 |
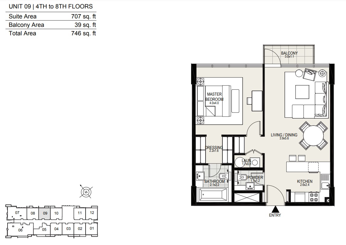
Unit 09
1
2
N/A
N/A
4-8
N/A
N/A
N/A
N/A
39 Square Feet
N/A
707 Square Feet
746 Square Feet
This is an Apartment in Residences 16
This includes:
| Title | Floor | Width (Square Feet) | Length (Square Feet) | Total (Square Feet) |
|---|---|---|---|---|
| Powder Room | N/A | 12.92 | 18.30 | 236.44 |
| Master Bedroom | N/A | 43.06 | 41.98 | 1,807.66 |
| Master Bathroom | N/A | 23.68 | 22.60 | 535.17 |
| Living/Dining | N/A | 60.28 | 41.98 | 2,530.55 |
| Kitchen | N/A | 25.83 | 27.99 | 722.98 |
Unit 10
1
2
N/A
N/A
4-8
N/A
N/A
N/A
N/A
42 Square Feet
N/A
711 Square Feet
752 Square Feet
This is an Apartment in Residences 16
This includes:
| Title | Floor | Width (Square Feet) | Length (Square Feet) | Total (Square Feet) |
|---|---|---|---|---|
| Powder Room | N/A | 12.92 | 18.30 | 236.44 |
| Master Bedroom | N/A | 43.06 | 41.98 | 1,807.66 |
| Master Bathroom | N/A | 23.68 | 22.60 | 535.17 |
| Living/Dining | N/A | 60.28 | 41.98 | 2,530.55 |
| Kitchen | N/A | 25.83 | 27.99 | 722.98 |
Unit 11
1
2
N/A
N/A
4-8
N/A
N/A
N/A
N/A
28 Square Feet
N/A
708 Square Feet
737 Square Feet
This is an Apartment in Residences 16
This includes:
| Title | Floor | Width (Square Feet) | Length (Square Feet) | Total (Square Feet) |
|---|---|---|---|---|
| Powder Room | N/A | 12.92 | 18.30 | 236.44 |
| Master Bedroom | N/A | 43.06 | 41.98 | 1,807.66 |
| Master Bathroom | N/A | 23.68 | 22.60 | 535.17 |
| Living/Dining | N/A | 60.28 | 41.98 | 2,530.55 |
| Kitchen | N/A | 25.83 | 27.99 | 722.98 |
Unit 12
1
2
N/A
N/A
4-8
N/A
N/A
N/A
N/A
56 Square Feet
N/A
710 Square Feet
766 Square Feet
This is an Apartment in Residences 16
This includes:
| Title | Floor | Width (Square Feet) | Length (Square Feet) | Total (Square Feet) |
|---|---|---|---|---|
| Powder Room | N/A | 12.92 | 18.30 | 236.44 |
| Master Bedroom | N/A | 43.06 | 43.06 | 1,854.16 |
| Master Bathroom | N/A | 23.68 | 21.53 | 509.83 |
| Living/Dining | N/A | 60.28 | 43.06 | 2,595.66 |
| Kitchen | N/A | 25.83 | 27.99 | 722.98 |
Unit G04
2
4
N/A
N/A
G
N/A
N/A
N/A
N/A
N/A
875 Square Feet
1,222 Square Feet
2,097 Square Feet
This is an Apartment in Residences 16
This includes:
| Title | Floor | Width (Square Feet) | Length (Square Feet) | Total (Square Feet) |
|---|---|---|---|---|
| Powder Room | N/A | 12.92 | 18.30 | 236.44 |
| Master Bedroom | N/A | 52.74 | 40.90 | 2,157.07 |
| Master Bathroom | N/A | 30.14 | 26.91 | 811.07 |
| Living/Dining | N/A | 50.59 | 63.51 | 3,212.97 |
| Kitchen | N/A | 27.99 | 50.59 | 1,416.01 |
| Bedroom 1 | N/A | 39.83 | 36.60 | 1,457.78 |
| Bathroom 1 | N/A | 17.22 | 24.76 | 426.37 |
| Maid Room | N/A | 17.22 | 31.22 | 537.61 |
| Maid Bathroom | N/A | 17.22 | 16.15 | 278.10 |
Unit 103
2
4
N/A
N/A
1
N/A
N/A
N/A
N/A
49 Square Feet
N/A
1,223 Square Feet
1,272 Square Feet
This is an Apartment in Residences 16
This includes:
| Title | Floor | Width (Square Feet) | Length (Square Feet) | Total (Square Feet) |
|---|---|---|---|---|
| Powder Room | N/A | 12.92 | 18.30 | 236.44 |
| Master Bedroom | N/A | 52.74 | 40.90 | 2,157.07 |
| Master Bathroom | N/A | 30.14 | 26.91 | 811.07 |
| Living/Dining | N/A | 49.51 | 63.51 | 3,144.38 |
| Kitchen | N/A | 27.99 | 50.59 | 1,416.01 |
| Bedroom 1 | N/A | 39.83 | 36.60 | 1,457.78 |
| Bathroom 1 | N/A | 17.22 | 24.76 | 426.37 |
| Maid Room | N/A | 17.22 | 31.22 | 537.61 |
| Maid Bathroom | N/A | 17.22 | 16.15 | 278.10 |
Unit 205
2
4
N/A
N/A
2
N/A
N/A
N/A
N/A
49 Square Feet
N/A
1,225 Square Feet
1,273 Square Feet
This is an Apartment in Residences 16
This includes:
| Title | Floor | Width (Square Feet) | Length (Square Feet) | Total (Square Feet) |
|---|---|---|---|---|
| Powder Room | N/A | 12.92 | 18.30 | 236.44 |
| Master Bedroom | N/A | 52.74 | 40.90 | 2,157.07 |
| Master Bathroom | N/A | 30.14 | 26.91 | 811.07 |
| Living/Dining | N/A | 49.51 | 63.51 | 3,144.38 |
| Kitchen | N/A | 27.99 | 50.59 | 1,416.01 |
| Bedroom 1 | N/A | 39.83 | 36.60 | 1,457.78 |
| Bathroom 1 | N/A | 17.22 | 24.76 | 426.37 |
| Maid Room | N/A | 17.22 | 31.22 | 537.61 |
| Maid Bathroom | N/A | 17.22 | 16.15 | 278.10 |
Unit 307
2
4
N/A
N/A
3
N/A
N/A
N/A
N/A
48 Square Feet
N/A
1,223 Square Feet
1,271 Square Feet
This is an Apartment in Residences 16
This includes:
| Title | Floor | Width (Square Feet) | Length (Square Feet) | Total (Square Feet) |
|---|---|---|---|---|
| Powder Room | N/A | 12.92 | 18.30 | 236.44 |
| Master Bedroom | N/A | 52.74 | 40.90 | 2,157.07 |
| Master Bathroom | N/A | 30.14 | 26.91 | 811.07 |
| Living/Dining | N/A | 49.51 | 63.51 | 3,144.38 |
| Kitchen | N/A | 27.99 | 50.59 | 1,416.01 |
| Bedroom 1 | N/A | 39.83 | 36.60 | 1,457.78 |
| Bathroom 1 | N/A | 17.22 | 24.76 | 426.37 |
| Maid Room | N/A | 17.22 | 31.22 | 537.61 |
| Maid Bathroom | N/A | 17.22 | 16.15 | 278.10 |
Unit 07
2
4
N/A
N/A
4-8
N/A
N/A
N/A
N/A
49 Square Feet
N/A
1,223 Square Feet
1,272 Square Feet
This is an Apartment in Residences 16
This includes:
| Title | Floor | Width (Square Feet) | Length (Square Feet) | Total (Square Feet) |
|---|---|---|---|---|
| Powder Room | N/A | 12.92 | 18.30 | 236.44 |
| Master Bedroom | N/A | 52.74 | 40.90 | 2,157.07 |
| Master Bathroom | N/A | 30.14 | 26.91 | 811.07 |
| Living/Dining | N/A | 49.51 | 63.51 | 3,144.38 |
| Kitchen | N/A | 27.99 | 50.59 | 1,416.01 |
| Bedroom 1 | N/A | 39.83 | 36.60 | 1,457.78 |
| Bathroom 1 | N/A | 17.22 | 24.76 | 426.37 |
| Maid Room | N/A | 17.22 | 31.22 | 537.61 |
| Maid Bathroom | N/A | 17.22 | 16.15 | 278.10 |
Unit G03
3
5
N/A
N/A
G
N/A
N/A
N/A
N/A
N/A
1,068 Square Feet
1,645 Square Feet
2,713 Square Feet
This is an Apartment in Residences 16
This includes:
| Title | Floor | Width (Square Feet) | Length (Square Feet) | Total (Square Feet) |
|---|---|---|---|---|
| Powder Room | N/A | 12.92 | 21.53 | 278.17 |
| Master Bedroom | N/A | 41.98 | 51.67 | 2,169.11 |
| Master Bathroom | N/A | 29.06 | 26.91 | 782.00 |
| Living/Dining | N/A | 44.13 | 73.20 | 3,230.32 |
| Kitchen | N/A | 22.60 | 54.90 | 1,240.74 |
| Bedroom 1 | N/A | 39.83 | 36.60 | 1,457.78 |
| Bathroom 1 | N/A | 26.91 | 17.22 | 463.39 |
| Maid Room | N/A | 19.38 | 22.60 | 437.99 |
| Maid Bathroom | N/A | 27.99 | 11.84 | 331.40 |
| Bedroom 2 | N/A | 39.83 | 36.60 | 1,457.78 |
| Bathroom 2 | N/A | 26.91 | 17.22 | 463.39 |
Unit 102
3
5
N/A
N/A
1
N/A
N/A
N/A
N/A
78 Square Feet
N/A
1,649 Square Feet
1,727 Square Feet
This is an Apartment in Residences 16
This includes:
| Title | Floor | Width (Square Feet) | Length (Square Feet) | Total (Square Feet) |
|---|---|---|---|---|
| Powder Room | N/A | 12.92 | 21.53 | 278.17 |
| Master Bedroom | N/A | 41.98 | 51.67 | 2,169.11 |
| Master Bathroom | N/A | 29.06 | 26.91 | 782.00 |
| Living/Dining | N/A | 45.21 | 74.27 | 3,357.75 |
| Kitchen | N/A | 22.60 | 54.90 | 1,240.74 |
| Bedroom 1 | N/A | 39.83 | 36.60 | 1,457.78 |
| Bathroom 1 | N/A | 26.91 | 17.22 | 463.39 |
| Maid Room | N/A | 19.38 | 22.60 | 437.99 |
| Maid Bathroom | N/A | 27.99 | 11.84 | 331.40 |
| Bedroom 2 | N/A | 39.83 | 36.60 | 1,457.78 |
| Bathroom 2 | N/A | 26.91 | 17.22 | 463.39 |
Unit 204
3
5
N/A
N/A
2
N/A
N/A
N/A
N/A
78 Square Feet
N/A
1,649 Square Feet
1,727 Square Feet
This is an Apartment in Residences 16
This includes:
| Title | Floor | Width (Square Feet) | Length (Square Feet) | Total (Square Feet) |
|---|---|---|---|---|
| Powder Room | N/A | 12.92 | 21.53 | 278.17 |
| Master Bedroom | N/A | 41.98 | 51.67 | 2,169.11 |
| Master Bathroom | N/A | 29.06 | 26.91 | 782.00 |
| Living/Dining | N/A | 45.21 | 74.27 | 3,357.75 |
| Kitchen | N/A | 22.60 | 54.90 | 1,240.74 |
| Bedroom 1 | N/A | 39.83 | 36.60 | 1,457.78 |
| Bathroom 1 | N/A | 26.91 | 17.22 | 463.39 |
| Maid Room | N/A | 19.38 | 22.60 | 437.99 |
| Maid Bathroom | N/A | 27.99 | 11.84 | 331.40 |
| Bedroom 2 | N/A | 39.83 | 36.60 | 1,457.78 |
| Bathroom 2 | N/A | 26.91 | 17.22 | 463.39 |
Unit 306
3
5
N/A
N/A
3
N/A
N/A
N/A
N/A
79 Square Feet
N/A
1,649 Square Feet
1,728 Square Feet
This is an Apartment in Residences 16
This includes:
| Title | Floor | Width (Square Feet) | Length (Square Feet) | Total (Square Feet) |
|---|---|---|---|---|
| Powder Room | N/A | 12.92 | 21.53 | 278.17 |
| Master Bedroom | N/A | 41.98 | 51.67 | 2,169.11 |
| Master Bathroom | N/A | 29.06 | 26.91 | 782.00 |
| Living/Dining | N/A | 45.21 | 74.27 | 3,357.75 |
| Kitchen | N/A | 22.60 | 54.90 | 1,240.74 |
| Bedroom 1 | N/A | 39.83 | 36.60 | 1,457.78 |
| Bathroom 1 | N/A | 26.91 | 17.22 | 463.39 |
| Maid Room | N/A | 19.38 | 22.60 | 437.99 |
| Maid Bathroom | N/A | 27.99 | 11.84 | 331.40 |
| Bedroom 2 | N/A | 39.83 | 36.60 | 1,457.78 |
| Bathroom 2 | N/A | 26.91 | 17.22 | 463.39 |
Unit 06
3
5
N/A
N/A
4-8
N/A
N/A
N/A
N/A
79 Square Feet
N/A
1,649 Square Feet
1,728 Square Feet
This is an Apartment in Residences 16
This includes:
| Title | Floor | Width (Square Feet) | Length (Square Feet) | Total (Square Feet) |
|---|---|---|---|---|
| Powder Room | N/A | 12.92 | 21.53 | 278.17 |
| Master Bedroom | N/A | 41.98 | 51.67 | 2,169.11 |
| Master Bathroom | N/A | 29.06 | 26.91 | 782.00 |
| Living/Dining | N/A | 45.21 | 74.27 | 3,357.75 |
| Kitchen | N/A | 22.60 | 54.90 | 1,240.74 |
| Bedroom 1 | N/A | 39.83 | 36.60 | 1,457.78 |
| Bathroom 1 | N/A | 26.91 | 17.22 | 463.39 |
| Maid Room | N/A | 19.38 | 22.60 | 437.99 |
| Maid Bathroom | N/A | 27.99 | 11.84 | 331.40 |
| Bedroom 2 | N/A | 39.83 | 36.60 | 1,457.78 |
| Bathroom 2 | N/A | 26.91 | 17.22 | 463.39 |
.jpeg)
.jpg)