Service Charges
Completion Status
Payment Plan
Handover
| Description | Milestone Event | (%) Value |
|---|---|---|
| Down Payment | Immediate | 20% |
| 1st Installment | Within 3 Months of Sale Date | 5% |
| 2nd Installment | Within 9 Months of Sale Date | 5% |
| 3rd Installment | Within 18 Months of Sale Date | 5% |
| 4th Installment | Within 30 Months of Sale Date | 5% |
| 5th Installment | Within 44 Months of Sale Date | 5% |
| 6th Installment | Within 60 Months of Sale Date | 5% |
| 7th Installment | Within 78 Months of Sale Date | 5% |
| 8th Installment | Within 98 Months of Sale Date | 5% |
| Payment At Handover | On Completion | 40% |
Title :
Reef 1000
Type :
Free Hold
Project Number :
3219
Completion Status :
Under Construction
Life Cycle :
Developing
Master Development :
Dubailand Residence Complex
Developer :
Plot Number :
6488594(RC-AR31_03)
Project Configuration :
G+1P+6+R
Number Of Units :
126
Number Of Floor :
8
Plot Area :
39,913 Square Feet
Built Up Area :
99,659 Square Feet
Construction Status :
10.19
Launch Date :
01-Aug-2024
Registration Date :
09-Oct-2024
Construction Started Date :
01-Nov-2024
Anticipated Completion Date :
30-Dec-2026
Cost Consultants :
N/A
Piling Contractors :
N/A
Handover Date :
01-Dec-2026
Main Contractors :
N/A
Sub Contractors :
N/A
Architects :
N/A
MEP Contractors :
N/A
Project Managers :
N/A
| Title | Floor Level | From | To | Action |
|---|---|---|---|---|
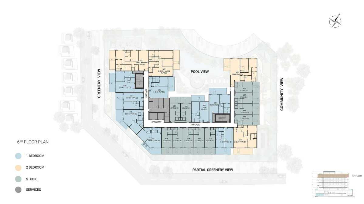
| 7th Floor | 7th | N/A | N/A | View Details |
| 6th Floor | 6th | N/A | N/A | View Details |
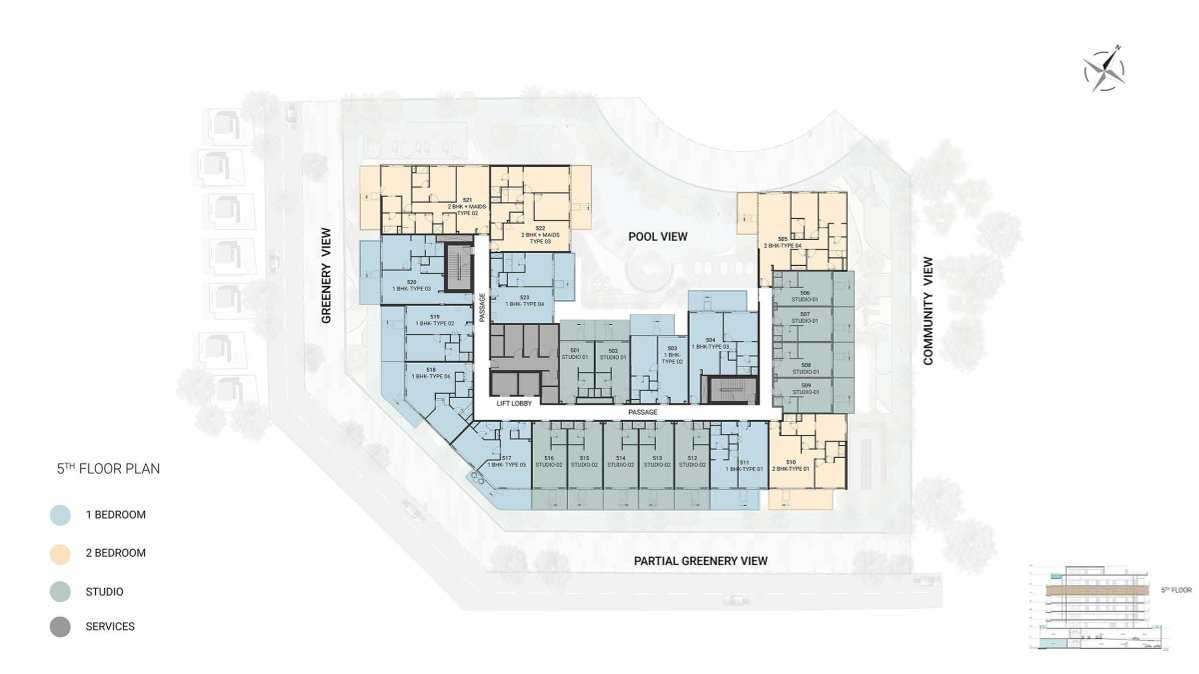
| 5th Floor | 5th | N/A | N/A | View Details |
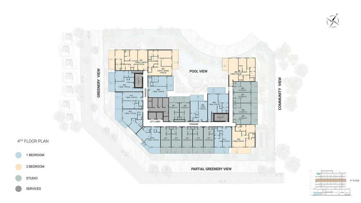
| 4th Floor | 4th | N/A | N/A | View Details |
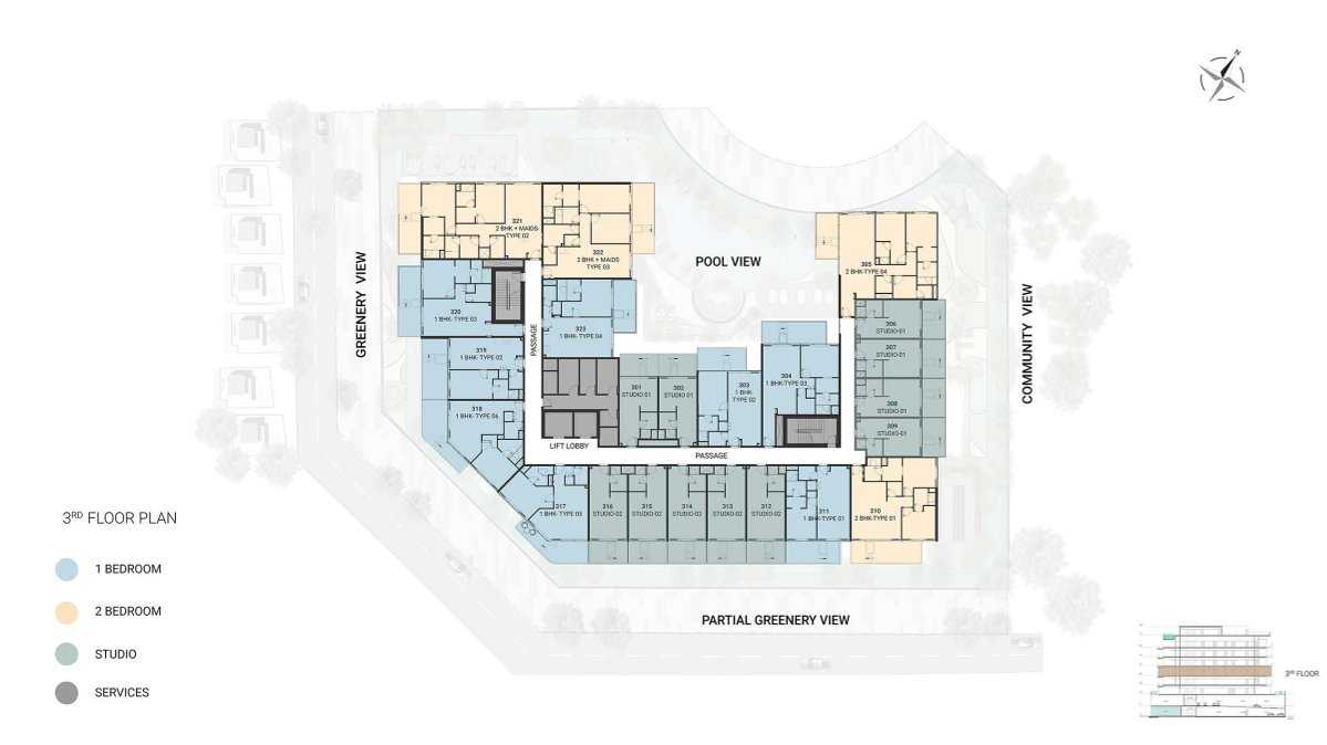
| 3rd Floor | 3rd | N/A | N/A | View Details |
| 2nd Floor | 2nd | N/A | N/A | View Details |
| 1st Floor | 1st | N/A | N/A | View Details |
7th Floor
7th
N/A
N/A
N/A
6th Floor
6th
N/A
N/A
N/A
5th Floor
5th
N/A
N/A
N/A
4th Floor
4th
N/A
N/A
N/A
3rd Floor
3rd
N/A
N/A
N/A
2nd Floor
2nd
N/A
N/A
N/A
1st Floor
1st
N/A
N/A
N/A
| Title | Action |
|---|---|
| TYPE-1 | View Details |
| TYPE - 2 | View Details |
| TYPE - 1 | View Details |
| TYPE - 2 | View Details |
| TYPE - 3 | View Details |
| TYPE - 4 | View Details |
| TYPE - 5 | View Details |
| TYPE - 6 | View Details |
| TYPE - 7 | View Details |
| TYPE - 8 | View Details |
| TYPE 1 | View Details |
| TYPE 2 | View Details |
| TYPE - 3 | View Details |
| TYPE - 4 | View Details |
| TYPE - 5 | View Details |
| TYPE - 6 | View Details |
| TYPE - 1 | View Details |
| TYPE - 2 | View Details |
| TYPE - 3 | View Details |
| TYPE - 4 | View Details |
TYPE-1
Studio
1
N/A
Apartment
3RD-6TH
N/A
N/A
N/A
N/A
1,114 Square Feet
N/A
N/A
436 Square Feet
| Title | Floor | Width (Square Feet) | Length (Square Feet) | Total (Square Feet) |
|---|---|---|---|---|
| Sunken Seating | 3RD-6TH | N/A | N/A | N/A |
| Studio | 3RD-6TH | 32.83 | 43.59 | 1,431.06 |
| Kitchen | 3RD-6TH | N/A | N/A | N/A |
| Bathroom | 3RD-6TH | 19.38 | 27.99 | 542.45 |
TYPE - 2
Studio
1
N/A
Apartment
3RD-6TH
N/A
N/A
N/A
N/A
110 Square Feet
N/A
N/A
477 Square Feet
| Title | Floor | Width (Square Feet) | Length (Square Feet) | Total (Square Feet) |
|---|---|---|---|---|
| Sunken Seating | 3RD-6TH | N/A | N/A | N/A |
| Studio | 3RD-6TH | 55.97 | 43.59 | 2,439.73 |
| Kitchen | 3RD-6TH | N/A | N/A | N/A |
| Bathroom | 3RD-6TH | 26.91 | 19.38 | 521.52 |
TYPE - 1
1
1
N/A
Apartment
3RD-6TH
N/A
N/A
N/A
N/A
150 Square Feet
N/A
N/A
761 Square Feet
| Title | Floor | Width (Square Feet) | Length (Square Feet) | Total (Square Feet) |
|---|---|---|---|---|
| Sunken Seating | 3RD-6TH | N/A | N/A | N/A |
| Bedroom | 3RD-6TH | 34.44 | 36.60 | 1,260.50 |
| Dress | 3RD-6TH | 12.92 | 22.60 | 291.99 |
| Bathroom | 3RD-6TH | 29.06 | 22.60 | 656.76 |
| Utility | 3RD-6TH | 10.76 | 10.76 | 115.78 |
| Kitchen | 3RD-6TH | 31.22 | 37.67 | 1,176.06 |
| Living/Dining | 3RD-6TH | 37.67 | 54.90 | 2,068.08 |
| Powder | 3RD-6TH | 16.15 | 20.45 | 330.27 |
TYPE - 2
1
1
N/A
Apartment
3RD-6TH
N/A
N/A
N/A
N/A
183 Square Feet
N/A
N/A
778 Square Feet
| Title | Floor | Width (Square Feet) | Length (Square Feet) | Total (Square Feet) |
|---|---|---|---|---|
| Sunken Seating | 3RD-6TH | N/A | N/A | N/A |
| Bedroom | 3RD-6TH | 33.37 | 50.59 | 1,688.19 |
| Bathroom | 3RD-6TH | 29.06 | 22.60 | 656.76 |
| Utility | 3RD-6TH | 9.69 | 10.76 | 104.26 |
| Powder | 3RD-6TH | 16.15 | 21.53 | 347.71 |
| Kitchen | 3RD-6TH | 36.60 | 35.52 | 1,300.03 |
| Living/Dining | 3RD-6TH | 36.60 | 50.59 | 1,851.59 |
TYPE - 3
1
1
N/A
Apartment
3RD-6TH
N/A
N/A
N/A
N/A
200 Square Feet
N/A
N/A
954 Square Feet
| Title | Floor | Width (Square Feet) | Length (Square Feet) | Total (Square Feet) |
|---|---|---|---|---|
| Sunken Seating | 3RD-6TH | N/A | N/A | N/A |
| Bedroom | 3RD-6TH | 44.13 | 37.67 | 1,662.38 |
| Dress | 3RD-6TH | 26.91 | 17.22 | 463.39 |
| Bathroom | 3RD-6TH | 26.91 | 23.68 | 637.23 |
| Utility | 3RD-6TH | 9.69 | 9.69 | 93.90 |
| Powder | 3RD-6TH | 29.06 | 20.45 | 594.28 |
| Kitchen | 3RD-6TH | 30.14 | 38.75 | 1,167.93 |
| Living/Dining | 3RD-6TH | 43.06 | 50.59 | 2,178.41 |
TYPE - 4
1
1
N/A
Apartment
3RD - 6TH
N/A
N/A
N/A
N/A
154 Square Feet
N/A
N/A
852 Square Feet
| Title | Floor | Width (Square Feet) | Length (Square Feet) | Total (Square Feet) |
|---|---|---|---|---|
| Sunken Seating | 3RD-6TH | N/A | N/A | N/A |
| Bedroom | 3RD-6TH | 43.06 | 36.06 | 1,552.74 |
| Bathroom | 3RD-6TH | 26.91 | 24.76 | 666.29 |
| Utility | 3RD-6TH | 15.07 | 9.69 | 146.03 |
| Powder | 3RD-6TH | 21.53 | 20.45 | 440.29 |
| Kitchen | 3RD-6TH | 46.29 | 32.29 | 1,494.70 |
| Living/Dining | 3RD-6TH | 46.29 | 47.90 | 2,217.29 |
TYPE - 5
1
1
N/A
Apartment
3RD -6TH
N/A
N/A
N/A
N/A
176 Square Feet
N/A
N/A
833 Square Feet
| Title | Floor | Width (Square Feet) | Length (Square Feet) | Total (Square Feet) |
|---|---|---|---|---|
| Sunken Seating | 3RD-6TH | N/A | N/A | N/A |
| Bedroom | 3RD-6TH | 34.44 | 46.29 | 1,594.23 |
| Dress | 3RD-6TH | 19.38 | 24.76 | 479.85 |
| Bathroom | 3RD-6TH | 34.23 | 22.60 | 773.60 |
| Utility | 3RD-6TH | 9.69 | 10.76 | 104.26 |
| Powder | 3RD-6TH | 2.00 | 1.40 | 2.80 |
| Kitchen | 3RD-6TH | 26.91 | 26.91 | 724.15 |
| Living | 3RD-6TH | 36.60 | 38.75 | 1,418.25 |
| Dining | 3RD-6TH | 36.60 | 30.14 | 1,103.12 |
TYPE - 6
1
1
N/A
Apartment
3RD -6TH
N/A
N/A
N/A
N/A
189 Square Feet
N/A
N/A
858 Square Feet
| Title | Floor | Width (Square Feet) | Length (Square Feet) | Total (Square Feet) |
|---|---|---|---|---|
| Sunken Seating | 3RD-6TH | N/A | N/A | N/A |
| Bedroom | 3RD-6TH | 34.44 | 44.13 | 1,519.84 |
| Bathroom | 3RD-6TH | 26.91 | 34.44 | 926.78 |
| Utility | 3RD-6TH | 10.76 | 9.69 | 104.26 |
| Powder | 3RD-6TH | 16.15 | 19.38 | 312.99 |
| Kitchen | 3RD-6TH | 25.83 | 37.67 | 973.02 |
| Living | 3RD-6TH | 31.75 | 37.67 | 1,196.02 |
| Dining | 3RD-6TH | 34.44 | 38.75 | 1,334.55 |
TYPE - 7
1
1
N/A
Apartment
1ST
N/A
N/A
N/A
N/A
237 Square Feet
N/A
N/A
992 Square Feet
| Title | Floor | Width (Square Feet) | Length (Square Feet) | Total (Square Feet) |
|---|---|---|---|---|
| Sunken Seating | 1ST | N/A | N/A | N/A |
| Bedroom | 1ST | 37.67 | 47.36 | 1,784.05 |
| Bathroom | 1ST | 30.14 | 24.76 | 746.27 |
| Utility | 1ST | 13.46 | 9.69 | 130.43 |
| Powder | 1ST | 16.15 | 19.38 | 312.99 |
| Kitchen | 1ST | 43.06 | 32.29 | 1,390.41 |
| Living | 1ST | 43.06 | 50.05 | 2,155.15 |
| Dining | 1ST | N/A | N/A | N/A |
TYPE - 8
1
1
N/A
Apartment
7TH
N/A
N/A
N/A
N/A
148 Square Feet
N/A
N/A
840 Square Feet
| Title | Floor | Width (Square Feet) | Length (Square Feet) | Total (Square Feet) |
|---|---|---|---|---|
| Sunken Seating | 7TH | N/A | N/A | N/A |
| Bedroom | 7TH | 36.06 | 44.13 | 1,591.33 |
| Bathroom | 7TH | 24.22 | 22.60 | 547.37 |
| Utility | 7TH | 10.76 | 13.99 | 150.53 |
| Powder | 7TH | 16.15 | 25.83 | 417.15 |
| Kitchen | 7TH | 36.06 | 26.91 | 970.37 |
| Living/Dining | 7TH | 53.28 | 45.21 | 2,408.79 |
TYPE 1
2
2
N/A
Apartment
3RD -6TH
N/A
N/A
N/A
N/A
196 Square Feet
N/A
N/A
1,092 Square Feet
| Title | Floor | Width (Square Feet) | Length (Square Feet) | Total (Square Feet) |
|---|---|---|---|---|
| Sunken Seating | 3RD -6TH | N/A | N/A | N/A |
| Master Bedroom | 3RD -6TH | 34.44 | 39.29 | 1,353.15 |
| Master Bathroom | 3RD -6TH | 24.22 | 19.38 | 469.38 |
| Dress | 3RD -6TH | 26.91 | 23.14 | 622.70 |
| Powder | 3RD -6TH | 16.15 | 17.22 | 278.10 |
| Kitchen | 3RD -6TH | 22.60 | 40.37 | 912.36 |
| Living/Dining | 3RD -6TH | 45.21 | 57.59 | 2,603.64 |
| Bedroom 2 | 3RD -6TH | 33.37 | 38.75 | 1,293.09 |
| Bathroom 2 | 3RD -6TH | 19.38 | 24.76 | 479.85 |
TYPE 2
2
2
N/A
Apartment
3RD -6TH
N/A
N/A
N/A
N/A
208 Square Feet
N/A
N/A
1,356 Square Feet
| Title | Floor | Width (Square Feet) | Length (Square Feet) | Total (Square Feet) |
|---|---|---|---|---|
| Sunken Seating | 3RD -6TH | N/A | N/A | N/A |
| Master Bedroom | 3RD -6TH | 38.75 | 38.75 | 1,501.56 |
| Master Bathroom | 3RD -6TH | 21.53 | 25.83 | 556.12 |
| Dress | 3RD -6TH | 18.30 | 21.53 | 394.00 |
| Powder | 3RD -6TH | 16.15 | 25.83 | 417.15 |
| Kitchen | 3RD -6TH | 26.91 | 41.98 | 1,129.68 |
| Living/Dining | 3RD -6TH | 60.28 | 41.98 | 2,530.55 |
| Bedroom 2 | 3RD -6TH | 33.37 | 46.29 | 1,544.70 |
| Bathroom 2 | 3RD -6TH | 16.15 | 25.83 | 417.15 |
| Maid | 3RD-6TH | 21.53 | 25.83 | 556.12 |
TYPE - 3
2
2
N/A
Apartment
3RD -6TH
N/A
N/A
N/A
N/A
201 Square Feet
N/A
N/A
1,274 Square Feet
| Title | Floor | Width (Square Feet) | Length (Square Feet) | Total (Square Feet) |
|---|---|---|---|---|
| Sunken Seating | 3RD -6TH | N/A | N/A | N/A |
| Master Bedroom | 3RD -6TH | 32.83 | 59.74 | 1,961.26 |
| Master Bathroom | 3RD -6TH | 21.53 | 25.30 | 544.71 |
| Dress | 3RD -6TH | 18.30 | 25.30 | 462.99 |
| Powder | 3RD -6TH | 16.15 | 12.92 | 208.66 |
| Kitchen | 3RD -6TH | 26.91 | 35.52 | 955.84 |
| Living/Dining | 3RD -6TH | 58.66 | 38.75 | 2,273.08 |
| Bedroom 2 | 3RD -6TH | 34.44 | 45.75 | 1,575.63 |
| Bathroom 2 | 3RD -6TH | 16.15 | 27.45 | 443.32 |
| Maid | 3RD-6TH | 24.76 | 23.68 | 586.32 |
TYPE - 4
2
2
N/A
Apartment
3RD -6TH
N/A
N/A
N/A
N/A
129 Square Feet
N/A
N/A
1,237 Square Feet
| Title | Floor | Width (Square Feet) | Length (Square Feet) | Total (Square Feet) |
|---|---|---|---|---|
| Sunken Seating | 3RD -6TH | N/A | N/A | N/A |
| Master Bedroom | 3RD -6TH | 45.21 | 35.52 | 1,605.86 |
| Master Bathroom | 3RD -6TH | 22.60 | 25.83 | 583.76 |
| Dress | 3RD -6TH | 16.15 | 22.60 | 364.99 |
| Powder | 3RD -6TH | 19.38 | 19.38 | 375.58 |
| Kitchen | 3RD -6TH | 26.91 | 38.75 | 1,042.76 |
| Living/Dining | 3RD -6TH | 40.90 | 72.66 | 2,971.79 |
| Bedroom 2 | 3RD -6TH | 34.44 | 33.37 | 1,149.26 |
| Bathroom 2 | 3RD -6TH | 16.15 | 25.83 | 417.15 |
| Maid | 3RD-6TH | 26.91 | 25.83 | 695.09 |
TYPE - 5
2
2
N/A
Apartment
1ST
N/A
N/A
N/A
N/A
286 Square Feet
N/A
N/A
1,210 Square Feet
| Title | Floor | Width (Square Feet) | Length (Square Feet) | Total (Square Feet) |
|---|---|---|---|---|
| Sunken Seating | 1st | N/A | N/A | N/A |
| Master Bedroom | 1st | 45.21 | 35.52 | 1,605.86 |
| Master Bathroom | 1st | 17.22 | 29.60 | 509.71 |
| Dress | 1st | 18.84 | 24.76 | 466.48 |
| Powder | 1st | 19.91 | 17.22 | 342.85 |
| Kitchen | 1st | 26.91 | 38.75 | 1,042.76 |
| Living/Dining | 1st | 59.20 | 38.75 | 2,294.00 |
| Bedroom 2 | 1st | 34.44 | 45.75 | 1,575.63 |
| Bathroom 2 | 1st | 25.83 | 26.37 | 681.14 |
| Maid | 1st | 25.83 | 22.07 | 570.07 |
TYPE - 6
2
2
N/A
Apartment
7TH
N/A
N/A
N/A
N/A
344 Square Feet
N/A
N/A
1,281 Square Feet
| Title | Floor | Width (Square Feet) | Length (Square Feet) | Total (Square Feet) |
|---|---|---|---|---|
| Sunken Seating | 7TH | N/A | N/A | N/A |
| Master Bedroom | 7TH | 43.59 | 38.75 | 1,689.11 |
| Master Bathroom | 7TH | 29.60 | 25.83 | 764.57 |
| Powder | 7TH | 25.30 | 15.61 | 394.93 |
| Kitchen | 7TH | 26.91 | 42.52 | 1,144.21 |
| Living/Dining | 7TH | 59.20 | 44.67 | 2,644.46 |
| Bedroom 2 | 7TH | 40.90 | 33.15 | 1,355.84 |
| Bathroom 2 | 7TH | 27.45 | 19.38 | 531.98 |
TYPE - 1
3
3
Lower/Upper
Townhouse
1ST
N/A
N/A
N/A
N/A
312 Square Feet
N/A
N/A
1,823 Square Feet
| Title | Floor | Width (Square Feet) | Length (Square Feet) | Total (Square Feet) |
|---|---|---|---|---|
| Private Garden | Lower | N/A | N/A | N/A |
| Kitchen | Lower | 51.13 | 34.44 | 1,760.92 |
| Dining | Lower | 50.59 | 49.51 | 2,504.71 |
| Living | Lower | 47.36 | 39.83 | 1,886.35 |
| Power | Lower | 19.38 | 13.99 | 271.13 |
| Maid | Lower | 26.37 | 25.83 | 681.14 |
| Bathroom | Lower | 17.22 | 16.15 | 278.10 |
| Sunken Seating | Upper | N/A | N/A | N/A |
| Master Bedroom | Upper | 60.82 | 40.90 | 2,487.54 |
| Dress | Upper | 20.45 | 27.99 | 572.40 |
| Master Bathroom | Upper | 27.99 | 40.90 | 1,144.79 |
| Bedroom 1 | Upper | 34.44 | 41.98 | 1,445.79 |
| Bathroom 1 | Upper | 21.53 | 34.44 | 741.49 |
TYPE - 2
3
3
Lower/Upper
Townhouse
1ST
N/A
N/A
N/A
N/A
292 Square Feet
N/A
N/A
1,814 Square Feet
| Title | Floor | Width (Square Feet) | Length (Square Feet) | Total (Square Feet) |
|---|---|---|---|---|
| Balcony | Lower | N/A | N/A | N/A |
| Kitchen | Lower | 51.13 | 34.44 | 1,760.92 |
| Dining | Lower | 50.59 | 49.51 | 2,504.71 |
| Living | Lower | 47.36 | 39.83 | 1,886.35 |
| Power | Lower | 19.38 | 13.99 | 271.13 |
| Maid | Lower | 19.38 | 23.68 | 458.92 |
| Bathroom | Lower | 22.07 | 27.99 | 617.74 |
| Sunken Seating | Upper | N/A | N/A | N/A |
| Master Bedroom | Upper | 61.89 | 40.90 | 2,531.30 |
| Dress | Upper | 20.45 | 27.99 | 572.40 |
| Master Bathroom | Upper | 27.99 | 40.90 | 1,144.79 |
| Bedroom 1 | Upper | 33.37 | 40.90 | 1,364.83 |
| Bathroom 1 | Upper | 21.53 | 33.37 | 718.46 |
TYPE - 3
3
3
Upper/Lower
Townhouse
1ST
N/A
N/A
N/A
N/A
321 Square Feet
N/A
N/A
1,832 Square Feet
| Title | Floor | Width (Square Feet) | Length (Square Feet) | Total (Square Feet) |
|---|---|---|---|---|
| Balcony | Lower | N/A | N/A | N/A |
| Kitchen | Lower | 35.52 | 40.37 | 1,433.94 |
| Dining | Lower | 51.24 | 53.82 | 2,757.74 |
| Living | Lower | 50.59 | 39.83 | 2,015.00 |
| Power | Lower | 19.38 | 19.38 | 375.58 |
| Maid | Lower | 19.38 | 23.68 | 458.92 |
| Bathroom | Lower | 22.07 | 27.99 | 617.74 |
| Sunken Seating | Upper | N/A | N/A | N/A |
| Master Bedroom | Upper | 38.75 | 41.98 | 1,626.73 |
| Dress | Upper | 20.45 | 27.99 | 572.40 |
| Master Bathroom | Upper | 27.99 | 29.60 | 828.50 |
| Bedroom 1 | Upper | 35.52 | 40.90 | 1,452.77 |
| Bathroom 1 | Upper | 21.53 | 35.52 | 764.75 |
TYPE - 4
3
3
Lower/Upper
Townhouse
1ST
N/A
N/A
N/A
N/A
305 Square Feet
N/A
N/A
1,622 Square Feet
| Title | Floor | Width (Square Feet) | Length (Square Feet) | Total (Square Feet) |
|---|---|---|---|---|
| Private Garden | Lower | N/A | N/A | N/A |
| Bedroom 1 | Lower | 43.59 | 34.44 | 1,501.24 |
| Dress | Lower | 23.68 | 25.83 | 611.65 |
| Bathroom 1 | Lower | 23.68 | 30.14 | 713.72 |
| Living/Dining | Lower | 44.67 | 37.14 | 1,659.04 |
| Kitchen | Lower | 25.30 | 47.90 | 1,211.87 |
| Powder | Lower | 18.30 | 19.38 | 354.65 |
| Sunken Seating | Upper | N/A | N/A | N/A |
| Master Bedroom | Upper | 34.44 | 69.97 | 2,409.77 |
| Master Bathroom | Upper | 23.68 | 19.91 | 471.47 |
| Lounge | Upper | 38.21 | 37.14 | 1,419.12 |
| Utility | Upper | 12.92 | 16.15 | 208.66 |
.webp)
.webp)
.webp)
.webp)
.webp)
.webp)
.webp)
.webp)
.webp)
.webp)
.webp)
.webp)
.webp)
.webp)
.webp)
.webp)
.webp)
.webp)
.webp)
.webp)
.webp)
.webp)
.webp)
.webp)
.webp)
.webp)
.webp)
.webp)
.webp)
.webp)
.webp)
.webp)
.webp)
.webp)
.webp)
.webp)
.webp)
.webp)
.webp)
.webp)
.webp)
.webp)
.webp)