Title :
Noora Tower
Type :
Free Hold
Project Number :
N/A
Completion Status :
Completed/Ready
Life Cycle :
Mature
Master Development :
Al Habtoor City
Developer :
Plot Number :
3460106
Project Configuration :
N/A
Number Of Units :
546
Number Of Floor :
70
Plot Area :
N/A
Built Up Area :
N/A
Status Percentage :
100
Launch Date :
01-Feb-2009
Registration Date :
N/A
Construction Started Date :
N/A
Anticipated Completion Date :
01-Aug-2017
Cost Consultants :
N/A
Piling Contractors :
N/A
Handover Date :
01-Mar-2022
Main Contractors :
N/A
Sub Contractors :
N/A
Architects :
N/A
MEP Contractors :
N/A
Project Managers :
N/A
Noora Tower:
The Al Habtoor Group built the opulent residential tower Noora Tower in Al Habtoor City, Dubai, which features a selection of ultra-luxury apartments and penthouses with one to seven bedrooms. The developers' 70-story skyscraper is conveniently close to Sheikh Zayed Road and situated in the center of Dubai. The apartments' floor-to-ceiling windows and private balconies provide tenants with a view of the magnificent Dubai skyline.
The owners of this tower have a good sense of design, and that is reflected in every one of the apartments. Luxurious interiors and first-rate amenities adorn the exquisite flats and penthouses, paving the way for an opulent existence. Situated on the banks of the Dubai Water Canal, this developing neighborhood offers breathtaking views of the Dubai skyline
and the ultimate luxury of living in private surroundings.
The Residence Collection has over a thousand apartments. The largest pool deck in the United Arab Emirates,is one of the shared amenities. Other features include a yoga studio, a tennis academy featuring an indoor air-conditioned court, a clinic, a crèche, and a supermarket. Twelve penthouses, including two top floors with private party areas, are part of "The Ultimate Collection," three of which are four-story VIP penthouses.
Key point:
| Title | Floor Level | From | To | Action |
|---|---|---|---|---|
| Type A | 22-40 | 22 | 40 | View Details |
| Type A | 8-20 | 8 | 20 | View Details |
| Type-B | 42 | N/A | N/A | View Details |
| Type-B | 43 | N/A | N/A | View Details |
| Type-B | 44-62 | 44 | 62 | View Details |
| Type-C | 64 | N/A | N/A | View Details |
| Type C | 65 | N/A | N/A | View Details |
| Type C | 66 | N/A | N/A | View Details |
| Type D | 67 | N/A | N/A | View Details |
| Type-E | 68 | N/A | N/A | View Details |
| Type-E | 69 | N/A | N/A | View Details |
| Type-F | 70 | N/A | N/A | View Details |
| Type-F | 71 | N/A | N/A | View Details |
| Vip-Lounge | 73 | N/A | N/A | View Details |
Type A
22-40
22
40
N/A
Type A
8-20
8
20
N/A
Type-B
42
N/A
N/A
N/A
Type-B
43
N/A
N/A
N/A
Type-B
44-62
44
62
N/A
Type-C
64
N/A
N/A
N/A
Type C
65
N/A
N/A
N/A
Type C
66
N/A
N/A
N/A
Type D
67
N/A
N/A
N/A
Type-E
68
N/A
N/A
N/A
Type-E
69
N/A
N/A
N/A
Type-F
70
N/A
N/A
N/A
Type-F
71
N/A
N/A
N/A
Vip-Lounge
73
N/A
N/A
N/A
Unit 3
1
1
N/A
N/A
22-40
N/A
N/A
N/A
N/A
N/A
N/A
N/A
76 Square Meter
Al Habtoor Group Noora Tower Floor Plan 1
| Title | Floor | Width (Square Feet) | Length (Square Feet) | Total (Square Feet) |
|---|---|---|---|---|
| Bedroom | 22-40 | N/A | N/A | N/A |
| living | 22-40 | N/A | N/A | N/A |
| Kitchen | 22-40 | N/A | N/A | N/A |
| Corridor | 22-40 | N/A | N/A | N/A |
| Entrance | 22-40 | N/A | N/A | N/A |
Unit 5
1
1
N/A
N/A
22-40
N/A
N/A
N/A
N/A
N/A
N/A
N/A
81 Square Meter
Al Habtoor Group Noora Tower:
| Title | Floor | Width (Square Feet) | Length (Square Feet) | Total (Square Feet) |
|---|---|---|---|---|
| Bedroom | 22-40 | N/A | N/A | N/A |
| living | 22-40 | N/A | N/A | N/A |
| Kitchen | 22-40 | N/A | N/A | N/A |
| Corridor | 22-40 | N/A | N/A | N/A |
| Entrance | 22-40 | N/A | N/A | N/A |
Unit 6
1
1
N/A
N/A
22-40
N/A
N/A
N/A
N/A
N/A
N/A
N/A
97 Square Meter
Al Habtoor Group, Noora Tower
Entrance
Balcony
Bedroom
Corridor
Living
Kitchen
| Title | Floor | Width (Square Feet) | Length (Square Feet) | Total (Square Feet) |
|---|---|---|---|---|
| Bedroom | 22-40 | N/A | N/A | N/A |
| living | 22-40 | N/A | N/A | N/A |
| Kitchen | 22-40 | N/A | N/A | N/A |
| Corridor | 22-40 | N/A | N/A | N/A |
| Entrance | 22-40 | N/A | N/A | N/A |
Unit no 7
1
1
N/A
N/A
22-40
N/A
N/A
N/A
N/A
N/A
N/A
N/A
91 Square Meter
Entrance
Balcony
Bedroom
Corridor
Living
Kitchen
| Title | Floor | Width (Square Feet) | Length (Square Feet) | Total (Square Feet) |
|---|---|---|---|---|
| Bedroom | 22-40 | N/A | N/A | N/A |
| living | 22-40 | N/A | N/A | N/A |
| Kitchen | 22-40 | N/A | N/A | N/A |
| Corridor | 22-40 | N/A | N/A | N/A |
| Entrance | 22-40 | N/A | N/A | N/A |
Unit 8
1
1
N/A
N/A
22-40
N/A
N/A
N/A
N/A
N/A
N/A
N/A
76 Square Meter
Entrance
Balcony
Bedroom
Corridor
Living
Kitchen
| Title | Floor | Width (Square Feet) | Length (Square Feet) | Total (Square Feet) |
|---|---|---|---|---|
| Bedroom | 22-40 | N/A | N/A | N/A |
| living | 22-40 | N/A | N/A | N/A |
| Kitchen | 22-40 | N/A | N/A | N/A |
| Corridor | 22-40 | N/A | N/A | N/A |
| Entrance | 22-40 | N/A | N/A | N/A |
Unit 3
1
1
N/A
N/A
8-20
N/A
N/A
N/A
N/A
N/A
N/A
N/A
75 Square Meter
Entrance
Balcony
Bedroom
Corridor
Living
Kitchen
| Title | Floor | Width (Square Feet) | Length (Square Feet) | Total (Square Feet) |
|---|---|---|---|---|
| Bedroom | 8-20 | N/A | N/A | N/A |
| living | 8-20 | N/A | N/A | N/A |
| Kitchen | 8-20 | N/A | N/A | N/A |
| Corridor | 8-20 | N/A | N/A | N/A |
| Entrance | 8-20 | N/A | N/A | N/A |
Unit 05
1
1
N/A
N/A
8-20
N/A
N/A
N/A
N/A
N/A
N/A
N/A
81 Square Meter
Entrance
Balcony
Bedroom
Corridor
Living
Kitchen
| Title | Floor | Width (Square Feet) | Length (Square Feet) | Total (Square Feet) |
|---|---|---|---|---|
| Bedroom | 8-20 | N/A | N/A | N/A |
| living | 8-20 | N/A | N/A | N/A |
| Kitchen | 8-20 | N/A | N/A | N/A |
| Corridor | 8-20 | N/A | N/A | N/A |
| Entrance | 8-20 | N/A | N/A | N/A |
Unit 6
1
1
N/A
N/A
8-20
N/A
N/A
N/A
N/A
N/A
N/A
N/A
96 Square Meter
Entrance
Balcony
Bedroom
Corridor
Living
Kitchen
| Title | Floor | Width (Square Feet) | Length (Square Feet) | Total (Square Feet) |
|---|---|---|---|---|
| Bedroom | 8-20 | N/A | N/A | N/A |
| living | 8-20 | N/A | N/A | N/A |
| Kitchen | 8-20 | N/A | N/A | N/A |
| Corridor | 8-20 | N/A | N/A | N/A |
| Entrance | 8-20 | N/A | N/A | N/A |
Unit 7
1
1
N/A
N/A
8-20
N/A
N/A
N/A
N/A
N/A
N/A
N/A
92 Square Feet
Entrance
Balcony
Bedroom
Corridor
Living
Kitchen
| Title | Floor | Width (Square Feet) | Length (Square Feet) | Total (Square Feet) |
|---|---|---|---|---|
| Bedroom | 8-20 | N/A | N/A | N/A |
| living | 8-20 | N/A | N/A | N/A |
| Kitchen | 8-20 | N/A | N/A | N/A |
| Corridor | 8-20 | N/A | N/A | N/A |
| Entrance | 8-20 | N/A | N/A | N/A |
Unit 8
1
1
N/A
N/A
8-20
N/A
N/A
N/A
N/A
N/A
N/A
N/A
75 Square Meter
Entrance
Balcony
Bedroom
Corridor
Living
Kitchen
| Title | Floor | Width (Square Feet) | Length (Square Feet) | Total (Square Feet) |
|---|---|---|---|---|
| Bedroom | 8-20 | N/A | N/A | N/A |
| living | 8-20 | N/A | N/A | N/A |
| Kitchen | 8-20 | N/A | N/A | N/A |
| Corridor | 8-20 | N/A | N/A | N/A |
| Entrance | 8-20 | N/A | N/A | N/A |
Loft-Type-1
1
1
N/A
N/A
N/A
N/A
N/A
N/A
N/A
N/A
N/A
N/A
158 Square Meter
Bedroom
Living
Bathroom
Kitchen
Entrance
| Title | Floor | Width (Square Feet) | Length (Square Feet) | Total (Square Feet) |
|---|---|---|---|---|
| Bedroom | N/A | N/A | N/A | N/A |
| living | N/A | N/A | N/A | N/A |
| Kitchen | N/A | N/A | N/A | N/A |
| Corridor | N/A | N/A | N/A | N/A |
| Entrance | N/A | N/A | N/A | N/A |
Loft-Type-2
1
1
N/A
N/A
N/A
N/A
N/A
N/A
N/A
N/A
N/A
N/A
209 Square Meter
Bedroom
Living
Study Room
Billiards Room
Kitchen
Entrance
| Title | Floor | Width (Square Feet) | Length (Square Feet) | Total (Square Feet) |
|---|---|---|---|---|
| Bedroom | N/A | N/A | N/A | N/A |
| living | N/A | N/A | N/A | N/A |
| Kitchen | N/A | N/A | N/A | N/A |
| Corridor | N/A | N/A | N/A | N/A |
| Entrance | N/A | N/A | N/A | N/A |
| Billiards Room | N/A | N/A | N/A | N/A |
| Study Room | N/A | N/A | N/A | N/A |
Loft-Type-3
1
1
N/A
N/A
N/A
N/A
N/A
N/A
N/A
N/A
N/A
N/A
158 Square Meter
Bedroom
Bathroom
Living
Kitchen
Entrance
| Title | Floor | Width (Square Feet) | Length (Square Feet) | Total (Square Feet) |
|---|---|---|---|---|
| Bedroom | N/A | N/A | N/A | N/A |
| living | N/A | N/A | N/A | N/A |
| Kitchen | N/A | N/A | N/A | N/A |
| Corridor | N/A | N/A | N/A | N/A |
| Entrance | N/A | N/A | N/A | N/A |
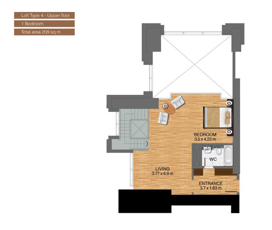
Loft-Type-4
1
1
N/A
N/A
N/A
N/A
N/A
N/A
N/A
N/A
N/A
N/A
209 Square Meter
Bedroom
Bathroom
Living
Kitchen
Entrance
Laundry
| Title | Floor | Width (Square Feet) | Length (Square Feet) | Total (Square Feet) |
|---|---|---|---|---|
| Bedroom | N/A | N/A | N/A | N/A |
| living | N/A | N/A | N/A | N/A |
| Kitchen | N/A | N/A | N/A | N/A |
| Corridor | N/A | N/A | N/A | N/A |
| Entrance | N/A | N/A | N/A | N/A |
Loft-Type-5
1
1
N/A
N/A
N/A
N/A
N/A
N/A
N/A
N/A
N/A
N/A
158 Square Meter
Bedroom
Bathroom
Living
Kitchen
Entrance
| Title | Floor | Width (Square Feet) | Length (Square Feet) | Total (Square Feet) |
|---|---|---|---|---|
| Bedroom | N/A | N/A | N/A | N/A |
| living | N/A | N/A | N/A | N/A |
| Kitchen | N/A | N/A | N/A | N/A |
| Corridor | N/A | N/A | N/A | N/A |
| Entrance | N/A | N/A | N/A | N/A |
Unit 01
2
2
N/A
N/A
22-40
N/A
N/A
N/A
N/A
N/A
N/A
N/A
141 Square Meter
Balcony
Master Bedroom
Master Bathroom
Bedroom 2
Bathroom 2
Kitchen
Living
Dining
Corriodor
| Title | Floor | Width (Square Feet) | Length (Square Feet) | Total (Square Feet) |
|---|---|---|---|---|
| Balcony | 22-40 | N/A | N/A | N/A |
| Master Bedroom | 22-40 | N/A | N/A | N/A |
| Master Bathroom | 22-40 | N/A | N/A | N/A |
| Bedroom 2 | 22-40 | N/A | N/A | N/A |
| Bathroom 2 | 22-40 | N/A | N/A | N/A |
| Kitchen | 22-40 | N/A | N/A | N/A |
| Living | 22-40 | N/A | N/A | N/A |
| Dining | 22-40 | N/A | N/A | N/A |
Unit 10
2
2
N/A
N/A
22-40
N/A
N/A
N/A
N/A
N/A
N/A
N/A
141 Square Meter
Balcony
Master Bedroom
Master Bathroom
Bedroom 2
Bathroom 2
Kitchen
Living
Dining
Corriodor
| Title | Floor | Width (Square Feet) | Length (Square Feet) | Total (Square Feet) |
|---|---|---|---|---|
| Balcony | 22-40 | N/A | N/A | N/A |
| Master Bedroom | 22-40 | N/A | N/A | N/A |
| Master Bathroom | 22-40 | N/A | N/A | N/A |
| Bedroom 2 | 22-40 | N/A | N/A | N/A |
| Bathroom 2 | 22-40 | N/A | N/A | N/A |
| Kitchen | 22-40 | N/A | N/A | N/A |
| Living | 22-40 | N/A | N/A | N/A |
| Dining | 22-40 | N/A | N/A | N/A |
Unit 11
2
2
N/A
N/A
22-40
N/A
N/A
N/A
N/A
N/A
N/A
N/A
126 Square Meter
Balcony
Master Bedroom
Master Bathroom
Bedroom 2
Bathroom 2
Kitchen
Living
Dining
Corriodor
| Title | Floor | Width (Square Feet) | Length (Square Feet) | Total (Square Feet) |
|---|---|---|---|---|
| Balcony | 22-40 | N/A | N/A | N/A |
| Master Bedroom | 22-40 | N/A | N/A | N/A |
| Master Bathroom | 22-40 | N/A | N/A | N/A |
| Bedroom 2 | 22-40 | N/A | N/A | N/A |
| Bathroom 2 | 22-40 | N/A | N/A | N/A |
| Kitchen | 22-40 | N/A | N/A | N/A |
| Living | 22-40 | N/A | N/A | N/A |
| Dining | 22-40 | N/A | N/A | N/A |
Unit 2
2
2
N/A
N/A
22-40
N/A
N/A
N/A
N/A
N/A
N/A
N/A
128 Square Meter
Balcony
Master Bedroom
Master Bathroom
Bedroom 2
Bathroom 2
Kitchen
Living
Dining
Corriodor
| Title | Floor | Width (Square Feet) | Length (Square Feet) | Total (Square Feet) |
|---|---|---|---|---|
| Balcony | 22-40 | N/A | N/A | N/A |
| Master Bedroom | 22-40 | N/A | N/A | N/A |
| Master Bathroom | 22-40 | N/A | N/A | N/A |
| Bedroom 2 | 22-40 | N/A | N/A | N/A |
| Bathroom 2 | 22-40 | N/A | N/A | N/A |
| Kitchen | 22-40 | N/A | N/A | N/A |
| Living | 22-40 | N/A | N/A | N/A |
| Dining | 22-40 | N/A | N/A | N/A |
Unit 04
2
2
N/A
N/A
22-40
N/A
N/A
N/A
N/A
N/A
N/A
N/A
141 Square Meter
Balcony
Master Bedroom
Master Bathroom
Bedroom 2
Bathroom 2
Kitchen
Living
Dining
Corriodor
| Title | Floor | Width (Square Feet) | Length (Square Feet) | Total (Square Feet) |
|---|---|---|---|---|
| Balcony | 22-40 | N/A | N/A | N/A |
| Master Bedroom | 22-40 | N/A | N/A | N/A |
| Master Bathroom | 22-40 | N/A | N/A | N/A |
| Bedroom 2 | 22-40 | N/A | N/A | N/A |
| Bathroom 2 | 22-40 | N/A | N/A | N/A |
| Kitchen | 22-40 | N/A | N/A | N/A |
| Living | 22-40 | N/A | N/A | N/A |
| Dining | 22-40 | N/A | N/A | N/A |
Unit 09
2
2
N/A
N/A
22-40
N/A
N/A
N/A
N/A
N/A
N/A
N/A
128 Square Meter
Balcony
Master Bedroom
Master Bathroom
Bedroom 2
Bathroom 2
Kitchen
Living
Dining
Corriodor
| Title | Floor | Width (Square Feet) | Length (Square Feet) | Total (Square Feet) |
|---|---|---|---|---|
| Balcony | 22-40 | N/A | N/A | N/A |
| Master Bedroom | 22-40 | N/A | N/A | N/A |
| Master Bathroom | 22-40 | N/A | N/A | N/A |
| Bedroom 2 | 22-40 | N/A | N/A | N/A |
| Bathroom 2 | 22-40 | N/A | N/A | N/A |
| Kitchen | 22-40 | N/A | N/A | N/A |
| Living | 22-40 | N/A | N/A | N/A |
| Dining | 22-40 | N/A | N/A | N/A |
Unit 5
2
2
N/A
N/A
42
N/A
N/A
N/A
N/A
N/A
N/A
N/A
123 Square Meter
Balcony
Master Bedroom
Master Bathroom
Bedroom 2
Bathroom 2
Kitchen
Living
Dining
Corriodor
| Title | Floor | Width (Square Feet) | Length (Square Feet) | Total (Square Feet) |
|---|---|---|---|---|
| Balcony | 42 | N/A | N/A | N/A |
| Master Bedroom | 42 | N/A | N/A | N/A |
| Master Bathroom | 42 | N/A | N/A | N/A |
| Bedroom 2 | 42 | N/A | N/A | N/A |
| Bathroom 2 | 42 | N/A | N/A | N/A |
| Kitchen | 42 | N/A | N/A | N/A |
| Living | 42 | N/A | N/A | N/A |
| Dining | 42 | N/A | N/A | N/A |
Unit 6
2
2
N/A
N/A
42
N/A
N/A
N/A
N/A
N/A
N/A
N/A
124 Square Meter
Balcony
Master Bedroom
Master Bathroom
Bedroom 2
Bathroom 2
Kitchen
Living
Dining
Corriodor
| Title | Floor | Width (Square Feet) | Length (Square Feet) | Total (Square Feet) |
|---|---|---|---|---|
| Balcony | 22-40 | N/A | N/A | N/A |
| Master Bedroom | 22-40 | N/A | N/A | N/A |
| Master Bathroom | 22-40 | N/A | N/A | N/A |
| Bedroom 2 | 22-40 | N/A | N/A | N/A |
| Bathroom 2 | 22-40 | N/A | N/A | N/A |
| Kitchen | 22-40 | N/A | N/A | N/A |
| Living | 22-40 | N/A | N/A | N/A |
| Dining | 22-40 | N/A | N/A | N/A |
Unit 7
2
2
N/A
N/A
42
N/A
N/A
N/A
N/A
N/A
N/A
N/A
140 Square Meter
Balcony
Master Bedroom
Master Bathroom
Bedroom 2
Bathroom 2
Kitchen
Living
Dining
Corriodor
| Title | Floor | Width (Square Feet) | Length (Square Feet) | Total (Square Feet) |
|---|---|---|---|---|
| Balcony | 42 | N/A | N/A | N/A |
| Master Bedroom | 42 | N/A | N/A | N/A |
| Master Bathroom | 42 | N/A | N/A | N/A |
| Bedroom 2 | 42 | N/A | N/A | N/A |
| Bathroom 2 | 42 | N/A | N/A | N/A |
| Kitchen | 42 | N/A | N/A | N/A |
| Living | 42 | N/A | N/A | N/A |
| Dining | 42 | N/A | N/A | N/A |
Unit 08
2
2
N/A
N/A
42
N/A
N/A
N/A
N/A
N/A
N/A
N/A
126 Square Meter
Balcony
Master Bedroom
Master Bathroom
Bedroom 2
Bathroom 2
Kitchen
Living
Dining
Corriodor
| Title | Floor | Width (Square Feet) | Length (Square Feet) | Total (Square Feet) |
|---|---|---|---|---|
| Balcony | 42 | N/A | N/A | N/A |
| Master Bedroom | 42 | N/A | N/A | N/A |
| Master Bathroom | 42 | N/A | N/A | N/A |
| Bedroom 2 | 42 | N/A | N/A | N/A |
| Bathroom 2 | 42 | N/A | N/A | N/A |
| Kitchen | 42 | N/A | N/A | N/A |
| Living | 42 | N/A | N/A | N/A |
| Dining | 42 | N/A | N/A | N/A |
Unit 5
2
2
N/A
N/A
43
N/A
N/A
N/A
N/A
N/A
N/A
N/A
141 Square Meter
Balcony
Master Bedroom
Master Bathroom
Bedroom 2
Bathroom 2
Kitchen
Living
Dining
Corriodor
| Title | Floor | Width (Square Feet) | Length (Square Feet) | Total (Square Feet) |
|---|---|---|---|---|
| Balcony | 43 | N/A | N/A | N/A |
| Master Bedroom | 43 | N/A | N/A | N/A |
| Master Bathroom | 43 | N/A | N/A | N/A |
| Bedroom 2 | 43 | N/A | N/A | N/A |
| Bathroom 2 | 43 | N/A | N/A | N/A |
| Kitchen | 43 | N/A | N/A | N/A |
| Living | 43 | N/A | N/A | N/A |
| Dining | 43 | N/A | N/A | N/A |
Unit 6
2
2
N/A
N/A
43
N/A
N/A
N/A
N/A
N/A
N/A
N/A
124 Square Meter
Balcony
Master Bedroom
Master Bathroom
Bedroom 2
Bathroom 2
Kitchen
Living
Dining
Corriodor
| Title | Floor | Width (Square Feet) | Length (Square Feet) | Total (Square Feet) |
|---|---|---|---|---|
| Balcony | 43 | N/A | N/A | N/A |
| Master Bedroom | 43 | N/A | N/A | N/A |
| Master Bathroom | 43 | N/A | N/A | N/A |
| Bedroom 2 | 43 | N/A | N/A | N/A |
| Bathroom 2 | 43 | N/A | N/A | N/A |
| Kitchen | 43 | N/A | N/A | N/A |
| Living | 43 | N/A | N/A | N/A |
| Dining | 43 | N/A | N/A | N/A |
Unit 7
2
2
N/A
N/A
43
N/A
N/A
N/A
N/A
N/A
N/A
N/A
140 Square Meter
Balcony
Master Bedroom
Master Bathroom
Bedroom 2
Bathroom 2
Kitchen
Living
Dining
Corriodor
| Title | Floor | Width (Square Feet) | Length (Square Feet) | Total (Square Feet) |
|---|---|---|---|---|
| Balcony | 43 | N/A | N/A | N/A |
| Master Bedroom | 43 | N/A | N/A | N/A |
| Master Bathroom | 43 | N/A | N/A | N/A |
| Bedroom 2 | 43 | N/A | N/A | N/A |
| Bathroom 2 | 43 | N/A | N/A | N/A |
| Kitchen | 43 | N/A | N/A | N/A |
| Living | 43 | N/A | N/A | N/A |
| Dining | 43 | N/A | N/A | N/A |
Unit 08
2
2
N/A
N/A
43
N/A
N/A
N/A
N/A
N/A
N/A
N/A
126 Square Meter
Balcony
Master Bedroom
Master Bathroom
Bedroom 2
Bathroom 2
Kitchen
Living
Dining
Corriodor
| Title | Floor | Width (Square Feet) | Length (Square Feet) | Total (Square Feet) |
|---|---|---|---|---|
| Balcony | 43 | N/A | N/A | N/A |
| Master Bedroom | 43 | N/A | N/A | N/A |
| Master Bathroom | 43 | N/A | N/A | N/A |
| Bedroom 2 | 43 | N/A | N/A | N/A |
| Bathroom 2 | 43 | N/A | N/A | N/A |
| Kitchen | 43 | N/A | N/A | N/A |
| Living | 43 | N/A | N/A | N/A |
| Dining | 43 | N/A | N/A | N/A |
Unit 5
2
2
N/A
N/A
44-62
N/A
N/A
N/A
N/A
N/A
N/A
N/A
141 Square Meter
Balcony
Master Bedroom
Master Bathroom
Bedroom 2
Bathroom 2
Kitchen
Living
Dining
Corriodor
| Title | Floor | Width (Square Feet) | Length (Square Feet) | Total (Square Feet) |
|---|---|---|---|---|
| Balcony | 44-62 | N/A | N/A | N/A |
| Master Bedroom | 44-62 | N/A | N/A | N/A |
| Master Bathroom | 44-62 | N/A | N/A | N/A |
| Bedroom 2 | 44-62 | N/A | N/A | N/A |
| Bathroom 2 | 44-62 | N/A | N/A | N/A |
| Kitchen | 44-62 | N/A | N/A | N/A |
| Living | 44-62 | N/A | N/A | N/A |
| Dining | 44-62 | N/A | N/A | N/A |
Unit 7
2
2
N/A
N/A
44-62
N/A
N/A
N/A
N/A
N/A
N/A
N/A
140 Square Meter
Balcony
Master Bedroom
Master Bathroom
Bedroom 2
Bathroom 2
Kitchen
Living
Dining
Corriodor
| Title | Floor | Width (Square Feet) | Length (Square Feet) | Total (Square Feet) |
|---|---|---|---|---|
| Balcony | 44-62 | N/A | N/A | N/A |
| Master Bedroom | 44-62 | N/A | N/A | N/A |
| Master Bathroom | 44-62 | N/A | N/A | N/A |
| Bedroom 2 | 44-62 | N/A | N/A | N/A |
| Bathroom 2 | 44-62 | N/A | N/A | N/A |
| Kitchen | 44-62 | N/A | N/A | N/A |
| Living | 44-62 | N/A | N/A | N/A |
| Dining | 44-62 | N/A | N/A | N/A |
Unit 8
2
2
N/A
N/A
44-62
N/A
N/A
N/A
N/A
N/A
N/A
N/A
126 Square Meter
Balcony
Master Bedroom
Master Bathroom
Bedroom 2
Bathroom 2
Kitchen
Living
Dining
Corriodor
| Title | Floor | Width (Square Feet) | Length (Square Feet) | Total (Square Feet) |
|---|---|---|---|---|
| Balcony | 44-62 | N/A | N/A | N/A |
| Master Bedroom | 44-62 | N/A | N/A | N/A |
| Master Bathroom | 44-62 | N/A | N/A | N/A |
| Bedroom 2 | 44-62 | N/A | N/A | N/A |
| Bathroom 2 | 44-62 | N/A | N/A | N/A |
| Kitchen | 44-62 | N/A | N/A | N/A |
| Living | 44-62 | N/A | N/A | N/A |
| Dining | 44-62 | N/A | N/A | N/A |
Unit 1
2
2
N/A
N/A
8-20
N/A
N/A
N/A
N/A
N/A
N/A
N/A
142 Square Meter
Balcony
Master Bedroom
Master Bathroom
Bedroom 2
Bathroom 2
Kitchen
Living
Dining
Corriodor
| Title | Floor | Width (Square Feet) | Length (Square Feet) | Total (Square Feet) |
|---|---|---|---|---|
| Balcony | 8-20 | N/A | N/A | N/A |
| Master Bedroom | 8-20 | N/A | N/A | N/A |
| Master Bathroom | 8-20 | N/A | N/A | N/A |
| Bedroom 2 | 8-20 | N/A | N/A | N/A |
| Bathroom 2 | 8-20 | N/A | N/A | N/A |
| Kitchen | 8-20 | N/A | N/A | N/A |
| Living | 8-20 | N/A | N/A | N/A |
| Dining | 8-20 | N/A | N/A | N/A |
Unit 02
2
2
N/A
N/A
8-20
N/A
N/A
N/A
N/A
N/A
N/A
N/A
127 Square Meter
Balcony
Master Bedroom
Master Bathroom
Bedroom 2
Bathroom 2
Kitchen
Living
Dining
Corriodor
| Title | Floor | Width (Square Feet) | Length (Square Feet) | Total (Square Feet) |
|---|---|---|---|---|
| Balcony | 8-20 | N/A | N/A | N/A |
| Master Bedroom | 8-20 | N/A | N/A | N/A |
| Master Bathroom | 8-20 | N/A | N/A | N/A |
| Bedroom 2 | 8-20 | N/A | N/A | N/A |
| Bathroom 2 | 8-20 | N/A | N/A | N/A |
| Kitchen | 8-20 | N/A | N/A | N/A |
| Living | 8-20 | N/A | N/A | N/A |
| Dining | 8-20 | N/A | N/A | N/A |
Unit 04
2
2
N/A
N/A
8-20
N/A
N/A
N/A
N/A
N/A
N/A
N/A
142 Square Meter
Balcony
Master Bedroom
Master Bathroom
Bedroom 2
Bathroom 2
Kitchen
Living
Dining
Corriodor
| Title | Floor | Width (Square Feet) | Length (Square Feet) | Total (Square Feet) |
|---|---|---|---|---|
| Balcony | 8-20 | N/A | N/A | N/A |
| Master Bedroom | 8-20 | N/A | N/A | N/A |
| Master Bathroom | 8-20 | N/A | N/A | N/A |
| Bedroom 2 | 8-20 | N/A | N/A | N/A |
| Bathroom 2 | 8-20 | N/A | N/A | N/A |
| Kitchen | 8-20 | N/A | N/A | N/A |
| Living | 8-20 | N/A | N/A | N/A |
| Dining | 8-20 | N/A | N/A | N/A |
Unit 09
2
2
N/A
N/A
8-20
N/A
N/A
N/A
N/A
N/A
N/A
N/A
127 Square Meter
Balcony
Master Bedroom
Master Bathroom
Bedroom 2
Bathroom 2
Kitchen
Living
Dining
Corriodor
| Title | Floor | Width (Square Feet) | Length (Square Feet) | Total (Square Feet) |
|---|---|---|---|---|
| Balcony | 8-20 | N/A | N/A | N/A |
| Master Bedroom | 8-20 | N/A | N/A | N/A |
| Master Bathroom | 8-20 | N/A | N/A | N/A |
| Bedroom 2 | 8-20 | N/A | N/A | N/A |
| Bathroom 2 | 8-20 | N/A | N/A | N/A |
| Kitchen | 8-20 | N/A | N/A | N/A |
| Living | 8-20 | N/A | N/A | N/A |
| Dining | 8-20 | N/A | N/A | N/A |
Unit 10
2
2
N/A
N/A
8-20
N/A
N/A
N/A
N/A
N/A
N/A
N/A
142 Square Meter
Balcony
Master Bedroom
Master Bathroom
Bedroom 2
Bathroom 2
Kitchen
Living
Dining
Corriodor
| Title | Floor | Width (Square Feet) | Length (Square Feet) | Total (Square Feet) |
|---|---|---|---|---|
| Balcony | 8-20 | N/A | N/A | N/A |
| Master Bedroom | 8-20 | N/A | N/A | N/A |
| Master Bathroom | 8-20 | N/A | N/A | N/A |
| Bedroom 2 | 8-20 | N/A | N/A | N/A |
| Bathroom 2 | 8-20 | N/A | N/A | N/A |
| Kitchen | 8-20 | N/A | N/A | N/A |
| Living | 8-20 | N/A | N/A | N/A |
| Dining | 8-20 | N/A | N/A | N/A |
Unit 11
2
2
N/A
N/A
8-20
N/A
N/A
N/A
N/A
N/A
N/A
N/A
126 Square Meter
Balcony
Master Bedroom
Master Bathroom
Bedroom 2
Bathroom 2
Kitchen
Living
Dining
Corriodor
| Title | Floor | Width (Square Feet) | Length (Square Feet) | Total (Square Feet) |
|---|---|---|---|---|
| Balcony | 8-20 | N/A | N/A | N/A |
| Master Bedroom | 8-20 | N/A | N/A | N/A |
| Master Bathroom | 8-20 | N/A | N/A | N/A |
| Bedroom 2 | 8-20 | N/A | N/A | N/A |
| Bathroom 2 | 8-20 | N/A | N/A | N/A |
| Kitchen | 8-20 | N/A | N/A | N/A |
| Living | 8-20 | N/A | N/A | N/A |
| Dining | 8-20 | N/A | N/A | N/A |
Unit 01
3
3
N/A
N/A
42
N/A
N/A
N/A
N/A
N/A
N/A
N/A
183 Square Meter
Balcony
Master Bedroom
Master Bathroom
Bedroom 2
Bathroom 2
Bedroom 3
Bathroom 3
Kitchen
Living
Dining
Corriodor
| Title | Floor | Width (Square Feet) | Length (Square Feet) | Total (Square Feet) |
|---|---|---|---|---|
| Balcony | 42 | N/A | N/A | N/A |
| Master Bedroom | 42 | N/A | N/A | N/A |
| Master Bathroom | 42 | N/A | N/A | N/A |
| Bedroom 2 | 42 | N/A | N/A | N/A |
| Bathroom 2 | 42 | N/A | N/A | N/A |
| Kitchen | 42 | N/A | N/A | N/A |
| Living | 42 | N/A | N/A | N/A |
| Dining | 42 | N/A | N/A | N/A |
| Bedroom 3 | 42 | N/A | N/A | N/A |
| Bathroom 3 | 42 | N/A | N/A | N/A |
Unit 02
3
3
N/A
N/A
42
N/A
N/A
N/A
N/A
N/A
N/A
N/A
167 Square Meter
Balcony
Master Bedroom
Master Bathroom
Bedroom 2
Bathroom 2
Bedroom 3
Bathroom 3
Kitchen
Living
Dining
Corriodor
| Title | Floor | Width (Square Feet) | Length (Square Feet) | Total (Square Feet) |
|---|---|---|---|---|
| Balcony | 42 | N/A | N/A | N/A |
| Master Bedroom | 42 | N/A | N/A | N/A |
| Master Bathroom | 42 | N/A | N/A | N/A |
| Bedroom 2 | 42 | N/A | N/A | N/A |
| Bathroom 2 | 42 | N/A | N/A | N/A |
| Kitchen | 42 | N/A | N/A | N/A |
| Living | 42 | N/A | N/A | N/A |
| Dining | 42 | N/A | N/A | N/A |
| Bedroom 3 | 42 | N/A | N/A | N/A |
| Bathroom 3 | 42 | N/A | N/A | N/A |
Unit 3
3
3
N/A
N/A
42
N/A
N/A
N/A
N/A
N/A
N/A
N/A
181 Square Meter
Balcony
Master Bedroom
Master Bathroom
Bedroom 2
Bathroom 2
Bedroom 3
Bathroom 3
Kitchen
Living
Dining
Corriodor
| Title | Floor | Width (Square Feet) | Length (Square Feet) | Total (Square Feet) |
|---|---|---|---|---|
| Balcony | 42 | N/A | N/A | N/A |
| Master Bedroom | 42 | N/A | N/A | N/A |
| Master Bathroom | 42 | N/A | N/A | N/A |
| Bedroom 2 | 42 | N/A | N/A | N/A |
| Bathroom 2 | 42 | N/A | N/A | N/A |
| Kitchen | 42 | N/A | N/A | N/A |
| Living | 42 | N/A | N/A | N/A |
| Dining | 42 | N/A | N/A | N/A |
| Bedroom 3 | 42 | N/A | N/A | N/A |
| Bathroom 3 | 42 | N/A | N/A | N/A |
Unit 4
3
3
N/A
N/A
42
N/A
N/A
N/A
N/A
N/A
N/A
N/A
184 Square Meter
Balcony
Master Bedroom
Master Bathroom
Bedroom 2
Bathroom 2
Bedroom 3
Bathroom 3
Kitchen
Living
Dining
Corriodor
| Title | Floor | Width (Square Feet) | Length (Square Feet) | Total (Square Feet) |
|---|---|---|---|---|
| Balcony | 42 | N/A | N/A | N/A |
| Master Bedroom | 42 | N/A | N/A | N/A |
| Master Bathroom | 42 | N/A | N/A | N/A |
| Bedroom 2 | 42 | N/A | N/A | N/A |
| Bathroom 2 | 42 | N/A | N/A | N/A |
| Kitchen | 42 | N/A | N/A | N/A |
| Living | 42 | N/A | N/A | N/A |
| Dining | 42 | N/A | N/A | N/A |
| Bedroom 3 | 42 | N/A | N/A | N/A |
| Bathroom 3 | 42 | N/A | N/A | N/A |
Unit 01
3
3
N/A
N/A
43
N/A
N/A
N/A
N/A
N/A
N/A
N/A
184 Square Meter
Balcony
Master Bedroom
Master Bathroom
Bedroom 2
Bathroom 2
Bedroom 3
Bathroom 3
Kitchen
Living
Dining
Corriodor
| Title | Floor | Width (Square Feet) | Length (Square Feet) | Total (Square Feet) |
|---|---|---|---|---|
| Balcony | 43 | N/A | N/A | N/A |
| Master Bedroom | 43 | N/A | N/A | N/A |
| Master Bathroom | 43 | N/A | N/A | N/A |
| Bedroom 2 | 43 | N/A | N/A | N/A |
| Bathroom 2 | 43 | N/A | N/A | N/A |
| Kitchen | 43 | N/A | N/A | N/A |
| Living | 43 | N/A | N/A | N/A |
| Dining | 43 | N/A | N/A | N/A |
| Bedroom 3 | 43 | N/A | N/A | N/A |
| Bathroom 3 | 43 | N/A | N/A | N/A |
Unit 02
3
3
N/A
N/A
43
N/A
N/A
N/A
N/A
N/A
N/A
N/A
167 Square Meter
Balcony
Master Bedroom
Master Bathroom
Bedroom 2
Bathroom 2
Bedroom 3
Bathroom 3
Kitchen
Living
Dining
Corriodor
| Title | Floor | Width (Square Feet) | Length (Square Feet) | Total (Square Feet) |
|---|---|---|---|---|
| Balcony | 43 | N/A | N/A | N/A |
| Master Bedroom | 43 | N/A | N/A | N/A |
| Master Bathroom | 43 | N/A | N/A | N/A |
| Bedroom 2 | 43 | N/A | N/A | N/A |
| Bathroom 2 | 43 | N/A | N/A | N/A |
| Kitchen | 43 | N/A | N/A | N/A |
| Living | 43 | N/A | N/A | N/A |
| Dining | 43 | N/A | N/A | N/A |
| Bedroom 3 | 43 | N/A | N/A | N/A |
| Bathroom 3 | 43 | N/A | N/A | N/A |
Unit 3
3
3
N/A
N/A
43
N/A
N/A
N/A
N/A
N/A
N/A
N/A
181 Square Meter
Balcony
Master Bedroom
Master Bathroom
Bedroom 2
Bathroom 2
Bedroom 3
Bathroom 3
Kitchen
Living
Dining
Corriodor
| Title | Floor | Width (Square Feet) | Length (Square Feet) | Total (Square Feet) |
|---|---|---|---|---|
| Balcony | 43 | N/A | N/A | N/A |
| Master Bedroom | 43 | N/A | N/A | N/A |
| Master Bathroom | 43 | N/A | N/A | N/A |
| Bedroom 2 | 43 | N/A | N/A | N/A |
| Bathroom 2 | 43 | N/A | N/A | N/A |
| Kitchen | 43 | N/A | N/A | N/A |
| Living | 43 | N/A | N/A | N/A |
| Dining | 43 | N/A | N/A | N/A |
| Bedroom 3 | 43 | N/A | N/A | N/A |
| Bathroom 3 | 43 | N/A | N/A | N/A |
Unit 04
3
3
N/A
N/A
43
N/A
N/A
N/A
N/A
N/A
N/A
N/A
182 Square Meter
Balcony
Master Bedroom
Master Bathroom
Bedroom 2
Bathroom 2
Bedroom 3
Bathroom 3
Kitchen
Living
Dining
Corriodor
| Title | Floor | Width (Square Feet) | Length (Square Feet) | Total (Square Feet) |
|---|---|---|---|---|
| Balcony | 43 | N/A | N/A | N/A |
| Master Bedroom | 43 | N/A | N/A | N/A |
| Master Bathroom | 43 | N/A | N/A | N/A |
| Bedroom 2 | 43 | N/A | N/A | N/A |
| Bathroom 2 | 43 | N/A | N/A | N/A |
| Kitchen | 43 | N/A | N/A | N/A |
| Living | 43 | N/A | N/A | N/A |
| Dining | 43 | N/A | N/A | N/A |
| Bedroom 3 | 43 | N/A | N/A | N/A |
| Bathroom 3 | 43 | N/A | N/A | N/A |
Unit 01
3
3
N/A
N/A
44-62
N/A
N/A
N/A
N/A
N/A
N/A
N/A
183 Square Meter
Balcony
Master Bedroom
Master Bathroom
Bedroom 2
Bathroom 2
Bedroom 3
Bathroom 3
Kitchen
Living
Dining
Corriodor
| Title | Floor | Width (Square Feet) | Length (Square Feet) | Total (Square Feet) |
|---|---|---|---|---|
| Balcony | 44-62 | N/A | N/A | N/A |
| Master Bedroom | 44-62 | N/A | N/A | N/A |
| Master Bathroom | 44-62 | N/A | N/A | N/A |
| Bedroom 2 | 44-62 | N/A | N/A | N/A |
| Bathroom 2 | 44-62 | N/A | N/A | N/A |
| Kitchen | 44-62 | N/A | N/A | N/A |
| Living | 44-62 | N/A | N/A | N/A |
| Dining | 44-62 | N/A | N/A | N/A |
| Bedroom 3 | 44-62 | N/A | N/A | N/A |
| Bathroom 3 | 44-62 | N/A | N/A | N/A |
Unit 02
3
3
N/A
N/A
44-62
N/A
N/A
N/A
N/A
N/A
N/A
N/A
185 Square Meter
Balcony
Master Bedroom
Master Bathroom
Bedroom 2
Bathroom 2
Bedroom 3
Bathroom 3
Kitchen
Living
Dining
Corriodor
No data found.
Unit 03
3
3
N/A
N/A
44-62
N/A
N/A
N/A
N/A
N/A
N/A
N/A
181 Square Meter
Balcony
Master Bedroom
Master Bathroom
Bedroom 2
Bathroom 2
Bedroom 3
Bathroom 3
Kitchen
Living
Dining
Corriodor
| Title | Floor | Width (Square Feet) | Length (Square Feet) | Total (Square Feet) |
|---|---|---|---|---|
| Balcony | 44-62 | N/A | N/A | N/A |
| Master Bedroom | 44-62 | N/A | N/A | N/A |
| Master Bathroom | 44-62 | N/A | N/A | N/A |
| Bedroom 2 | 44-62 | N/A | N/A | N/A |
| Bathroom 2 | 44-62 | N/A | N/A | N/A |
| Kitchen | 44-62 | N/A | N/A | N/A |
| Living | 44-62 | N/A | N/A | N/A |
| Dining | 44-62 | N/A | N/A | N/A |
| Bedroom 3 | 44-62 | N/A | N/A | N/A |
| Bathroom 3 | 44-62 | N/A | N/A | N/A |
Unit 04
3
3
N/A
N/A
44-62
N/A
N/A
N/A
N/A
N/A
N/A
N/A
182 Square Meter
Balcony
Master Bedroom
Master Bathroom
Bedroom 2
Bathroom 2
Bedroom 3
Bathroom 3
Kitchen
Living
Dining
Corriodor
| Title | Floor | Width (Square Feet) | Length (Square Feet) | Total (Square Feet) |
|---|---|---|---|---|
| Balcony | 44-62 | N/A | N/A | N/A |
| Master Bedroom | 44-62 | N/A | N/A | N/A |
| Master Bathroom | 44-62 | N/A | N/A | N/A |
| Bedroom 2 | 44-62 | N/A | N/A | N/A |
| Bathroom 2 | 44-62 | N/A | N/A | N/A |
| Kitchen | 44-62 | N/A | N/A | N/A |
| Living | 44-62 | N/A | N/A | N/A |
| Dining | 44-62 | N/A | N/A | N/A |
| Bedroom 3 | 44-62 | N/A | N/A | N/A |
| Bathroom 3 | 44-62 | N/A | N/A | N/A |
Unit 01
4
4
N/A
N/A
64
N/A
N/A
N/A
N/A
N/A
N/A
N/A
324 Square Meter
| Title | Floor | Width (Square Feet) | Length (Square Feet) | Total (Square Feet) |
|---|---|---|---|---|
| Balcony | 64 | N/A | N/A | N/A |
| Terrace | 64 | N/A | N/A | N/A |
| Master Bedroom | 64 | N/A | N/A | N/A |
| Master Bathroom | 64 | N/A | N/A | N/A |
| Bedroom 2 | 64 | N/A | N/A | N/A |
| Bathroom 2 | 64 | N/A | N/A | N/A |
| Bedroom 3 | 64 | N/A | N/A | N/A |
| Bathroom 3 | 64 | N/A | N/A | N/A |
| Bedroom 4 | 64 | N/A | N/A | N/A |
| Bathroom 4 | 64 | N/A | N/A | N/A |
| Kitchen | 64 | N/A | N/A | N/A |
| Living | 64 | N/A | N/A | N/A |
| Dining | 64 | N/A | N/A | N/A |
| Corridor | 64 | N/A | N/A | N/A |
| Laundry | 64 | N/A | N/A | N/A |
Unit 2
4
4
N/A
N/A
64
N/A
N/A
N/A
N/A
N/A
N/A
N/A
368 Square Meter
| Title | Floor | Width (Square Feet) | Length (Square Feet) | Total (Square Feet) |
|---|---|---|---|---|
| Balcony | 64 | N/A | N/A | N/A |
| Terrace | 64 | N/A | N/A | N/A |
| Master Bedroom | 64 | N/A | N/A | N/A |
| Master Bathroom | 64 | N/A | N/A | N/A |
| Bedroom 2 | 64 | N/A | N/A | N/A |
| Bathroom 2 | 64 | N/A | N/A | N/A |
| Bedroom 3 | 64 | N/A | N/A | N/A |
| Bathroom 3 | 64 | N/A | N/A | N/A |
| Bedroom 4 | 64 | N/A | N/A | N/A |
| Bathroom 4 | 64 | N/A | N/A | N/A |
| Kitchen | 64 | N/A | N/A | N/A |
| Living | 64 | N/A | N/A | N/A |
| Dining | 64 | N/A | N/A | N/A |
| Corridor | 64 | N/A | N/A | N/A |
| Laundry | 64 | N/A | N/A | N/A |
Unit 3
4
4
N/A
N/A
64
N/A
N/A
N/A
N/A
N/A
N/A
N/A
321 Square Meter
| Title | Floor | Width (Square Feet) | Length (Square Feet) | Total (Square Feet) |
|---|---|---|---|---|
| Balcony | 64 | N/A | N/A | N/A |
| Terrace | 64 | N/A | N/A | N/A |
| Master Bedroom | 64 | N/A | N/A | N/A |
| Master Bathroom | 64 | N/A | N/A | N/A |
| Bedroom 2 | 64 | N/A | N/A | N/A |
| Bathroom 2 | 64 | N/A | N/A | N/A |
| Bedroom 3 | 64 | N/A | N/A | N/A |
| Bathroom 3 | 64 | N/A | N/A | N/A |
| Bedroom 4 | 64 | N/A | N/A | N/A |
| Bathroom 4 | 64 | N/A | N/A | N/A |
| Kitchen | 64 | N/A | N/A | N/A |
| Living | 64 | N/A | N/A | N/A |
| Dining | 64 | N/A | N/A | N/A |
| Corridor | 64 | N/A | N/A | N/A |
| Laundry | 64 | N/A | N/A | N/A |
Unit 4
4
4
N/A
N/A
64
N/A
N/A
N/A
N/A
N/A
N/A
N/A
317 Square Meter
Balcony
Terrace
Master Bedroom
Master Bathroom
Bedroom 2
Bathroom 2
Bedroom 3
Bathroom 3
Bedroom 4
Bathroom 4
Kitchen
Living
Dining
Corridor
Laundry
| Title | Floor | Width (Square Feet) | Length (Square Feet) | Total (Square Feet) |
|---|---|---|---|---|
| Balcony | 64 | N/A | N/A | N/A |
| Terrace | 64 | N/A | N/A | N/A |
| Master Bedroom | 64 | N/A | N/A | N/A |
| Master Bathroom | 64 | N/A | N/A | N/A |
| Bedroom 2 | 64 | N/A | N/A | N/A |
| Bathroom 2 | 64 | N/A | N/A | N/A |
| Bedroom 3 | 64 | N/A | N/A | N/A |
| Bathroom 3 | 64 | N/A | N/A | N/A |
| Bedroom 4 | 64 | N/A | N/A | N/A |
| Bathroom 4 | 64 | N/A | N/A | N/A |
| Kitchen | 64 | N/A | N/A | N/A |
| Living | 64 | N/A | N/A | N/A |
| Dining | 64 | N/A | N/A | N/A |
| Corridor | 64 | N/A | N/A | N/A |
| Laundry | 64 | N/A | N/A | N/A |
Unit 1
4
4
N/A
N/A
65
N/A
N/A
N/A
N/A
N/A
N/A
N/A
280 Square Meter
Balcony
Terrace
Master Bedroom
Master Bathroom
Bedroom 2
Bathroom 2
Bedroom 3
Bathroom 3
Bedroom 4
Bathroom 4
Kitchen
Living
Dining
Corridor
Laundry
| Title | Floor | Width (Square Feet) | Length (Square Feet) | Total (Square Feet) |
|---|---|---|---|---|
| Balcony | 65 | N/A | N/A | N/A |
| Terrace | 65 | N/A | N/A | N/A |
| Master Bedroom | 65 | N/A | N/A | N/A |
| Master Bathroom | 65 | N/A | N/A | N/A |
| Bedroom 2 | 65 | N/A | N/A | N/A |
| Bathroom 2 | 65 | N/A | N/A | N/A |
| Bedroom 3 | 65 | N/A | N/A | N/A |
| Bathroom 3 | 65 | N/A | N/A | N/A |
| Bedroom 4 | 65 | N/A | N/A | N/A |
| Bathroom 4 | 65 | N/A | N/A | N/A |
| Kitchen | 65 | N/A | N/A | N/A |
| Living | 65 | N/A | N/A | N/A |
| Dining | 65 | N/A | N/A | N/A |
| Corridor | 65 | N/A | N/A | N/A |
| Laundry | 65 | N/A | N/A | N/A |
Unit 2
4
4
N/A
N/A
65
N/A
N/A
N/A
N/A
N/A
N/A
N/A
325 Square Meter
Balcony
Terrace
Master Bedroom
Master Bathroom
Bedroom 2
Bathroom 2
Bedroom 3
Bathroom 3
Bedroom 4
Bathroom 4
Kitchen
Living
Dining
Corridor
Laundry
| Title | Floor | Width (Square Feet) | Length (Square Feet) | Total (Square Feet) |
|---|---|---|---|---|
| Balcony | 65 | N/A | N/A | N/A |
| Terrace | 65 | N/A | N/A | N/A |
| Master Bedroom | 65 | N/A | N/A | N/A |
| Master Bathroom | 65 | N/A | N/A | N/A |
| Bedroom 2 | 65 | N/A | N/A | N/A |
| Bathroom 2 | 65 | N/A | N/A | N/A |
| Bedroom 3 | 65 | N/A | N/A | N/A |
| Bathroom 3 | 65 | N/A | N/A | N/A |
| Bedroom 4 | 65 | N/A | N/A | N/A |
| Bathroom 4 | 65 | N/A | N/A | N/A |
| Kitchen | 65 | N/A | N/A | N/A |
| Living | 65 | N/A | N/A | N/A |
| Dining | 65 | N/A | N/A | N/A |
| Corridor | 65 | N/A | N/A | N/A |
| Laundry | 65 | N/A | N/A | N/A |
Unit 3
4
4
N/A
N/A
65
N/A
N/A
N/A
N/A
N/A
N/A
N/A
277 Square Meter
Balcony
Terrace
Master Bedroom
Master Bathroom
Bedroom 2
Bathroom 2
Bedroom 3
Bathroom 3
Bedroom 4
Bathroom 4
Kitchen
Living
Dining
Corridor
Laundry
| Title | Floor | Width (Square Feet) | Length (Square Feet) | Total (Square Feet) |
|---|---|---|---|---|
| Balcony | 65 | N/A | N/A | N/A |
| Terrace | 65 | N/A | N/A | N/A |
| Master Bedroom | 65 | N/A | N/A | N/A |
| Master Bathroom | 65 | N/A | N/A | N/A |
| Bedroom 2 | 65 | N/A | N/A | N/A |
| Bathroom 2 | 65 | N/A | N/A | N/A |
| Bedroom 3 | 65 | N/A | N/A | N/A |
| Bathroom 3 | 65 | N/A | N/A | N/A |
| Bedroom 4 | 65 | N/A | N/A | N/A |
| Bathroom 4 | 65 | N/A | N/A | N/A |
| Kitchen | 65 | N/A | N/A | N/A |
| Living | 65 | N/A | N/A | N/A |
| Dining | 65 | N/A | N/A | N/A |
| Corridor | 65 | N/A | N/A | N/A |
| Laundry | 65 | N/A | N/A | N/A |
Unit 04
4
4
N/A
N/A
65
N/A
N/A
N/A
N/A
N/A
N/A
N/A
274 Square Meter
Balcony
Terrace
Master Bedroom
Master Bathroom
Bedroom 2
Bathroom 2
Bedroom 3
Bathroom 3
Bedroom 4
Bathroom 4
Kitchen
Living
Dining
Corridor
Laundry
| Title | Floor | Width (Square Feet) | Length (Square Feet) | Total (Square Feet) |
|---|---|---|---|---|
| Balcony | 65 | N/A | N/A | N/A |
| Terrace | 65 | N/A | N/A | N/A |
| Master Bedroom | 65 | N/A | N/A | N/A |
| Master Bathroom | 65 | N/A | N/A | N/A |
| Bedroom 2 | 65 | N/A | N/A | N/A |
| Bathroom 2 | 65 | N/A | N/A | N/A |
| Bedroom 3 | 65 | N/A | N/A | N/A |
| Bathroom 3 | 65 | N/A | N/A | N/A |
| Bedroom 4 | 65 | N/A | N/A | N/A |
| Bathroom 4 | 65 | N/A | N/A | N/A |
| Kitchen | 65 | N/A | N/A | N/A |
| Living | 65 | N/A | N/A | N/A |
| Dining | 65 | N/A | N/A | N/A |
| Corridor | 65 | N/A | N/A | N/A |
| Laundry | 65 | N/A | N/A | N/A |
Unit 1
4
4
N/A
N/A
66
N/A
N/A
N/A
N/A
N/A
N/A
N/A
281 Square Meter
Balcony
Terrace
Master Bedroom
Master Bathroom
Bedroom 2
Bathroom 2
Bedroom 3
Bathroom 3
Bedroom 4
Bathroom 4
Kitchen
Living
Dining
Corridor
Laundry
| Title | Floor | Width (Square Feet) | Length (Square Feet) | Total (Square Feet) |
|---|---|---|---|---|
| Balcony | 66 | N/A | N/A | N/A |
| Terrace | 66 | N/A | N/A | N/A |
| Master Bedroom | 66 | N/A | N/A | N/A |
| Master Bathroom | 66 | N/A | N/A | N/A |
| Bedroom 2 | 66 | N/A | N/A | N/A |
| Bathroom 2 | 66 | N/A | N/A | N/A |
| Bedroom 3 | 66 | N/A | N/A | N/A |
| Bathroom 3 | 66 | N/A | N/A | N/A |
| Bedroom 4 | 66 | N/A | N/A | N/A |
| Bathroom 4 | 66 | N/A | N/A | N/A |
| Kitchen | 66 | N/A | N/A | N/A |
| Living | 66 | N/A | N/A | N/A |
| Dining | 66 | N/A | N/A | N/A |
| Corridor | 66 | N/A | N/A | N/A |
| Laundry | 66 | N/A | N/A | N/A |
Unit 2
4
4
N/A
N/A
66
N/A
N/A
N/A
N/A
N/A
N/A
N/A
325 Square Meter
Balcony
Terrace
Master Bedroom
Master Bathroom
Bedroom 2
Bathroom 2
Bedroom 3
Bathroom 3
Bedroom 4
Bathroom 4
Kitchen
Living
Dining
Corridor
Laundry
| Title | Floor | Width (Square Feet) | Length (Square Feet) | Total (Square Feet) |
|---|---|---|---|---|
| Balcony | 66 | N/A | N/A | N/A |
| Terrace | 66 | N/A | N/A | N/A |
| Master Bedroom | 66 | N/A | N/A | N/A |
| Master Bathroom | 66 | N/A | N/A | N/A |
| Bedroom 2 | 66 | N/A | N/A | N/A |
| Bathroom 2 | 66 | N/A | N/A | N/A |
| Bedroom 3 | 66 | N/A | N/A | N/A |
| Bathroom 3 | 66 | N/A | N/A | N/A |
| Bedroom 4 | 66 | N/A | N/A | N/A |
| Bathroom 4 | 66 | N/A | N/A | N/A |
| Kitchen | 66 | N/A | N/A | N/A |
| Living | 66 | N/A | N/A | N/A |
| Dining | 66 | N/A | N/A | N/A |
| Corridor | 66 | N/A | N/A | N/A |
| Laundry | 66 | N/A | N/A | N/A |
Unit 3
4
4
N/A
N/A
66
N/A
N/A
N/A
N/A
N/A
N/A
N/A
277 Square Meter
Balcony
Terrace
Master Bedroom
Master Bathroom
Bedroom 2
Bathroom 2
Bedroom 3
Bathroom 3
Bedroom 4
Bathroom 4
Kitchen
Living
Dining
Corridor
Laundry
| Title | Floor | Width (Square Feet) | Length (Square Feet) | Total (Square Feet) |
|---|---|---|---|---|
| Balcony | 66 | N/A | N/A | N/A |
| Terrace | 66 | N/A | N/A | N/A |
| Master Bedroom | 66 | N/A | N/A | N/A |
| Master Bathroom | 66 | N/A | N/A | N/A |
| Bedroom 2 | 66 | N/A | N/A | N/A |
| Bathroom 2 | 66 | N/A | N/A | N/A |
| Bedroom 3 | 66 | N/A | N/A | N/A |
| Bathroom 3 | 66 | N/A | N/A | N/A |
| Bedroom 4 | 66 | N/A | N/A | N/A |
| Bathroom 4 | 66 | N/A | N/A | N/A |
| Kitchen | 66 | N/A | N/A | N/A |
| Living | 66 | N/A | N/A | N/A |
| Dining | 66 | N/A | N/A | N/A |
| Corridor | 66 | N/A | N/A | N/A |
| Laundry | 66 | N/A | N/A | N/A |
Unit 4
4
4
N/A
N/A
66
N/A
N/A
N/A
N/A
N/A
N/A
N/A
274 Square Meter
Balcony
Terrace
Master Bedroom
Master Bathroom
Bedroom 2
Bathroom 2
Bedroom 3
Bathroom 3
Bedroom 4
Bathroom 4
Kitchen
Living
Dining
Corridor
Laundry
| Title | Floor | Width (Square Feet) | Length (Square Feet) | Total (Square Feet) |
|---|---|---|---|---|
| Balcony | 66 | N/A | N/A | N/A |
| Terrace | 66 | N/A | N/A | N/A |
| Master Bedroom | 66 | N/A | N/A | N/A |
| Master Bathroom | 66 | N/A | N/A | N/A |
| Bedroom 2 | 66 | N/A | N/A | N/A |
| Bathroom 2 | 66 | N/A | N/A | N/A |
| Bedroom 3 | 66 | N/A | N/A | N/A |
| Bathroom 3 | 66 | N/A | N/A | N/A |
| Bedroom 4 | 66 | N/A | N/A | N/A |
| Bathroom 4 | 66 | N/A | N/A | N/A |
| Kitchen | 66 | N/A | N/A | N/A |
| Living | 66 | N/A | N/A | N/A |
| Dining | 66 | N/A | N/A | N/A |
| Corridor | 66 | N/A | N/A | N/A |
| Laundry | 66 | N/A | N/A | N/A |
Unit 2
4
4
N/A
N/A
67
N/A
N/A
N/A
N/A
N/A
N/A
N/A
270 Square Meter
Balcony
Terrace
Master Bedroom
Master Bathroom
Bedroom 2
Bathroom 2
Bedroom 3
Bathroom 3
Bedroom 4
Bathroom 4
Kitchen
Living
Dining
Corridor
Laundry
| Title | Floor | Width (Square Feet) | Length (Square Feet) | Total (Square Feet) |
|---|---|---|---|---|
| Balcony | 67 | N/A | N/A | N/A |
| Terrace | 67 | N/A | N/A | N/A |
| Master Bedroom | 67 | N/A | N/A | N/A |
| Master Bathroom | 67 | N/A | N/A | N/A |
| Bedroom 2 | 67 | N/A | N/A | N/A |
| Bathroom 2 | 67 | N/A | N/A | N/A |
| Bedroom 3 | 67 | N/A | N/A | N/A |
| Bathroom 3 | 67 | N/A | N/A | N/A |
| Bedroom 4 | 67 | N/A | N/A | N/A |
| Bathroom 4 | 67 | N/A | N/A | N/A |
| Kitchen | 67 | N/A | N/A | N/A |
| Living | 67 | N/A | N/A | N/A |
| Dining | 67 | N/A | N/A | N/A |
| Corridor | 67 | N/A | N/A | N/A |
| Laundry | 67 | N/A | N/A | N/A |
Unit 1
5
5
N/A
N/A
67
N/A
N/A
N/A
N/A
N/A
N/A
N/A
880 Square Meter
Balcony
Terrace
Master Bedroom
Master Bathroom
Bedroom 2
Bathroom 2
Bedroom 3
Bathroom 3
Bedroom 4
Bathroom 4
Bedroom 5
Bathroom 5
Pool Area
Kitchen
Living
Dining
Corridor
Laundry
| Title | Floor | Width (Square Feet) | Length (Square Feet) | Total (Square Feet) |
|---|---|---|---|---|
| Balcony | 67 | N/A | N/A | N/A |
| Terrace | 67 | N/A | N/A | N/A |
| Master Bedroom | 67 | N/A | N/A | N/A |
| Master Bathroom | 67 | N/A | N/A | N/A |
| Bedroom 2 | 67 | N/A | N/A | N/A |
| Bathroom 2 | 67 | N/A | N/A | N/A |
| Bedroom 3 | 67 | N/A | N/A | N/A |
| Bathroom 3 | 67 | N/A | N/A | N/A |
| Bedroom 4 | 67 | N/A | N/A | N/A |
| Bathroom 4 | 67 | N/A | N/A | N/A |
| Kitchen | 67 | N/A | N/A | N/A |
| Living | 67 | N/A | N/A | N/A |
| Dining | 67 | N/A | N/A | N/A |
| Corridor | 67 | N/A | N/A | N/A |
| Laundry | 67 | N/A | N/A | N/A |
| Bedroom 5 | 67 | N/A | N/A | N/A |
| Bathroom 5 | 67 | N/A | N/A | N/A |
Unit 1
6
6
N/A
N/A
68-69
N/A
N/A
N/A
N/A
N/A
N/A
N/A
873 Square Meter
Pool area
Living
Dining
Corridor
Study Room
Store
Laundry
Kitchen
Guest Bedroom
Guest Bathroom
Master Bedroom
Bedroom 2
Bathroom 2
Bedroom 3
Bathroom 3
Bedroom 4
Bathroom 4
Bedroom 5
Bathroom 5
| Title | Floor | Width (Square Feet) | Length (Square Feet) | Total (Square Feet) |
|---|---|---|---|---|
| Balcony | 68-69 | N/A | N/A | N/A |
| Terrace | 68-69 | N/A | N/A | N/A |
| Master Bedroom | 68-69 | N/A | N/A | N/A |
| Master Bathroom | 68-69 | N/A | N/A | N/A |
| Bedroom 2 | 68-69 | N/A | N/A | N/A |
| Bathroom 2 | 68-69 | N/A | N/A | N/A |
| Bedroom 3 | 68-69 | N/A | N/A | N/A |
| Bathroom 3 | 68-69 | N/A | N/A | N/A |
| Bedroom 4 | 68-69 | N/A | N/A | N/A |
| Bathroom 4 | 68-69 | N/A | N/A | N/A |
| Kitchen | 68-69 | N/A | N/A | N/A |
| Living | 68-69 | N/A | N/A | N/A |
| Dining | 68-69 | N/A | N/A | N/A |
| Corridor | 68-69 | N/A | N/A | N/A |
| Laundry | 68-69 | N/A | N/A | N/A |
| Bedroom 5 | 68-69 | N/A | N/A | N/A |
| Bathroom 5 | 68-69 | N/A | N/A | N/A |
| Guest Bedroom | 68-69 | N/A | N/A | N/A |
| Guest Bathroom | 68-69 | N/A | N/A | N/A |
| Pool area | 68-69 | N/A | N/A | N/A |
| Study Room | 68-69 | N/A | N/A | N/A |
Unit 02
6
6
N/A
N/A
68-69
N/A
N/A
N/A
N/A
N/A
N/A
N/A
934 Square Meter
Pool area
Living
Dining
Corridor
Study Room
Store
Laundry
Kitchen
Guest Bedroom
Guest Bathroom
Master Bedroom
Bedroom 2
Bathroom 2
Bedroom 3
Bathroom 3
Bedroom 4
Bathroom 4
Bedroom 5
Bathroom 5
| Title | Floor | Width (Square Feet) | Length (Square Feet) | Total (Square Feet) |
|---|---|---|---|---|
| Balcony | 68-69 | N/A | N/A | N/A |
| Terrace | 68-69 | N/A | N/A | N/A |
| Master Bedroom | 68-69 | N/A | N/A | N/A |
| Master Bathroom | 68-69 | N/A | N/A | N/A |
| Bedroom 2 | 68-69 | N/A | N/A | N/A |
| Bathroom 2 | 68-69 | N/A | N/A | N/A |
| Bedroom 3 | 68-69 | N/A | N/A | N/A |
| Bathroom 3 | 68-69 | N/A | N/A | N/A |
| Bedroom 4 | 68-69 | N/A | N/A | N/A |
| Bathroom 4 | 68-69 | N/A | N/A | N/A |
| Kitchen | 68-69 | N/A | N/A | N/A |
| Living | 68-69 | N/A | N/A | N/A |
| Dining | 68-69 | N/A | N/A | N/A |
| Corridor | 68-69 | N/A | N/A | N/A |
| Laundry | 68-69 | N/A | N/A | N/A |
| Bedroom 5 | 68-69 | N/A | N/A | N/A |
| Bathroom 5 | 68-69 | N/A | N/A | N/A |
| Guest Bedroom | 68-69 | N/A | N/A | N/A |
| Guest Bathroom | 68-69 | N/A | N/A | N/A |
| Pool area | 68-69 | N/A | N/A | N/A |
| Study Room | 68-69 | N/A | N/A | N/A |
Unit 1
7
7
N/A
N/A
70 to 73
N/A
N/A
N/A
N/A
N/A
N/A
N/A
2,786 Square Meter
Balcony
Terrace
Pool Area
Living
Kitchen
Store
Maid Room
Corridor
Laundry
Guest room
Bedroom 2
Bathroom 2
Sauna
Gym
Stduy/office
Lobby
Home Terrace
Family Room
Master Bedroom
Master Bathroom
Bedroom 3
Bedroom 4
Bedroom 5
Bedroom 6
| Title | Floor | Width (Square Feet) | Length (Square Feet) | Total (Square Feet) |
|---|---|---|---|---|
| Balcony | 70-73 | N/A | N/A | N/A |
| Terrace | 70-73 | N/A | N/A | N/A |
| Master Bedroom | 70-73 | N/A | N/A | N/A |
| Master Bathroom | 70-73 | N/A | N/A | N/A |
| Bedroom 2 | 70-73 | N/A | N/A | N/A |
| Bathroom 2 | 70-73 | N/A | N/A | N/A |
| Bedroom 3 | 70-73 | N/A | N/A | N/A |
| Bathroom 3 | 70-73 | N/A | N/A | N/A |
| Bedroom 4 | 70-73 | N/A | N/A | N/A |
| Bathroom 4 | 70-73 | N/A | N/A | N/A |
| Kitchen | 70-73 | N/A | N/A | N/A |
| Living | 70-73 | N/A | N/A | N/A |
| Dining | 70-73 | N/A | N/A | N/A |
| Corridor | 70-73 | N/A | N/A | N/A |
| Laundry | 70-73 | N/A | N/A | N/A |
| Bedroom 5 | 70-73 | N/A | N/A | N/A |
| Bathroom 5 | 70-73 | N/A | N/A | N/A |
| Guest Bedroom | 70-73 | N/A | N/A | N/A |
| Guest Bathroom | 70-73 | N/A | N/A | N/A |
| Pool area | 70-73 | N/A | N/A | N/A |
| Study Room | 70-73 | N/A | N/A | N/A |
| Bedroom 6 | 70-73 | N/A | N/A | N/A |
| Bathroom 6 | 70-73 | N/A | N/A | N/A |
| Pool | 70-73 | N/A | N/A | N/A |
.jpg)
.jpg)
.jpg)
.jpg)
.jpg)
.jpg)
.jpg)