Under Construction

header-logo2.png

New Dubai Gate 1

UAE > Dubai > Jumeirah Lake Towers (JLT) > Cluster Q > New Dubai Gate 1

Details

Title :

New Dubai Gate 1

Type :

Free Hold

Project Number :

N/A

Completion Status :

Completed/Ready

Life Cycle :

N/A

Master Development :

Cluster Q

Developer :

N/A

Plot Number :

N/A

Project Configuration :

N/A

Number Of Units :

621

Number Of Sold Units :

N/A

Number Of Remaining Units :

N/A

Number Of Floor :

42

Plot Area :

37,670 Square Meter

Built Up Area :

N/A

Status Percentage :

100

Launch Date :

N/A

Registration Date :

08-Nov-2008

Construction Started Date :

17-Dec-2007

Anticipated Completion Date :

14-Mar-2010

Cost Consultants :

N/A

Piling Contractors :

N/A

Handover Date :

N/A

Main Contractors :

N/A

Sub Contractors :

N/A

Architects :

N/A

MEP Contractors :

N/A

Project Managers :

N/A


Special Classifications



Road Locations


Description

Dubai Gate 1 is a 42-storey residential building in JLT Cluster Q, Jumeirah Lakes Towers, Dubai. The project was developed by Bonyan International Investment Group Holding.

IN A NUTSHELL

  • Freehold Residential Building
  • Located in the heart of Jumeirah Lake Towers
  • Situated in Cluster Q of JLT that consists of studio, 1, 2 and 3-bedroom apartments
  • Apartment sizes measure from 416 sq. ft. to 1,519 sq. ft.
  • Boasts state-of-the-art maintenance and security system
  • There are underground floors dedicated to parking in New Dubai Gate 1, JLT
  • New Dubai Gate 1, JLT Cluster Q is not pet-friendly


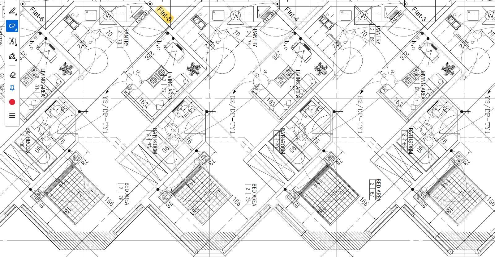
New Dubai Gate 1 Floor Plans:

New Dubai Gate 1 floor plans include: 

  • 1-bedroom apartments in New Dubai Gate 1 consist of seven different unit types 
  • 2-bedroom apartments in New Dubai Gate 1 consist of four different unit type
  • 3-bedroom apartments in New Dubai Gate 1 consist of two different unit type

Location

Dubai Gate 1 - Jumeirah Lake Towers - Dubai - United Arab Emirates

Title
Floor Level
From
To
Action
Floor Plan 15th Floor
15
N/A
N/A
View Details

Title
Action
Type 1
View Details
Type 14
View Details
Type 2
View Details
Type 3
View Details
Type 6
View Details
Type 7
View Details
Type 8
View Details
Type 10
View Details
Type 11
View Details
Type 12
View Details
Type 13
View Details
Type 9
View Details

Yearly Transactions and Sales

Transactions and Sales by Property Types

Price Per Square Feet "Sale"