UAE > Dubai > Dubai Hills Estate > Urban Living > Mulberry > Mulberry I > MULBERRY at PARK HEIGHTS Building B2
Service Charges
Completion Status
Payment Plan
Handover
Title :
MULBERRY at PARK HEIGHTS Building B2
Type :
Free Hold
Project Number :
N/A
Completion Status :
Completed/Ready
Life Cycle :
Mature
Master Development :
Mulberry I
Developer :
N/A
Plot Number :
111
Project Configuration :
N/A
Number Of Units :
75
Number Of Floor :
8
Plot Area :
N/A
Built Up Area :
N/A
Construction Status :
100
Launch Date :
N/A
Registration Date :
25-Feb-2014
Construction Started Date :
01-Apr-2015
Anticipated Completion Date :
01-Sep-2019
Cost Consultants :
N/A
Piling Contractors :
N/A
Handover Date :
N/A
Main Contractors :
N/A
Sub Contractors :
N/A
Architects :
N/A
MEP Contractors :
N/A
Project Managers :
N/A
Mulberry at Park Heights Building B2:
In Park Heights, Dubai Hills Estate, there are four residential towers totaling seven stories that make up Mulberry 1. Mulberry at Park Heights, Building B2, is one of the buildings. Apartments with 1, 2, 3, and 4 bedrooms are available for rent or purchase in the Emaar development, which looks out over Dubai Hills Park. Along with amenities like parking, security, and lifts, residents also have access to recreation and fitness alternatives. 2019 saw the complex's completion.
A golf course surrounds the lovely residential neighborhood of Dubai Hills Estate. The region features numerous apartment and villa projects in a tranquil setting. Al Khail Road connects it to the rest of the city and provides quick access to services for shopping, dining, leisure, recreation, education, and healthcare.
Even so, it offers simple access to all of the location sites because of its well-connected road networks, including Al Marabea Road and Umm Suqeim Road, while also providing access to a number of points of interest from Downtown Dubai to Dubai International Airport.
These roomy homes are skillfully constructed, offering a luxurious and leisurely way for families to live. Dubai Hills residents can readily enjoy comfort at the upscale stores and good dining establishments situated inside the Community.
HIGHLIGHTS:
Amenities:
Nearby Attractions:
| Title | Action |
|---|---|
| Type T1A | View Details |
| Type T1B | View Details |
| Type T1G | View Details |
| Type T1A | View Details |
| Type T1B | View Details |
| Type T1G | View Details |
| Type T2A | View Details |
| Type T2B | View Details |
| Type T2A | View Details |
| Type T2B | View Details |
| Type T2G | View Details |
Type T1A
1
2
G+6
N/A
01-06
862 Square Feet
862 Square Feet
783 Square Feet
783 Square Feet
79 Square Feet
N/A
N/A
N/A
| Title | Floor | Width (Square Feet) | Length (Square Feet) | Total (Square Feet) |
|---|---|---|---|---|
| Living/Dining | N/A | 53.82 | 51.67 | 2,780.88 |
| Kitchen | N/A | 25.83 | 36.27 | 936.85 |
| Bedroom 1 | N/A | 41.98 | 41.98 | 1,762.32 |
| Bathroom 1 | N/A | 33.37 | 25.83 | 861.95 |
| Powder Room | N/A | N/A | N/A | N/A |
| Balcony | N/A | 15.39 | 51.67 | 795.20 |
| Laundry | N/A | 7.53 | 15.07 | 113.48 |
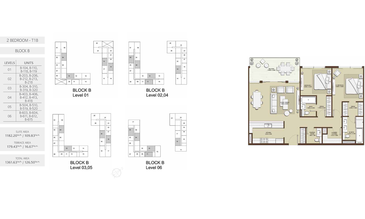
Type T1B
1
2
G+6
N/A
01-06
914 Square Feet
915 Square Feet
783 Square Feet
783 Square Feet
131 Square Feet
N/A
N/A
N/A
| Title | Floor | Width (Square Feet) | Length (Square Feet) | Total (Square Feet) |
|---|---|---|---|---|
| Living/Dining | N/A | 53.82 | 51.67 | 2,780.88 |
| Kitchen | N/A | 25.83 | 36.27 | 936.85 |
| Bedroom 1 | N/A | 41.98 | 41.98 | 1,762.32 |
| Bathroom 1 | N/A | 33.37 | 25.83 | 861.95 |
| Powder Room | N/A | 16.15 | 15.07 | 243.38 |
| Balcony | N/A | 25.83 | 50.59 | 1,306.74 |
| Laundry | N/A | 21.53 | 16.15 | 347.71 |
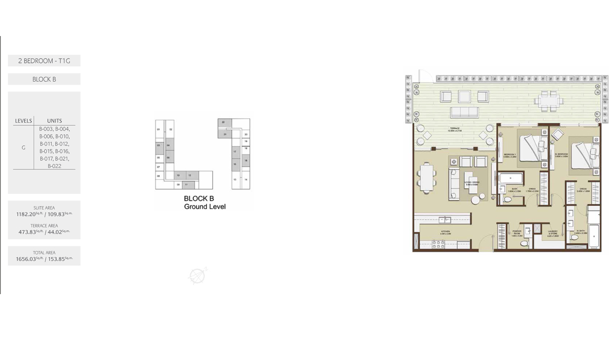
Type T1G
1
2
G+6
N/A
Ground
1,000 Square Feet
1,000 Square Feet
783 Square Feet
783 Square Feet
N/A
217 Square Feet
N/A
N/A
| Title | Floor | Width (Square Feet) | Length (Square Feet) | Total (Square Feet) |
|---|---|---|---|---|
| Living/Dining | N/A | 53.82 | 51.67 | 2,780.88 |
| Kitchen | N/A | 25.83 | 36.27 | 936.85 |
| Bedroom 1 | N/A | 41.98 | 41.98 | 1,762.32 |
| Bathroom 1 | N/A | 33.37 | 25.83 | 861.95 |
| Powder Room | N/A | 16.15 | 15.07 | 243.38 |
| Terrace | N/A | 30.14 | 96.88 | 2,919.96 |
| Laundry | N/A | 7.53 | 15.07 | 113.48 |
Type T1A
2
3
G+6
N/A
01-06
1,296 Square Feet
1,297 Square Feet
1,182 Square Feet
1,182 Square Feet
115 Square Feet
N/A
N/A
N/A
| Title | Floor | Width (Square Feet) | Length (Square Feet) | Total (Square Feet) |
|---|---|---|---|---|
| Kitchen | N/A | 21.53 | 43.06 | 927.08 |
| Powder Room | N/A | N/A | N/A | N/A |
| Master Bedroom | N/A | 41.98 | 36.60 | 1,536.47 |
| Master Bathroom | N/A | 33.37 | 25.83 | 861.95 |
| Balcony | N/A | N/A | N/A | N/A |
| Bedroom 2 | N/A | 34.44 | 27.99 | 963.98 |
| Bathroom 2 | N/A | 24.76 | 19.38 | 479.85 |
| Laundry | N/A | 19.38 | 24.00 | 465.12 |
| Living/Dining | N/A | 51.67 | 54.90 | 2,836.68 |
Type T1B
2
3
G+6
N/A
01-06
1,361 Square Feet
1,362 Square Feet
1,182 Square Feet
1,182 Square Feet
179 Square Feet
N/A
N/A
N/A
| Title | Floor | Width (Square Feet) | Length (Square Feet) | Total (Square Feet) |
|---|---|---|---|---|
| Living | N/A | 51.67 | 54.90 | 2,836.68 |
| Kitchen | N/A | 21.53 | 43.06 | 927.08 |
| Powder Room | N/A | 13.99 | 11.84 | 165.64 |
| Master Bedroom | N/A | 41.98 | 36.60 | 1,536.47 |
| Master Bathroom | N/A | 33.37 | 25.83 | 861.95 |
| Balcony | N/A | N/A | N/A | N/A |
| Bedroom 2 | N/A | 34.44 | 38.75 | 1,334.55 |
| Bathroom 2 | N/A | 24.76 | 19.38 | 479.85 |
| Laundry | N/A | 13.99 | 24.00 | 335.76 |
Type T1G
2
3
G+6
N/A
Ground
1,656 Square Feet
1,656 Square Feet
1,182 Square Feet
1,182 Square Feet
N/A
474 Square Feet
N/A
N/A
| Title | Floor | Width (Square Feet) | Length (Square Feet) | Total (Square Feet) |
|---|---|---|---|---|
| Living | N/A | 51.67 | 54.90 | 2,836.68 |
| Kitchen | N/A | 21.53 | 43.06 | 927.08 |
| Powder Room | N/A | 13.99 | 11.84 | 165.64 |
| Master Bedroom | N/A | 41.98 | 36.60 | 1,536.47 |
| Master Bathroom | N/A | 33.37 | 25.83 | 861.95 |
| Terrace | N/A | 50.70 | 145.31 | 7,367.22 |
| Bedroom 2 | N/A | 34.44 | 38.75 | 1,334.55 |
| Bathroom 2 | N/A | 24.76 | 19.38 | 479.85 |
| Laundry | N/A | 13.99 | 24.00 | 335.76 |
Type T2A
2
3
G+6
N/A
01-05
1,596 Square Feet
1,597 Square Feet
1,240 Square Feet
1,241 Square Feet
356 Square Feet
N/A
N/A
N/A
| Title | Floor | Width (Square Feet) | Length (Square Feet) | Total (Square Feet) |
|---|---|---|---|---|
| Living/Dining | N/A | 35.52 | 96.88 | 3,441.18 |
| Kitchen | N/A | N/A | N/A | N/A |
| Powder Room | N/A | N/A | N/A | N/A |
| Master Bedroom | N/A | 33.37 | 38.75 | 1,293.09 |
| Master Bathroom | N/A | 33.37 | 25.83 | 861.95 |
| Balcony | N/A | 110.87 | 89.34 | 9,905.13 |
| Bedroom 1 | N/A | 34.44 | 38.75 | 1,334.55 |
| Bathroom 2 | N/A | 25.30 | 19.38 | 490.31 |
| Laundry | N/A | 16.15 | 10.76 | 173.77 |
Type T2B
2
3
G+6
N/A
01-05
1,603 Square Feet
1,603 Square Feet
1,240 Square Feet
1,241 Square Feet
362 Square Feet
N/A
N/A
N/A
| Title | Floor | Width (Square Feet) | Length (Square Feet) | Total (Square Feet) |
|---|---|---|---|---|
| Living/Dining | N/A | 57.05 | 64.58 | 3,684.29 |
| Kitchen | N/A | N/A | N/A | N/A |
| Powder Room | N/A | 19.38 | 12.92 | 250.39 |
| Master Bedroom | N/A | 41.98 | 38.75 | 1,626.73 |
| Master Bathroom | N/A | 33.37 | 25.83 | 861.95 |
| Balcony | N/A | 110.87 | 89.34 | 9,905.13 |
| Bedroom 1 | N/A | 34.44 | 38.75 | 1,334.55 |
| Bathroom 2 | N/A | 25.30 | 19.38 | 490.31 |
| Laundry | N/A | 16.15 | 10.76 | 173.77 |
Type T2A
3
5
G+6
N/A
01-05
1,959 Square Feet
1,959 Square Feet
1,637 Square Feet
1,638 Square Feet
352 Square Feet
N/A
N/A
N/A
| Title | Floor | Width (Square Feet) | Length (Square Feet) | Total (Square Feet) |
|---|---|---|---|---|
| Living/Dining | N/A | 60.28 | 74.27 | 4,477.00 |
| Kitchen | N/A | 22.60 | 54.90 | 1,240.74 |
| Powder Room | N/A | 19.38 | 16.15 | 312.99 |
| Master Bedroom | N/A | 41.98 | 37.67 | 1,581.39 |
| Master Bathroom | N/A | 33.37 | 25.83 | 861.95 |
| Balcony | N/A | 106.56 | 99.03 | 10,552.64 |
| Bedroom 2 | N/A | 40.37 | 36.60 | 1,477.54 |
| Bathroom 2 | N/A | 19.38 | 25.83 | 500.59 |
| Laundry | N/A | N/A | N/A | N/A |
| Maid Bedroom | N/A | 19.38 | 22.60 | 437.99 |
| Maid Bathroom | N/A | 16.15 | 15.07 | 243.38 |
Type T2B
3
5
G+6
N/A
01-06
1,968 Square Feet
1,968 Square Feet
1,637 Square Feet
1,638 Square Feet
331 Square Feet
N/A
N/A
N/A
| Title | Floor | Width (Square Feet) | Length (Square Feet) | Total (Square Feet) |
|---|---|---|---|---|
| Living/Dining | N/A | 60.28 | 74.27 | 4,477.00 |
| Kitchen | N/A | 27.99 | 54.90 | 1,536.65 |
| Powder Room | N/A | 19.38 | 16.15 | 312.99 |
| Master Bedroom | N/A | 32.29 | 37.67 | 1,216.36 |
| Master Bathroom | N/A | 33.37 | 25.83 | 861.95 |
| Balcony | N/A | 106.56 | 102.26 | 10,896.83 |
| Bedroom 2 | N/A | 40.37 | 36.60 | 1,477.54 |
| Bathroom 2 | N/A | 19.38 | 21.53 | 417.25 |
| Laundry | N/A | N/A | N/A | N/A |
| Maid Bedroom | N/A | 19.38 | 22.60 | 437.99 |
| Maid Bathroom | N/A | 16.15 | 15.07 | 243.38 |
Type T2G
3
5
G+6
N/A
Ground
2,486 Square Feet
2,486 Square Feet
1,637 Square Feet
1,638 Square Feet
N/A
849 Square Feet
N/A
N/A
| Title | Floor | Width (Square Feet) | Length (Square Feet) | Total (Square Feet) |
|---|---|---|---|---|
| Living/Dining | N/A | 60.28 | 74.27 | 4,477.00 |
| Kitchen | N/A | 27.99 | 54.90 | 1,536.65 |
| Powder Room | N/A | 19.38 | 16.15 | 312.99 |
| Master Bedroom | N/A | 32.29 | 37.67 | 1,216.36 |
| Master Bathroom | N/A | 33.37 | 25.83 | 861.95 |
| Terrace | N/A | 121.63 | 228.20 | 27,755.97 |
| Bedroom 2 | N/A | 40.37 | 36.60 | 1,477.54 |
| Bathroom 2 | N/A | 19.38 | 21.53 | 417.25 |
| Laundry | N/A | N/A | N/A | N/A |
| Maid Bedroom | N/A | 19.38 | 22.60 | 437.99 |
| Maid Bathroom | N/A | 16.15 | 15.07 | 243.38 |




