UAE > Dubai > Business Bay > Zone A > A01 > Millennium Binghatti Residences
Construction Status
Payment Plan
Anticipated Completion Date
| Description | Milestone Event | (%) Value |
|---|---|---|
| Down Payment | Immediate | 10% |
| 1st Installment | Within 2 Months of Sale Date (1st Installment) | 10% |
| 2nd Installment | Within 6 Months of Sale Date (2nd Installment) | 10% |
| 3rd Installment | Within 16 Months of Sale Date (3rd Installment) | 10% |
| Payment At Handover | On Completion | 60% |
Title :
Millennium Binghatti Residences
Type :
Free Hold
Project Number :
2014
Completion Status :
Completed/Ready
Life Cycle :
Mature
Master Development :
A01
Developer :
Plot Number :
3460551
Project Configuration :
N/A
Number Of Units :
246
Number Of Floor :
19
Plot Area :
34,391 Square Feet
Built Up Area :
20,031 Square Meter
Construction Status :
100%
Launch Date :
01-Aug-2017
Registration Date :
01-Feb-2018
Construction Started Date :
25-Sep-2017
Anticipated Completion Date :
15-Jul-2021
Cost Consultants :
N/A
Piling Contractors :
N/A
Handover Date :
01-Jun-2021
Main Contractors :
Granada Europe Engineering Contracting Company
Sub Contractors :
N/A
Architects :
N/A
MEP Contractors :
N/A
Project Managers :
N/A
Millennium Binghatti Residences, Business Bay
The Millennium Binghatti Residences is a luxurious high-rise complex located in Business Bay, Dubai. Here are some key details about this remarkable development:
Apartment Types:
Millennium Binghatti Residences:
The newly constructed Millennium Binghatti Residences by Bighatti Developers in Dubai's Business Bay offer furnished studio, one-bedroom, and two-bedroom apartments. The modern structure offers stunning panoramic views, sophisticated fixtures, and roomy bedrooms with cutting-edge Binghatti balcony designs.
Residents may experience a special synthesis of modern urban lifestyle with traditional ideals, integrating its relevance to the regional culture and climate, thanks to its finely designed residences, spacious floor areas, magnificent surroundings, and world-class services.
The distinctive architecture and recognizable wavy shape set the building apart from other nearby buildings. The grand entrance lobby's obvious hotel-inspired architecture, the building's façade, beautiful art panels, Italian marble, and premium materials are all stunning works of art that provide a first-rate residential community.
The Residences, with their meticulously designed interiors and opulent amenities inspired by the Millennium Hotels & Resorts, are without a doubt one of the most eagerly awaited towers to rise in Business Bay. The tower has outstanding amenities such as a children's play area, a swimming pool, and a fitness club.
Features:
U-1001
2
2
N/A
Residential
10
N/A
N/A
1433.64 Square Feet
1433.64 Square Feet
478.24 Square Feet
N/A
N/A
N/A
| Title | Floor | Width (Square Feet) | Length (Square Feet) | Total (Square Feet) |
|---|---|---|---|---|
| Master bedroom 1 | N/A | N/A | N/A | N/A |
| Master bedroom 2 | N/A | N/A | N/A | N/A |
| Bathroom | N/A | N/A | N/A | N/A |
| W.c | N/A | N/A | N/A | N/A |
| Kitchen | N/A | N/A | N/A | N/A |
| Living | N/A | N/A | N/A | N/A |
| Dining | N/A | N/A | N/A | N/A |
| Balcony | N/A | N/A | N/A | N/A |
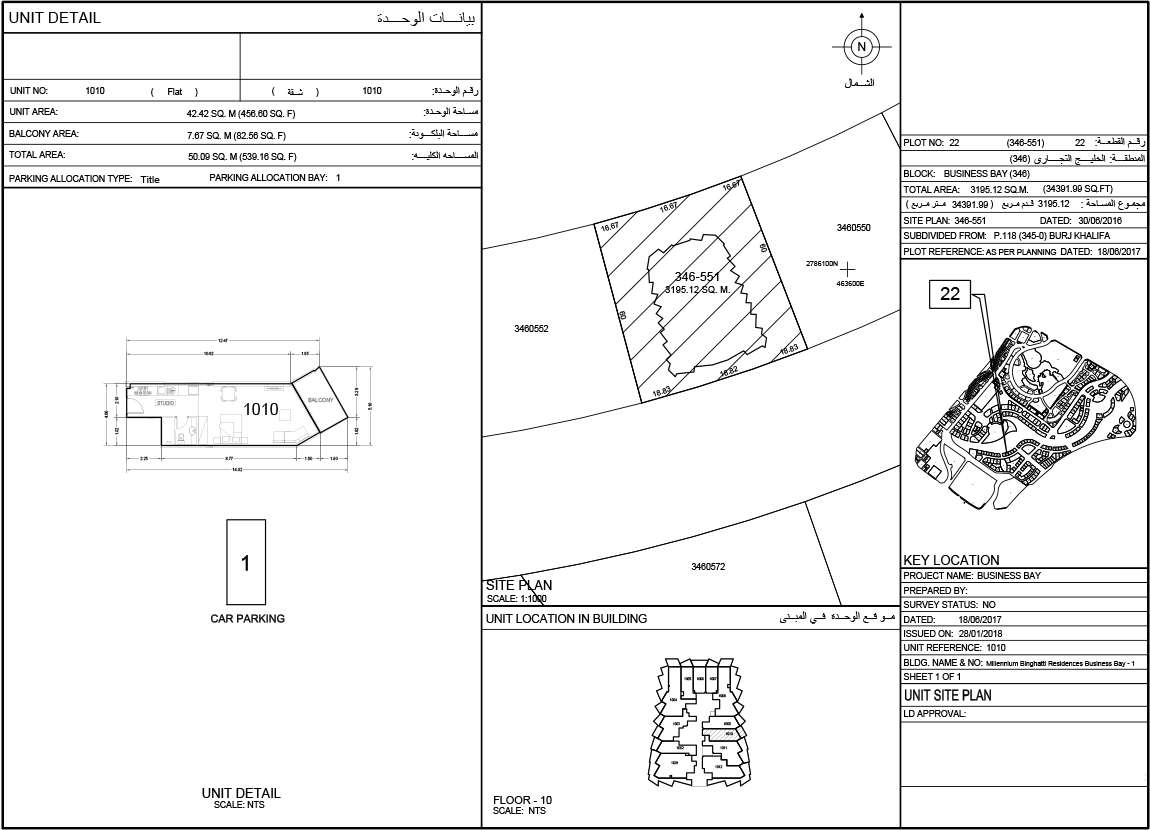
U-1002,1005,1006,1007,1009,1010
studio
1
N/A
Residential
10
N/A
N/A
433.14 Square Feet
552.40 Square Feet
98.38 Square Feet
N/A
N/A
N/A
| Title | Floor | Width (Square Feet) | Length (Square Feet) | Total (Square Feet) |
|---|---|---|---|---|
| Studio | N/A | N/A | N/A | N/A |
| Kitchen | N/A | N/A | N/A | N/A |
| Bathroom | N/A | N/A | N/A | N/A |
| Balcony | N/A | N/A | N/A | N/A |
U-1003
1
1
N/A
Residential
10
N/A
N/A
820.21 Square Feet
820.21 Square Feet
154.46 Square Feet
N/A
N/A
N/A
| Title | Floor | Width (Square Feet) | Length (Square Feet) | Total (Square Feet) |
|---|---|---|---|---|
| Master bedroom | N/A | N/A | N/A | N/A |
| Bathroom | N/A | N/A | N/A | N/A |
| Kitchen | N/A | N/A | N/A | N/A |
| Dining | N/A | N/A | N/A | N/A |
| Balcony | N/A | N/A | N/A | N/A |
U-1004
2
2
N/A
Residential
10
N/A
N/A
1422.45 Square Feet
1422.45 Square Feet
463.28 Square Feet
N/A
N/A
N/A
| Title | Floor | Width (Square Feet) | Length (Square Feet) | Total (Square Feet) |
|---|---|---|---|---|
| Master bedroom 1 | N/A | N/A | N/A | N/A |
| Master bedroom 2 | N/A | N/A | N/A | N/A |
| Bathroom | N/A | N/A | N/A | N/A |
| Bathroom 2 | N/A | N/A | N/A | N/A |
| Kitchen | N/A | N/A | N/A | N/A |
| Living | N/A | N/A | N/A | N/A |
| Dining | N/A | N/A | N/A | N/A |
| Balcony | N/A | N/A | N/A | N/A |
U-1008
2
2
N/A
Residential
10
N/A
N/A
1333.43 Square Feet
1333.43 Square Feet
463.28 Square Feet
N/A
N/A
N/A
| Title | Floor | Width (Square Feet) | Length (Square Feet) | Total (Square Feet) |
|---|---|---|---|---|
| Master bedroom 1 | N/A | N/A | N/A | N/A |
| Master bedroom 2 | N/A | N/A | N/A | N/A |
| Bathroom | N/A | N/A | N/A | N/A |
| Bathroom 2 | N/A | N/A | N/A | N/A |
| Kitchen | N/A | N/A | N/A | N/A |
| Living | N/A | N/A | N/A | N/A |
| Dining | N/A | N/A | N/A | N/A |
| Balcony | N/A | N/A | N/A | N/A |
U-1011
1
1
N/A
Residential
10
N/A
N/A
902.12 Square Feet
902.12 Square Feet
208.60 Square Feet
N/A
N/A
N/A
| Title | Floor | Width (Square Feet) | Length (Square Feet) | Total (Square Feet) |
|---|---|---|---|---|
| Master bedroom | N/A | N/A | N/A | N/A |
| Bathroom | N/A | N/A | N/A | N/A |
| Kitchen | N/A | N/A | N/A | N/A |
| Dining | N/A | N/A | N/A | N/A |
| Living | N/A | N/A | N/A | N/A |
| Balcony | N/A | N/A | N/A | N/A |
U-1012
1
1
N/A
Residential
10
N/A
N/A
1096.09 Square Feet
1096.09 Square Feet
368.88 Square Feet
N/A
N/A
N/A
| Title | Floor | Width (Square Feet) | Length (Square Feet) | Total (Square Feet) |
|---|---|---|---|---|
| bedroom | N/A | N/A | N/A | N/A |
| Bathroom | N/A | N/A | N/A | N/A |
| Kitchen | N/A | N/A | N/A | N/A |
| Dining | N/A | N/A | N/A | N/A |
| Living | N/A | N/A | N/A | N/A |
| Balcony | N/A | N/A | N/A | N/A |
U-201
2
2
N/A
Residential
2
N/A
N/A
1410.61 Square Feet
1410.61 Square Feet
455.21 Square Feet
N/A
N/A
N/A
| Title | Floor | Width (Square Feet) | Length (Square Feet) | Total (Square Feet) |
|---|---|---|---|---|
| Master bedroom 1 | N/A | N/A | N/A | N/A |
| Master bedroom 2 | N/A | N/A | N/A | N/A |
| Bathroom | N/A | N/A | N/A | N/A |
| W.c | N/A | N/A | N/A | N/A |
| Kitchen | N/A | N/A | N/A | N/A |
| Living | N/A | N/A | N/A | N/A |
| Dining | N/A | N/A | N/A | N/A |
| Balcony | N/A | N/A | N/A | N/A |
U-202,205,206,207,209,210
studio
1
N/A
Residential
2
N/A
N/A
433.56 Square Feet
534.54 Square Feet
80.51 Square Feet
N/A
N/A
N/A
| Title | Floor | Width (Square Feet) | Length (Square Feet) | Total (Square Feet) |
|---|---|---|---|---|
| Studio | N/A | N/A | N/A | N/A |
| Kitchen | N/A | N/A | N/A | N/A |
| Bathroom | N/A | N/A | N/A | N/A |
| Balcony | N/A | N/A | N/A | N/A |
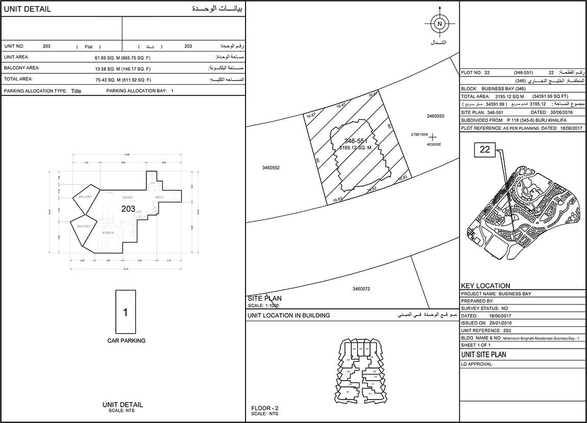
U-203
1
1
N/A
Residential
2
N/A
N/A
811.92 Square Feet
811.92 Square Feet
146.17 Square Feet
N/A
N/A
N/A
| Title | Floor | Width (Square Feet) | Length (Square Feet) | Total (Square Feet) |
|---|---|---|---|---|
| Master bedroom | N/A | N/A | N/A | N/A |
| Bathroom | N/A | N/A | N/A | N/A |
| Kitchen | N/A | N/A | N/A | N/A |
| Dining | N/A | N/A | N/A | N/A |
| Balcony | N/A | N/A | N/A | N/A |
U-204
2
2
N/A
Residential
2
N/A
N/A
1455.93 Square Feet
1455.93 Square Feet
496.75 Square Feet
N/A
N/A
N/A
| Title | Floor | Width (Square Feet) | Length (Square Feet) | Total (Square Feet) |
|---|---|---|---|---|
| Master bedroom 1 | N/A | N/A | N/A | N/A |
| Master bedroom 2 | N/A | N/A | N/A | N/A |
| Bathroom | N/A | N/A | N/A | N/A |
| W.c | N/A | N/A | N/A | N/A |
| Kitchen | N/A | N/A | N/A | N/A |
| Living | N/A | N/A | N/A | N/A |
| Dining | N/A | N/A | N/A | N/A |
| Balcony | N/A | N/A | N/A | N/A |
U-208
2
2
N/A
Residential
2
N/A
N/A
1366.69 Square Feet
1366.69 Square Feet
496.54 Square Feet
N/A
N/A
N/A
| Title | Floor | Width (Square Feet) | Length (Square Feet) | Total (Square Feet) |
|---|---|---|---|---|
| Master bedroom 1 | N/A | N/A | N/A | N/A |
| Master bedroom 2 | N/A | N/A | N/A | N/A |
| Bathroom | N/A | N/A | N/A | N/A |
| W.c | N/A | N/A | N/A | N/A |
| Kitchen | N/A | N/A | N/A | N/A |
| Living | N/A | N/A | N/A | N/A |
| Dining | N/A | N/A | N/A | N/A |
| Balcony | N/A | N/A | N/A | N/A |
U-211
1
1
N/A
Residential
2
N/A
N/A
855.19 Square Feet
855.19 Square Feet
161.67 Square Feet
N/A
N/A
N/A
| Title | Floor | Width (Square Feet) | Length (Square Feet) | Total (Square Feet) |
|---|---|---|---|---|
| Master bedroom | N/A | N/A | N/A | N/A |
| Bathroom | N/A | N/A | N/A | N/A |
| Kitchen | N/A | N/A | N/A | N/A |
| Dining | N/A | N/A | N/A | N/A |
| Living | N/A | N/A | N/A | N/A |
| Balcony | N/A | N/A | N/A | N/A |
U-212
1
1
N/A
Residential
2
N/A
N/A
1102.12 Square Feet
1102.12 Square Feet
374.91 Square Feet
N/A
N/A
N/A
| Title | Floor | Width (Square Feet) | Length (Square Feet) | Total (Square Feet) |
|---|---|---|---|---|
| bedroom | N/A | N/A | N/A | N/A |
| Bathroom | N/A | N/A | N/A | N/A |
| Kitchen | N/A | N/A | N/A | N/A |
| Dining | N/A | N/A | N/A | N/A |
| Living | N/A | N/A | N/A | N/A |
| Balcony | N/A | N/A | N/A | N/A |
U-301
2
2
N/A
Residential
3
N/A
N/A
1418.14 Square Feet
1418.14 Square Feet
462.74 Square Feet
N/A
N/A
N/A
| Title | Floor | Width (Square Feet) | Length (Square Feet) | Total (Square Feet) |
|---|---|---|---|---|
| Master bedroom 1 | N/A | N/A | N/A | N/A |
| Master bedroom 2 | N/A | N/A | N/A | N/A |
| Bathroom | N/A | N/A | N/A | N/A |
| W.c | N/A | N/A | N/A | N/A |
| Kitchen | N/A | N/A | N/A | N/A |
| Living | N/A | N/A | N/A | N/A |
| Dining | N/A | N/A | N/A | N/A |
| Balcony | N/A | N/A | N/A | N/A |
U-302,305,306,307,309,310
studio
1
N/A
Residential
3
N/A
N/A
440.03 Square Feet
440.03 Square Feet
75.67 Square Feet
N/A
N/A
N/A
| Title | Floor | Width (Square Feet) | Length (Square Feet) | Total (Square Feet) |
|---|---|---|---|---|
| Studio | N/A | N/A | N/A | N/A |
| Kitchen | N/A | N/A | N/A | N/A |
| Bathroom | N/A | N/A | N/A | N/A |
| Balcony | N/A | N/A | N/A | N/A |
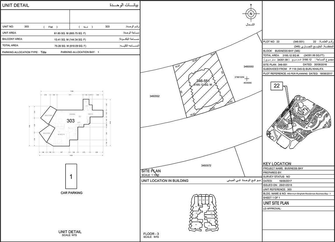
U-303
1
1
N/A
Residential
3
N/A
N/A
810.09 Square Feet
810.09 Square Feet
144.34 Square Feet
N/A
N/A
N/A
| Title | Floor | Width (Square Feet) | Length (Square Feet) | Total (Square Feet) |
|---|---|---|---|---|
| Master bedroom | N/A | N/A | N/A | N/A |
| Bathroom | N/A | N/A | N/A | N/A |
| Kitchen | N/A | N/A | N/A | N/A |
| Dining | N/A | N/A | N/A | N/A |
| Balcony | N/A | N/A | N/A | N/A |
U-304
2
2
N/A
Residential
3
N/A
N/A
1496.61 Square Feet
1496.61 Square Feet
537.44 Square Feet
N/A
N/A
N/A
| Title | Floor | Width (Square Feet) | Length (Square Feet) | Total (Square Feet) |
|---|---|---|---|---|
| Master bedroom 1 | N/A | N/A | N/A | N/A |
| Master bedroom 2 | N/A | N/A | N/A | N/A |
| Bathroom | N/A | N/A | N/A | N/A |
| Bathroom 2 | N/A | N/A | N/A | N/A |
| Kitchen | N/A | N/A | N/A | N/A |
| Living | N/A | N/A | N/A | N/A |
| Dining | N/A | N/A | N/A | N/A |
| Balcony | N/A | N/A | N/A | N/A |
U-308
2
2
N/A
Residential
3
N/A
N/A
1407.60 Square Feet
1407.60 Square Feet
537.44 Square Feet
N/A
N/A
N/A
| Title | Floor | Width (Square Feet) | Length (Square Feet) | Total (Square Feet) |
|---|---|---|---|---|
| Master bedroom 1 | N/A | N/A | N/A | N/A |
| bedroom 2 | N/A | N/A | N/A | N/A |
| Bathroom | N/A | N/A | N/A | N/A |
| W.c | N/A | N/A | N/A | N/A |
| Kitchen | N/A | N/A | N/A | N/A |
| Living | N/A | N/A | N/A | N/A |
| Dining | N/A | N/A | N/A | N/A |
| Balcony | N/A | N/A | N/A | N/A |
U-311
1
1
N/A
Residential
3
N/A
N/A
850.56 Square Feet
850.56 Square Feet
157.05 Square Feet
N/A
N/A
N/A
| Title | Floor | Width (Square Feet) | Length (Square Feet) | Total (Square Feet) |
|---|---|---|---|---|
| Master bedroom | N/A | N/A | N/A | N/A |
| Bathroom | N/A | N/A | N/A | N/A |
| Kitchen | N/A | N/A | N/A | N/A |
| Dining | N/A | N/A | N/A | N/A |
| Living | N/A | N/A | N/A | N/A |
| Balcony | N/A | N/A | N/A | N/A |
U-312
1
1
N/A
Residential
3
N/A
N/A
1109.44 Square Feet
1109.44 Square Feet
385.23 Square Feet
N/A
N/A
N/A
| Title | Floor | Width (Square Feet) | Length (Square Feet) | Total (Square Feet) |
|---|---|---|---|---|
| bedroom | N/A | N/A | N/A | N/A |
| Bathroom | N/A | N/A | N/A | N/A |
| Kitchen | N/A | N/A | N/A | N/A |
| Dining | N/A | N/A | N/A | N/A |
| Living | N/A | N/A | N/A | N/A |
| Balcony | N/A | N/A | N/A | N/A |
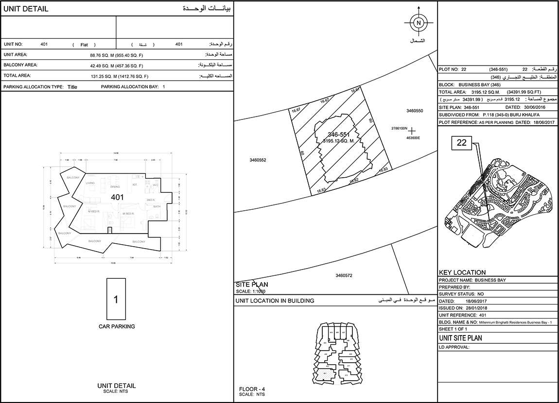
U-401
2
2
N/A
Residential
4
N/A
N/A
1412.76 Square Feet
1412.76 Square Feet
457.36 Square Feet
N/A
N/A
N/A
| Title | Floor | Width (Square Feet) | Length (Square Feet) | Total (Square Feet) |
|---|---|---|---|---|
| Master bedroom 1 | N/A | N/A | N/A | N/A |
| Master bedroom 2 | N/A | N/A | N/A | N/A |
| Bathroom | N/A | N/A | N/A | N/A |
| W.c | N/A | N/A | N/A | N/A |
| Kitchen | N/A | N/A | N/A | N/A |
| Living | N/A | N/A | N/A | N/A |
| Dining | N/A | N/A | N/A | N/A |
| Balcony | N/A | N/A | N/A | N/A |
U-402,405,406,407,409,410
studio
1
N/A
Residential
4
N/A
N/A
447.46 Square Feet
542.07 Square Feet
70.50 Square Feet
N/A
N/A
N/A
| Title | Floor | Width (Square Feet) | Length (Square Feet) | Total (Square Feet) |
|---|---|---|---|---|
| Studio | N/A | N/A | N/A | N/A |
| Kitchen | N/A | N/A | N/A | N/A |
| Bathroom | N/A | N/A | N/A | N/A |
| Balcony | N/A | N/A | N/A | N/A |
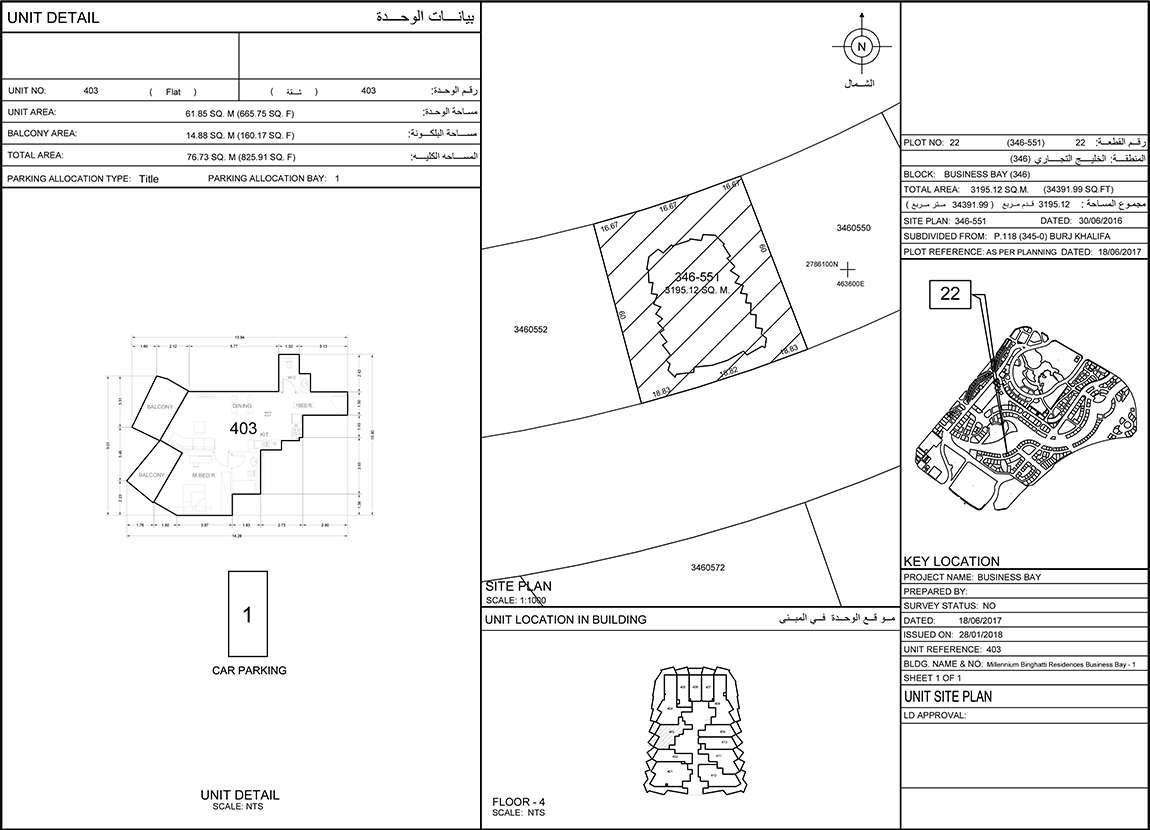
U-403
1
1
N/A
Residential
4
N/A
N/A
825.91 Square Feet
825.91 Square Feet
160.17 Square Feet
N/A
N/A
N/A
| Title | Floor | Width (Square Feet) | Length (Square Feet) | Total (Square Feet) |
|---|---|---|---|---|
| Master bedroom | N/A | N/A | N/A | N/A |
| Bathroom | N/A | N/A | N/A | N/A |
| Kitchen | N/A | N/A | N/A | N/A |
| Dining | N/A | N/A | N/A | N/A |
| Balcony | N/A | N/A | N/A | N/A |
U-404
2
2
N/A
Residential
4
N/A
N/A
1520.72 Square Feet
1520.72 Square Feet
561.55 Square Feet
N/A
N/A
N/A
| Title | Floor | Width (Square Feet) | Length (Square Feet) | Total (Square Feet) |
|---|---|---|---|---|
| Master bedroom 1 | N/A | N/A | N/A | N/A |
| Master bedroom 2 | N/A | N/A | N/A | N/A |
| Bathroom | N/A | N/A | N/A | N/A |
| Bathroom 2 | N/A | N/A | N/A | N/A |
| Kitchen | N/A | N/A | N/A | N/A |
| Living | N/A | N/A | N/A | N/A |
| Dining | N/A | N/A | N/A | N/A |
| Balcony | N/A | N/A | N/A | N/A |
| W.c | N/A | N/A | N/A | N/A |
U-408
2
2
N/A
Residential
4
N/A
N/A
1431.60 Square Feet
1431.60 Square Feet
561.45 Square Feet
N/A
N/A
N/A
| Title | Floor | Width (Square Feet) | Length (Square Feet) | Total (Square Feet) |
|---|---|---|---|---|
| Master bedroom 1 | N/A | N/A | N/A | N/A |
| bedroom 2 | N/A | N/A | N/A | N/A |
| Bathroom | N/A | N/A | N/A | N/A |
| W.c | N/A | N/A | N/A | N/A |
| Kitchen | N/A | N/A | N/A | N/A |
| Living | N/A | N/A | N/A | N/A |
| Dining | N/A | N/A | N/A | N/A |
| Balcony | N/A | N/A | N/A | N/A |
U-411
1
1
N/A
Residential
4
N/A
N/A
840.55 Square Feet
840.55 Square Feet
147.03 Square Feet
N/A
N/A
N/A
| Title | Floor | Width (Square Feet) | Length (Square Feet) | Total (Square Feet) |
|---|---|---|---|---|
| Master bedroom | N/A | N/A | N/A | N/A |
| Bathroom | N/A | N/A | N/A | N/A |
| Kitchen | N/A | N/A | N/A | N/A |
| Dining | N/A | N/A | N/A | N/A |
| Living | N/A | N/A | N/A | N/A |
| Balcony | N/A | N/A | N/A | N/A |
U-412
1
1
N/A
Residential
4
N/A
N/A
1108.90 Square Feet
1108.90 Square Feet
381.69 Square Feet
N/A
N/A
N/A
| Title | Floor | Width (Square Feet) | Length (Square Feet) | Total (Square Feet) |
|---|---|---|---|---|
| bedroom | N/A | N/A | N/A | N/A |
| Bathroom | N/A | N/A | N/A | N/A |
| Kitchen | N/A | N/A | N/A | N/A |
| Dining | N/A | N/A | N/A | N/A |
| Living | N/A | N/A | N/A | N/A |
| Balcony | N/A | N/A | N/A | N/A |
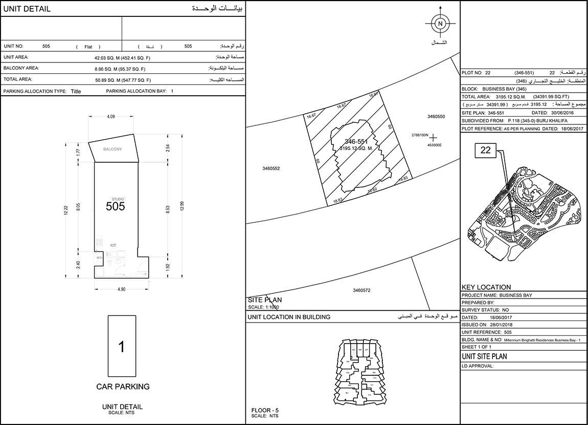
U-501
2
2
N/A
Residential
5
N/A
N/A
1401.03 Square Feet
1401.03 Square Feet
445.63 Square Feet
N/A
N/A
N/A
| Title | Floor | Width (Square Feet) | Length (Square Feet) | Total (Square Feet) |
|---|---|---|---|---|
| Master bedroom 1 | N/A | N/A | N/A | N/A |
| Master bedroom 2 | N/A | N/A | N/A | N/A |
| Bathroom | N/A | N/A | N/A | N/A |
| W.c | N/A | N/A | N/A | N/A |
| Kitchen | N/A | N/A | N/A | N/A |
| Living | N/A | N/A | N/A | N/A |
| Dining | N/A | N/A | N/A | N/A |
| Balcony | N/A | N/A | N/A | N/A |
U-502,505,506,507,509,510
studio
1
N/A
Residential
5
N/A
N/A
453.05 Square Feet
547.77 Square Feet
73.95 Square Feet
N/A
N/A
N/A
| Title | Floor | Width (Square Feet) | Length (Square Feet) | Total (Square Feet) |
|---|---|---|---|---|
| Studio | N/A | N/A | N/A | N/A |
| Kitchen | N/A | N/A | N/A | N/A |
| Bathroom | N/A | N/A | N/A | N/A |
| Balcony | N/A | N/A | N/A | N/A |
U-503
1
1
N/A
Residential
5
N/A
N/A
852.18 Square Feet
852.18 Square Feet
186.43 Square Feet
N/A
N/A
N/A
| Title | Floor | Width (Square Feet) | Length (Square Feet) | Total (Square Feet) |
|---|---|---|---|---|
| Master bedroom | N/A | N/A | N/A | N/A |
| Bathroom | N/A | N/A | N/A | N/A |
| Kitchen | N/A | N/A | N/A | N/A |
| Dining | N/A | N/A | N/A | N/A |
| Balcony | N/A | N/A | N/A | N/A |
U-504
2
2
N/A
Residential
5
N/A
N/A
1519.76 Square Feet
1519.76 Square Feet
560.58 Square Feet
N/A
N/A
N/A
| Title | Floor | Width (Square Feet) | Length (Square Feet) | Total (Square Feet) |
|---|---|---|---|---|
| Master bedroom 1 | N/A | N/A | N/A | N/A |
| Master bedroom 2 | N/A | N/A | N/A | N/A |
| Bathroom | N/A | N/A | N/A | N/A |
| Bathroom 2 | N/A | N/A | N/A | N/A |
| Kitchen | N/A | N/A | N/A | N/A |
| Living | N/A | N/A | N/A | N/A |
| Dining | N/A | N/A | N/A | N/A |
| Balcony | N/A | N/A | N/A | N/A |
| W.c | N/A | N/A | N/A | N/A |
U-508
2
2
N/A
Residential
5
N/A
N/A
1430.74 Square Feet
1430.74 Square Feet
560.58 Square Feet
N/A
N/A
N/A
| Title | Floor | Width (Square Feet) | Length (Square Feet) | Total (Square Feet) |
|---|---|---|---|---|
| Master bedroom 1 | N/A | N/A | N/A | N/A |
| Master bedroom 2 | N/A | N/A | N/A | N/A |
| Bathroom | N/A | N/A | N/A | N/A |
| W.c | N/A | N/A | N/A | N/A |
| Kitchen | N/A | N/A | N/A | N/A |
| Living | N/A | N/A | N/A | N/A |
| Dining | N/A | N/A | N/A | N/A |
| Balcony | N/A | N/A | N/A | N/A |
U-511
1
1
N/A
Residential
5
N/A
N/A
838.72 Square Feet
838.72 Square Feet
145.21 Square Feet
N/A
N/A
N/A
| Title | Floor | Width (Square Feet) | Length (Square Feet) | Total (Square Feet) |
|---|---|---|---|---|
| Master bedroom | N/A | N/A | N/A | N/A |
| Bathroom | N/A | N/A | N/A | N/A |
| Kitchen | N/A | N/A | N/A | N/A |
| Dining | N/A | N/A | N/A | N/A |
| Living | N/A | N/A | N/A | N/A |
| Balcony | N/A | N/A | N/A | N/A |
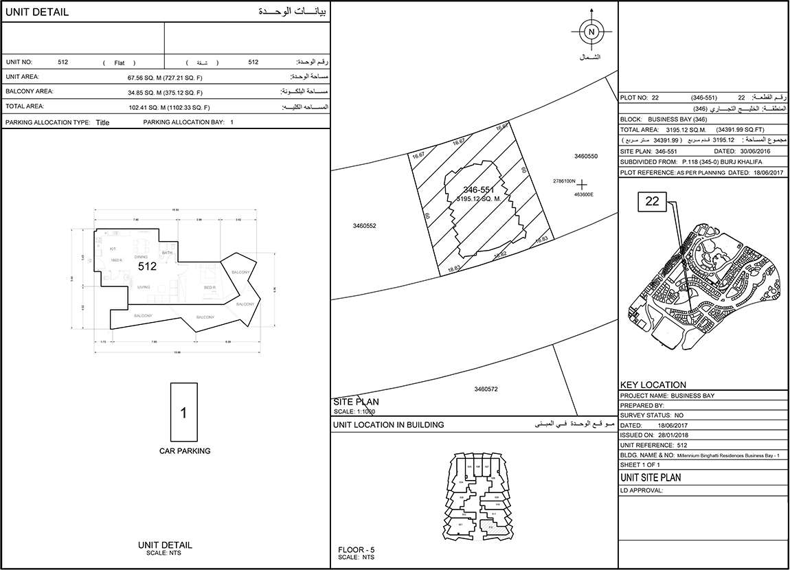
U-512
1
1
N/A
Residential
5
N/A
N/A
1102.33 Square Feet
1102.33 Square Feet
375.12 Square Feet
N/A
N/A
N/A
| Title | Floor | Width (Square Feet) | Length (Square Feet) | Total (Square Feet) |
|---|---|---|---|---|
| bedroom | N/A | N/A | N/A | N/A |
| Bathroom | N/A | N/A | N/A | N/A |
| Kitchen | N/A | N/A | N/A | N/A |
| Dining | N/A | N/A | N/A | N/A |
| Living | N/A | N/A | N/A | N/A |
| Balcony | N/A | N/A | N/A | N/A |
U-601
2
2
N/A
Residential
6
N/A
N/A
1396.29 Square Feet
1396.29 Square Feet
440.89 Square Feet
N/A
N/A
N/A
| Title | Floor | Width (Square Feet) | Length (Square Feet) | Total (Square Feet) |
|---|---|---|---|---|
| Master bedroom 1 | N/A | N/A | N/A | N/A |
| Master bedroom 2 | N/A | N/A | N/A | N/A |
| Bathroom | N/A | N/A | N/A | N/A |
| W.c | N/A | N/A | N/A | N/A |
| Kitchen | N/A | N/A | N/A | N/A |
| Living | N/A | N/A | N/A | N/A |
| Dining | N/A | N/A | N/A | N/A |
| Balcony | N/A | N/A | N/A | N/A |
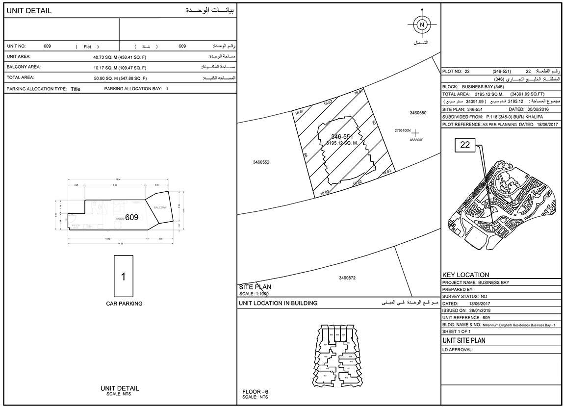
U-602,605,606,607,609,610
Studio
1
N/A
Residential
5
N/A
N/A
454.99 Square Feet
556.92 Square Feet
86.22 Square Feet
N/A
N/A
N/A
| Title | Floor | Width (Square Feet) | Length (Square Feet) | Total (Square Feet) |
|---|---|---|---|---|
| Studio | N/A | N/A | N/A | N/A |
| Kitchen | N/A | N/A | N/A | N/A |
| Bathroom | N/A | N/A | N/A | N/A |
| Balcony | N/A | N/A | N/A | N/A |
U-603
1
1
N/A
Residential
6
N/A
N/A
875.54 Square Feet
875.54 Square Feet
209.79 Square Feet
N/A
N/A
N/A
| Title | Floor | Width (Square Feet) | Length (Square Feet) | Total (Square Feet) |
|---|---|---|---|---|
| Master bedroom | N/A | N/A | N/A | N/A |
| Bathroom | N/A | N/A | N/A | N/A |
| Kitchen | N/A | N/A | N/A | N/A |
| Dining | N/A | N/A | N/A | N/A |
| Balcony | N/A | N/A | N/A | N/A |
U-604
2
2
N/A
Residential
6
N/A
N/A
1500.38 Square Feet
1500.38 Square Feet
541.21 Square Feet
N/A
N/A
N/A
| Title | Floor | Width (Square Feet) | Length (Square Feet) | Total (Square Feet) |
|---|---|---|---|---|
| Master bedroom 1 | N/A | N/A | N/A | N/A |
| Master bedroom 2 | N/A | N/A | N/A | N/A |
| Bathroom | N/A | N/A | N/A | N/A |
| Bathroom 2 | N/A | N/A | N/A | N/A |
| Kitchen | N/A | N/A | N/A | N/A |
| Living | N/A | N/A | N/A | N/A |
| Dining | N/A | N/A | N/A | N/A |
| Balcony | N/A | N/A | N/A | N/A |
| W.c | N/A | N/A | N/A | N/A |
U-608
2
2
N/A
Residential
6
N/A
N/A
1411.36 Square Feet
1411.36 Square Feet
541.21 Square Feet
N/A
N/A
N/A
| Title | Floor | Width (Square Feet) | Length (Square Feet) | Total (Square Feet) |
|---|---|---|---|---|
| Master bedroom 1 | N/A | N/A | N/A | N/A |
| Master bedroom 2 | N/A | N/A | N/A | N/A |
| Bathroom | N/A | N/A | N/A | N/A |
| W.c | N/A | N/A | N/A | N/A |
| Kitchen | N/A | N/A | N/A | N/A |
| Living | N/A | N/A | N/A | N/A |
| Dining | N/A | N/A | N/A | N/A |
| Balcony | N/A | N/A | N/A | N/A |
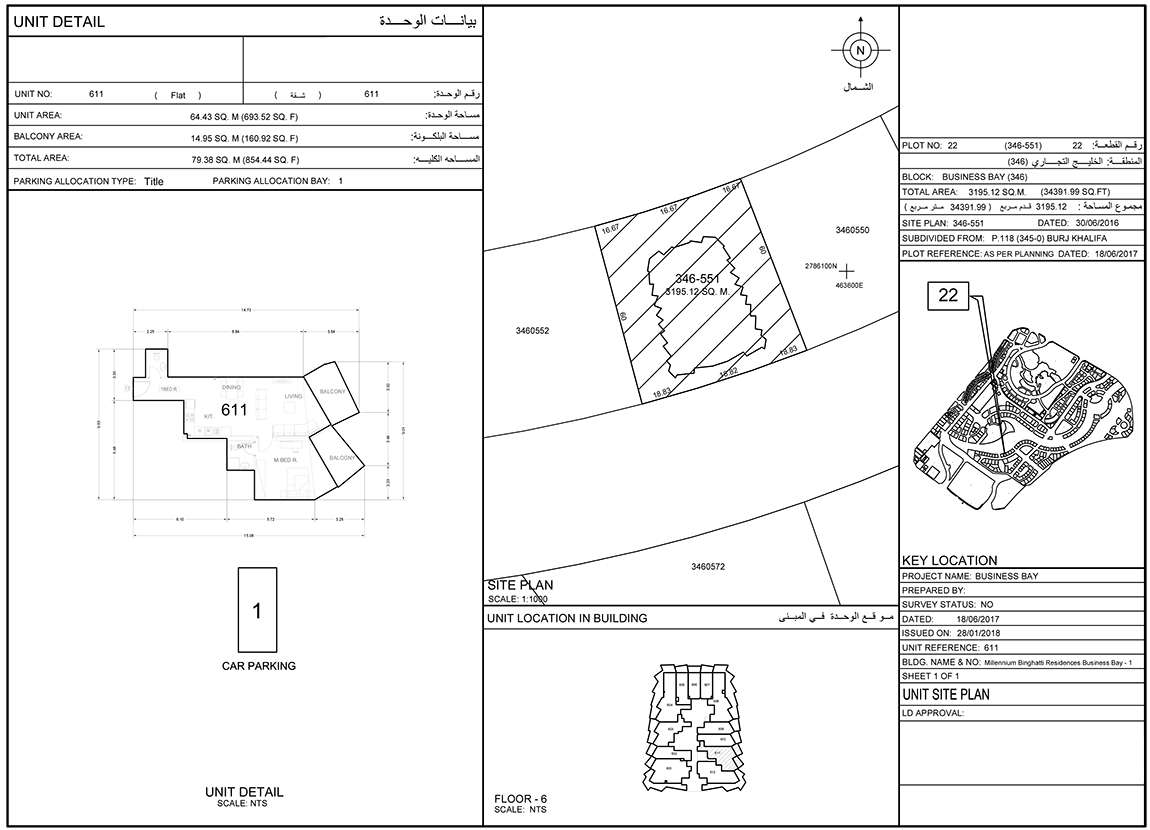
U-611
1
1
N/A
Residential
6
N/A
N/A
854.44 Square Feet
854.44 Square Feet
160.92 Square Feet
N/A
N/A
N/A
| Title | Floor | Width (Square Feet) | Length (Square Feet) | Total (Square Feet) |
|---|---|---|---|---|
| Master bedroom | N/A | N/A | N/A | N/A |
| Bathroom | N/A | N/A | N/A | N/A |
| Kitchen | N/A | N/A | N/A | N/A |
| Dining | N/A | N/A | N/A | N/A |
| Living | N/A | N/A | N/A | N/A |
| Balcony | N/A | N/A | N/A | N/A |
U-612
1
1
N/A
Residential
6
N/A
N/A
1094.04 Square Feet
1094.04 Square Feet
366.83 Square Feet
N/A
N/A
N/A
| Title | Floor | Width (Square Feet) | Length (Square Feet) | Total (Square Feet) |
|---|---|---|---|---|
| bedroom | N/A | N/A | N/A | N/A |
| Bathroom | N/A | N/A | N/A | N/A |
| Kitchen | N/A | N/A | N/A | N/A |
| Dining | N/A | N/A | N/A | N/A |
| Living | N/A | N/A | N/A | N/A |
| Balcony | N/A | N/A | N/A | N/A |
U-701
2
2
N/A
Residential
7
N/A
N/A
1402.75 Square Feet
1402.75 Square Feet
447.35 Square Feet
N/A
N/A
N/A
| Title | Floor | Width (Square Feet) | Length (Square Feet) | Total (Square Feet) |
|---|---|---|---|---|
| Master bedroom 1 | N/A | N/A | N/A | N/A |
| Master bedroom 2 | N/A | N/A | N/A | N/A |
| Bathroom | N/A | N/A | N/A | N/A |
| W.c | N/A | N/A | N/A | N/A |
| Kitchen | N/A | N/A | N/A | N/A |
| Living | N/A | N/A | N/A | N/A |
| Dining | N/A | N/A | N/A | N/A |
| Balcony | N/A | N/A | N/A | N/A |
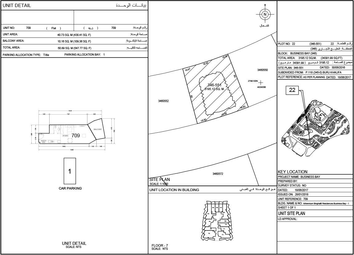
U-702,705,706,707,709,710
Studio
1
N/A
Residential
7
N/A
N/A
452.08 Square Feet
566.07 Square Feet
100.32 Square Feet
N/A
N/A
N/A
| Title | Floor | Width (Square Feet) | Length (Square Feet) | Total (Square Feet) |
|---|---|---|---|---|
| Studio | N/A | N/A | N/A | N/A |
| Kitchen | N/A | N/A | N/A | N/A |
| Bathroom | N/A | N/A | N/A | N/A |
| Balcony | N/A | N/A | N/A | N/A |
U-703
1
1
N/A
Residential
7
N/A
N/A
884.58 Square Feet
884.58 Square Feet
218.83 Square Feet
N/A
N/A
N/A
| Title | Floor | Width (Square Feet) | Length (Square Feet) | Total (Square Feet) |
|---|---|---|---|---|
| Master bedroom | N/A | N/A | N/A | N/A |
| Bathroom | N/A | N/A | N/A | N/A |
| Kitchen | N/A | N/A | N/A | N/A |
| Dining | N/A | N/A | N/A | N/A |
| Balcony | N/A | N/A | N/A | N/A |
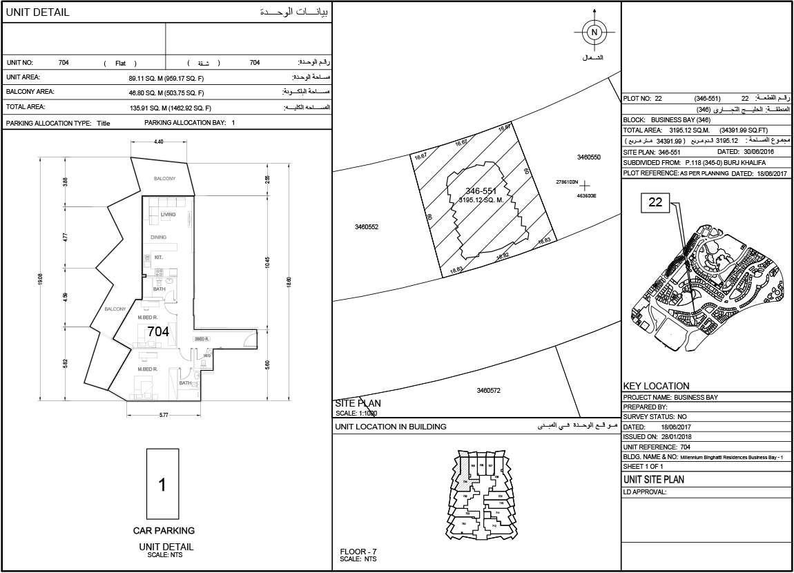
U-704
2
2
N/A
Residential
7
N/A
N/A
1462.92 Square Feet
1462.92 Square Feet
503.75 Square Feet
N/A
N/A
N/A
| Title | Floor | Width (Square Feet) | Length (Square Feet) | Total (Square Feet) |
|---|---|---|---|---|
| Master bedroom 1 | N/A | N/A | N/A | N/A |
| Master bedroom 2 | N/A | N/A | N/A | N/A |
| Bathroom | N/A | N/A | N/A | N/A |
| Bathroom 2 | N/A | N/A | N/A | N/A |
| Kitchen | N/A | N/A | N/A | N/A |
| Living | N/A | N/A | N/A | N/A |
| Dining | N/A | N/A | N/A | N/A |
| Balcony | N/A | N/A | N/A | N/A |
| W.c | N/A | N/A | N/A | N/A |
U-708
2
2
N/A
Residential
7
N/A
N/A
1373.90 Square Feet
1373.90 Square Feet
503.75 Square Feet
N/A
N/A
N/A
| Title | Floor | Width (Square Feet) | Length (Square Feet) | Total (Square Feet) |
|---|---|---|---|---|
| Master bedroom 1 | N/A | N/A | N/A | N/A |
| bedroom 2 | N/A | N/A | N/A | N/A |
| Bathroom | N/A | N/A | N/A | N/A |
| W.c | N/A | N/A | N/A | N/A |
| Kitchen | N/A | N/A | N/A | N/A |
| Living | N/A | N/A | N/A | N/A |
| Dining | N/A | N/A | N/A | N/A |
| Balcony | N/A | N/A | N/A | N/A |
U-711
1
1
N/A
Residential
7
N/A
N/A
880.92 Square Feet
880.92 Square Feet
187.40 Square Feet
N/A
N/A
N/A
| Title | Floor | Width (Square Feet) | Length (Square Feet) | Total (Square Feet) |
|---|---|---|---|---|
| Master bedroom | N/A | N/A | N/A | N/A |
| Bathroom | N/A | N/A | N/A | N/A |
| Kitchen | N/A | N/A | N/A | N/A |
| Dining | N/A | N/A | N/A | N/A |
| Living | N/A | N/A | N/A | N/A |
| Balcony | N/A | N/A | N/A | N/A |
U-712
1
1
N/A
Residential
7
N/A
N/A
1088.34 Square Feet
1088.34 Square Feet
361.13 Square Feet
N/A
N/A
N/A
| Title | Floor | Width (Square Feet) | Length (Square Feet) | Total (Square Feet) |
|---|---|---|---|---|
| bedroom | N/A | N/A | N/A | N/A |
| Bathroom | N/A | N/A | N/A | N/A |
| Kitchen | N/A | N/A | N/A | N/A |
| Dining | N/A | N/A | N/A | N/A |
| Living | N/A | N/A | N/A | N/A |
| Balcony | N/A | N/A | N/A | N/A |
U-801
2
2
N/A
Residential
8
N/A
N/A
1417.39 Square Feet
1417.39 Square Feet
461.99 Square Feet
N/A
N/A
N/A
| Title | Floor | Width (Square Feet) | Length (Square Feet) | Total (Square Feet) |
|---|---|---|---|---|
| Master bedroom 1 | N/A | N/A | N/A | N/A |
| Master bedroom 2 | N/A | N/A | N/A | N/A |
| Bathroom | N/A | N/A | N/A | N/A |
| W.c | N/A | N/A | N/A | N/A |
| Kitchen | N/A | N/A | N/A | N/A |
| Living | N/A | N/A | N/A | N/A |
| Dining | N/A | N/A | N/A | N/A |
| Balcony | N/A | N/A | N/A | N/A |
U-802,805,806,807,809,810
Studio
1
N/A
Residential
8
N/A
N/A
446.27 Square Feet
565.97 Square Feet
N/A
N/A
N/A
N/A
| Title | Floor | Width (Square Feet) | Length (Square Feet) | Total (Square Feet) |
|---|---|---|---|---|
| Studio | N/A | N/A | N/A | N/A |
| Kitchen | N/A | N/A | N/A | N/A |
| Bathroom | N/A | N/A | N/A | N/A |
| Balcony | N/A | N/A | N/A | N/A |
U-803
1
1
N/A
Residential
8
N/A
N/A
873.49 Square Feet
873.49 Square Feet
207.74 Square Feet
N/A
N/A
N/A
| Title | Floor | Width (Square Feet) | Length (Square Feet) | Total (Square Feet) |
|---|---|---|---|---|
| Master bedroom | N/A | N/A | N/A | N/A |
| Bathroom | N/A | N/A | N/A | N/A |
| Kitchen | N/A | N/A | N/A | N/A |
| Dining | N/A | N/A | N/A | N/A |
| Balcony | N/A | N/A | N/A | N/A |
U-804
2
2
N/A
Residential
8
N/A
N/A
1438.60 Square Feet
1438.60 Square Feet
479.42 Square Feet
N/A
N/A
N/A
| Title | Floor | Width (Square Feet) | Length (Square Feet) | Total (Square Feet) |
|---|---|---|---|---|
| Master bedroom 1 | N/A | N/A | N/A | N/A |
| Master bedroom 2 | N/A | N/A | N/A | N/A |
| Bathroom | N/A | N/A | N/A | N/A |
| Bathroom 2 | N/A | N/A | N/A | N/A |
| Kitchen | N/A | N/A | N/A | N/A |
| Living | N/A | N/A | N/A | N/A |
| Dining | N/A | N/A | N/A | N/A |
| Balcony | N/A | N/A | N/A | N/A |
| W.c | N/A | N/A | N/A | N/A |
U-808
2
2
N/A
Residential
8
N/A
N/A
1349.58 Square Feet
1349.58 Square Feet
479.42 Square Feet
N/A
N/A
N/A
| Title | Floor | Width (Square Feet) | Length (Square Feet) | Total (Square Feet) |
|---|---|---|---|---|
| Master bedroom 1 | N/A | N/A | N/A | N/A |
| bedroom 2 | N/A | N/A | N/A | N/A |
| Bathroom | N/A | N/A | N/A | N/A |
| W.c | N/A | N/A | N/A | N/A |
| Kitchen | N/A | N/A | N/A | N/A |
| Living | N/A | N/A | N/A | N/A |
| Dining | N/A | N/A | N/A | N/A |
| Balcony | N/A | N/A | N/A | N/A |
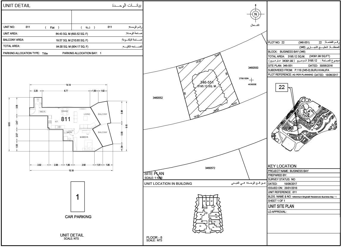
U-811
1
1
N/A
Residential
8
N/A
N/A
904.17 Square Feet
904.17 Square Feet
210.65 Square Feet
N/A
N/A
N/A
| Title | Floor | Width (Square Feet) | Length (Square Feet) | Total (Square Feet) |
|---|---|---|---|---|
| Master bedroom | N/A | N/A | N/A | N/A |
| Bathroom | N/A | N/A | N/A | N/A |
| Kitchen | N/A | N/A | N/A | N/A |
| Dining | N/A | N/A | N/A | N/A |
| Living | N/A | N/A | N/A | N/A |
| Balcony | N/A | N/A | N/A | N/A |
U-812
1
1
N/A
Residential
8
N/A
N/A
1088.88 Square Feet
1088.88 Square Feet
361.67 Square Feet
N/A
N/A
N/A
| Title | Floor | Width (Square Feet) | Length (Square Feet) | Total (Square Feet) |
|---|---|---|---|---|
| bedroom | N/A | N/A | N/A | N/A |
| Bathroom | N/A | N/A | N/A | N/A |
| Kitchen | N/A | N/A | N/A | N/A |
| Dining | N/A | N/A | N/A | N/A |
| Living | N/A | N/A | N/A | N/A |
| Balcony | N/A | N/A | N/A | N/A |
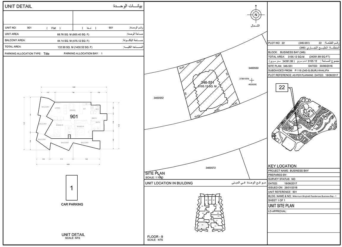
U-901
2
2
N/A
Residential
9
N/A
N/A
1430.52 Square Feet
1430.52 Square Feet
475.12 Square Feet
N/A
N/A
N/A
| Title | Floor | Width (Square Feet) | Length (Square Feet) | Total (Square Feet) |
|---|---|---|---|---|
| Master bedroom 1 | N/A | N/A | N/A | N/A |
| Master bedroom 2 | N/A | N/A | N/A | N/A |
| Bathroom | N/A | N/A | N/A | N/A |
| W.c | N/A | N/A | N/A | N/A |
| Kitchen | N/A | N/A | N/A | N/A |
| Living | N/A | N/A | N/A | N/A |
| Dining | N/A | N/A | N/A | N/A |
| Balcony | N/A | N/A | N/A | N/A |
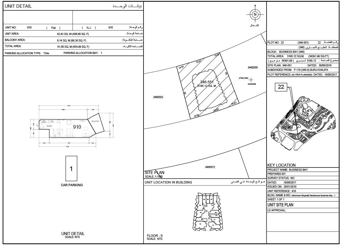
U-902,905,906,907,909,910
Studio
1
N/A
Residential
9
N/A
N/A
439.27 Square Feet
563.38 Square Feet
109.36 Square Feet
N/A
N/A
N/A
| Title | Floor | Width (Square Feet) | Length (Square Feet) | Total (Square Feet) |
|---|---|---|---|---|
| Studio | N/A | N/A | N/A | N/A |
| Kitchen | N/A | N/A | N/A | N/A |
| Bathroom | N/A | N/A | N/A | N/A |
| Balcony | N/A | N/A | N/A | N/A |
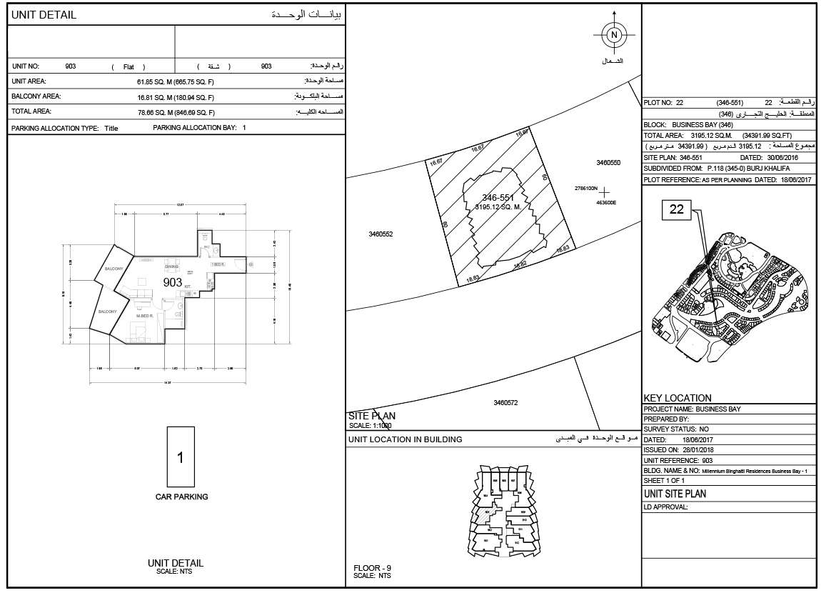
U-903
1
1
N/A
Residential
9
N/A
N/A
846.69 Square Feet
846.69 Square Feet
180.94 Square Feet
N/A
N/A
N/A
| Title | Floor | Width (Square Feet) | Length (Square Feet) | Total (Square Feet) |
|---|---|---|---|---|
| Master bedroom | N/A | N/A | N/A | N/A |
| Bathroom | N/A | N/A | N/A | N/A |
| Kitchen | N/A | N/A | N/A | N/A |
| Dining | N/A | N/A | N/A | N/A |
| Balcony | N/A | N/A | N/A | N/A |
U-904
2
2
N/A
Residential
9
N/A
N/A
1425.36 Square Feet
1425.36 Square Feet
466.18 Square Feet
N/A
N/A
N/A
| Title | Floor | Width (Square Feet) | Length (Square Feet) | Total (Square Feet) |
|---|---|---|---|---|
| Master bedroom 1 | N/A | N/A | N/A | N/A |
| Master bedroom 2 | N/A | N/A | N/A | N/A |
| Bathroom | N/A | N/A | N/A | N/A |
| Bathroom 2 | N/A | N/A | N/A | N/A |
| Kitchen | N/A | N/A | N/A | N/A |
| Living | N/A | N/A | N/A | N/A |
| Dining | N/A | N/A | N/A | N/A |
| Balcony | N/A | N/A | N/A | N/A |
| W.c | N/A | N/A | N/A | N/A |
U-908
2
2
N/A
Residential
9
N/A
N/A
1336.34 Square Feet
1336.34 Square Feet
466.18 Square Feet
N/A
N/A
N/A
| Title | Floor | Width (Square Feet) | Length (Square Feet) | Total (Square Feet) |
|---|---|---|---|---|
| Master bedroom 1 | N/A | N/A | N/A | N/A |
| bedroom 2 | N/A | N/A | N/A | N/A |
| Bathroom | N/A | N/A | N/A | N/A |
| W.c | N/A | N/A | N/A | N/A |
| Kitchen | N/A | N/A | N/A | N/A |
| Living | N/A | N/A | N/A | N/A |
| Dining | N/A | N/A | N/A | N/A |
| Balcony | N/A | N/A | N/A | N/A |
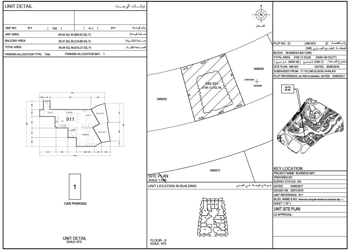
U-911
1
o
N/A
Residential
9
N/A
N/A
913.21 Square Feet
913.21 Square Feet
219.69 Square Feet
N/A
N/A
N/A
| Title | Floor | Width (Square Feet) | Length (Square Feet) | Total (Square Feet) |
|---|---|---|---|---|
| Master bedroom | N/A | N/A | N/A | N/A |
| Bathroom | N/A | N/A | N/A | N/A |
| Kitchen | N/A | N/A | N/A | N/A |
| Dining | N/A | N/A | N/A | N/A |
| Living | N/A | N/A | N/A | N/A |
| Balcony | N/A | N/A | N/A | N/A |
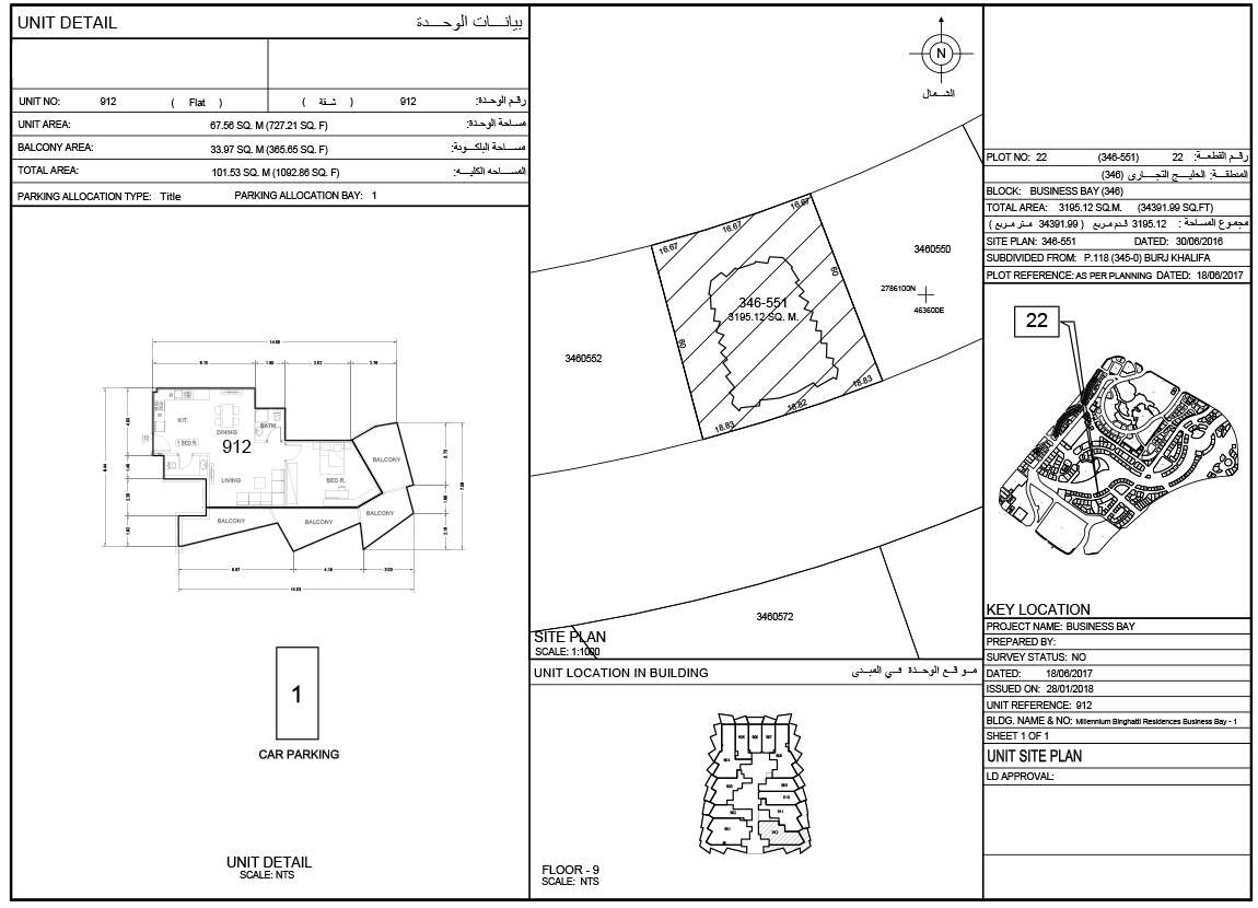
U-912
1
1
N/A
Residential
9
N/A
N/A
1092.86 Square Feet
1092.86 Square Feet
365.65 Square Feet
N/A
N/A
N/A
| Title | Floor | Width (Square Feet) | Length (Square Feet) | Total (Square Feet) |
|---|---|---|---|---|
| bedroom | N/A | N/A | N/A | N/A |
| Bathroom | N/A | N/A | N/A | N/A |
| Kitchen | N/A | N/A | N/A | N/A |
| Dining | N/A | N/A | N/A | N/A |
| Living | N/A | N/A | N/A | N/A |
| Balcony | N/A | N/A | N/A | N/A |
.jpg)
.jpg)
.jpg)
.jpg)
.jpg)
.jpg)
.jpg)