UAE > Dubai > Business Bay > Zone A > A01 > Executive Towers > Executive Tower F (East Heights - 1)
Title :
Executive Tower F (East Heights - 1)
Type :
Free Hold
Project Number :
N/A
Completion Status :
Completed/Ready
Life Cycle :
Mature
Master Development :
Executive Towers
Developer :
Plot Number :
11-
Project Configuration :
N/A
Number Of Units :
142
Number Of Floor :
30
Plot Area :
N/A
Built Up Area :
N/A
Status Percentage :
100
Launch Date :
01-Jan-2005
Registration Date :
N/A
Construction Started Date :
N/A
Anticipated Completion Date :
01-Jan-2010
Cost Consultants :
N/A
Piling Contractors :
N/A
Handover Date :
01-Jan-2010
Main Contractors :
N/A
Sub Contractors :
N/A
Architects :
N/A
MEP Contractors :
N/A
Project Managers :
N/A
Overview:
Unit Size Range (SQ. FT)
Key Points:
| Title | Action |
|---|---|
| F10 | View Details |
| F21 | View Details |
| F23 | View Details |
| F20 | View Details |
| F31 | View Details |
| F32 | View Details |
| F22 | View Details |
| F33 | View Details |
| F-GD02 | View Details |
| F30 | View Details |
| F32-A | View Details |
| F-GD02-A | View Details |
| F-GD03 | View Details |
| F-GDO3A-A | View Details |
| F-GD01 | View Details |
| F-DG01-A | View Details |
| F-DG01A-A | View Details |
| F30-A | View Details |
F10
1
1
N/A
N/A
03 to 10
N/A
N/A
1,214 Square Feet
1,214 Square Feet
N/A
N/A
N/A
N/A
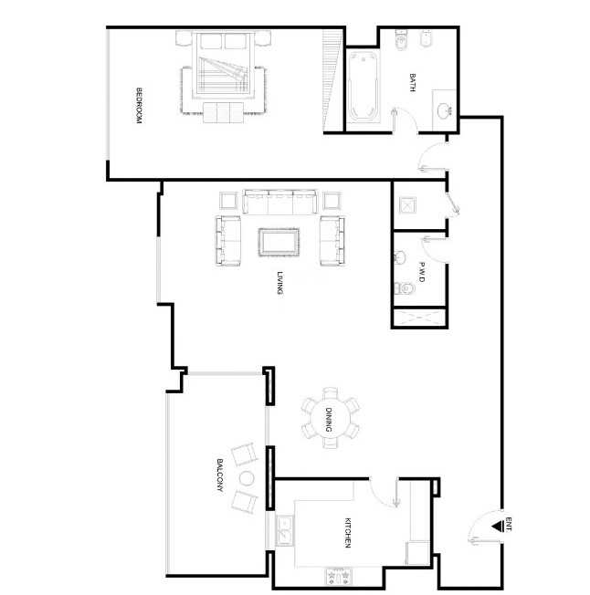
F10 Apartment Details:
| Title | Floor | Width (Square Feet) | Length (Square Feet) | Total (Square Feet) |
|---|---|---|---|---|
| Bed room | N/A | 39.83 | 53.82 | 2,143.65 |
| Living | N/A | 48.44 | 55.97 | 2,711.19 |
| Dining | N/A | 38.75 | 58.13 | 2,252.54 |
| Kitchen | N/A | 27.99 | 39.83 | 1,114.84 |
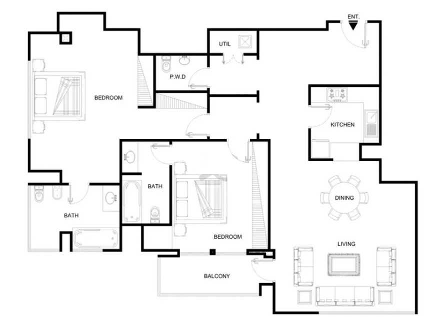
F21
2
3
N/A
N/A
11 - 18
N/A
N/A
1,317 Square Feet
1,317 Square Feet
N/A
N/A
N/A
N/A
F21 Apartment Details:
| Title | Floor | Width (Square Feet) | Length (Square Feet) | Total (Square Feet) |
|---|---|---|---|---|
| Bedroom 1 | N/A | 39.83 | 53.82 | 2,143.65 |
| Bedroom 2 | N/A | 38.75 | 37.67 | 1,459.71 |
| Kitchen | N/A | 37.67 | 27.99 | 1,054.38 |
| Living and Dining | N/A | 67.81 | 45.21 | 3,065.69 |
F23
2
3
N/A
N/A
17 - 18
N/A
N/A
1,547 Square Feet
1,547 Square Feet
N/A
N/A
N/A
N/A
F23 Apartment Details:
| Title | Floor | Width (Square Feet) | Length (Square Feet) | Total (Square Feet) |
|---|---|---|---|---|
| Bedroom 1 | N/A | 46.29 | 63.51 | 2,939.88 |
| Bedroom 2 | N/A | 35.52 | 45.21 | 1,605.86 |
| Living and Dining | N/A | 62.43 | 62.43 | 3,897.50 |
| Kitchen | N/A | 29.06 | 30.14 | 875.87 |
F20
2
3
N/A
N/A
03 to 18
N/A
N/A
1,735 Square Feet
1,735 Square Feet
N/A
N/A
N/A
N/A
F20 Apartment Details:
| Title | Floor | Width (Square Feet) | Length (Square Feet) | Total (Square Feet) |
|---|---|---|---|---|
| Bedroom 1 | N/A | 39.83 | 53.82 | 2,143.65 |
| Bedroom 2 | N/A | 40.90 | 38.75 | 1,584.88 |
| Living and Dining | N/A | 74.27 | 81.81 | 6,076.03 |
| Kitchen | N/A | 46.29 | 47.36 | 2,192.29 |
F31
3
5
N/A
N/A
20 - 27
N/A
N/A
1,809 Square Feet
1,809 Square Feet
N/A
N/A
N/A
N/A
F31 Apartment Details:
| Title | Floor | Width (Square Feet) | Length (Square Feet) | Total (Square Feet) |
|---|---|---|---|---|
| Bedroom 1 | N/A | 40.90 | 53.82 | 2,201.24 |
| Bedroom 2 | N/A | 38.75 | 38.75 | 1,501.56 |
| Bedroom 3 | N/A | 41.98 | 48.44 | 2,033.51 |
| Living and Dining | N/A | 57.05 | 76.42 | 4,359.76 |
| Kitchen | N/A | 51.67 | 29.06 | 1,501.53 |
| Maid Room | N/A | 33.37 | 20.45 | 682.42 |
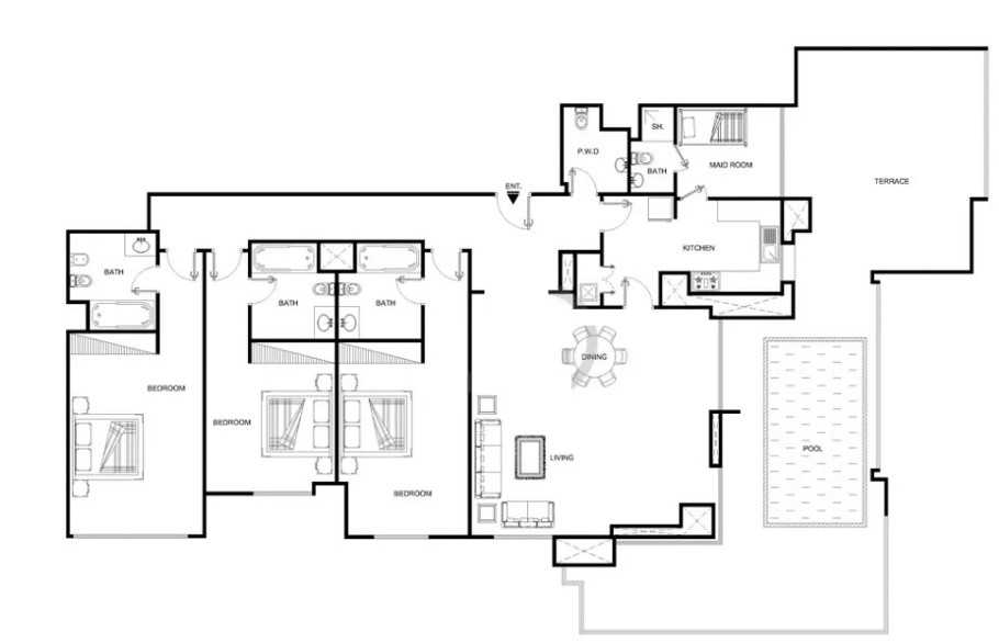
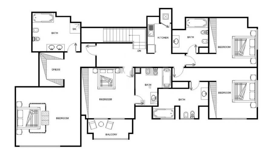
F32
3
5
N/A
N/A
21 - 27
N/A
N/A
1,963 Square Feet
1,963 Square Feet
N/A
N/A
N/A
N/A
F32 Apartment Details:
| Title | Floor | Width (Square Feet) | Length (Square Feet) | Total (Square Feet) |
|---|---|---|---|---|
| Bedroom 1 | N/A | 39.83 | 53.82 | 2,143.65 |
| Bedroom 2 | N/A | 39.83 | 36.60 | 1,457.78 |
| Bedroom 3 | N/A | 39.83 | 50.59 | 2,015.00 |
| Living and Dining | N/A | 75.35 | 71.04 | 5,352.86 |
| Kitchen | N/A | 53.82 | 29.06 | 1,564.01 |
| Maid Room | N/A | 32.29 | 24.76 | 799.50 |
F22
2
2
N/A
N/A
16
N/A
N/A
2,014 Square Feet
2,014 Square Feet
N/A
N/A
N/A
N/A
F22 2Bedroom Apartment Details:
| Title | Floor | Width (Square Feet) | Length (Square Feet) | Total (Square Feet) |
|---|---|---|---|---|
| Bedroom 1 | N/A | 60.28 | 46.29 | 2,790.36 |
| Bedroom 2 | N/A | 44.13 | 38.75 | 1,710.04 |
| Living and Dining | N/A | 89.34 | 62.43 | 5,577.50 |
| Kitchen | N/A | 61.35 | 33.37 | 2,047.25 |
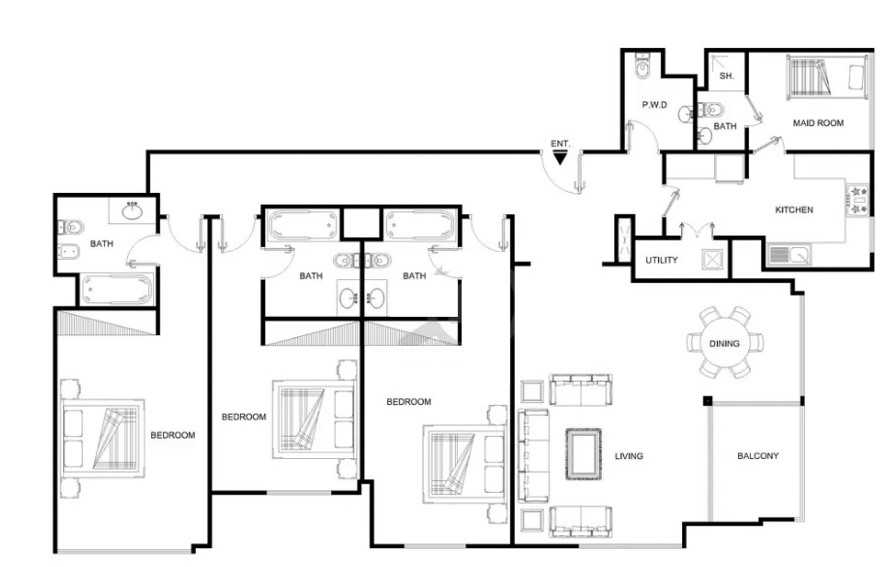
F33
3
5
N/A
N/A
03 to 15
N/A
N/A
2,035 Square Feet
2,035 Square Feet
N/A
N/A
N/A
N/A
F33 3 Bedroom Apartment Details:
| Title | Floor | Width (Square Feet) | Length (Square Feet) | Total (Square Feet) |
|---|---|---|---|---|
| Bedroom 1 | N/A | 39.83 | 44.13 | 1,757.70 |
| Bedroom 2 | N/A | 39.83 | 47.36 | 1,886.35 |
| Bedroom 3 | N/A | 38.75 | 45.21 | 1,751.89 |
| Living and Dining | N/A | 87.19 | 83.96 | 7,320.47 |
| Kitchen | N/A | 48.44 | 32.29 | 1,564.13 |
| Maid Room | N/A | 23.68 | 37.67 | 892.03 |
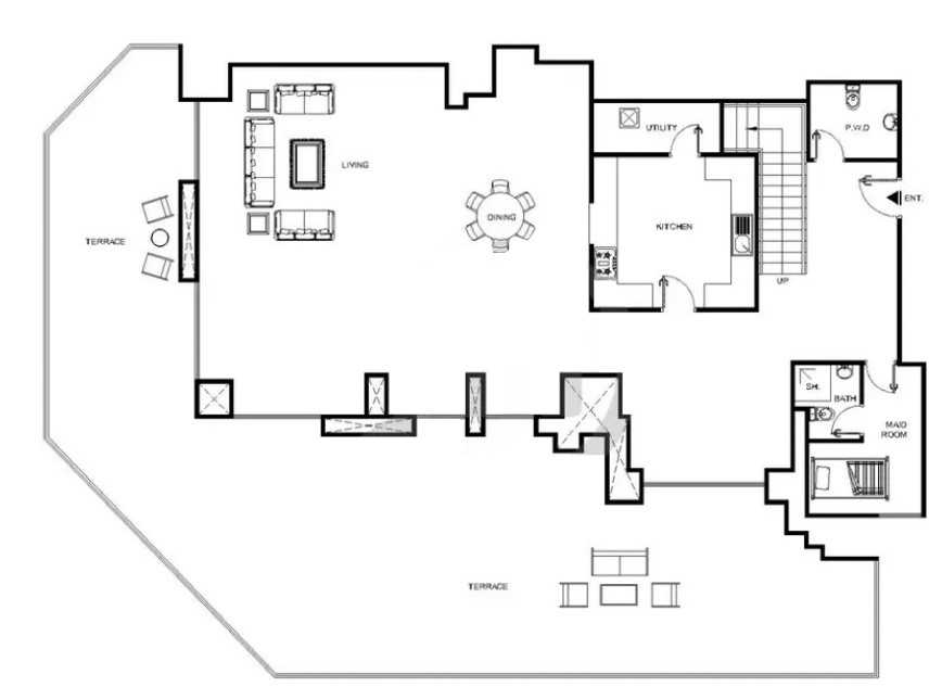
F-GD02
3
5
L+U
N/A
01 - 02
N/A
N/A
2,548 Square Feet
2,548 Square Feet
N/A
N/A
N/A
N/A
F-GD02 3 Bedroom Apartment Details:
Lower Details:
Upper Details:
| Title | Floor | Width (Square Feet) | Length (Square Feet) | Total (Square Feet) |
|---|---|---|---|---|
| Living and Dining | Lower | 43.06 | 71.04 | 3,058.98 |
| Maid Room | Lower | 24.76 | 21.53 | 533.08 |
| Kitchen | Lower | 38.75 | 37.67 | 1,459.71 |
| Bedroom 1 | Upper | 49.51 | 51.67 | 2,558.18 |
| Bedroom 2 | Upper | 40.90 | 41.98 | 1,716.98 |
| Bedroom 3 | N/A | 41.98 | 36.60 | 1,536.47 |
F30
3
5
N/A
N/A
20
N/A
N/A
2,832 Square Feet
2,832 Square Feet
N/A
N/A
N/A
N/A
F30 3 Bedroom Apartment Details:
| Title | Floor | Width (Square Feet) | Length (Square Feet) | Total (Square Feet) |
|---|---|---|---|---|
| Bedroom 1 | N/A | 39.83 | 53.82 | 2,143.65 |
| Bedroom 2 | N/A | 39.83 | 36.60 | 1,457.78 |
| Bedroom 3 | N/A | 39.83 | 50.59 | 2,015.00 |
| Living and Dining | N/A | 74.27 | 71.04 | 5,276.14 |
| Kitchen | N/A | 54.90 | 27.99 | 1,536.65 |
| Maid Room | N/A | 32.29 | 24.76 | 799.50 |
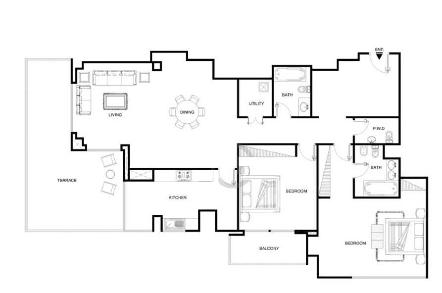
F32-A
3
4
N/A
N/A
21-27
N/A
N/A
N/A
N/A
N/A
N/A
N/A
N/A
F32-A 3 Bedroom Apartment Details:
| Title | Floor | Width (Square Feet) | Length (Square Feet) | Total (Square Feet) |
|---|---|---|---|---|
| Living and Dining | N/A | 43.06 | 71.04 | 3,058.98 |
| Kitchen | N/A | 38.75 | 37.67 | 1,459.71 |
| Maid Room | N/A | 24.76 | 21.53 | 533.08 |
| Bedroom 1 | N/A | 49.51 | 51.67 | 2,558.18 |
| Bedroom 2 | N/A | 40.90 | 41.98 | 1,716.98 |
| Bedroom 3 | N/A | 41.98 | 36.60 | 1,536.47 |
F-GD02-A
3
3
L+U
N/A
01 to 02
N/A
N/A
N/A
N/A
N/A
N/A
N/A
N/A
F-GD02-A 3 Bedroom Apartment Details:
Lower Details:
Upper Details:
| Title | Floor | Width (Square Feet) | Length (Square Feet) | Total (Square Feet) |
|---|---|---|---|---|
| Living and Dining | N/A | 75.35 | 71.04 | 5,352.86 |
| Kitchen | N/A | 43.06 | 33.37 | 1,436.91 |
| Maid Room | N/A | 24.76 | 27.99 | 693.03 |
| Bedroom 1 | N/A | 57.05 | 51.67 | 2,947.77 |
| Bedroom 2 | N/A | 44.13 | 33.37 | 1,472.62 |
| Bedroom 3 | N/A | 39.83 | 76.42 | 3,043.81 |
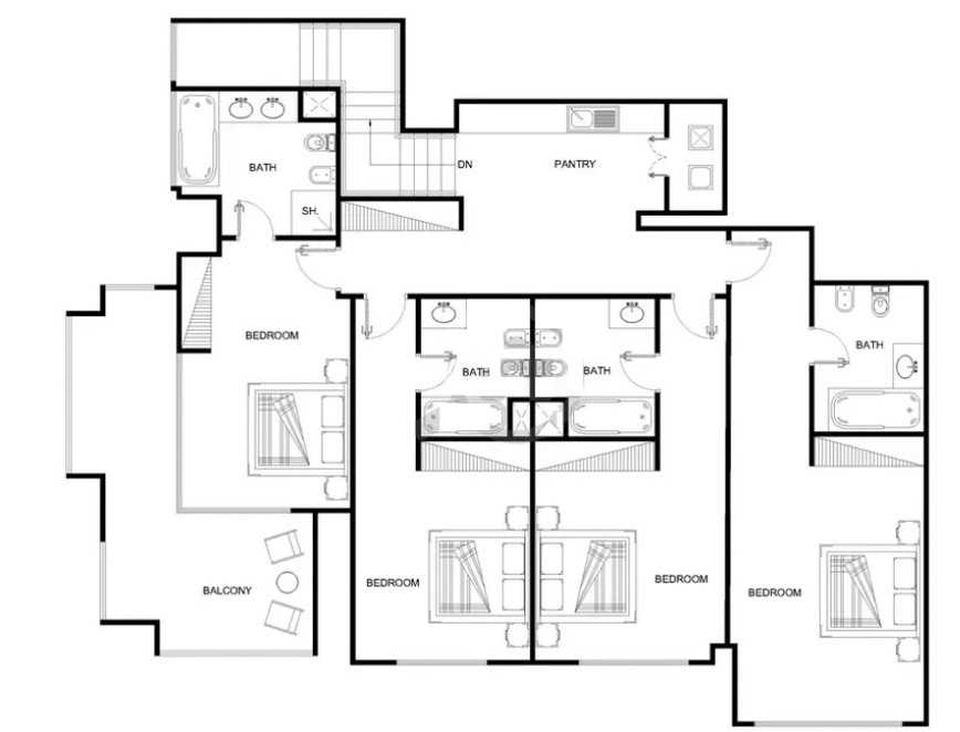
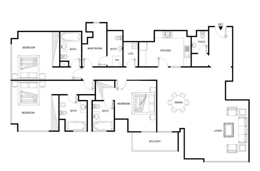
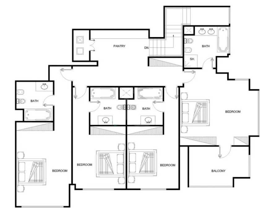
F-GD03
4
6
L+U
N/A
01 to 02
N/A
N/A
4,663 Square Feet
4,663 Square Feet
N/A
N/A
N/A
N/A
F-GD03 4 Bedroom Apartment Details:
Its built-up area is about 4663 Sqft.
Lower Details:
Upper Details:
| Title | Floor | Width (Square Feet) | Length (Square Feet) | Total (Square Feet) |
|---|---|---|---|---|
| Living and Dining | Lower | 141.01 | 88.26 | 12,445.54 |
| Kitchen | N/A | 52.74 | 36.60 | 1,930.28 |
| Maid Room | N/A | 38.75 | 15.07 | 583.96 |
| Bedroom 1 | N/A | 36.60 | 54.90 | 2,009.34 |
| Bedroom 2 | N/A | 37.67 | 37.67 | 1,419.03 |
| Bedroom 3 | N/A | 40.90 | 37.67 | 1,540.70 |
| Bedroom 4 | N/A | 38.75 | 51.67 | 2,002.21 |
F-GDO3A-A
4
6
L+U
N/A
01 to 02
N/A
N/A
N/A
N/A
N/A
N/A
N/A
N/A
F-GD03A-A 4 Bedroom Apartment Details:
Lower Details:
Upper Details:
| Title | Floor | Width (Square Feet) | Length (Square Feet) | Total (Square Feet) |
|---|---|---|---|---|
| Living | Lower | 78.58 | 108.72 | 8,543.22 |
| Kitchen | Lower | 40.90 | 50.59 | 2,069.13 |
| Maid Room | Lower | 38.75 | 37.67 | 1,459.71 |
| Bedroom 1 | Upper | 35.52 | 54.90 | 1,950.05 |
| Bedroom 2 | Upper | 36.60 | 37.67 | 1,378.72 |
| Bedroom 3 | Upper | 40.90 | 37.67 | 1,540.70 |
| Bedroom 4 | Upper | 38.75 | 51.67 | 2,002.21 |
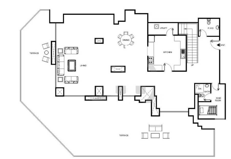
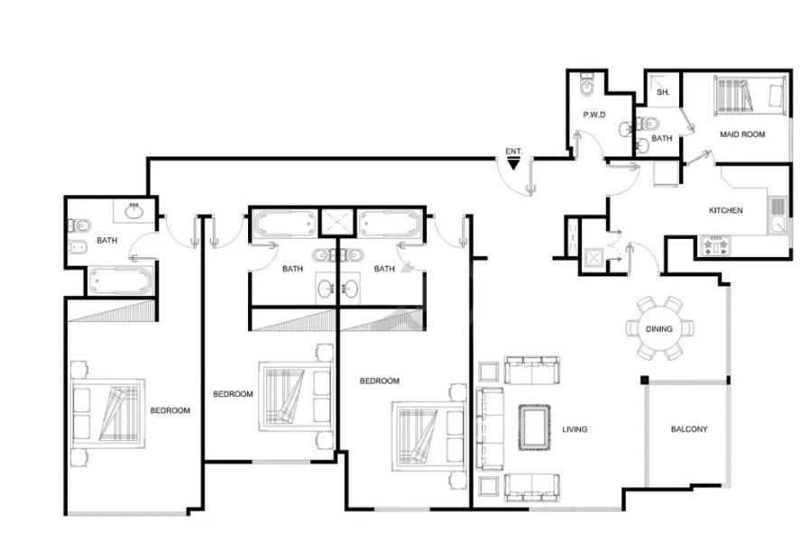
F-GD01
4
6
L+U
N/A
01 to 02
N/A
N/A
5,117 Square Feet
5,117 Square Feet
N/A
N/A
N/A
N/A
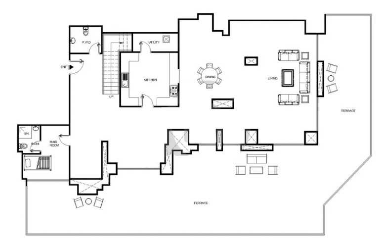
F-GD01 4 Bedroom Apartment Details:
Its Built-up area is 5117 Sqft.
Lower Details:
Upper Details:
| Title | Floor | Width (Square Feet) | Length (Square Feet) | Total (Square Feet) |
|---|---|---|---|---|
| Living and Dining | Lower | 105.49 | 90.42 | 9,538.41 |
| Family Room | Lower | 50.59 | 61.35 | 3,103.70 |
| Kitchen | Lower | 44.13 | 39.83 | 1,757.70 |
| Maid Room | Lower | 30.14 | 37.67 | 1,135.37 |
| Bedroom 1 | Upper | 46.29 | 44.13 | 2,042.78 |
| Bedroom 2 | Upper | 46.29 | 46.29 | 2,142.76 |
| Bedroom 3 | Upper | 43.06 | 44.13 | 1,900.24 |
| Bedroom 4 | Upper | 5.60 | 4.90 | 27.44 |
F-DG01-A
4
6
L+U
N/A
01 - 02
N/A
N/A
N/A
N/A
N/A
N/A
N/A
N/A
F-GD01-A 4 Bedroom Apartment Details:
Lower Details:
Upper Details:
| Title | Floor | Width (Square Feet) | Length (Square Feet) | Total (Square Feet) |
|---|---|---|---|---|
| Living and Dining | Lower | 105.49 | 90.42 | 9,538.41 |
| Kitchen | Lower | 44.13 | 39.83 | 1,757.70 |
| Family Room | Lower | 43.06 | 45.21 | 1,946.74 |
| Maid Room | Lower | 35.52 | 19.38 | 688.38 |
| Bedroom 1 | Upper | 38.75 | 85.04 | 3,295.30 |
| Bedroom 2 | Upper | 37.67 | 40.90 | 1,540.70 |
| Bedroom 3 | Upper | 43.06 | 44.13 | 1,900.24 |
| Bedroom 4 | Upper | 60.28 | 52.74 | 3,179.17 |
F-DG01A-A
4
6
L+U
N/A
01 - 02
N/A
N/A
N/A
N/A
N/A
N/A
N/A
N/A
F-GD01A-A 4 Bedroom Apartment Details:
Lower Details:
Upper Details:
| Title | Floor | Width (Square Feet) | Length (Square Feet) | Total (Square Feet) |
|---|---|---|---|---|
| Living and Dining | Lower | 105.49 | 90.42 | 9,538.41 |
| Kitchen | Lower | 44.13 | 39.83 | 1,757.70 |
| Family Room | Lower | 43.06 | 45.21 | 1,946.74 |
| Maid Room | Lower | 35.52 | 19.38 | 688.38 |
F30-A
3
4
N/A
N/A
20
N/A
N/A
N/A
N/A
N/A
N/A
N/A
N/A
F30-A 3 Bedroom Apartment Details:
No data found.
 | Residential apartments.jpg)
 | Dubai.jpg)
 | Well Maintained Area.jpg)
.jpg)