Under Construction

header-logo2.png

Elite Sports Residences 5

UAE > Dubai > Dubai Sports City > Stadium View Apartments > Elite Sports Residences 5

Details

Title :

Elite Sports Residences 5

Type :

Free Hold

Project Number :

N/A

Completion Status :

Completed/Ready

Life Cycle :

N/A

Master Development :

Stadium View Apartments

Plot Number :

6820120

Project Configuration :

G+20

Number Of Units :

354

Number Of Sold Units :

N/A

Number Of Remaining Units :

N/A

Number Of Floor :

20

Plot Area :

43,626 Square Feet

Built Up Area :

210,956 Square Feet

Status Percentage :

100

Launch Date :

N/A

Registration Date :

08-Nov-2008

Construction Started Date :

25-Sep-2008

Anticipated Completion Date :

07-Mar-2014

Cost Consultants :

N/A

Piling Contractors :

N/A

Handover Date :

N/A

Main Contractors :

N/A

Sub Contractors :

N/A

Architects :

N/A

MEP Contractors :

N/A

Project Managers :

N/A





Description

Elite 5 Sports Residence

Elite Sports Residence, a striking assemblage of ten towers dispersed throughout the neighborhood, is one of Sports City's residential developments. We'll concentrate on Elite Sports Residence 5 here. Triplanet International FZC started the project in 2008, and it was finished in 2014. A variety of studios, one-bedroom, and two-bedroom apartments are available for purchase or rental at Elite Tower 5, a high-rise structure.

One of Dubai's most desirable neighborhoods for investors is Dubai Sports City. As the name suggests, the region is a sanctuary for fitness enthusiasts and sports enthusiasts. Both the ICC Academy and the Dubai International Cricket Stadium are located there. It is one of the liveliest neighborhoods in all of Dubai since it provides a mix of residential and business spaces.


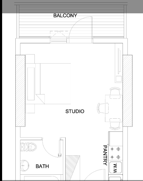
Category Bedroom Mix
Studio 236
1 Bed 99
2 Bed 19

In A Nutshell

  • Type of building: Residential.
  • Location: Dubai Sports City.
  • Developer: Triplanet International Ltd.
  • Date of completion: 2014
  • Number of floors: 20
  • Number of units: 354
  • Unit type: Studios, 1 and 2-bed apartments.
  • Type of Ownership: Freehold.
  • Amenities: Gym, swimming pool for both adults and kids, infinity pool, BBQ area, kids play area.

Location

Title
Action
Type 1
View Details
Type B
View Details
Type C
View Details

Yearly Transactions and Sales

Transactions and Sales by Property Types

Price Per Square Feet "Sale"