Construction Status
Payment Plan
Anticipated Completion Date
Title :
Elire
Type :
Free Hold
Project Number :
3467
Completion Status :
Off Plan
Life Cycle :
Developing
Master Development :
A01
Developer :
Plot Number :
3460268
Project Configuration :
B+G+3P+22
Number Of Units :
101
Number Of Floor :
22
Plot Area :
41,570 Square Feet
Built Up Area :
244,954 Square Feet
Construction Status :
0.11%
Launch Date :
N/A
Registration Date :
28-Apr-2025
Construction Started Date :
15-Apr-2025
Anticipated Completion Date :
15-Dec-2028
Cost Consultants :
N/A
Piling Contractors :
N/A
Handover Date :
01-Feb-2029
Main Contractors :
N/A
Sub Contractors :
N/A
Architects :
N/A
MEP Contractors :
N/A
Project Managers :
N/A
Unit 301
1
1
N/A
Apartment
N/A
N/A
N/A
N/A
N/A
51.56 Square Feet
N/A
N/A
887.38 Square Feet
UNIT NUMBER: 301
NO. OF BEDROOMS: 1
AREA: SQ.M SQ.FT
UNIT: 77.65 835.82
BALCONY: 4.79 51.56
TOTAL: 82.44 887.38
| Title | Floor | Width (Square Feet) | Length (Square Feet) | Total (Square Feet) |
|---|---|---|---|---|
| Balcony | N/A | N/A | N/A | N/A |
| Bedroom | N/A | N/A | N/A | N/A |
| Bathroom | N/A | N/A | N/A | N/A |
| Living/Dining | N/A | N/A | N/A | N/A |
| Kitchen | N/A | N/A | N/A | N/A |
| Toilet | N/A | N/A | N/A | N/A |
Unit 302
2
2
N/A
Apartment
N/A
N/A
N/A
N/A
N/A
177.39 Square Feet
N/A
N/A
1547.96 Square Feet
Unit: 302
Unit Area: 127.33 SQ. M. – 1370,57 SQ. FT.
Balcony: 16.48 SQ.M. – 177,39 SQ. FT.
Total: 143.81 SQ. M. – 1547,96 SQ. FT.
| Title | Floor | Width (Square Feet) | Length (Square Feet) | Total (Square Feet) |
|---|---|---|---|---|
| Balcony | N/A | N/A | N/A | N/A |
| Master Bedroom | N/A | N/A | N/A | N/A |
| Master Bathroom | N/A | N/A | N/A | N/A |
| Bedroom | N/A | N/A | N/A | N/A |
| Bathroom | N/A | N/A | N/A | N/A |
| Living/Dining | N/A | N/A | N/A | N/A |
Unit 303
1
1
N/A
Apartment
N/A
N/A
N/A
N/A
N/A
0.00 Square Feet
N/A
N/A
850.03 Square Feet
Unit: 303
Unit Area: 78.97 SQ.M. - 850.03 SQ.FT.
Balcony: 0.00 SQ.M. - 0.00 SQ.FT.
Total: 78.97 SQ.M. - 850.03 SQ.FT.
| Title | Floor | Width (Square Feet) | Length (Square Feet) | Total (Square Feet) |
|---|---|---|---|---|
| Balcony | N/A | N/A | N/A | N/A |
| Bedroom | N/A | N/A | N/A | N/A |
| Bathroom | N/A | N/A | N/A | N/A |
| Living/Dining | N/A | N/A | N/A | N/A |
| Kitchen | N/A | N/A | N/A | N/A |
| Toilet | N/A | N/A | N/A | N/A |
Unit 304
2
2
N/A
Apartment
N/A
N/A
N/A
N/A
N/A
180.62 Square Feet
N/A
N/A
1564.43 Square Feet
Unit: 304
Unit Area: 128.56 SQ.M. - 1383.81 SQ.FT.
Balcony: 16.78 SQ.M. - 180.62 SQ.FT.
Total: 145.34 SQ.M. - 1564.43 SQ.FT.
| Title | Floor | Width (Square Feet) | Length (Square Feet) | Total (Square Feet) |
|---|---|---|---|---|
| Balcony | N/A | N/A | N/A | N/A |
| Master Bedroom | N/A | N/A | N/A | N/A |
| Master Bathroom | N/A | N/A | N/A | N/A |
| Bedroom | N/A | N/A | N/A | N/A |
| Bathroom | N/A | N/A | N/A | N/A |
| Living/Dining | N/A | N/A | N/A | N/A |
Unit 305
1
1
N/A
Apartment
N/A
N/A
N/A
N/A
N/A
51.56 Square Feet
N/A
N/A
889.96 Square Feet
Unit: 305
Unit Area: 77.89 SQ.M. - 838.40 SQ.FT.
Balcony: 4.79 SQ.M. - 51.56 SQ.FT.
Total: 82.68 SQ.M. - 889.96 SQ.FT.
| Title | Floor | Width (Square Feet) | Length (Square Feet) | Total (Square Feet) |
|---|---|---|---|---|
| Balcony | N/A | N/A | N/A | N/A |
| Bedroom | N/A | N/A | N/A | N/A |
| Bathroom | N/A | N/A | N/A | N/A |
| Living/Dining | N/A | N/A | N/A | N/A |
| Kitchen | N/A | N/A | N/A | N/A |
| Toilet | N/A | N/A | N/A | N/A |
Unit 306
1
1
N/A
Apartment
N/A
N/A
N/A
N/A
N/A
103.23 Square Feet
N/A
N/A
918.38 Square Feet
Unit: 306
Unit Area: 75.73 SQ.M. - 815.15 SQ.FT.
Balcony: 9.59 SQ.M. - 103.23 SQ.FT.
Total: 85.32 SQ.M. - 918.38 SQ.FT.
| Title | Floor | Width (Square Feet) | Length (Square Feet) | Total (Square Feet) |
|---|---|---|---|---|
| Balcony | N/A | N/A | N/A | N/A |
| Bedroom | N/A | N/A | N/A | N/A |
| Bathroom | N/A | N/A | N/A | N/A |
| Living/Dining | N/A | N/A | N/A | N/A |
| Kitchen | N/A | N/A | N/A | N/A |
| Toilet | N/A | N/A | N/A | N/A |
Unit 307
1
1
N/A
Apartment
N/A
N/A
N/A
N/A
N/A
154.03 Square Feet
N/A
N/A
1076.28 Square Feet
Unit: 307
Unit Area: 85.68 SQ.M. - 922.25 SQ.FT.
Balcony: 14.31 SQ.M. - 154.03 SQ.FT.
Total: 99.99 SQ.M. - 1076.28 SQ.FT.
| Title | Floor | Width (Square Feet) | Length (Square Feet) | Total (Square Feet) |
|---|---|---|---|---|
| Balcony | N/A | N/A | N/A | N/A |
| Bedroom | N/A | N/A | N/A | N/A |
| Bathroom | N/A | N/A | N/A | N/A |
| Living/Dining | N/A | N/A | N/A | N/A |
| Kitchen | N/A | N/A | N/A | N/A |
| Toilet | N/A | N/A | N/A | N/A |
Unit 308
1
1
N/A
Apartment
N/A
N/A
N/A
N/A
N/A
102.47 Square Feet
N/A
N/A
741.53 Square Feet
Unit: 308
Unit Area: 59.37 SQ.M. - 639.05 SQ.FT.
Balcony: 9.52 SQ.M. - 102.47 SQ.FT.
Total: 68.89 SQ.M. - 741.53 SQ.FT.
| Title | Floor | Width (Square Feet) | Length (Square Feet) | Total (Square Feet) |
|---|---|---|---|---|
| Balcony | N/A | N/A | N/A | N/A |
| Bedroom | N/A | N/A | N/A | N/A |
| Bathroom | N/A | N/A | N/A | N/A |
| Living/Dining | N/A | N/A | N/A | N/A |
| Kitchen | N/A | N/A | N/A | N/A |
| Toilet | N/A | N/A | N/A | N/A |
Unit 309
1
1
N/A
Apartment
N/A
N/A
N/A
N/A
N/A
102.47 Square Feet
N/A
N/A
742.71 Square Feet
Unit: 309
Unit Area: 59.48 SQ.M. - 640.24 SQ.FT.
Balcony: 9.52 SQ.M. - 102.47 SQ.FT.
Total: 69.00 SQ.M. - 742.71 SQ.FT.
| Title | Floor | Width (Square Feet) | Length (Square Feet) | Total (Square Feet) |
|---|---|---|---|---|
| Balcony | N/A | N/A | N/A | N/A |
| Bedroom | N/A | N/A | N/A | N/A |
| Bathroom | N/A | N/A | N/A | N/A |
| Living/Dining | N/A | N/A | N/A | N/A |
| Kitchen | N/A | N/A | N/A | N/A |
| Toilet | N/A | N/A | N/A | N/A |
Unit 310
1
1
N/A
Apartment
N/A
N/A
N/A
N/A
N/A
51.56 Square Feet
N/A
N/A
611.39 Square Feet
Unit: 310
Unit Area: 52.01 SQ.M. - 559.83 SQ.FT.
Balcony: 4.79 SQ.M. - 51.56 SQ.FT.
Total: 56.80 SQ.M. - 611.39 SQ.FT.
| Title | Floor | Width (Square Feet) | Length (Square Feet) | Total (Square Feet) |
|---|---|---|---|---|
| Balcony | N/A | N/A | N/A | N/A |
| Bedroom | N/A | N/A | N/A | N/A |
| Bathroom | N/A | N/A | N/A | N/A |
| Living/Dining | N/A | N/A | N/A | N/A |
| Kitchen | N/A | N/A | N/A | N/A |
| Toilet | N/A | N/A | N/A | N/A |
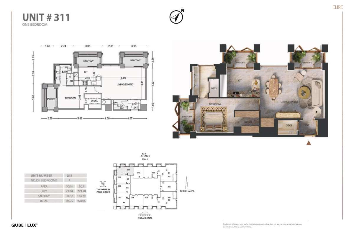
Unit 311
1
1
N/A
Apartment
N/A
N/A
N/A
N/A
N/A
154.79 Square Feet
N/A
N/A
928.06 Square Feet
Unit: 311
Unit Area: 71.84 SQ.M. - 773.28 SQ.FT.
Balcony: 14.38 SQ.M. - 154.79 SQ.FT.
Total: 86.22 SQ.M. - 928.06 SQ.FT.
| Title | Floor | Width (Square Feet) | Length (Square Feet) | Total (Square Feet) |
|---|---|---|---|---|
| Balcony | N/A | N/A | N/A | N/A |
| Bedroom | N/A | N/A | N/A | N/A |
| Bathroom | N/A | N/A | N/A | N/A |
| Living/Dining | N/A | N/A | N/A | N/A |
| Kitchen | N/A | N/A | N/A | N/A |
| Toilet | N/A | N/A | N/A | N/A |
Unit 401
1
1
N/A
Apartment
N/A
N/A
N/A
N/A
N/A
211.19 Square Feet
N/A
N/A
978.01 Square Feet
Unit: 401
Unit Area: 71.24 SQ.M. - 766.82 SQ.FT.
Balcony: 19.62 SQ.M. - 211.19 SQ.FT.
Total: 90.86 SQ.M. - 978.01 SQ.FT.
| Title | Floor | Width (Square Feet) | Length (Square Feet) | Total (Square Feet) |
|---|---|---|---|---|
| Balcony | N/A | N/A | N/A | N/A |
| Bedroom | N/A | N/A | N/A | N/A |
| Bathroom | N/A | N/A | N/A | N/A |
| Living/Dining | N/A | N/A | N/A | N/A |
| Kitchen | N/A | N/A | N/A | N/A |
| Toilet | N/A | N/A | N/A | N/A |
Unit 402
3
3
N/A
Apartment
N/A
N/A
N/A
N/A
N/A
687.49 Square Feet
N/A
N/A
2435.66 Square Feet
Unit: 402
Unit Area: 162.41 SQ.M. - 1748.17 SQ.FT.
Balcony: 63.87 SQ.M. - 687.49 SQ.FT.
Total: 226.28 SQ.M. - 2435.66 SQ.FT.
| Title | Floor | Width (Square Feet) | Length (Square Feet) | Total (Square Feet) |
|---|---|---|---|---|
| Balcony | N/A | N/A | N/A | N/A |
| Master Bedroom | N/A | N/A | N/A | N/A |
| Master Bathroom | N/A | N/A | N/A | N/A |
| Bedroom | N/A | N/A | N/A | N/A |
| Bathroom | N/A | N/A | N/A | N/A |
| Living/Dining | N/A | N/A | N/A | N/A |
| Bedroom 3 | N/A | N/A | N/A | N/A |
| Bathroom 3 | N/A | N/A | N/A | N/A |
Unit 403
3
3
N/A
Apartment
N/A
N/A
N/A
N/A
N/A
737.65 Square Feet
N/A
N/A
2621.44 Square Feet
Unit: 403
Unit Area: 175.01 SQ.M. - 1883.79 SQ.FT.
Balcony: 68.53 SQ.M. - 737.65 SQ.FT.
Total: 243.54 SQ.M. - 2621.44 SQ.FT.
| Title | Floor | Width (Square Feet) | Length (Square Feet) | Total (Square Feet) |
|---|---|---|---|---|
| Balcony | N/A | N/A | N/A | N/A |
| Master Bedroom | N/A | N/A | N/A | N/A |
| Master Bathroom | N/A | N/A | N/A | N/A |
| Bedroom | N/A | N/A | N/A | N/A |
| Bathroom | N/A | N/A | N/A | N/A |
| Living/Dining | N/A | N/A | N/A | N/A |
| Bedroom 3 | N/A | N/A | N/A | N/A |
| Bathroom 3 | N/A | N/A | N/A | N/A |
Unit 404
1
1
N/A
Apartment
N/A
N/A
N/A
N/A
N/A
235.08 Square Feet
N/A
N/A
957.45 Square Feet
Unit: 404
Unit Area: 67.11 SQ.M. - 722.37 SQ.FT.
Balcony: 21.84 SQ.M. - 235.08 SQ.FT.
Total: 88.95 SQ.M. - 957.45 SQ.FT.
| Title | Floor | Width (Square Feet) | Length (Square Feet) | Total (Square Feet) |
|---|---|---|---|---|
| Balcony | N/A | N/A | N/A | N/A |
| Bedroom | N/A | N/A | N/A | N/A |
| Bathroom | N/A | N/A | N/A | N/A |
| Living/Dining | N/A | N/A | N/A | N/A |
| Kitchen | N/A | N/A | N/A | N/A |
| Toilet | N/A | N/A | N/A | N/A |
Unit 405
2
2
N/A
Apartment
N/A
N/A
N/A
N/A
N/A
484.48 Square Feet
N/A
N/A
1551.29 Square Feet
Unit: 405
Unit Area: 99.11 SQ.M. - 1066.81 SQ.FT.
Balcony: 45.01 SQ.M. - 484.48 SQ.FT.
Total: 144.12 SQ.M. - 1551.29 SQ.FT.
| Title | Floor | Width (Square Feet) | Length (Square Feet) | Total (Square Feet) |
|---|---|---|---|---|
| Balcony | N/A | N/A | N/A | N/A |
| Master Bedroom | N/A | N/A | N/A | N/A |
| Master Bathroom | N/A | N/A | N/A | N/A |
| Bedroom | N/A | N/A | N/A | N/A |
| Bathroom | N/A | N/A | N/A | N/A |
| Living/Dining | N/A | N/A | N/A | N/A |
Unit 406
1
1
N/A
Apartment
N/A
N/A
N/A
N/A
N/A
157.05 Square Feet
N/A
N/A
733.99 Square Feet
Unit: 406
Unit Area: 53.60 SQ.M. - 576.95 SQ.FT.
Balcony: 14.59 SQ.M. - 157.05 SQ.FT.
Total: 68.19 SQ.M. - 733.99 SQ.FT.
| Title | Floor | Width (Square Feet) | Length (Square Feet) | Total (Square Feet) |
|---|---|---|---|---|
| Balcony | N/A | N/A | N/A | N/A |
| Bedroom | N/A | N/A | N/A | N/A |
| Bathroom | N/A | N/A | N/A | N/A |
| Living/Dining | N/A | N/A | N/A | N/A |
| Kitchen | N/A | N/A | N/A | N/A |
| Toilet | N/A | N/A | N/A | N/A |
Unit 407
2
2
N/A
Apartment
N/A
N/A
N/A
N/A
N/A
487.28 Square Feet
N/A
N/A
1446.35 Square Feet
Unit: 407
Unit Area: 89.10 SQ.M. - 959.06 SQ.FT.
Balcony: 45.27 SQ.M. - 487.28 SQ.FT.
Total: 134.37 SQ.M. - 1446.35 SQ.FT.
| Title | Floor | Width (Square Feet) | Length (Square Feet) | Total (Square Feet) |
|---|---|---|---|---|
| Balcony | N/A | N/A | N/A | N/A |
| Master Bedroom | N/A | N/A | N/A | N/A |
| Master Bathroom | N/A | N/A | N/A | N/A |
| Bedroom | N/A | N/A | N/A | N/A |
| Bathroom | N/A | N/A | N/A | N/A |
| Living/Dining | N/A | N/A | N/A | N/A |
Unit 408
1
1
N/A
Apartment
N/A
N/A
N/A
N/A
N/A
157.05 Square Feet
N/A
N/A
654.77 Square Feet
Unit: 408
Unit Area: 46.24 SQ.M. - 497.72 SQ.FT.
Balcony: 14.59 SQ.M. - 157.05 SQ.FT.
Total: 60.83 SQ.M. - 654.77 SQ.FT.
| Title | Floor | Width (Square Feet) | Length (Square Feet) | Total (Square Feet) |
|---|---|---|---|---|
| Balcony | N/A | N/A | N/A | N/A |
| Bedroom | N/A | N/A | N/A | N/A |
| Bathroom | N/A | N/A | N/A | N/A |
| Living/Dining | N/A | N/A | N/A | N/A |
| Kitchen | N/A | N/A | N/A | N/A |
| Toilet | N/A | N/A | N/A | N/A |
Unit 501
1
1
N/A
Apartment
N/A
N/A
N/A
N/A
N/A
211.08 Square Feet
N/A
N/A
977.90 Square Feet
Unit: 501
Unit Area: 71.24 SQ.M. - 766.82 SQ.FT.
Balcony: 19.61 SQ.M. - 211.08 SQ.FT.
Total: 90.85 SQ.M. - 977.90 SQ.FT.
| Title | Floor | Width (Square Feet) | Length (Square Feet) | Total (Square Feet) |
|---|---|---|---|---|
| Balcony | N/A | N/A | N/A | N/A |
| Bedroom | N/A | N/A | N/A | N/A |
| Bathroom | N/A | N/A | N/A | N/A |
| Living/Dining | N/A | N/A | N/A | N/A |
| Kitchen | N/A | N/A | N/A | N/A |
| Toilet | N/A | N/A | N/A | N/A |
Unit 502
3
3
N/A
Apartment
N/A
N/A
N/A
N/A
N/A
687.71 Square Feet
N/A
N/A
2435.87 Square Feet
Unit: 502
Unit Area: 162.41 SQ.M. - 1748.17 SQ.FT.
Balcony: 63.89 SQ.M. - 687.71 SQ.FT.
Total: 226.30 SQ.M. - 2435.87 SQ.FT.
| Title | Floor | Width (Square Feet) | Length (Square Feet) | Total (Square Feet) |
|---|---|---|---|---|
| Balcony | N/A | N/A | N/A | N/A |
| Master Bedroom | N/A | N/A | N/A | N/A |
| Master Bathroom | N/A | N/A | N/A | N/A |
| Bedroom | N/A | N/A | N/A | N/A |
| Bathroom | N/A | N/A | N/A | N/A |
| Living/Dining | N/A | N/A | N/A | N/A |
| Bedroom 3 | N/A | N/A | N/A | N/A |
| Bathroom 3 | N/A | N/A | N/A | N/A |
Unit 503
3
3
N/A
Apartment
N/A
N/A
N/A
N/A
N/A
737.44 Square Feet
N/A
N/A
2621.23 Square Feet
Unit: 503
Unit Area: 175.01 SQ.M. - 1883.79 SQ.FT.
Balcony: 68.51 SQ.M. - 737.44 SQ.FT.
Total: 243.52 SQ.M. - 2621.23 SQ.FT.
| Title | Floor | Width (Square Feet) | Length (Square Feet) | Total (Square Feet) |
|---|---|---|---|---|
| Balcony | N/A | N/A | N/A | N/A |
| Master Bedroom | N/A | N/A | N/A | N/A |
| Master Bathroom | N/A | N/A | N/A | N/A |
| Bedroom | N/A | N/A | N/A | N/A |
| Bathroom | N/A | N/A | N/A | N/A |
| Living/Dining | N/A | N/A | N/A | N/A |
| Bedroom 3 | N/A | N/A | N/A | N/A |
| Bathroom 3 | N/A | N/A | N/A | N/A |
Unit 504
1
1
N/A
Apartment
N/A
N/A
N/A
N/A
N/A
235.19 Square Feet
N/A
N/A
957.56 Square Feet
Unit: 504
Unit Area: 67.11 SQ.M. - 722.37 SQ.FT.
Balcony: 21.85 SQ.M. - 235.19 SQ.FT.
Total: 88.96 SQ.M. - 957.56 SQ.FT.
| Title | Floor | Width (Square Feet) | Length (Square Feet) | Total (Square Feet) |
|---|---|---|---|---|
| Balcony | N/A | N/A | N/A | N/A |
| Master Bedroom | N/A | N/A | N/A | N/A |
| Master Bathroom | N/A | N/A | N/A | N/A |
| Bedroom | N/A | N/A | N/A | N/A |
| Bathroom | N/A | N/A | N/A | N/A |
| Living/Dining | N/A | N/A | N/A | N/A |
Unit 505
2
2
N/A
Apartment
N/A
N/A
N/A
N/A
N/A
484.38 Square Feet
N/A
N/A
1551.19 Square Feet
Unit: 505
Unit Area: 99.11 SQ.M. - 1066.81 SQ.FT.
Balcony: 45.00 SQ.M. - 484.38 SQ.FT.
Total: 144.11 SQ.M. - 1551.19 SQ.FT.
| Title | Floor | Width (Square Feet) | Length (Square Feet) | Total (Square Feet) |
|---|---|---|---|---|
| Balcony | N/A | N/A | N/A | N/A |
| Master Bedroom | N/A | N/A | N/A | N/A |
| Master Bathroom | N/A | N/A | N/A | N/A |
| Bedroom | N/A | N/A | N/A | N/A |
| Bathroom | N/A | N/A | N/A | N/A |
| Living/Dining | N/A | N/A | N/A | N/A |
Unit 506
1
1
N/A
Apartment
N/A
N/A
N/A
N/A
N/A
157.05 Square Feet
N/A
N/A
733.99 Square Feet
Unit: 506
Unit Area: 53.60 SQ.M. - 576.95 SQ.FT.
Balcony: 14.59 SQ.M. - 157.05 SQ.FT.
Total: 68.19 SQ.M. - 733.99 SQ.FT.
| Title | Floor | Width (Square Feet) | Length (Square Feet) | Total (Square Feet) |
|---|---|---|---|---|
| Balcony | N/A | N/A | N/A | N/A |
| Bedroom | N/A | N/A | N/A | N/A |
| Bathroom | N/A | N/A | N/A | N/A |
| Living/Dining | N/A | N/A | N/A | N/A |
| Kitchen | N/A | N/A | N/A | N/A |
| Toilet | N/A | N/A | N/A | N/A |
Unit 507
2
2
N/A
Apartment
N/A
N/A
N/A
N/A
N/A
487.17 Square Feet
N/A
N/A
1446.24 Square Feet
Unit: 507
Unit Area: 89.10 SQ.M. - 959.06 SQ.FT.
Balcony: 45.26 SQ.M. - 487.17 SQ.FT.
Total: 134.36 SQ.M. - 1446.24 SQ.FT.
| Title | Floor | Width (Square Feet) | Length (Square Feet) | Total (Square Feet) |
|---|---|---|---|---|
| Balcony | N/A | N/A | N/A | N/A |
| Master Bedroom | N/A | N/A | N/A | N/A |
| Master Bathroom | N/A | N/A | N/A | N/A |
| Bedroom | N/A | N/A | N/A | N/A |
| Bathroom | N/A | N/A | N/A | N/A |
| Living/Dining | N/A | N/A | N/A | N/A |
Unit 508
1
1
N/A
Apartment
N/A
N/A
N/A
N/A
N/A
157.05 Square Feet
N/A
N/A
654.77 Square Feet
Unit: 508
Unit Area: 46.24 SQ.M. - 497.72 SQ.FT.
Balcony: 14.59 SQ.M. - 157.05 SQ.FT.
Total: 60.83 SQ.M. - 654.77 SQ.FT.
| Title | Floor | Width (Square Feet) | Length (Square Feet) | Total (Square Feet) |
|---|---|---|---|---|
| Balcony | N/A | N/A | N/A | N/A |
| Bedroom | N/A | N/A | N/A | N/A |
| Bathroom | N/A | N/A | N/A | N/A |
| Living/Dining | N/A | N/A | N/A | N/A |
| Kitchen | N/A | N/A | N/A | N/A |
| Toilet | N/A | N/A | N/A | N/A |
Unit 601
1
1
N/A
Apartment
N/A
N/A
N/A
N/A
N/A
211.08 Square Feet
N/A
N/A
977.90 Square Feet
Unit: 601
Unit Area: 71.24 SQ.M. - 766.82 SQ.FT.
Balcony: 19.61 SQ.M. - 211.08 SQ.FT.
Total: 90.85 SQ.M. - 977.90 SQ.FT.
| Title | Floor | Width (Square Feet) | Length (Square Feet) | Total (Square Feet) |
|---|---|---|---|---|
| Balcony | N/A | N/A | N/A | N/A |
| Bedroom | N/A | N/A | N/A | N/A |
| Bathroom | N/A | N/A | N/A | N/A |
| Living/Dining | N/A | N/A | N/A | N/A |
| Kitchen | N/A | N/A | N/A | N/A |
| Toilet | N/A | N/A | N/A | N/A |
Unit 602
3
3
N/A
Apartment
N/A
N/A
N/A
N/A
N/A
687.71 Square Feet
N/A
N/A
2435.87 Square Feet
Unit: 602
Unit Area: 162.41 SQ.M. - 1748.17 SQ.FT.
Balcony: 63.89 SQ.M. - 687.71 SQ.FT.
Total: 226.30 SQ.M. - 2435.87 SQ.FT.
| Title | Floor | Width (Square Feet) | Length (Square Feet) | Total (Square Feet) |
|---|---|---|---|---|
| Balcony | N/A | N/A | N/A | N/A |
| Master Bedroom | N/A | N/A | N/A | N/A |
| Master Bathroom | N/A | N/A | N/A | N/A |
| Bedroom | N/A | N/A | N/A | N/A |
| Bathroom | N/A | N/A | N/A | N/A |
| Living/Dining | N/A | N/A | N/A | N/A |
| Bedroom 3 | N/A | N/A | N/A | N/A |
| Bathroom 3 | N/A | N/A | N/A | N/A |
Unit 603
3
3
N/A
Apartment
N/A
N/A
N/A
N/A
N/A
737.44 Square Feet
N/A
N/A
2621.23 Square Feet
Unit: 603
Unit Area: 175.01 SQ.M. - 1883.79 SQ.FT.
Balcony: 68.51 SQ.M. - 737.44 SQ.FT.
Total: 243.52 SQ.M. - 2621.23 SQ.FT.
| Title | Floor | Width (Square Feet) | Length (Square Feet) | Total (Square Feet) |
|---|---|---|---|---|
| Balcony | N/A | N/A | N/A | N/A |
| Master Bedroom | N/A | N/A | N/A | N/A |
| Master Bathroom | N/A | N/A | N/A | N/A |
| Bedroom | N/A | N/A | N/A | N/A |
| Bathroom | N/A | N/A | N/A | N/A |
| Living/Dining | N/A | N/A | N/A | N/A |
| Bedroom 3 | N/A | N/A | N/A | N/A |
| Bathroom 3 | N/A | N/A | N/A | N/A |
Unit 604
1
1
N/A
Apartment
N/A
N/A
N/A
N/A
N/A
235.19 Square Feet
N/A
N/A
957.56 Square Feet
Unit: 604
Unit Area: 67.11 SQ.M. - 722.37 SQ.FT.
Balcony: 21.85 SQ.M. - 235.19 SQ.FT.
Total: 88.96 SQ.M. - 957.56 SQ.FT.
| Title | Floor | Width (Square Feet) | Length (Square Feet) | Total (Square Feet) |
|---|---|---|---|---|
| Balcony | N/A | N/A | N/A | N/A |
| Bedroom | N/A | N/A | N/A | N/A |
| Bathroom | N/A | N/A | N/A | N/A |
| Living/Dining | N/A | N/A | N/A | N/A |
| Kitchen | N/A | N/A | N/A | N/A |
| Toilet | N/A | N/A | N/A | N/A |
Unit 605
2
2
N/A
Apartment
N/A
N/A
N/A
N/A
N/A
484.38 Square Feet
N/A
N/A
1551.19 Square Feet
Unit: 605
Unit Area: 99.11 SQ.M. - 1066.81 SQ.FT.
Balcony: 45.00 SQ.M. - 484.38 SQ.FT.
Total: 144.11 SQ.M. - 1551.19 SQ.FT.
| Title | Floor | Width (Square Feet) | Length (Square Feet) | Total (Square Feet) |
|---|---|---|---|---|
| Balcony | N/A | N/A | N/A | N/A |
| Master Bedroom | N/A | N/A | N/A | N/A |
| Master Bathroom | N/A | N/A | N/A | N/A |
| Bedroom | N/A | N/A | N/A | N/A |
| Bathroom | N/A | N/A | N/A | N/A |
| Living/Dining | N/A | N/A | N/A | N/A |
Unit 606
1
1
N/A
Apartment
N/A
N/A
N/A
N/A
N/A
157.05 Square Feet
N/A
N/A
733.99 Square Feet
Unit: 606
Unit Area: 53.60 SQ.M. - 576.95 SQ.FT.
Balcony: 14.59 SQ.M. - 157.05 SQ.FT.
Total: 68.19 SQ.M. - 733.99 SQ.FT.
| Title | Floor | Width (Square Feet) | Length (Square Feet) | Total (Square Feet) |
|---|---|---|---|---|
| Balcony | N/A | N/A | N/A | N/A |
| Bedroom | N/A | N/A | N/A | N/A |
| Bathroom | N/A | N/A | N/A | N/A |
| Living/Dining | N/A | N/A | N/A | N/A |
| Kitchen | N/A | N/A | N/A | N/A |
| Toilet | N/A | N/A | N/A | N/A |
Unit 607
2
2
N/A
Apartment
N/A
N/A
N/A
N/A
N/A
487.17 Square Feet
N/A
N/A
1446.24 Square Feet
Unit: 607
Unit Area: 89.10 SQ.M. - 959.06 SQ.FT.
Balcony: 45.26 SQ.M. - 487.17 SQ.FT.
Total: 134.36 SQ.M. - 1446.24 SQ.FT.
| Title | Floor | Width (Square Feet) | Length (Square Feet) | Total (Square Feet) |
|---|---|---|---|---|
| Balcony | N/A | N/A | N/A | N/A |
| Master Bedroom | N/A | N/A | N/A | N/A |
| Master Bathroom | N/A | N/A | N/A | N/A |
| Bedroom | N/A | N/A | N/A | N/A |
| Bathroom | N/A | N/A | N/A | N/A |
| Living/Dining | N/A | N/A | N/A | N/A |
Unit 608
1
1
N/A
Apartment
N/A
N/A
N/A
N/A
N/A
157.05 Square Feet
N/A
N/A
654.77 Square Feet
Unit: 608
Unit Area: 46.24 SQ.M. - 497.72 SQ.FT.
Balcony: 14.59 SQ.M. - 157.05 SQ.FT.
Total: 60.83 SQ.M. - 654.77 SQ.FT.
| Title | Floor | Width (Square Feet) | Length (Square Feet) | Total (Square Feet) |
|---|---|---|---|---|
| Balcony | N/A | N/A | N/A | N/A |
| Bedroom | N/A | N/A | N/A | N/A |
| Bathroom | N/A | N/A | N/A | N/A |
| Living/Dining | N/A | N/A | N/A | N/A |
| Kitchen | N/A | N/A | N/A | N/A |
| Toilet | N/A | N/A | N/A | N/A |
Unit 701
1
1
N/A
Apartment
N/A
N/A
N/A
N/A
N/A
211.30 Square Feet
N/A
N/A
978.12 Square Feet
Unit: 701
Unit Area: 71.24 SQ.M. - 766.82 SQ.FT.
Balcony: 19.63 SQ.M. - 211.30 SQ.FT.
Total: 90.87 SQ.M. - 978.12 SQ.FT.
| Title | Floor | Width (Square Feet) | Length (Square Feet) | Total (Square Feet) |
|---|---|---|---|---|
| Balcony | N/A | N/A | N/A | N/A |
| Bedroom | N/A | N/A | N/A | N/A |
| Bathroom | N/A | N/A | N/A | N/A |
| Living/Dining | N/A | N/A | N/A | N/A |
| Kitchen | N/A | N/A | N/A | N/A |
| Toilet | N/A | N/A | N/A | N/A |
Unit 702
3
3
N/A
Apartment
N/A
N/A
N/A
N/A
N/A
687.92 Square Feet
N/A
N/A
2436.09 Square Feet
Unit: 702
Unit Area: 162.41 SQ.M. - 1748.17 SQ.FT.
Balcony: 63.91 SQ.M. - 687.92 SQ.FT.
Total: 226.32 SQ.M. - 2436.09 SQ.FT.
| Title | Floor | Width (Square Feet) | Length (Square Feet) | Total (Square Feet) |
|---|---|---|---|---|
| Balcony | N/A | N/A | N/A | N/A |
| Master Bedroom | N/A | N/A | N/A | N/A |
| Master Bathroom | N/A | N/A | N/A | N/A |
| Bedroom | N/A | N/A | N/A | N/A |
| Bathroom | N/A | N/A | N/A | N/A |
| Living/Dining | N/A | N/A | N/A | N/A |
| Bedroom 3 | N/A | N/A | N/A | N/A |
| Bathroom 3 | N/A | N/A | N/A | N/A |
Unit 703
3
3
N/A
Apartment
N/A
N/A
N/A
N/A
N/A
737.87 Square Feet
N/A
N/A
2621.66 Square Feet
Unit: 703
Unit Area: 175.01 SQ.M. - 1883.79 SQ.FT.
Balcony: 68.55 SQ.M. - 737.87 SQ.FT.
Total: 243.56 SQ.M. - 2621.66 SQ.FT.
| Title | Floor | Width (Square Feet) | Length (Square Feet) | Total (Square Feet) |
|---|---|---|---|---|
| Balcony | N/A | N/A | N/A | N/A |
| Master Bedroom | N/A | N/A | N/A | N/A |
| Master Bathroom | N/A | N/A | N/A | N/A |
| Bedroom | N/A | N/A | N/A | N/A |
| Bathroom | N/A | N/A | N/A | N/A |
| Living/Dining | N/A | N/A | N/A | N/A |
| Bedroom 3 | N/A | N/A | N/A | N/A |
| Bathroom 3 | N/A | N/A | N/A | N/A |
Unit 704
1
1
N/A
Apartment
N/A
N/A
N/A
N/A
N/A
235.30 Square Feet
N/A
N/A
957.67 Square Feet
Unit: 704
Unit Area: 67.11 SQ.M. - 722.37 SQ.FT.
Balcony: 21.86 SQ.M. - 235.30 SQ.FT.
Total: 88.97 SQ.M. - 957.67 SQ.FT.
| Title | Floor | Width (Square Feet) | Length (Square Feet) | Total (Square Feet) |
|---|---|---|---|---|
| Balcony | N/A | N/A | N/A | N/A |
| Bedroom | N/A | N/A | N/A | N/A |
| Bathroom | N/A | N/A | N/A | N/A |
| Living/Dining | N/A | N/A | N/A | N/A |
| Kitchen | N/A | N/A | N/A | N/A |
| Toilet | N/A | N/A | N/A | N/A |
Unit 705
2
2
N/A
Apartment
N/A
N/A
N/A
N/A
N/A
484.91 Square Feet
N/A
N/A
1551.73 Square Feet
Unit: 705
Unit Area: 99.11 SQ.M. - 1066.81 SQ.FT.
Balcony: 45.05 SQ.M. - 484.91 SQ.FT.
Total: 144.16 SQ.M. - 1551.73 SQ.FT.
| Title | Floor | Width (Square Feet) | Length (Square Feet) | Total (Square Feet) |
|---|---|---|---|---|
| Balcony | N/A | N/A | N/A | N/A |
| Master Bedroom | N/A | N/A | N/A | N/A |
| Master Bathroom | N/A | N/A | N/A | N/A |
| Bedroom | N/A | N/A | N/A | N/A |
| Bathroom | N/A | N/A | N/A | N/A |
| Living/Dining | N/A | N/A | N/A | N/A |
Unit 706
1
1
N/A
Apartment
N/A
N/A
N/A
N/A
N/A
157.15 Square Feet
N/A
N/A
734.10 Square Feet
Unit: 706
Unit Area: 53.60 SQ.M. - 576.95 SQ.FT.
Balcony: 14.60 SQ.M. - 157.15 SQ.FT.
Total: 68.20 SQ.M. - 734.10 SQ.FT.
| Title | Floor | Width (Square Feet) | Length (Square Feet) | Total (Square Feet) |
|---|---|---|---|---|
| Balcony | N/A | N/A | N/A | N/A |
| Bedroom | N/A | N/A | N/A | N/A |
| Bathroom | N/A | N/A | N/A | N/A |
| Living/Dining | N/A | N/A | N/A | N/A |
| Kitchen | N/A | N/A | N/A | N/A |
| Toilet | N/A | N/A | N/A | N/A |
Unit 707
2
2
N/A
Apartment
N/A
N/A
N/A
N/A
N/A
487.71 Square Feet
N/A
N/A
1446.78 Square Feet
Unit: 707
Unit Area: 89.10 SQ.M. - 959.06 SQ.FT.
Balcony: 45.31 SQ.M. - 487.71 SQ.FT.
Total: 134.41 SQ.M. - 1446.78 SQ.FT.
| Title | Floor | Width (Square Feet) | Length (Square Feet) | Total (Square Feet) |
|---|---|---|---|---|
| Balcony | N/A | N/A | N/A | N/A |
| Master Bedroom | N/A | N/A | N/A | N/A |
| Master Bathroom | N/A | N/A | N/A | N/A |
| Bedroom | N/A | N/A | N/A | N/A |
| Bathroom | N/A | N/A | N/A | N/A |
| Living/Dining | N/A | N/A | N/A | N/A |
Unit 708
1
1
N/A
Apartment
N/A
N/A
N/A
N/A
N/A
157.26 Square Feet
N/A
N/A
654.98 Square Feet
Unit: 708
Unit Area: 46.24 SQ.M. - 497.72 SQ.FT.
Balcony: 14.61 SQ.M. - 157.26 SQ.FT.
Total: 60.85 SQ.M. - 654.98 SQ.FT.
| Title | Floor | Width (Square Feet) | Length (Square Feet) | Total (Square Feet) |
|---|---|---|---|---|
| Balcony | N/A | N/A | N/A | N/A |
| Bedroom | N/A | N/A | N/A | N/A |
| Bathroom | N/A | N/A | N/A | N/A |
| Living/Dining | N/A | N/A | N/A | N/A |
| Kitchen | N/A | N/A | N/A | N/A |
| Toilet | N/A | N/A | N/A | N/A |
Unit 801
1
1
N/A
Apartment
N/A
N/A
N/A
N/A
N/A
211.08 Square Feet
N/A
N/A
977.90 Square Feet
Unit: 801
Unit Area: 71.24 SQ.M. - 766.82 SQ.FT.
Balcony: 19.61 SQ.M. - 211.08 SQ.FT.
Total: 90.85 SQ.M. - 977.90 SQ.FT.
| Title | Floor | Width (Square Feet) | Length (Square Feet) | Total (Square Feet) |
|---|---|---|---|---|
| Balcony | N/A | N/A | N/A | N/A |
| Bedroom | N/A | N/A | N/A | N/A |
| Bathroom | N/A | N/A | N/A | N/A |
| Living/Dining | N/A | N/A | N/A | N/A |
| Kitchen | N/A | N/A | N/A | N/A |
| Toilet | N/A | N/A | N/A | N/A |
Unit 802
3
3
N/A
Apartment
N/A
N/A
N/A
N/A
N/A
687.71 Square Feet
N/A
N/A
2435.87 Square Feet
Unit: 802
Unit Area: 162.41 SQ.M. - 1748.17 SQ.FT.
Balcony: 63.89 SQ.M. - 687.71 SQ.FT.
Total: 226.30 SQ.M. - 2435.87 SQ.FT.
| Title | Floor | Width (Square Feet) | Length (Square Feet) | Total (Square Feet) |
|---|---|---|---|---|
| Balcony | N/A | N/A | N/A | N/A |
| Master Bedroom | N/A | N/A | N/A | N/A |
| Master Bathroom | N/A | N/A | N/A | N/A |
| Bedroom | N/A | N/A | N/A | N/A |
| Bathroom | N/A | N/A | N/A | N/A |
| Living/Dining | N/A | N/A | N/A | N/A |
| Bedroom 3 | N/A | N/A | N/A | N/A |
| Bathroom 3 | N/A | N/A | N/A | N/A |
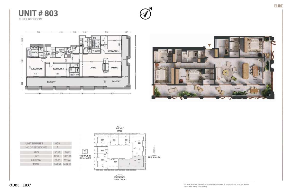
Unit 803
3
3
N/A
Apartment
N/A
N/A
N/A
N/A
N/A
737.44 Square Feet
N/A
N/A
2621.23 Square Feet
Unit: 803
Unit Area: 175.01 SQ.M. - 1883.79 SQ.FT.
Balcony: 68.51 SQ.M. - 737.44 SQ.FT.
Total: 243.52 SQ.M. - 2621.23 SQ.FT.
| Title | Floor | Width (Square Feet) | Length (Square Feet) | Total (Square Feet) |
|---|---|---|---|---|
| Balcony | N/A | N/A | N/A | N/A |
| Master Bedroom | N/A | N/A | N/A | N/A |
| Master Bathroom | N/A | N/A | N/A | N/A |
| Bedroom | N/A | N/A | N/A | N/A |
| Bathroom | N/A | N/A | N/A | N/A |
| Living/Dining | N/A | N/A | N/A | N/A |
| Bedroom 3 | N/A | N/A | N/A | N/A |
| Bathroom 3 | N/A | N/A | N/A | N/A |
Unit 804
1
1
N/A
Apartment
N/A
N/A
N/A
N/A
N/A
235.19 Square Feet
N/A
N/A
957.56 Square Feet
Unit: 804
Unit Area: 67.11 SQ.M. - 722.37 SQ.FT.
Balcony: 21.85 SQ.M. - 235.19 SQ.FT.
Total: 88.96 SQ.M. - 957.56 SQ.FT.
| Title | Floor | Width (Square Feet) | Length (Square Feet) | Total (Square Feet) |
|---|---|---|---|---|
| Balcony | N/A | N/A | N/A | N/A |
| Bedroom | N/A | N/A | N/A | N/A |
| Bathroom | N/A | N/A | N/A | N/A |
| Living/Dining | N/A | N/A | N/A | N/A |
| Kitchen | N/A | N/A | N/A | N/A |
| Toilet | N/A | N/A | N/A | N/A |
Unit 805
2
2
N/A
Apartment
N/A
N/A
N/A
N/A
N/A
484.38 Square Feet
N/A
N/A
1551.19 Square Feet
Unit: 805
Unit Area: 99.11 SQ.M. - 1066.81 SQ.FT.
Balcony: 45.00 SQ.M. - 484.38 SQ.FT.
Total: 144.11 SQ.M. - 1551.19 SQ.FT.
| Title | Floor | Width (Square Feet) | Length (Square Feet) | Total (Square Feet) |
|---|---|---|---|---|
| Balcony | N/A | N/A | N/A | N/A |
| Master Bedroom | N/A | N/A | N/A | N/A |
| Master Bathroom | N/A | N/A | N/A | N/A |
| Bedroom | N/A | N/A | N/A | N/A |
| Bathroom | N/A | N/A | N/A | N/A |
| Living/Dining | N/A | N/A | N/A | N/A |
Unit 806
1
1
N/A
Apartment
N/A
N/A
N/A
N/A
N/A
157.05 Square Feet
N/A
N/A
733.99 Square Feet
Unit: 806
Unit Area: 53.60 SQ.M. - 576.95 SQ.FT.
Balcony: 14.59 SQ.M. - 157.05 SQ.FT.
Total: 68.19 SQ.M. - 733.99 SQ.FT.
| Title | Floor | Width (Square Feet) | Length (Square Feet) | Total (Square Feet) |
|---|---|---|---|---|
| Balcony | N/A | N/A | N/A | N/A |
| Bedroom | N/A | N/A | N/A | N/A |
| Bathroom | N/A | N/A | N/A | N/A |
| Living/Dining | N/A | N/A | N/A | N/A |
| Kitchen | N/A | N/A | N/A | N/A |
| Toilet | N/A | N/A | N/A | N/A |
Unit 807
2
2
N/A
Apartment
N/A
N/A
N/A
N/A
N/A
487.17 Square Feet
N/A
N/A
1446.24 Square Feet
Unit: 807
Unit Area: 89.10 SQ.M. - 959.06 SQ.FT.
Balcony: 42.26 SQ.M. - 487.17 SQ.FT.
Total: 134.36 SQ.M. - 1446.24 SQ.FT.
| Title | Floor | Width (Square Feet) | Length (Square Feet) | Total (Square Feet) |
|---|---|---|---|---|
| Balcony | N/A | N/A | N/A | N/A |
| Master Bedroom | N/A | N/A | N/A | N/A |
| Master Bathroom | N/A | N/A | N/A | N/A |
| Bedroom | N/A | N/A | N/A | N/A |
| Bathroom | N/A | N/A | N/A | N/A |
| Living/Dining | N/A | N/A | N/A | N/A |
Unit 808
1
1
N/A
Apartment
N/A
N/A
N/A
N/A
N/A
157.05 Square Feet
N/A
N/A
654.77 Square Feet
Unit: 808
Unit Area: 46.24 SQ.M. - 497.72 SQ.FT.
Balcony: 14.59 SQ.M. - 157.05 SQ.FT.
Total: 60.83 SQ.M. - 654.77 SQ.FT.
| Title | Floor | Width (Square Feet) | Length (Square Feet) | Total (Square Feet) |
|---|---|---|---|---|
| Balcony | N/A | N/A | N/A | N/A |
| Bedroom | N/A | N/A | N/A | N/A |
| Bathroom | N/A | N/A | N/A | N/A |
| Living/Dining | N/A | N/A | N/A | N/A |
| Kitchen | N/A | N/A | N/A | N/A |
| Toilet | N/A | N/A | N/A | N/A |
Unit 901
1
1
N/A
Apartment
N/A
N/A
N/A
N/A
N/A
211.08 Square Feet
N/A
N/A
977.90 Square Feet
Unit: 901
Unit Area: 71.24 SQ.M. - 766.82 SQ.FT.
Balcony: 19.61 SQ.M. - 211.08 SQ.FT.
Total: 90.85 SQ.M. - 977.90 SQ.FT.
| Title | Floor | Width (Square Feet) | Length (Square Feet) | Total (Square Feet) |
|---|---|---|---|---|
| Balcony | N/A | N/A | N/A | N/A |
| Bedroom | N/A | N/A | N/A | N/A |
| Bathroom | N/A | N/A | N/A | N/A |
| Living/Dining | N/A | N/A | N/A | N/A |
| Kitchen | N/A | N/A | N/A | N/A |
| Toilet | N/A | N/A | N/A | N/A |
Unit 902
3
3
N/A
Apartment
N/A
N/A
N/A
N/A
N/A
687.71 Square Feet
N/A
N/A
2435.87 Square Feet
Unit: 902
Unit Area: 162.41 SQ.M. - 1748.17 SQ.FT.
Balcony: 63.89 SQ.M. - 687.71 SQ.FT.
Total: 226.30 SQ.M. - 2435.87 SQ.FT.
| Title | Floor | Width (Square Feet) | Length (Square Feet) | Total (Square Feet) |
|---|---|---|---|---|
| Balcony | N/A | N/A | N/A | N/A |
| Master Bedroom | N/A | N/A | N/A | N/A |
| Master Bathroom | N/A | N/A | N/A | N/A |
| Bedroom | N/A | N/A | N/A | N/A |
| Bathroom | N/A | N/A | N/A | N/A |
| Living/Dining | N/A | N/A | N/A | N/A |
| Bedroom 3 | N/A | N/A | N/A | N/A |
| Bathroom 3 | N/A | N/A | N/A | N/A |
Unit 903
3
3
N/A
Apartment
N/A
N/A
N/A
N/A
N/A
737.44 Square Feet
N/A
N/A
2621.23 Square Feet
Unit: 903
Unit Area: 175.01 SQ.M. - 1883.79 SQ.FT.
Balcony: 68.51 SQ.M. - 737.44 SQ.FT.
Total: 243.52 SQ.M. - 2621.23 SQ.FT.
| Title | Floor | Width (Square Feet) | Length (Square Feet) | Total (Square Feet) |
|---|---|---|---|---|
| Balcony | N/A | N/A | N/A | N/A |
| Master Bedroom | N/A | N/A | N/A | N/A |
| Master Bathroom | N/A | N/A | N/A | N/A |
| Bedroom | N/A | N/A | N/A | N/A |
| Bathroom | N/A | N/A | N/A | N/A |
| Living/Dining | N/A | N/A | N/A | N/A |
| Bedroom 3 | N/A | N/A | N/A | N/A |
| Bathroom 3 | N/A | N/A | N/A | N/A |
Unit 904
1
1
N/A
Apartment
N/A
N/A
N/A
N/A
N/A
235.19 Square Feet
N/A
N/A
957.56 Square Feet
Unit: 904
Unit Area: 67.11 SQ.M. - 722.37 SQ.FT.
Balcony: 21.85 SQ.M. - 235.19 SQ.FT.
Total: 88.96 SQ.M. - 957.56 SQ.FT.
| Title | Floor | Width (Square Feet) | Length (Square Feet) | Total (Square Feet) |
|---|---|---|---|---|
| Balcony | N/A | N/A | N/A | N/A |
| Bedroom | N/A | N/A | N/A | N/A |
| Bathroom | N/A | N/A | N/A | N/A |
| Living/Dining | N/A | N/A | N/A | N/A |
| Kitchen | N/A | N/A | N/A | N/A |
| Toilet | N/A | N/A | N/A | N/A |
Unit 905
2
2
N/A
Apartment
N/A
N/A
N/A
N/A
N/A
484.38 Square Feet
N/A
N/A
1551.19 Square Feet
Unit: 905
Unit Area: 99.11 SQ.M. - 1066.81 SQ.FT.
Balcony: 45.00 SQ.M. - 484.38 SQ.FT.
Total: 144.11 SQ.M. - 1551.19 SQ.FT.
| Title | Floor | Width (Square Feet) | Length (Square Feet) | Total (Square Feet) |
|---|---|---|---|---|
| Balcony | N/A | N/A | N/A | N/A |
| Master Bedroom | N/A | N/A | N/A | N/A |
| Master Bathroom | N/A | N/A | N/A | N/A |
| Bedroom | N/A | N/A | N/A | N/A |
| Bathroom | N/A | N/A | N/A | N/A |
| Living/Dining | N/A | N/A | N/A | N/A |
Unit 906
1
1
N/A
Apartment
N/A
N/A
N/A
N/A
N/A
157.05 Square Feet
N/A
N/A
733.99 Square Feet
Unit: 906
Unit Area: 53.60 SQ.M. - 576.95 SQ.FT.
Balcony: 14.59 SQ.M. - 157.05 SQ.FT.
Total: 68.19 SQ.M. - 733.99 SQ.FT.
| Title | Floor | Width (Square Feet) | Length (Square Feet) | Total (Square Feet) |
|---|---|---|---|---|
| Balcony | N/A | N/A | N/A | N/A |
| Bedroom | N/A | N/A | N/A | N/A |
| Bathroom | N/A | N/A | N/A | N/A |
| Living/Dining | N/A | N/A | N/A | N/A |
| Kitchen | N/A | N/A | N/A | N/A |
| Toilet | N/A | N/A | N/A | N/A |
Unit 907
2
2
N/A
Apartment
N/A
N/A
N/A
N/A
N/A
487.17 Square Feet
N/A
N/A
1446.24 Square Feet
Unit: 907
Unit Area: 89.10 SQ.M. - 959.06 SQ.FT.
Balcony: 45.26 SQ.M. - 487.17 SQ.FT.
Total: 134.36 SQ.M. - 1446.24 SQ.FT.
| Title | Floor | Width (Square Feet) | Length (Square Feet) | Total (Square Feet) |
|---|---|---|---|---|
| Balcony | N/A | N/A | N/A | N/A |
| Master Bedroom | N/A | N/A | N/A | N/A |
| Master Bathroom | N/A | N/A | N/A | N/A |
| Bedroom | N/A | N/A | N/A | N/A |
| Bathroom | N/A | N/A | N/A | N/A |
| Living/Dining | N/A | N/A | N/A | N/A |
Unit 908
1
1
N/A
Apartment
N/A
N/A
N/A
N/A
N/A
157.05 Square Feet
N/A
N/A
654.77 Square Feet
Unit: 908
Unit Area: 46.24 SQ.M. - 497.72 SQ.FT.
Balcony: 14.59 SQ.M. - 157.05 SQ.FT.
Total: 60.83 SQ.M. - 654.77 SQ.FT.
| Title | Floor | Width (Square Feet) | Length (Square Feet) | Total (Square Feet) |
|---|---|---|---|---|
| Balcony | N/A | N/A | N/A | N/A |
| Bedroom | N/A | N/A | N/A | N/A |
| Bathroom | N/A | N/A | N/A | N/A |
| Living/Dining | N/A | N/A | N/A | N/A |
| Kitchen | N/A | N/A | N/A | N/A |
| Toilet | N/A | N/A | N/A | N/A |
Unit 1001
1
1
N/A
Apartment
N/A
N/A
N/A
N/A
N/A
211.08 Square Feet
N/A
N/A
977.90 Square Feet
Unit: 1001
Unit Area: 71.24 SQ.M. - 766.82 SQ.FT.
Balcony: 19.61 SQ.M. - 211.08 SQ.FT.
Total: 90.85 SQ.M. - 977.90 SQ.FT.
| Title | Floor | Width (Square Feet) | Length (Square Feet) | Total (Square Feet) |
|---|---|---|---|---|
| Balcony | N/A | N/A | N/A | N/A |
| Bedroom | N/A | N/A | N/A | N/A |
| Bathroom | N/A | N/A | N/A | N/A |
| Living/Dining | N/A | N/A | N/A | N/A |
| Kitchen | N/A | N/A | N/A | N/A |
| Toilet | N/A | N/A | N/A | N/A |
Unit 1002
3
3
N/A
Apartment
N/A
N/A
N/A
N/A
N/A
687.71 Square Feet
N/A
N/A
2435.87 Square Feet
Unit: 1002
Unit Area: 162.41 SQ.M. - 1748.17 SQ.FT.
Balcony: 63.89 SQ.M. - 687.71 SQ.FT.
Total: 226.30 SQ.M. - 2435.87 SQ.FT.
| Title | Floor | Width (Square Feet) | Length (Square Feet) | Total (Square Feet) |
|---|---|---|---|---|
| Balcony | N/A | N/A | N/A | N/A |
| Master Bedroom | N/A | N/A | N/A | N/A |
| Master Bathroom | N/A | N/A | N/A | N/A |
| Bedroom | N/A | N/A | N/A | N/A |
| Bathroom | N/A | N/A | N/A | N/A |
| Living/Dining | N/A | N/A | N/A | N/A |
| Bedroom 3 | N/A | N/A | N/A | N/A |
| Bathroom 3 | N/A | N/A | N/A | N/A |
Unit 1003
3
3
N/A
Apartment
N/A
N/A
N/A
N/A
N/A
737.44 Square Feet
N/A
N/A
2621.23 Square Feet
Unit: 1003
Unit Area: 175.01 SQ.M. - 1883.79 SQ.FT.
Balcony: 68.51 SQ.M. - 737.44 SQ.FT.
Total: 243.52 SQ.M. - 2621.23 SQ.FT.
| Title | Floor | Width (Square Feet) | Length (Square Feet) | Total (Square Feet) |
|---|---|---|---|---|
| Balcony | N/A | N/A | N/A | N/A |
| Master Bedroom | N/A | N/A | N/A | N/A |
| Master Bathroom | N/A | N/A | N/A | N/A |
| Bedroom | N/A | N/A | N/A | N/A |
| Bathroom | N/A | N/A | N/A | N/A |
| Living/Dining | N/A | N/A | N/A | N/A |
| Bedroom 3 | N/A | N/A | N/A | N/A |
| Bathroom 3 | N/A | N/A | N/A | N/A |
Unit 1004
1
1
N/A
Apartment
N/A
N/A
N/A
N/A
N/A
235.19 Square Feet
N/A
N/A
957.56 Square Feet
Unit: 1004
Unit Area: 67.11 SQ.M. - 722.37 SQ.FT.
Balcony: 21.85 SQ.M. - 235.19 SQ.FT.
Total: 88.96 SQ.M. - 957.56 SQ.FT.
| Title | Floor | Width (Square Feet) | Length (Square Feet) | Total (Square Feet) |
|---|---|---|---|---|
| Balcony | N/A | N/A | N/A | N/A |
| Bedroom | N/A | N/A | N/A | N/A |
| Bathroom | N/A | N/A | N/A | N/A |
| Living/Dining | N/A | N/A | N/A | N/A |
| Kitchen | N/A | N/A | N/A | N/A |
| Toilet | N/A | N/A | N/A | N/A |
Unit 1005
2
2
N/A
Apartment
N/A
N/A
N/A
N/A
N/A
484.38 Square Feet
N/A
N/A
1551.19 Square Feet
Unit: 1005
Unit Area: 99.11 SQ.M. - 1066.81 SQ.FT.
Balcony: 45.00 SQ.M. - 484.38 SQ.FT.
Total: 144.11 SQ.M. - 1551.19 SQ.FT.
| Title | Floor | Width (Square Feet) | Length (Square Feet) | Total (Square Feet) |
|---|---|---|---|---|
| Balcony | N/A | N/A | N/A | N/A |
| Master Bedroom | N/A | N/A | N/A | N/A |
| Master Bathroom | N/A | N/A | N/A | N/A |
| Bedroom | N/A | N/A | N/A | N/A |
| Bathroom | N/A | N/A | N/A | N/A |
| Living/Dining | N/A | N/A | N/A | N/A |
Unit 1006
1
1
N/A
Apartment
N/A
N/A
N/A
N/A
N/A
157.05 Square Feet
N/A
N/A
733.99 Square Feet
Unit: 1006
Unit Area: 53.60 SQ.M. - 576.95 SQ.FT.
Balcony: 14.59 SQ.M. - 157.05 SQ.FT.
Total: 68.19 SQ.M. - 733.99 SQ.FT.
| Title | Floor | Width (Square Feet) | Length (Square Feet) | Total (Square Feet) |
|---|---|---|---|---|
| Balcony | N/A | N/A | N/A | N/A |
| Bedroom | N/A | N/A | N/A | N/A |
| Bathroom | N/A | N/A | N/A | N/A |
| Living/Dining | N/A | N/A | N/A | N/A |
| Kitchen | N/A | N/A | N/A | N/A |
| Toilet | N/A | N/A | N/A | N/A |
Unit 1007
2
2
N/A
Apartment
N/A
N/A
N/A
N/A
N/A
487.17 Square Feet
N/A
N/A
1446.24 Square Feet
Unit: 1007
Unit Area: 89.10 SQ.M. - 959.06 SQ.FT.
Balcony: 45.26 SQ.M. - 487.17 SQ.FT.
Total: 134.36 SQ.M. - 1446.24 SQ.FT.
| Title | Floor | Width (Square Feet) | Length (Square Feet) | Total (Square Feet) |
|---|---|---|---|---|
| Balcony | N/A | N/A | N/A | N/A |
| Master Bedroom | N/A | N/A | N/A | N/A |
| Master Bathroom | N/A | N/A | N/A | N/A |
| Bedroom | N/A | N/A | N/A | N/A |
| Bathroom | N/A | N/A | N/A | N/A |
| Living/Dining | N/A | N/A | N/A | N/A |
Unit 1008
1
1
N/A
Apartment
N/A
N/A
N/A
N/A
N/A
157.05 Square Feet
N/A
497.72 Square Feet
654.77 Square Feet
Unit: 1008
Unit Area: 46.24 SQ.M. - 497.72 SQ.FT.
Balcony: 14.59 SQ.M. - 157.05 SQ.FT.
Total: 60.83 SQ.M. - 654.77 SQ.FT.
| Title | Floor | Width (Square Feet) | Length (Square Feet) | Total (Square Feet) |
|---|---|---|---|---|
| Balcony | N/A | N/A | N/A | N/A |
| Bedroom | N/A | N/A | N/A | N/A |
| Bathroom | N/A | N/A | N/A | N/A |
| Living/Dining | N/A | N/A | N/A | N/A |
| Kitchen | N/A | N/A | N/A | N/A |
| Toilet | N/A | N/A | N/A | N/A |
Unit 1101
1
1
N/A
Apartment
N/A
N/A
N/A
N/A
N/A
211.08 Square Feet
N/A
N/A
977.90 Square Feet
Unit: 1101
Unit Area: 71.24 SQ.M. - 766.82 SQ.FT.
Balcony: 19.61 SQ.M. - 211.08 SQ.FT.
Total: 90.85 SQ.M. - 977.90 SQ.FT.
| Title | Floor | Width (Square Feet) | Length (Square Feet) | Total (Square Feet) |
|---|---|---|---|---|
| Balcony | N/A | N/A | N/A | N/A |
| Bedroom | N/A | N/A | N/A | N/A |
| Bathroom | N/A | N/A | N/A | N/A |
| Living/Dining | N/A | N/A | N/A | N/A |
| Kitchen | N/A | N/A | N/A | N/A |
| Toilet | N/A | N/A | N/A | N/A |
Unit 1102
3
3
N/A
Apartment
N/A
N/A
N/A
N/A
N/A
687.71 Square Feet
N/A
N/A
2435.87 Square Feet
Unit: 1102
Unit Area: 162.41 SQ.M. - 1748.17 SQ.FT.
Balcony: 63.89 SQ.M. - 687.71 SQ.FT.
Total: 226.30 SQ.M. - 2435.87 SQ.FT.
| Title | Floor | Width (Square Feet) | Length (Square Feet) | Total (Square Feet) |
|---|---|---|---|---|
| Balcony | N/A | N/A | N/A | N/A |
| Master Bedroom | N/A | N/A | N/A | N/A |
| Master Bathroom | N/A | N/A | N/A | N/A |
| Bedroom | N/A | N/A | N/A | N/A |
| Bathroom | N/A | N/A | N/A | N/A |
| Living/Dining | N/A | N/A | N/A | N/A |
| Bedroom 3 | N/A | N/A | N/A | N/A |
| Bathroom 3 | N/A | N/A | N/A | N/A |
Unit 1103
3
3
N/A
Apartment
N/A
N/A
N/A
N/A
N/A
737.44 Square Feet
N/A
N/A
2621.23 Square Feet
Unit: 1103
Unit Area: 175.01 SQ.M. - 1883.79 SQ.FT.
Balcony: 68.51 SQ.M. - 737.44 SQ.FT.
Total: 243.52 SQ.M. - 2621.23 SQ.FT.
| Title | Floor | Width (Square Feet) | Length (Square Feet) | Total (Square Feet) |
|---|---|---|---|---|
| Balcony | N/A | N/A | N/A | N/A |
| Master Bedroom | N/A | N/A | N/A | N/A |
| Master Bathroom | N/A | N/A | N/A | N/A |
| Bedroom | N/A | N/A | N/A | N/A |
| Bathroom | N/A | N/A | N/A | N/A |
| Living/Dining | N/A | N/A | N/A | N/A |
| Bedroom 3 | N/A | N/A | N/A | N/A |
| Bathroom 3 | N/A | N/A | N/A | N/A |
Unit 1104
1
1
N/A
Apartment
N/A
N/A
N/A
N/A
N/A
235.19 Square Feet
N/A
N/A
957.56 Square Feet
Unit: 1104
Unit Area: 67.11 SQ.M. - 722.37 SQ.FT.
Balcony: 21.85 SQ.M. - 235.19 SQ.FT.
Total: 88.96 SQ.M. - 957.56 SQ.FT.
| Title | Floor | Width (Square Feet) | Length (Square Feet) | Total (Square Feet) |
|---|---|---|---|---|
| Balcony | N/A | N/A | N/A | N/A |
| Bedroom | N/A | N/A | N/A | N/A |
| Bathroom | N/A | N/A | N/A | N/A |
| Living/Dining | N/A | N/A | N/A | N/A |
| Kitchen | N/A | N/A | N/A | N/A |
| Toilet | N/A | N/A | N/A | N/A |
Unit 1105
2
2
N/A
Apartment
N/A
N/A
N/A
N/A
N/A
484.38 Square Feet
N/A
N/A
1551.19 Square Feet
Unit: 1105
Unit Area: 99.11 SQ.M. - 1066.81 SQ.FT.
Balcony: 45.00 SQ.M. - 484.38 SQ.FT.
Total: 144.11 SQ.M. - 1551.19 SQ.FT.
| Title | Floor | Width (Square Feet) | Length (Square Feet) | Total (Square Feet) |
|---|---|---|---|---|
| Balcony | N/A | N/A | N/A | N/A |
| Master Bedroom | N/A | N/A | N/A | N/A |
| Master Bathroom | N/A | N/A | N/A | N/A |
| Bedroom | N/A | N/A | N/A | N/A |
| Bathroom | N/A | N/A | N/A | N/A |
| Living/Dining | N/A | N/A | N/A | N/A |
Unit 1106
1
1
N/A
Apartment
N/A
N/A
N/A
N/A
N/A
157.05 Square Feet
N/A
N/A
733.99 Square Feet
Unit: 1106
Unit Area: 53.60 SQ.M. - 576.95 SQ.FT.
Balcony: 14.59 SQ.M. - 157.05 SQ.FT.
Total: 68.19 SQ.M. - 733.99 SQ.FT.
| Title | Floor | Width (Square Feet) | Length (Square Feet) | Total (Square Feet) |
|---|---|---|---|---|
| Balcony | N/A | N/A | N/A | N/A |
| Bedroom | N/A | N/A | N/A | N/A |
| Bathroom | N/A | N/A | N/A | N/A |
| Living/Dining | N/A | N/A | N/A | N/A |
| Kitchen | N/A | N/A | N/A | N/A |
| Toilet | N/A | N/A | N/A | N/A |
Unit 1107
2
2
N/A
Apartment
N/A
N/A
N/A
N/A
N/A
487.17 Square Feet
N/A
N/A
1446.24 Square Feet
Unit: 1107
Unit Area: 89.10 SQ.M. - 959.06 SQ.FT.
Balcony: 45.26 SQ.M. - 487.17 SQ.FT.
Total: 134.36 SQ.M. - 1446.24 SQ.FT.
| Title | Floor | Width (Square Feet) | Length (Square Feet) | Total (Square Feet) |
|---|---|---|---|---|
| Balcony | N/A | N/A | N/A | N/A |
| Master Bedroom | N/A | N/A | N/A | N/A |
| Master Bathroom | N/A | N/A | N/A | N/A |
| Bedroom | N/A | N/A | N/A | N/A |
| Bathroom | N/A | N/A | N/A | N/A |
| Living/Dining | N/A | N/A | N/A | N/A |
Unit 1108
1
1
N/A
Apartment
N/A
N/A
N/A
N/A
N/A
157.05 Square Feet
N/A
N/A
654.77 Square Feet
Unit: 1108
Unit Area: 46.24 SQ.M. - 497.72 SQ.FT.
Balcony: 14.59 SQ.M. - 157.05 SQ.FT.
Total: 60.83 SQ.M. - 654.77 SQ.FT.
| Title | Floor | Width (Square Feet) | Length (Square Feet) | Total (Square Feet) |
|---|---|---|---|---|
| Balcony | N/A | N/A | N/A | N/A |
| Bedroom | N/A | N/A | N/A | N/A |
| Bathroom | N/A | N/A | N/A | N/A |
| Living/Dining | N/A | N/A | N/A | N/A |
| Kitchen | N/A | N/A | N/A | N/A |
| Toilet | N/A | N/A | N/A | N/A |
Unit 101
3
3
N/A
Duplex
N/A
N/A
N/A
N/A
N/A
N/A
N/A
N/A
3804.40 Square Feet
Unit: 101
Unit Area: 354.44 SQ.M. - 3804.40 SQ.FT.
Balcony: 0.00 SQ.M . - 0.00 SQ.FT.
Total: 353.44 SQ.M. - 3804.40 SQ.FT.
| Title | Floor | Width (Square Feet) | Length (Square Feet) | Total (Square Feet) |
|---|---|---|---|---|
| Dining | N/A | N/A | N/A | N/A |
| Kitchen | N/A | N/A | N/A | N/A |
| Living | N/A | N/A | N/A | N/A |
| Lobby | N/A | N/A | N/A | N/A |
| Master Bedroom | N/A | N/A | N/A | N/A |
| Master Bathroom | N/A | N/A | N/A | N/A |
| Bedroom 2 | N/A | N/A | N/A | N/A |
| Bathroom 2 | N/A | N/A | N/A | N/A |
| Bedroom 3 | N/A | N/A | N/A | N/A |
| Bathroom 3 | N/A | N/A | N/A | N/A |
Unit 1201
4
4
N/A
Duplex
N/A
N/A
N/A
N/A
N/A
1223.00 Square Feet
N/A
N/A
5391.97 Square Feet
Unit: 1201
Unit Area: 387.31 SQ.M. - 4168.97 SQ.FT.
Balcony: 113.62 SQ.M. - 1223.00 SQ.FT.
Total: 500.93 SQ.M. - 5391.97 SQ.FT.
| Title | Floor | Width (Square Feet) | Length (Square Feet) | Total (Square Feet) |
|---|---|---|---|---|
| Balcony | N/A | N/A | N/A | N/A |
| Living | N/A | N/A | N/A | N/A |
| Dining | N/A | N/A | N/A | N/A |
| Kitchen | N/A | N/A | N/A | N/A |
| Laundry | N/A | N/A | N/A | N/A |
| Maid Room | N/A | N/A | N/A | N/A |
| Master Bedroom | N/A | N/A | N/A | N/A |
| Master Bathroom | N/A | N/A | N/A | N/A |
| Bedroom 2 | N/A | N/A | N/A | N/A |
| Bathroom 2 | N/A | N/A | N/A | N/A |
| Bedroom 3 | N/A | N/A | N/A | N/A |
| Bathroom 3 | N/A | N/A | N/A | N/A |
| Bedroom 4 | N/A | N/A | N/A | N/A |
| Bathroom 4 | N/A | N/A | N/A | N/A |
Unit 1202
4
4
N/A
Duplex
N/A
N/A
N/A
N/A
N/A
1231.82 Square Feet
N/A
N/A
5361.50 Square Feet
Unit: 1202
Unit Area: 383.66 SQ.M. - 4129.68 SQ.FT.
Balcony: 114.44 SQ.M. - 1231.82 SQ.FT.
Total: 498.10 SQ.M. - 5361.50 SQ.FT.
| Title | Floor | Width (Square Feet) | Length (Square Feet) | Total (Square Feet) |
|---|---|---|---|---|
| Balcony | N/A | N/A | N/A | N/A |
| Living | N/A | N/A | N/A | N/A |
| Dining | N/A | N/A | N/A | N/A |
| Kitchen | N/A | N/A | N/A | N/A |
| Laundry | N/A | N/A | N/A | N/A |
| Maid Room | N/A | N/A | N/A | N/A |
| Master Bedroom | N/A | N/A | N/A | N/A |
| Master Bathroom | N/A | N/A | N/A | N/A |
| Bedroom 2 | N/A | N/A | N/A | N/A |
| Bathroom 2 | N/A | N/A | N/A | N/A |
| Bedroom 3 | N/A | N/A | N/A | N/A |
| Bathroom 3 | N/A | N/A | N/A | N/A |
| Bedroom 4 | N/A | N/A | N/A | N/A |
| Bathroom 4 | N/A | N/A | N/A | N/A |
Unit 1203
4
4
N/A
Duplex
N/A
N/A
N/A
N/A
N/A
1222.89 Square Feet
N/A
N/A
5397.78 Square Feet
Unit: 1203
Unit Area: 387.86 SQ.M. - 4174.89 SQ.FT.
Balcony: 113.61 SQ.M. - 1222.89 SQ.FT.
Total: 501.47 SQ.M. - 5397.78 SQ.FT.
| Title | Floor | Width (Square Feet) | Length (Square Feet) | Total (Square Feet) |
|---|---|---|---|---|
| Balcony | N/A | N/A | N/A | N/A |
| Living | N/A | N/A | N/A | N/A |
| Dining | N/A | N/A | N/A | N/A |
| Kitchen | N/A | N/A | N/A | N/A |
| Laundry | N/A | N/A | N/A | N/A |
| Maid Room | N/A | N/A | N/A | N/A |
| Master Bedroom | N/A | N/A | N/A | N/A |
| Master Bathroom | N/A | N/A | N/A | N/A |
| Bedroom 2 | N/A | N/A | N/A | N/A |
| Bathroom 2 | N/A | N/A | N/A | N/A |
| Bedroom 3 | N/A | N/A | N/A | N/A |
| Bathroom 3 | N/A | N/A | N/A | N/A |
| Bedroom 4 | N/A | N/A | N/A | N/A |
| Bathroom 4 | N/A | N/A | N/A | N/A |
Unit 1204
4
4
N/A
Duplex
N/A
N/A
N/A
N/A
N/A
1225.47 Square Feet
N/A
N/A
5388.74 Square Feet
Unit: 1204
Unit Area: 386.78 SQ.M. - 4163.27 SQ.FT.
Balcony: 113.85 SQ.M. - 1225.47 SQ.FT.
Total: 500.63 SQ.M. - 5388.74 SQ.FT.
| Title | Floor | Width (Square Feet) | Length (Square Feet) | Total (Square Feet) |
|---|---|---|---|---|
| Balcony | N/A | N/A | N/A | N/A |
| Living | N/A | N/A | N/A | N/A |
| Dining | N/A | N/A | N/A | N/A |
| Kitchen | N/A | N/A | N/A | N/A |
| Laundry | N/A | N/A | N/A | N/A |
| Maid Room | N/A | N/A | N/A | N/A |
| Master Bedroom | N/A | N/A | N/A | N/A |
| Master Bathroom | N/A | N/A | N/A | N/A |
| Bedroom 2 | N/A | N/A | N/A | N/A |
| Bathroom 2 | N/A | N/A | N/A | N/A |
| Bedroom 3 | N/A | N/A | N/A | N/A |
| Bathroom 3 | N/A | N/A | N/A | N/A |
| Bedroom 4 | N/A | N/A | N/A | N/A |
| Bathroom 4 | N/A | N/A | N/A | N/A |
Unit 1401
4
4
N/A
Duplex
N/A
N/A
N/A
N/A
N/A
1223.00 Square Feet
N/A
N/A
5391.97 Square Feet
Unit: 1401
Unit Area: 387.31 SQ.M. - 4168.97 SQ.FT.
Balcony: 113.62 SQ.M. - 1223.00 SQ.FT.
Total: 500.93 SQ.M. - 5391.97 SQ.FT.
| Title | Floor | Width (Square Feet) | Length (Square Feet) | Total (Square Feet) |
|---|---|---|---|---|
| Balcony | N/A | N/A | N/A | N/A |
| Living | N/A | N/A | N/A | N/A |
| Dining | N/A | N/A | N/A | N/A |
| Kitchen | N/A | N/A | N/A | N/A |
| Laundry | N/A | N/A | N/A | N/A |
| Maid Room | N/A | N/A | N/A | N/A |
| Master Bedroom | N/A | N/A | N/A | N/A |
| Master Bathroom | N/A | N/A | N/A | N/A |
| Bedroom 2 | N/A | N/A | N/A | N/A |
| Bathroom 2 | N/A | N/A | N/A | N/A |
| Bedroom 3 | N/A | N/A | N/A | N/A |
| Bathroom 3 | N/A | N/A | N/A | N/A |
| Bedroom 4 | N/A | N/A | N/A | N/A |
| Bathroom 4 | N/A | N/A | N/A | N/A |
Unit 1402
4
4
N/A
Duplex
N/A
N/A
N/A
N/A
N/A
1231.82 Square Feet
N/A
N/A
5361.50 Square Feet
Unit: 1402
Unit Area: 383.66 SQ.M. - 4129.68 SQ.FT.
Balcony: 114.44 SQ.M. - 1231.82 SQ.FT.
Total: 498.10 SQ.M. - 5361.50 SQ.FT.
| Title | Floor | Width (Square Feet) | Length (Square Feet) | Total (Square Feet) |
|---|---|---|---|---|
| Balcony | N/A | N/A | N/A | N/A |
| Living | N/A | N/A | N/A | N/A |
| Dining | N/A | N/A | N/A | N/A |
| Kitchen | N/A | N/A | N/A | N/A |
| Laundry | N/A | N/A | N/A | N/A |
| Maid Room | N/A | N/A | N/A | N/A |
| Master Bedroom | N/A | N/A | N/A | N/A |
| Master Bathroom | N/A | N/A | N/A | N/A |
| Bedroom 2 | N/A | N/A | N/A | N/A |
| Bathroom 2 | N/A | N/A | N/A | N/A |
| Bedroom 3 | N/A | N/A | N/A | N/A |
| Bathroom 3 | N/A | N/A | N/A | N/A |
| Bedroom 4 | N/A | N/A | N/A | N/A |
| Bathroom 4 | N/A | N/A | N/A | N/A |
Unit 1403
4
4
N/A
Duplex
N/A
N/A
N/A
N/A
N/A
1222.89 Square Feet
N/A
N/A
5397.78 Square Feet
Unit: 1403
Unit Area: 387.86 SQ.M. - 4174.89 SQ.FT.
Balcony: 113.61 SQ.M. - 1222.89 SQ.FT.
Total: 501.47 SQ.M. - 5397.78 SQ.FT.
| Title | Floor | Width (Square Feet) | Length (Square Feet) | Total (Square Feet) |
|---|---|---|---|---|
| Balcony | N/A | N/A | N/A | N/A |
| Living | N/A | N/A | N/A | N/A |
| Dining | N/A | N/A | N/A | N/A |
| Kitchen | N/A | N/A | N/A | N/A |
| Laundry | N/A | N/A | N/A | N/A |
| Maid Room | N/A | N/A | N/A | N/A |
| Master Bedroom | N/A | N/A | N/A | N/A |
| Master Bathroom | N/A | N/A | N/A | N/A |
| Bedroom 2 | N/A | N/A | N/A | N/A |
| Bathroom 2 | N/A | N/A | N/A | N/A |
| Bedroom 3 | N/A | N/A | N/A | N/A |
| Bathroom 3 | N/A | N/A | N/A | N/A |
| Bedroom 4 | N/A | N/A | N/A | N/A |
| Bathroom 4 | N/A | N/A | N/A | N/A |
Unit 1404
4
4
N/A
Duplex
N/A
N/A
N/A
N/A
N/A
1225.47 Square Feet
N/A
N/A
5388.74 Square Feet
Unit: 1404
Unit Area: 386.78 SQ.M. - 4163.27 SQ.FT.
Balcony: 113.85 SQ.M. - 1225.47 SQ.FT.
Total: 500.63 SQ.M. - 5388.74 SQ.FT.
| Title | Floor | Width (Square Feet) | Length (Square Feet) | Total (Square Feet) |
|---|---|---|---|---|
| Balcony | N/A | N/A | N/A | N/A |
| Living | N/A | N/A | N/A | N/A |
| Dining | N/A | N/A | N/A | N/A |
| Kitchen | N/A | N/A | N/A | N/A |
| Laundry | N/A | N/A | N/A | N/A |
| Maid Room | N/A | N/A | N/A | N/A |
| Master Bedroom | N/A | N/A | N/A | N/A |
| Master Bathroom | N/A | N/A | N/A | N/A |
| Bedroom 2 | N/A | N/A | N/A | N/A |
| Bathroom 2 | N/A | N/A | N/A | N/A |
| Bedroom 3 | N/A | N/A | N/A | N/A |
| Bathroom 3 | N/A | N/A | N/A | N/A |
| Bedroom 4 | N/A | N/A | N/A | N/A |
| Bathroom 4 | N/A | N/A | N/A | N/A |
Unit 1601
4
4
N/A
Duplex
N/A
N/A
N/A
N/A
N/A
1223.00 Square Feet
N/A
N/A
5391.97 Square Feet
Unit: 1601
Unit Area: 387.31 SQ.M. - 4168.97 SQ.FT.
Balcony: 113.62 SQ.M. - 1223.00 SQ.FT.
Total: 500.93 SQ.M. - 5391.97 SQ.FT.
| Title | Floor | Width (Square Feet) | Length (Square Feet) | Total (Square Feet) |
|---|---|---|---|---|
| Balcony | N/A | N/A | N/A | N/A |
| Living | N/A | N/A | N/A | N/A |
| Dining | N/A | N/A | N/A | N/A |
| Kitchen | N/A | N/A | N/A | N/A |
| Laundry | N/A | N/A | N/A | N/A |
| Maid Room | N/A | N/A | N/A | N/A |
| Master Bedroom | N/A | N/A | N/A | N/A |
| Master Bathroom | N/A | N/A | N/A | N/A |
| Bedroom 2 | N/A | N/A | N/A | N/A |
| Bathroom 2 | N/A | N/A | N/A | N/A |
| Bedroom 3 | N/A | N/A | N/A | N/A |
| Bathroom 3 | N/A | N/A | N/A | N/A |
| Bedroom 4 | N/A | N/A | N/A | N/A |
| Bathroom 4 | N/A | N/A | N/A | N/A |
Unit 1602
4
4
N/A
Duplex
N/A
N/A
N/A
N/A
N/A
1231.82 Square Feet
N/A
N/A
5361.50 Square Feet
Unit: 1602
Unit Area: 383.66 SQ.M. - 4129.68 SQ.FT.
Balcony: 114.44 SQ.M. - 1231.82 SQ.FT.
Total: 498.10 SQ.M. - 5361.50 SQ.FT.
| Title | Floor | Width (Square Feet) | Length (Square Feet) | Total (Square Feet) |
|---|---|---|---|---|
| Balcony | N/A | N/A | N/A | N/A |
| Living | N/A | N/A | N/A | N/A |
| Dining | N/A | N/A | N/A | N/A |
| Kitchen | N/A | N/A | N/A | N/A |
| Laundry | N/A | N/A | N/A | N/A |
| Maid Room | N/A | N/A | N/A | N/A |
| Master Bedroom | N/A | N/A | N/A | N/A |
| Master Bathroom | N/A | N/A | N/A | N/A |
| Bedroom 2 | N/A | N/A | N/A | N/A |
| Bathroom 2 | N/A | N/A | N/A | N/A |
| Bedroom 3 | N/A | N/A | N/A | N/A |
| Bathroom 3 | N/A | N/A | N/A | N/A |
| Bedroom 4 | N/A | N/A | N/A | N/A |
| Bathroom 4 | N/A | N/A | N/A | N/A |
Unit 1603
4
4
N/A
Duplex
N/A
N/A
N/A
N/A
N/A
1222.89 Square Feet
N/A
N/A
5397.78 Square Feet
Unit: 1603
Unit Area: 387.86 SQ.M. - 4174.89 SQ.FT.
Balcony: 113.61 SQ.M. - 1222.89 SQ.FT.
Total: 501.47 SQ.M. - 5397.78 SQ.FT.
| Title | Floor | Width (Square Feet) | Length (Square Feet) | Total (Square Feet) |
|---|---|---|---|---|
| Balcony | N/A | N/A | N/A | N/A |
| Living | N/A | N/A | N/A | N/A |
| Dining | N/A | N/A | N/A | N/A |
| Kitchen | N/A | N/A | N/A | N/A |
| Laundry | N/A | N/A | N/A | N/A |
| Maid Room | N/A | N/A | N/A | N/A |
| Master Bedroom | N/A | N/A | N/A | N/A |
| Master Bathroom | N/A | N/A | N/A | N/A |
| Bedroom 2 | N/A | N/A | N/A | N/A |
| Bathroom 2 | N/A | N/A | N/A | N/A |
| Bedroom 3 | N/A | N/A | N/A | N/A |
| Bathroom 3 | N/A | N/A | N/A | N/A |
| Bedroom 4 | N/A | N/A | N/A | N/A |
| Bathroom 4 | N/A | N/A | N/A | N/A |
Unit 1604
4
4
N/A
Duplex
N/A
N/A
N/A
N/A
N/A
1225.47 Square Feet
N/A
N/A
5388.741 Square Feet
Unit: 1604
Unit Area: 386.78 SQ.M. - 4163.27 SQ.FT.
Balcony: 113.85 SQ.M. - 1225.47 SQ.FT.
Total: 500.63 SQ.M. - 5388.74 SQ.FT.
| Title | Floor | Width (Square Feet) | Length (Square Feet) | Total (Square Feet) |
|---|---|---|---|---|
| Balcony | N/A | N/A | N/A | N/A |
| Living | N/A | N/A | N/A | N/A |
| Dining | N/A | N/A | N/A | N/A |
| Kitchen | N/A | N/A | N/A | N/A |
| Laundry | N/A | N/A | N/A | N/A |
| Maid Room | N/A | N/A | N/A | N/A |
| Master Bedroom | N/A | N/A | N/A | N/A |
| Master Bathroom | N/A | N/A | N/A | N/A |
| Bedroom 2 | N/A | N/A | N/A | N/A |
| Bathroom 2 | N/A | N/A | N/A | N/A |
| Bedroom 3 | N/A | N/A | N/A | N/A |
| Bathroom 3 | N/A | N/A | N/A | N/A |
| Bedroom 4 | N/A | N/A | N/A | N/A |
| Bathroom 4 | N/A | N/A | N/A | N/A |
Unit 1801
4
4
N/A
Duplex
N/A
N/A
N/A
N/A
N/A
1223.00 Square Feet
N/A
N/A
5391.97 Square Feet
Unit: 1801
Unit Area: 387.31 SQ.M. - 4168.97 SQ.FT.
Balcony: 113.62 SQ.M. - 1223.00 SQ.FT.
Total: 500.93 SQ.M. - 5391.97 SQ.FT.
| Title | Floor | Width (Square Feet) | Length (Square Feet) | Total (Square Feet) |
|---|---|---|---|---|
| Balcony | N/A | N/A | N/A | N/A |
| Living | N/A | N/A | N/A | N/A |
| Dining | N/A | N/A | N/A | N/A |
| Kitchen | N/A | N/A | N/A | N/A |
| Laundry | N/A | N/A | N/A | N/A |
| Maid Room | N/A | N/A | N/A | N/A |
| Master Bedroom | N/A | N/A | N/A | N/A |
| Master Bathroom | N/A | N/A | N/A | N/A |
| Bedroom 2 | N/A | N/A | N/A | N/A |
| Bathroom 2 | N/A | N/A | N/A | N/A |
| Bedroom 3 | N/A | N/A | N/A | N/A |
| Bathroom 3 | N/A | N/A | N/A | N/A |
| Bedroom 4 | N/A | N/A | N/A | N/A |
| Bathroom 4 | N/A | N/A | N/A | N/A |
Unit 1802
4
4
N/A
Duplex
N/A
N/A
N/A
N/A
N/A
1231.82 Square Feet
N/A
N/A
5361.50 Square Feet
Unit: 1802
Unit Area: 383.66 SQ.M. - 4129.68 SQ.FT.
Balcony: 114.44 SQ.M. - 1231.82 SQ.FT.
Total: 498.10 SQ.M. - 5361.50 SQ.FT.
| Title | Floor | Width (Square Feet) | Length (Square Feet) | Total (Square Feet) |
|---|---|---|---|---|
| Balcony | N/A | N/A | N/A | N/A |
| Living | N/A | N/A | N/A | N/A |
| Dining | N/A | N/A | N/A | N/A |
| Kitchen | N/A | N/A | N/A | N/A |
| Laundry | N/A | N/A | N/A | N/A |
| Maid Room | N/A | N/A | N/A | N/A |
| Master Bedroom | N/A | N/A | N/A | N/A |
| Master Bathroom | N/A | N/A | N/A | N/A |
| Bedroom 2 | N/A | N/A | N/A | N/A |
| Bathroom 2 | N/A | N/A | N/A | N/A |
| Bedroom 3 | N/A | N/A | N/A | N/A |
| Bathroom 3 | N/A | N/A | N/A | N/A |
| Bedroom 4 | N/A | N/A | N/A | N/A |
| Bathroom 4 | N/A | N/A | N/A | N/A |
Unit 1803
4
4
N/A
Duplex
N/A
N/A
N/A
N/A
N/A
1222.89 Square Feet
N/A
N/A
5397.78 Square Feet
Unit: 1803
Unit Area: 387.86 SQ.M. - 4174.89 SQ.FT.
Balcony: 113.61 SQ.M. - 1222.89 SQ.FT.
Total: 501.47 SQ.M. - 5397.78 SQ.FT.
| Title | Floor | Width (Square Feet) | Length (Square Feet) | Total (Square Feet) |
|---|---|---|---|---|
| Balcony | N/A | N/A | N/A | N/A |
| Living | N/A | N/A | N/A | N/A |
| Dining | N/A | N/A | N/A | N/A |
| Kitchen | N/A | N/A | N/A | N/A |
| Laundry | N/A | N/A | N/A | N/A |
| Maid Room | N/A | N/A | N/A | N/A |
| Master Bedroom | N/A | N/A | N/A | N/A |
| Master Bathroom | N/A | N/A | N/A | N/A |
| Bedroom 2 | N/A | N/A | N/A | N/A |
| Bathroom 2 | N/A | N/A | N/A | N/A |
| Bedroom 3 | N/A | N/A | N/A | N/A |
| Bathroom 3 | N/A | N/A | N/A | N/A |
| Bedroom 4 | N/A | N/A | N/A | N/A |
| Bathroom 4 | N/A | N/A | N/A | N/A |
Unit 1804
4
4
N/A
Duplex
N/A
N/A
N/A
N/A
N/A
1225.47 Square Feet
N/A
N/A
5388.74 Square Feet
Unit: 1804
Unit Area: 386.78 SQ.M. - 4163.27 SQ.FT.
Balcony: 113.85 SQ.M. - 1225.47 SQ.FT.
Total: 500.63 SQ.M. - 5388.74 SQ.FT.
| Title | Floor | Width (Square Feet) | Length (Square Feet) | Total (Square Feet) |
|---|---|---|---|---|
| Balcony | N/A | N/A | N/A | N/A |
| Living | N/A | N/A | N/A | N/A |
| Dining | N/A | N/A | N/A | N/A |
| Kitchen | N/A | N/A | N/A | N/A |
| Laundry | N/A | N/A | N/A | N/A |
| Maid Room | N/A | N/A | N/A | N/A |
| Master Bedroom | N/A | N/A | N/A | N/A |
| Master Bathroom | N/A | N/A | N/A | N/A |
| Bedroom 2 | N/A | N/A | N/A | N/A |
| Bathroom 2 | N/A | N/A | N/A | N/A |
| Bedroom 3 | N/A | N/A | N/A | N/A |
| Bathroom 3 | N/A | N/A | N/A | N/A |
| Bedroom 4 | N/A | N/A | N/A | N/A |
| Bathroom 4 | N/A | N/A | N/A | N/A |
Unit 2001
4
4
N/A
Duplex
N/A
N/A
N/A
N/A
N/A
1223.00 Square Feet
N/A
N/A
5391.97 Square Feet
Unit: 2001
Unit Area: 387.31 SQ.M. - 4168.97 SQ.FT.
Balcony: 113.62 SQ.M. - 1223.00 SQ.FT.
Total: 500.93 SQ.M. - 5391.97 SQ.FT.
| Title | Floor | Width (Square Feet) | Length (Square Feet) | Total (Square Feet) |
|---|---|---|---|---|
| Balcony | N/A | N/A | N/A | N/A |
| Living | N/A | N/A | N/A | N/A |
| Dining | N/A | N/A | N/A | N/A |
| Kitchen | N/A | N/A | N/A | N/A |
| Laundry | N/A | N/A | N/A | N/A |
| Maid Room | N/A | N/A | N/A | N/A |
| Master Bedroom | N/A | N/A | N/A | N/A |
| Master Bathroom | N/A | N/A | N/A | N/A |
| Bedroom 2 | N/A | N/A | N/A | N/A |
| Bathroom 2 | N/A | N/A | N/A | N/A |
| Bedroom 3 | N/A | N/A | N/A | N/A |
| Bathroom 3 | N/A | N/A | N/A | N/A |
| Bedroom 4 | N/A | N/A | N/A | N/A |
| Bathroom 4 | N/A | N/A | N/A | N/A |
Unit 2202
4
4
N/A
Duplex
N/A
N/A
N/A
N/A
N/A
1229.99 Square Feet
N/A
N/A
5359.67 Square Feet
Unit: 2202
Unit Area: 383.66 SQ.M. - 4129.68 SQ.FT.
Balcony: 114.27 SQ.M. - 1229.99 SQ.FT.
Total: 497.93 SQ.M. - 5359.67 SQ.FT.
| Title | Floor | Width (Square Feet) | Length (Square Feet) | Total (Square Feet) |
|---|---|---|---|---|
| Balcony | N/A | N/A | N/A | N/A |
| Living | N/A | N/A | N/A | N/A |
| Dining | N/A | N/A | N/A | N/A |
| Kitchen | N/A | N/A | N/A | N/A |
| Laundry | N/A | N/A | N/A | N/A |
| Maid Room | N/A | N/A | N/A | N/A |
| Master Bedroom | N/A | N/A | N/A | N/A |
| Master Bathroom | N/A | N/A | N/A | N/A |
| Bedroom 2 | N/A | N/A | N/A | N/A |
| Bathroom 2 | N/A | N/A | N/A | N/A |
| Bedroom 3 | N/A | N/A | N/A | N/A |
| Bathroom 3 | N/A | N/A | N/A | N/A |
| Bedroom 4 | N/A | N/A | N/A | N/A |
| Bathroom 4 | N/A | N/A | N/A | N/A |
Unit 2203
4
4
N/A
Duplex
N/A
N/A
N/A
N/A
N/A
1223.43 Square Feet
N/A
N/A
5398.32 Square Feet
Unit: 2203
Unit Area: 387.86 SQ.M. - 4174.89 SQ.FT.
Balcony: 113.66 SQ.M. - 1223.43 SQ.FT.
Total: 501.52 SQ.M. - 5398.32 SQ.FT.
| Title | Floor | Width (Square Feet) | Length (Square Feet) | Total (Square Feet) |
|---|---|---|---|---|
| Balcony | N/A | N/A | N/A | N/A |
| Living | N/A | N/A | N/A | N/A |
| Dining | N/A | N/A | N/A | N/A |
| Kitchen | N/A | N/A | N/A | N/A |
| Laundry | N/A | N/A | N/A | N/A |
| Maid Room | N/A | N/A | N/A | N/A |
| Master Bedroom | N/A | N/A | N/A | N/A |
| Master Bathroom | N/A | N/A | N/A | N/A |
| Bedroom 2 | N/A | N/A | N/A | N/A |
| Bathroom 2 | N/A | N/A | N/A | N/A |
| Bedroom 3 | N/A | N/A | N/A | N/A |
| Bathroom 3 | N/A | N/A | N/A | N/A |
| Bedroom 4 | N/A | N/A | N/A | N/A |
| Bathroom 4 | N/A | N/A | N/A | N/A |
Unit 2204
4
4
N/A
Duplex
N/A
N/A
N/A
N/A
N/A
1226.12 Square Feet
N/A
N/A
5389.38 Square Feet
Unit: 2204
Unit Area: 386.78 SQ.M. - 4163.27 SQ.FT.
Balcony: 113.91 SQ.M. - 1226.12 SQ.FT.
Total: 500.69 SQ.M. - 5389.38 SQ.FT.
| Title | Floor | Width (Square Feet) | Length (Square Feet) | Total (Square Feet) |
|---|---|---|---|---|
| Balcony | N/A | N/A | N/A | N/A |
| Living | N/A | N/A | N/A | N/A |
| Dining | N/A | N/A | N/A | N/A |
| Kitchen | N/A | N/A | N/A | N/A |
| Laundry | N/A | N/A | N/A | N/A |
| Maid Room | N/A | N/A | N/A | N/A |
| Master Bedroom | N/A | N/A | N/A | N/A |
| Master Bathroom | N/A | N/A | N/A | N/A |
| Bedroom 2 | N/A | N/A | N/A | N/A |
| Bathroom 2 | N/A | N/A | N/A | N/A |
| Bedroom 3 | N/A | N/A | N/A | N/A |
| Bathroom 3 | N/A | N/A | N/A | N/A |
| Bedroom 4 | N/A | N/A | N/A | N/A |
| Bathroom 4 | N/A | N/A | N/A | N/A |




























