Construction Status
Payment Plan
Anticipated Completion Date
Title :
DAMAC Maison Distinction
Type :
Free Hold
Project Number :
1329
Completion Status :
Completed/Ready
Life Cycle :
Mature
Master Development :
Downtown Dubai
Developer :
N/A
Plot Number :
345-386
Project Configuration :
B + G + P + 49
Number Of Units :
308
Number Of Floor :
52
Plot Area :
36,087 Square Meter
Built Up Area :
N/A
Construction Status :
100%
Launch Date :
N/A
Registration Date :
25-Sep-2012
Construction Started Date :
21-Aug-2012
Anticipated Completion Date :
15-Feb-2016
Cost Consultants :
N/A
Piling Contractors :
N/A
Handover Date :
N/A
Main Contractors :
N/A
Sub Contractors :
N/A
Architects :
N/A
MEP Contractors :
N/A
Project Managers :
N/A
The Distinction is a 52-story private pinnacle offering overhauled private units. Arranged in the dynamic area of Downtown Dubai, the pinnacle includes an assortment of overhauled condos and penthouses. Standing 195 meters tall, it is situated right close to Al Asayel Street.
The private pinnacle offers
Commercial (272)
| Title | Floor Level | From | To | Action |
|---|---|---|---|---|
| Typical Floor plan | 27 , 29 | 27 | 29 | View Details |
| Typical Floor Plan | 28 , 30 - 39 | 30 | 39 | View Details |
| Typical Floor Plan | 40 - 45 | 40 | 45 | View Details |
| Typical Floor Plan | 46 | 46 | 46 | View Details |
| Typical Floor Plan | 47 | 47 | 47 | View Details |
| Typical Floor Plan | 48 | 48 | 48 | View Details |
| Typical Floor Plan | 49 | 49 | 49 | View Details |
| Typical Floor Plan | 50 | 50 | 50 | View Details |
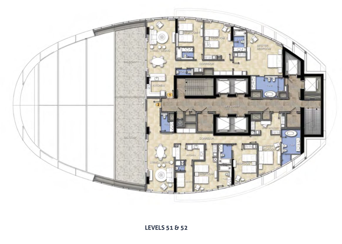
| Typical Floor Plan | 51 - 52 | 51 | 52 | View Details |
| Typical Floor Plan | 7 | 7 | 7 | View Details |
| Typical Floor Plan | 8, 12 - 24 | 12 | 24 | View Details |
| Typical Floor Plan | 9,11,26 | 9,11,26 | 9,11,26 | View Details |
Typical Floor plan
27 , 29
27
29
|
Unit Type |
Unit Number |
|
1 Bedroom |
1 , 3, 6, 6A |
|
2 Bedroom |
2 , 4, 5, 7 |
Typical Floor Plan
28 , 30 - 39
30
39
|
Unit Type |
Unit Number |
|
1 Bedroom |
1 , 3 |
|
2 Bedroom |
2 , 4, 5, 7 |
|
3 Bedroom |
6 |
Typical Floor Plan
40 - 45
40
45
N/A
Typical Floor Plan
46
46
46
N/A
Typical Floor Plan
47
47
47
|
Unit Type |
Unit Number |
|
1 Bedroom |
1 , 5 |
|
3 Bedroom |
2 , 3 , 4, 6 |
Typical Floor Plan
48
48
48
|
Unit Type |
Unit Number |
|
1 Bedroom |
1 , 6 |
|
2 Bedroom |
2 , 3 , 4, 5 |
Typical Floor Plan
49
49
49
|
Unit Type |
Unit Number |
|
1 Bedroom |
1 , 3 |
|
2 Bedroom |
2 , 4 |
|
3 Bedroom |
5 |
Typical Floor Plan
50
50
50
|
Unit Type |
Unit Number |
|
1 Bedroom |
1, 4 |
|
3 Bedroom |
2, 3 |
Typical Floor Plan
51 - 52
51
52
N/A
Typical Floor Plan
7
7
7
|
Unit Type |
Unit Number |
|
Studio |
6 |
|
1 Bedroom |
1, 3, 5 |
|
2 Bedroom |
2, 3A, 4 |
|
3 Bedroom |
7 |
Typical Floor Plan
8, 12 - 24
12
24
|
Unit Type |
Unit Number |
|
Studio |
6 |
|
1 Bedroom |
1, 5 |
|
2 Bedroom |
2, 4 |
|
3 Bedroom |
3, 7 |
Typical Floor Plan
9,11,26
9,11,26
9,11,26
|
Unit Type |
Unit Number |
|
Studio |
6 |
|
1 Bedroom |
1, 3, 5 |
|
2 Bedroom |
2, 3A, 4 |
|
3 Bedroom |
7 |
| Title | Action |
|---|---|
| Unit 6 | View Details |
| Unit 1 | View Details |
| Unit 3 | View Details |
| Unit 3 | View Details |
| Unit 4 | View Details |
| Unit 5 | View Details |
| Unit 5 | View Details |
| Unit 6 | View Details |
| Unit 6A | View Details |
| Unit 2 | View Details |
| Unit 3 | View Details |
| Unit 3A | View Details |
| Unit 4 | View Details |
| Unit 4 | View Details |
| Unit 4 | View Details |
| Unit 4 | View Details |
| Unit 5 | View Details |
| Unit 5 | View Details |
| Unit 7 | View Details |
| Unit 2 | View Details |
| Unit 2 | View Details |
| Unit 3 | View Details |
| Unit 4 | View Details |
| Unit 5 | View Details |
| Unit 6 | View Details |
| Unit 1 | View Details |
Unit 6
N/A
1
G + 2
N/A
7-11,12-24,26
N/A
N/A
500
519
3.89
N/A
N/A
N/A
| Title | Floor | Width (Square Feet) | Length (Square Feet) | Total (Square Feet) |
|---|---|---|---|---|
| Studio | 7-11,12-24,26 | N/A | N/A | N/A |
No data found.
Unit 1
1
2
N/A
N/A
N/A
N/A
N/A
765
920
13.87
N/A
N/A
N/A
| Title | Floor | Width (Square Feet) | Length (Square Feet) | Total (Square Feet) |
|---|---|---|---|---|
| Bedroom 1 | N/A | N/A | N/A | N/A |
No data found.
Unit 3
1
2
N/A
N/A
49
N/A
N/A
765
920
13.87
N/A
N/A
N/A
| Title | Floor | Width (Square Feet) | Length (Square Feet) | Total (Square Feet) |
|---|---|---|---|---|
| Bedroom 1 | 49 | N/A | N/A | N/A |
No data found.
Unit 3
1
2
N/A
N/A
7,9 -11,26,27-29
N/A
N/A
765
920
13.87
N/A
N/A
N/A
| Title | Floor | Width (Square Feet) | Length (Square Feet) | Total (Square Feet) |
|---|---|---|---|---|
| Bedroom 1 | 7,9 -11,26,27-29 | N/A | N/A | N/A |
Unit 4
1
2
N/A
N/A
50
N/A
N/A
765
920
13.87
N/A
N/A
N/A
| Title | Floor | Width (Square Feet) | Length (Square Feet) | Total (Square Feet) |
|---|---|---|---|---|
| Bedroom 1 | 50 | N/A | N/A | N/A |
Unit 5
1
2
N/A
N/A
47
N/A
N/A
765
920
13.87
N/A
N/A
N/A
| Title | Floor | Width (Square Feet) | Length (Square Feet) | Total (Square Feet) |
|---|---|---|---|---|
| Bedroom 1 | 47 | N/A | N/A | N/A |
Unit 5
1
2
N/A
N/A
7-24,26
N/A
N/A
765
920
13.87
N/A
N/A
N/A
| Title | Floor | Width (Square Feet) | Length (Square Feet) | Total (Square Feet) |
|---|---|---|---|---|
| Bedroom 1 | 7-24,26 | N/A | N/A | N/A |
Unit 6
1
2
N/A
N/A
48
N/A
N/A
765
920
13.87
N/A
N/A
N/A
| Title | Floor | Width (Square Feet) | Length (Square Feet) | Total (Square Feet) |
|---|---|---|---|---|
| Bedroom 1 | 48 | N/A | N/A | N/A |
Unit 6A
1
2
N/A
N/A
N/A
N/A
N/A
765
920
13.87
N/A
N/A
N/A
| Title | Floor | Width (Square Feet) | Length (Square Feet) | Total (Square Feet) |
|---|---|---|---|---|
| Bedroom 1 | N/A | N/A | N/A | N/A |
Unit 2
2
3
N/A
N/A
7-24,26-46,48,49
N/A
N/A
1240
1473
19.10
N/A
N/A
N/A
| Title | Floor | Width (Square Feet) | Length (Square Feet) | Total (Square Feet) |
|---|---|---|---|---|
| Master Bedroom | 7-24,26-46,48,49 | N/A | N/A | N/A |
| Bedroom 1 | 7-24,26-46,48,49 | N/A | N/A | N/A |
Unit 3
2
3
N/A
N/A
48
N/A
N/A
1240
1473
19.10
N/A
N/A
N/A
| Title | Floor | Width (Square Feet) | Length (Square Feet) | Total (Square Feet) |
|---|---|---|---|---|
| Master Bedroom | 48 | N/A | N/A | N/A |
| Bedroom 1 | 48 | N/A | N/A | N/A |
Unit 3A
2
3
G + 2
N/A
N/A
N/A
N/A
1240
1473
19.10
N/A
N/A
N/A
| Title | Floor | Width (Square Feet) | Length (Square Feet) | Total (Square Feet) |
|---|---|---|---|---|
| Master Bedroom | N/A | N/A | N/A | N/A |
| Bedroom 1 | N/A | N/A | N/A | N/A |
Unit 4
2
3
G + 2
N/A
27,29
N/A
N/A
1240
1473
19.10
N/A
N/A
N/A
| Title | Floor | Width (Square Feet) | Length (Square Feet) | Total (Square Feet) |
|---|---|---|---|---|
| Master Bedroom | 27,29 | N/A | N/A | N/A |
| Bedroom 1 | 27,29 | N/A | N/A | N/A |
Unit 4
2
3
G + 2
N/A
48
N/A
N/A
1240
1473
19.10
N/A
N/A
N/A
| Title | Floor | Width (Square Feet) | Length (Square Feet) | Total (Square Feet) |
|---|---|---|---|---|
| Master Bedroom | 48 | N/A | N/A | N/A |
| Bedroom 1 | 48 | N/A | N/A | N/A |
Unit 4
2
3
G + 2
N/A
49
N/A
N/A
1240
1473
19.10
N/A
N/A
N/A
| Title | Floor | Width (Square Feet) | Length (Square Feet) | Total (Square Feet) |
|---|---|---|---|---|
| Master Bedroom | 49 | N/A | N/A | N/A |
| Bedroom 1 | 49 | N/A | N/A | N/A |
Unit 4
2
3
G + 2
N/A
7-24,26
N/A
N/A
1240
1473
19.10
N/A
N/A
N/A
| Title | Floor | Width (Square Feet) | Length (Square Feet) | Total (Square Feet) |
|---|---|---|---|---|
| Master Bedroom | 7-24,26 | N/A | N/A | N/A |
| Bedroom 1 | 7-24,26 | N/A | N/A | N/A |
Unit 5
2
3
G + 2
N/A
27,29
N/A
N/A
1240
1473
19.10
N/A
N/A
N/A
| Title | Floor | Width (Square Feet) | Length (Square Feet) | Total (Square Feet) |
|---|---|---|---|---|
| Master Bedroom | 27,29 | N/A | N/A | N/A |
| Bedroom 1 | 27,29 | N/A | N/A | N/A |
Unit 5
2
3
G + 2
N/A
48
N/A
N/A
1240
1473
19.10
N/A
N/A
N/A
| Title | Floor | Width (Square Feet) | Length (Square Feet) | Total (Square Feet) |
|---|---|---|---|---|
| Master Bedroom | 48 | N/A | N/A | N/A |
| Bedroom 1 | 48 | N/A | N/A | N/A |
Unit 7
2
3
G + 2
N/A
27-30
N/A
N/A
1240
1473
19.10
N/A
N/A
N/A
| Title | Floor | Width (Square Feet) | Length (Square Feet) | Total (Square Feet) |
|---|---|---|---|---|
| Master Bedroom | 27-30 | N/A | N/A | N/A |
| Bedroom 1 | 27-30 | N/A | N/A | N/A |
Unit 2
3
4
G + 2
N/A
47
N/A
N/A
1770
1850
22.70
N/A
N/A
N/A
| Title | Floor | Width (Square Feet) | Length (Square Feet) | Total (Square Feet) |
|---|---|---|---|---|
| Master Bedroom | 47 | N/A | N/A | N/A |
| Bedroom 1 | 47 | N/A | N/A | N/A |
| Bedroom 2 | 47 | N/A | N/A | N/A |
Unit 2
3
4
G + 2
N/A
50
N/A
N/A
1770
1850
22.70
N/A
N/A
N/A
| Title | Floor | Width (Square Feet) | Length (Square Feet) | Total (Square Feet) |
|---|---|---|---|---|
| Master Bedroom | 50 | N/A | N/A | N/A |
| Bedroom 1 | 50 | N/A | N/A | N/A |
| Bedroom 2 | 50 | N/A | N/A | N/A |
Unit 3
3
4
G + 2
N/A
47
N/A
N/A
1770
1850
22.70
N/A
N/A
N/A
| Title | Floor | Width (Square Feet) | Length (Square Feet) | Total (Square Feet) |
|---|---|---|---|---|
| Master Bedroom | 47 | N/A | N/A | N/A |
| Bedroom 1 | 47 | N/A | N/A | N/A |
| Bedroom 2 | 47 | N/A | N/A | N/A |
Unit 4
3
4
G + 2
N/A
47
N/A
N/A
1770
1850
22.70
N/A
N/A
N/A
| Title | Floor | Width (Square Feet) | Length (Square Feet) | Total (Square Feet) |
|---|---|---|---|---|
| Master Bedroom | 47 | N/A | N/A | N/A |
| Bedroom 1 | 47 | N/A | N/A | N/A |
| Bedroom 2 | 47 | N/A | N/A | N/A |
Unit 5
3
4
N/A
N/A
49
N/A
N/A
1770
1850
22.70
N/A
N/A
N/A
| Title | Floor | Width (Square Feet) | Length (Square Feet) | Total (Square Feet) |
|---|---|---|---|---|
| Master Bedroom | 49 | N/A | N/A | N/A |
| Bedroom 1 | 49 | N/A | N/A | N/A |
| Bedroom 2 | 49 | N/A | N/A | N/A |
Unit 6
3
4
N/A
N/A
28,30-39
N/A
N/A
1770
1850
22.70
N/A
N/A
N/A
| Title | Floor | Width (Square Feet) | Length (Square Feet) | Total (Square Feet) |
|---|---|---|---|---|
| Master Bedroom | 28,30-39 | N/A | N/A | N/A |
| Bedroom 1 | 28,30-39 | N/A | N/A | N/A |
| Bedroom 2 | 28,30-39 | N/A | N/A | N/A |
Unit 1
4
5
N/A
N/A
N/A
N/A
N/A
N/A
N/A
N/A
N/A
N/A
N/A
| Title | Floor | Width (Square Feet) | Length (Square Feet) | Total (Square Feet) |
|---|---|---|---|---|
| Master Bedroom | 28,30-39 | N/A | N/A | N/A |
| Bedroom 1 | 28,30-39 | N/A | N/A | N/A |
| Bedroom 2 | 28,30-39 | N/A | N/A | N/A |






