UAE > Dubai > Dubai Hills Estate > Urban Living > Collective 2.0 Towers > Collective 2.0 Tower A
Service Charges
Completion Status
Payment Plan
Handover
Title :
Collective 2.0 Tower A
Type :
Free Hold
Project Number :
2107
Completion Status :
Completed/Ready
Life Cycle :
Mature
Master Development :
Collective 2.0 Towers
Developer :
N/A
Plot Number :
1892
Project Configuration :
B+G+16+R
Number Of Units :
495
Number Of Floor :
16
Plot Area :
302,211 Square Feet
Built Up Area :
N/A
Construction Status :
100
Launch Date :
N/A
Registration Date :
31-Oct-2018
Construction Started Date :
26-Jan-2019
Anticipated Completion Date :
31-Mar-2022
Cost Consultants :
N/A
Piling Contractors :
N/A
Handover Date :
N/A
Main Contractors :
N/A
Sub Contractors :
N/A
Architects :
N/A
MEP Contractors :
N/A
Project Managers :
N/A
Set in a tranquil location, Collective 2 at Dubai Hills Estate by Emaar Properties is a residential development that offers a mix of 1 & 2 bedroom apartments in Dubai. Owing to the strong response to Collective 1, with a total of 460 units being sold in one day, the developer made it a point to offer the buyers and investors with a new opportunity to secure one of the apartments in this highly coveted residential development.
Equipped with posh amenities and facilities, the development aims to redefine the notion of comfort and luxury. Designed to cater to the needs of millennials, the development features elements that in turn make it possible to work, play and live, without having to care much about other constraints.
Located a few distances away from Dubai Hills Park and Dubai Hills Mall, the development promises the ideal living conditions, where it becomes possible for you to experience and enjoy the views as well as the pleasant living conditions.
The apartments boast of interiors that can be termed cozy and welcoming. Because of the efficient use of space, you and your friends will have a great time here.
If it is about living life precisely at your own terms, a place where you can make friends, then this is the place you want to be.
The ultimate place for enjoying, making friends and steering an energetic way of life is at Collective II
It has 16 floors and 396 units comprises of 1 and 2 bedroom Apartments. There are 195 1Bedroom and 200 2 Bedroom Apartments. It is free hold community which is full of amenities. Each unit has specified parking area and Balcony.
The building is one of two that comprises Collective 2.0 at Dubai Hills Estate along with Collective 2.0 at Dubai Hills Estate Tower B.
Amenities
games room,
a gymnasium,
a library,
a secret garden,
a swimming pool,
an amphitheatre and
indoor and outdoor lounge areas.
Nearby Attractions:
The Storm
Dubai Hills Park
Dubai Hills Mall
Miracle garden
Ski Dubai
Barsha Pond park
Mall of Emirates
| Title | Floor Level | From | To | Action |
|---|---|---|---|---|
| UNIT 7-12 | 1-16 | 1 | 16 | View Details |
| UNIT 1-15 | 1-16 | 1 | 16 | View Details |
UNIT 7-12
1-16
1
16
The ultimate place for enjoying, making friends and steering an energetic way of life is at Collective II
A.F.S Real Estate offers comprehensive and professional property services to corporations, investors, and individuals across the UAE. We specialize in commercial & residential property leasing, buying, marketing, and more.
Our unique and expert approach to the market has allowed us to successfully sell/lease projects for some of the largest companies/investors in the UAE. We are linked to a huge network of investors and top brokerage firms in the region helping us find the best possible solution for every customers needs.
We take pride in our diverse portfolio being appointed as an exclusive agent for commercial and residential projects for sale and leasing and invested in properties for sub-lease with top investment companies.
Our continuous effort to deliver transactions with reliability and credibility is what separates us from the rest. Our constant growth has proven its expertise, market skills, and hard work keeping its clients, home-owners, and tenants satisfied.
Our team is composed of passionate individuals who bring expertise and skills along with the full dedication to the real estate industry. We always strive to deliver remarkable service to all our valued clients.
UNIT 1-15
1-16
1
16
The ultimate place for enjoying, making friends and steering an energetic way of life is at Collective II
A.F.S Real Estate offers comprehensive and professional property services to corporations, investors, and individuals across the UAE. We specialize in commercial & residential property leasing, buying, marketing, and more.
Our unique and expert approach to the market has allowed us to successfully sell/lease projects for some of the largest companies/investors in the UAE. We are linked to a huge network of investors and top brokerage firms in the region helping us find the best possible solution for every customers needs.
We take pride in our diverse portfolio being appointed as an exclusive agent for commercial and residential projects for sale and leasing and invested in properties for sub-lease with top investment companies.
Our continuous effort to deliver transactions with reliability and credibility is what separates us from the rest. Our constant growth has proven its expertise, market skills, and hard work keeping its clients, home-owners, and tenants satisfied.
Our team is composed of passionate individuals who bring expertise and skills along with the full dedication to the real estate industry. We always strive to deliver remarkable service to all our valued clients.
| Title | Action |
|---|---|
| UNIT 9 | View Details |
| UNIT 7 and 8 | View Details |
| Unit 4 | View Details |
| Unit 15 and 16 | View Details |
| Unit 16 and 17 | View Details |
| Unit 11, 12, 13 | View Details |
| Unit 6 | View Details |
| Unit 1 | View Details |
| Unit 5 | View Details |
| Unit 10 and 14 | View Details |
| Unit 14 and 15 | View Details |
| Unit 2 | View Details |
| Unit 3 | View Details |
| Unit 13 | View Details |
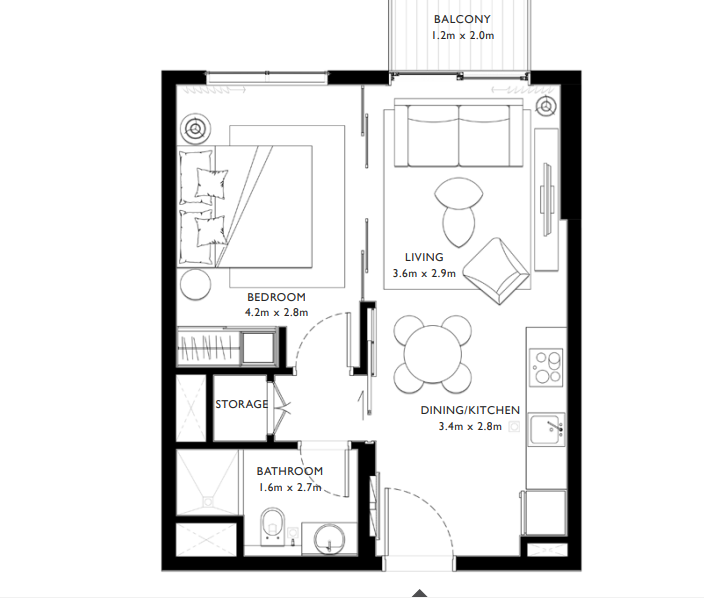
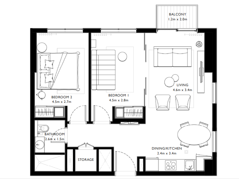
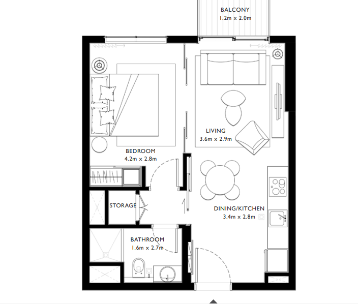
UNIT 9
1
1
N/A
N/A
1 / 2-10 / 11 / 12-16
N/A
N/A
481 Square Feet
482 Square Feet
N/A
N/A
N/A
N/A
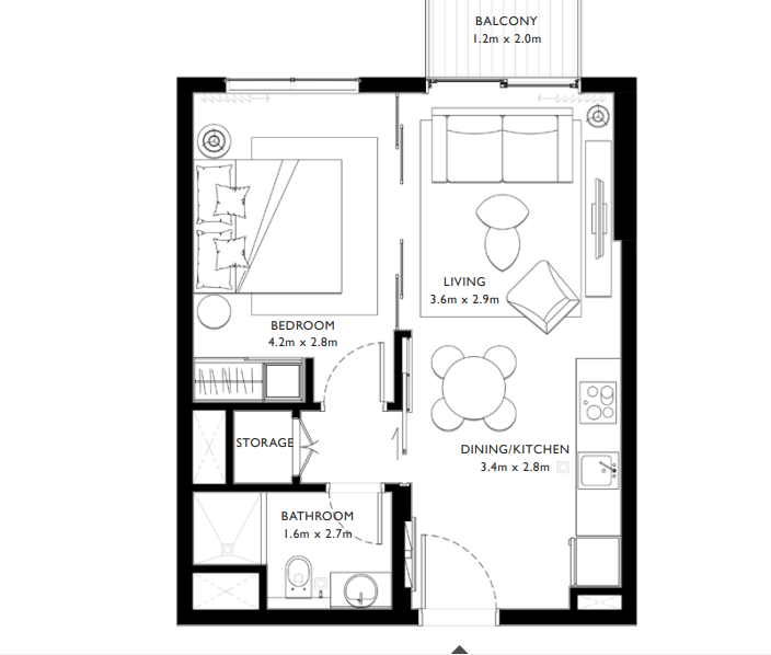
| Title | Floor | Width (Square Feet) | Length (Square Feet) | Total (Square Feet) |
|---|---|---|---|---|
| Bedroom | N/A | 45.21 | 30.14 | 1,362.63 |
| Living Room | N/A | 38.75 | 31.22 | 1,209.78 |
| Dining / Kitchen | N/A | 36.60 | 30.14 | 1,103.12 |
| Bath | N/A | 17.22 | 29.06 | 500.41 |
| Balcony | N/A | 12.92 | 21.53 | 278.17 |
| Storage Area | N/A | N/A | N/A | N/A |
UNIT 7 and 8
1
1
N/A
N/A
1 / 2-10 / 11 / 12-16
N/A
N/A
475 Square Feet
476 Square Feet
N/A
N/A
N/A
N/A
| Title | Floor | Width (Square Feet) | Length (Square Feet) | Total (Square Feet) |
|---|---|---|---|---|
| Bedroom | N/A | 45.21 | 30.14 | 1,362.63 |
| Living Room | N/A | 38.75 | 31.22 | 1,209.78 |
| Dining / Kitchen | N/A | 36.60 | 30.14 | 1,103.12 |
| Bath | N/A | 17.22 | 29.06 | 500.41 |
| Balcony | N/A | 12.92 | 21.53 | 278.17 |
| Storage Area | N/A | N/A | N/A | N/A |
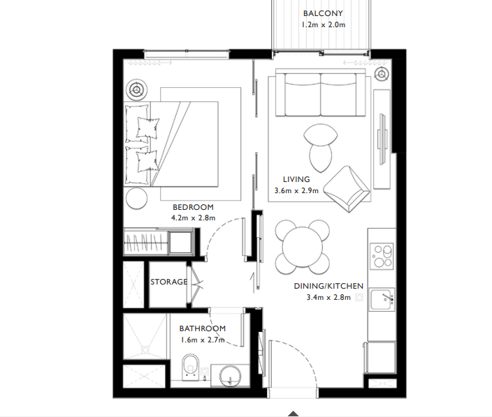
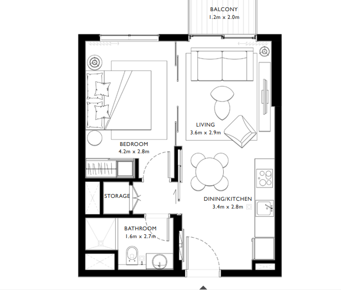
Unit 4
1
1
N/A
N/A
1 / 2-10 / 11 / 12-16
N/A
N/A
485 Square Feet
485 Square Feet
N/A
N/A
N/A
N/A
| Title | Floor | Width (Square Feet) | Length (Square Feet) | Total (Square Feet) |
|---|---|---|---|---|
| Bedroom | N/A | 45.21 | 30.14 | 1,362.63 |
| Living Room | N/A | 38.75 | 31.22 | 1,209.78 |
| Dining / Kitchen | N/A | 36.60 | 30.14 | 1,103.12 |
| Bath | N/A | 17.22 | 29.06 | 500.41 |
| Balcony | N/A | 12.92 | 21.53 | 278.17 |
| Storage Area | N/A | N/A | N/A | N/A |
Unit 15 and 16
1
1
N/A
N/A
1 / 2-10
N/A
N/A
475 Square Feet
476 Square Feet
N/A
N/A
N/A
N/A
| Title | Floor | Width (Square Feet) | Length (Square Feet) | Total (Square Feet) |
|---|---|---|---|---|
| Bedroom | N/A | 45.21 | 30.14 | 1,362.63 |
| Living Room | N/A | 38.75 | 31.22 | 1,209.78 |
| Dining / Kitchen | N/A | 36.60 | 30.14 | 1,103.12 |
| Bath | N/A | 17.22 | 29.06 | 500.41 |
| Balcony | N/A | 12.92 | 21.53 | 278.17 |
| Storage Area | N/A | N/A | N/A | N/A |
Unit 16 and 17
1
1
N/A
N/A
1 / 2-10
N/A
N/A
481 Square Feet
482 Square Feet
N/A
N/A
N/A
N/A
| Title | Floor | Width (Square Feet) | Length (Square Feet) | Total (Square Feet) |
|---|---|---|---|---|
| Bedroom | N/A | 45.21 | 30.14 | 1,362.63 |
| Living Room | N/A | 38.75 | 31.22 | 1,209.78 |
| Dining / Kitchen | N/A | 36.60 | 30.14 | 1,103.12 |
| Bath | N/A | 17.22 | 29.06 | 500.41 |
| Balcony | N/A | 12.92 | 21.53 | 278.17 |
| Storage Area | N/A | N/A | N/A | N/A |
Unit 11, 12, 13
1
1
N/A
N/A
1 / 2-10
N/A
N/A
485 Square Feet
486 Square Feet
N/A
N/A
N/A
N/A
| Title | Floor | Width (Square Feet) | Length (Square Feet) | Total (Square Feet) |
|---|---|---|---|---|
| Bedroom | N/A | 45.21 | 30.14 | 1,362.63 |
| Living Room | N/A | 38.75 | 31.22 | 1,209.78 |
| Dining / Kitchen | N/A | 36.60 | 30.14 | 1,103.12 |
| Bath | N/A | 17.22 | 29.06 | 500.41 |
| Balcony | N/A | 12.92 | 21.53 | 278.17 |
| Storage Area | N/A | N/A | N/A | N/A |
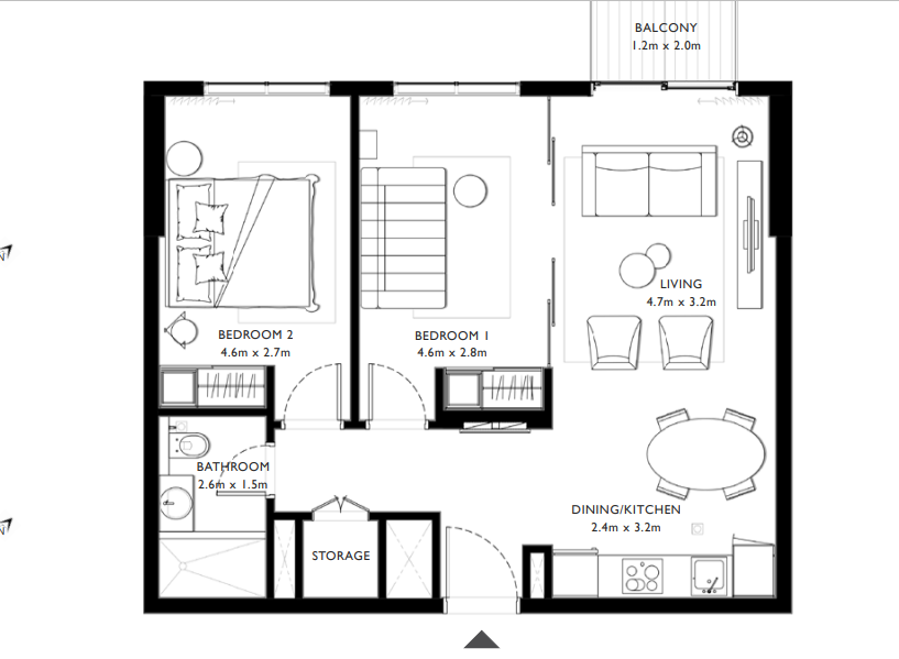
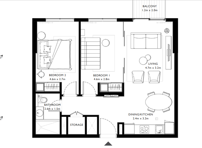
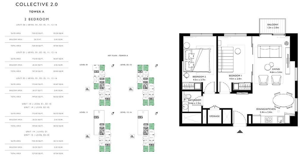
Unit 6
2
1
N/A
N/A
1 / 2-10 / 11 /12-16
N/A
N/A
726 Square Feet
727 Square Feet
N/A
N/A
N/A
N/A
| Title | Floor | Width (Square Feet) | Length (Square Feet) | Total (Square Feet) |
|---|---|---|---|---|
| Bedroom 1 | N/A | 48.44 | 30.14 | 1,459.98 |
| Bedroom 2 | N/A | 48.44 | 29.06 | 1,407.67 |
| Bath | N/A | 27.99 | 16.15 | 452.04 |
| Living Room | N/A | 49.51 | 36.60 | 1,812.07 |
| Dining / Kitchen | N/A | 25.83 | 36.60 | 945.38 |
| Balcony | N/A | 12.92 | 21.53 | 278.17 |
| Storage Area | N/A | N/A | N/A | N/A |
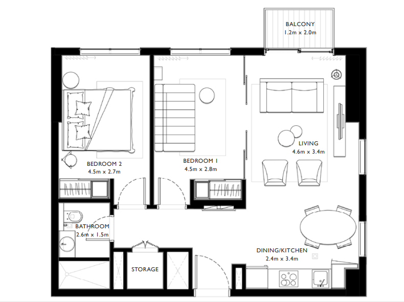
Unit 1
2
1
N/A
N/A
1 / 2-10 / 11 / 12-16
N/A
N/A
741 Square Feet
742 Square Feet
N/A
N/A
N/A
N/A
| Title | Floor | Width (Square Feet) | Length (Square Feet) | Total (Square Feet) |
|---|---|---|---|---|
| Bedroom 1 | N/A | 48.44 | 30.14 | 1,459.98 |
| Bedroom 2 | N/A | 48.44 | 29.06 | 1,407.67 |
| Bath | N/A | 27.99 | 16.15 | 452.04 |
| Living Room | N/A | 49.51 | 36.60 | 1,812.07 |
| Dining / Kitchen | N/A | 25.83 | 36.60 | 945.38 |
| Balcony | N/A | 12.92 | 21.53 | 278.17 |
| Storage Area | N/A | N/A | N/A | N/A |
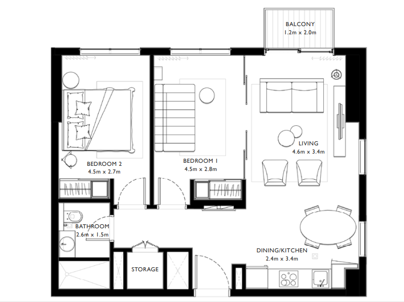
Unit 5
2
1
N/A
N/A
1 / 2-10 /11/ 12-16
N/A
N/A
741 Square Feet
742 Square Feet
N/A
N/A
N/A
N/A
| Title | Floor | Width (Square Feet) | Length (Square Feet) | Total (Square Feet) |
|---|---|---|---|---|
| Bedroom 1 | N/A | 48.44 | 30.14 | 1,459.98 |
| Bedroom 2 | N/A | 48.44 | 29.06 | 1,407.67 |
| Bath | N/A | 27.99 | 16.15 | 452.04 |
| Living Room | N/A | 49.51 | 36.60 | 1,812.07 |
| Dining / Kitchen | N/A | 25.83 | 36.60 | 945.38 |
| Balcony | N/A | 12.92 | 21.53 | 278.17 |
| Storage Area | N/A | N/A | N/A | N/A |
Unit 10 and 14
2
1
N/A
N/A
1 / 2-10
N/A
N/A
741 Square Feet
742 Square Feet
N/A
N/A
N/A
N/A
| Title | Floor | Width (Square Feet) | Length (Square Feet) | Total (Square Feet) |
|---|---|---|---|---|
| Bedroom 1 | N/A | 48.44 | 30.14 | 1,459.98 |
| Bedroom 2 | N/A | 48.44 | 29.06 | 1,407.67 |
| Bath | N/A | 27.99 | 16.15 | 452.04 |
| Living Room | N/A | 49.51 | 36.60 | 1,812.07 |
| Dining / Kitchen | N/A | 25.83 | 36.60 | 945.38 |
| Balcony | N/A | 12.92 | 21.53 | 278.17 |
| Storage Area | N/A | N/A | N/A | N/A |
Unit 14 and 15
2
1
N/A
N/A
1 / 2-10
N/A
N/A
727 Square Feet
727 Square Feet
N/A
N/A
N/A
N/A
| Title | Floor | Width (Square Feet) | Length (Square Feet) | Total (Square Feet) |
|---|---|---|---|---|
| Bedroom 1 | N/A | 48.44 | 30.14 | 1,459.98 |
| Bedroom 2 | N/A | 48.44 | 29.06 | 1,407.67 |
| Bath | N/A | 27.99 | 16.15 | 452.04 |
| Living Room | N/A | 49.51 | 36.60 | 1,812.07 |
| Dining / Kitchen | N/A | 25.83 | 36.60 | 945.38 |
| Balcony | N/A | 12.92 | 21.53 | 278.17 |
| Storage Area | N/A | N/A | N/A | N/A |
Unit 2
2
1
N/A
N/A
1 / 2-10 / 11 / 12-16
N/A
N/A
723 Square Feet
723 Square Feet
N/A
N/A
N/A
N/A
| Title | Floor | Width (Square Feet) | Length (Square Feet) | Total (Square Feet) |
|---|---|---|---|---|
| Bedroom 1 | N/A | 49.51 | 30.14 | 1,492.23 |
| Bedroom 2 | N/A | 49.51 | 29.06 | 1,438.76 |
| Bath | N/A | 27.99 | 16.15 | 452.04 |
| Living Room | N/A | 50.59 | 34.44 | 1,742.32 |
| Dining / Kitchen | N/A | 25.83 | 34.44 | 889.59 |
| Balcony | N/A | 12.92 | 21.53 | 278.17 |
| Storage Area | N/A | N/A | N/A | N/A |
Unit 3
2
1
N/A
N/A
1 / 2-10 / 11 / 12-16
N/A
N/A
724 Square Feet
725 Square Feet
N/A
N/A
N/A
N/A
| Title | Floor | Width (Square Feet) | Length (Square Feet) | Total (Square Feet) |
|---|---|---|---|---|
| Bedroom 1 | N/A | 49.51 | 30.14 | 1,492.23 |
| Bedroom 2 | N/A | 49.51 | 29.06 | 1,438.76 |
| Bath | N/A | 27.99 | 16.15 | 452.04 |
| Living Room | N/A | 50.59 | 34.44 | 1,742.32 |
| Dining / Kitchen | N/A | 25.83 | 34.44 | 889.59 |
| Balcony | N/A | 12.92 | 21.53 | 278.17 |
| Storage Area | N/A | N/A | N/A | N/A |
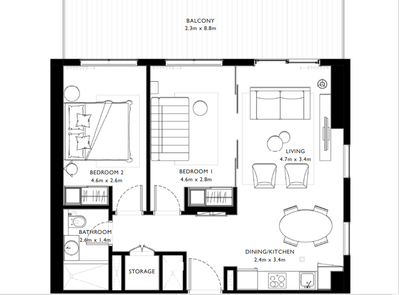
Unit 13
2
1
N/A
N/A
1
N/A
N/A
938 Square Feet
939 Square Feet
N/A
N/A
N/A
N/A
| Title | Floor | Width (Square Feet) | Length (Square Feet) | Total (Square Feet) |
|---|---|---|---|---|
| Bedroom 1 | N/A | 49.51 | 30.14 | 1,492.23 |
| Bedroom 2 | N/A | 49.51 | 27.99 | 1,385.78 |
| Bath | N/A | 27.99 | 15.07 | 421.81 |
| Living Room | N/A | 50.59 | 36.60 | 1,851.59 |
| Dining / Kitchen | N/A | 25.83 | 36.60 | 945.38 |
| Balcony | N/A | 24.76 | 94.72 | 2,345.27 |
| Storage Area | N/A | N/A | N/A | N/A |
| Title | Action |
|---|---|
| EXTERNAL LAYOUT OF COLLECTIVE 2.0 | View Details |
EXTERNAL LAYOUT OF COLLECTIVE 2.0
The ultimate place for enjoying, making friends and steering an energetic way of life is at Collective II
Established in 2014, AFS Real Estate offers comprehensive and professional property services to corporations, investors, and individuals across the UAE. We specialize in commercial & residential property leasing, buying, marketing, and more.
Our unique and expert approach to the market has allowed us to successfully sell/lease projects for some of the largest companies/investors in the UAE. We are linked to a huge network of investors and top brokerage firms in the region helping us find the best possible solution for every customers needs.
We take pride in our diverse portfolio being appointed as an exclusive agent for commercial and residential projects for sale and leasing and invested in properties for sub-lease with top investment companies.
Our continuous effort to deliver transactions with reliability and credibility is what separates us from the rest. Our constant growth has proven its expertise, market skills, and hard work keeping its clients, home-owners, and tenants satisfied.
Our team is composed of passionate individuals who bring expertise and skills along with the full dedication to the real estate industry. We always strive to deliver remarkable service to all our valued clients.




