Under Construction
Title :
Cedre Villas
Type :
Lease Hold
Project Number :
N/A
Completion Status :
Completed/Ready
Life Cycle :
Mature
Master Development :
Dubai Silicon Oasis(DSO)
Developer :
N/A
Plot Number :
N/A
Project Configuration :
N/A
Number Of Units :
1268
Number Of Floor :
2
Plot Area :
N/A
Built Up Area :
N/A
Status Percentage :
100
Launch Date :
N/A
Registration Date :
N/A
Construction Started Date :
N/A
Anticipated Completion Date :
N/A
Cost Consultants :
N/A
Piling Contractors :
N/A
Handover Date :
N/A
Main Contractors :
N/A
Sub Contractors :
N/A
Architects :
N/A
MEP Contractors :
N/A
Project Managers :
N/A
Cedre Villas:
Cedre Villas in Dubai Silicon Oasis (DSO) is a luxurious gated community developed by the Dubai Silicon Oasis Authority (DSOA).| Title | Action |
|---|---|
| Type Executive Arabic | View Details |
| Type Executive Modern | View Details |
| Type Executive Traditional | View Details |
| Type Townhouse Arabic | View Details |
| Type Townhouse Modern | View Details |
| Type Townhouse Traditional | View Details |
| Type Twinhouse Arabic | View Details |
| Type Twinhouse Modern | View Details |
| Type Twinhouse Traditional | View Details |
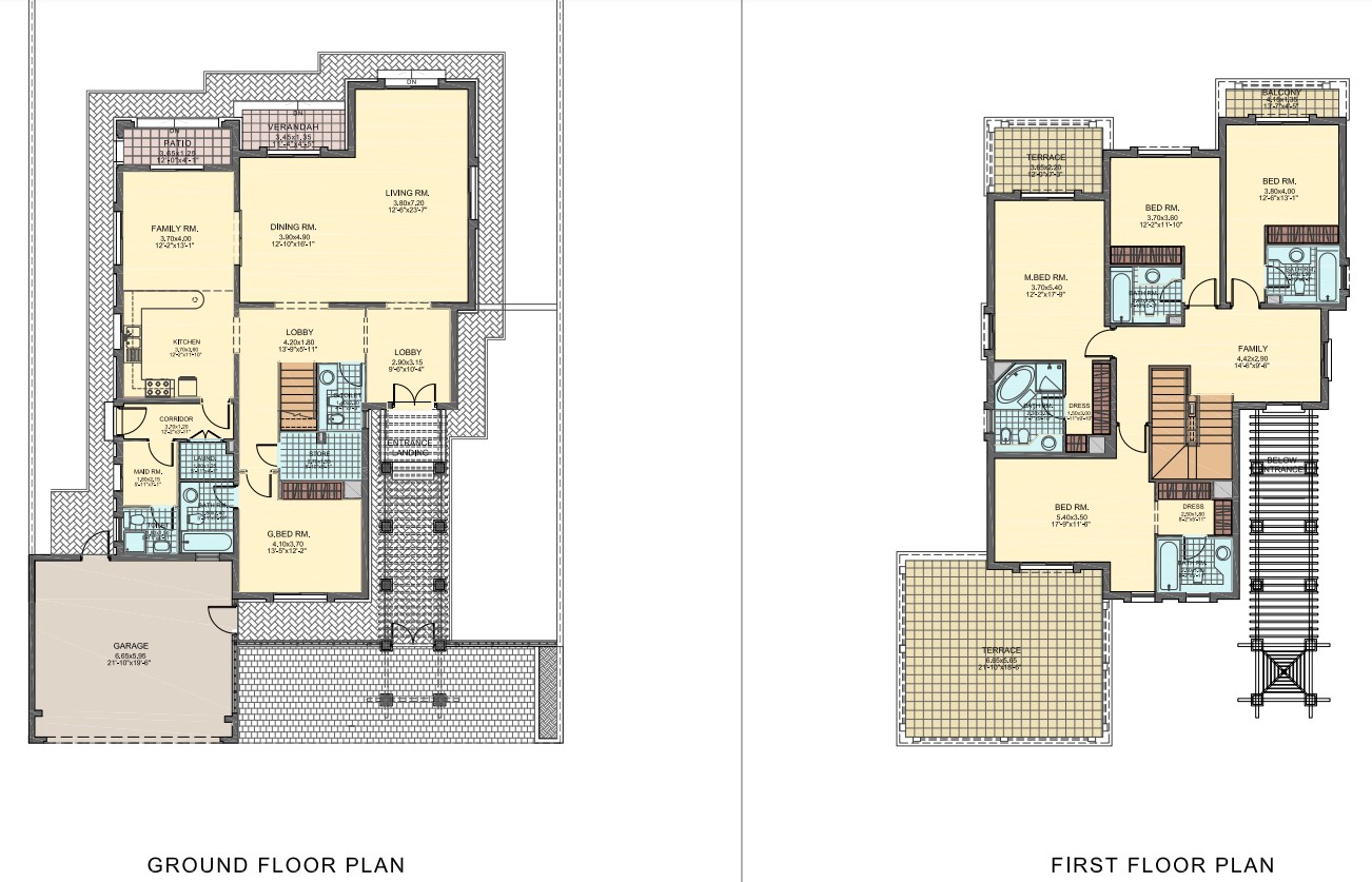
Type Executive Arabic
5
7
G+1
N/A
N/A
N/A
N/A
N/A
N/A
60 Square Feet
493 Square Feet
N/A
N/A
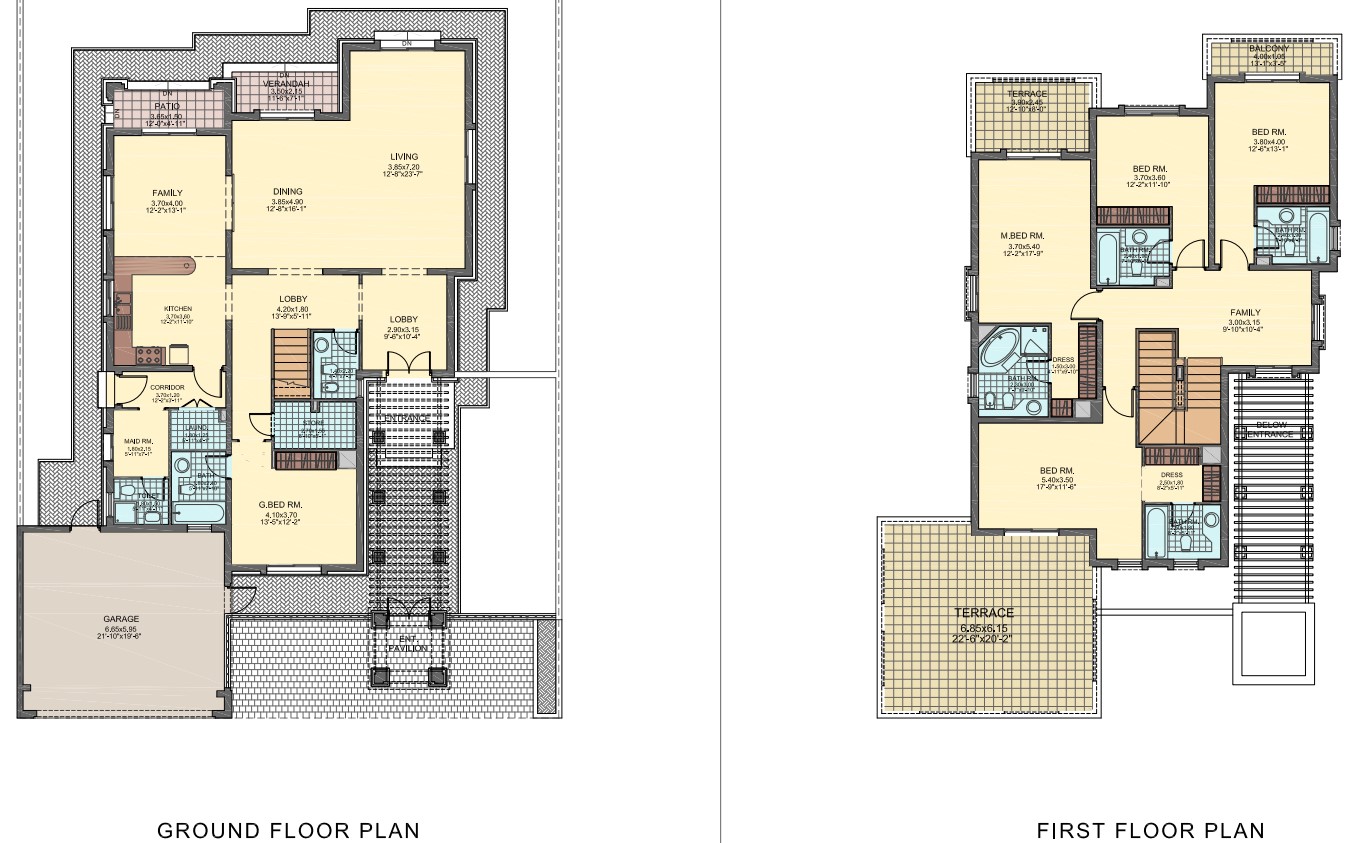
This is a villa in Executive Arabic Style in Cedre Villas which includes
| Title | Floor | Width (Square Feet) | Length (Square Feet) | Total (Square Feet) |
|---|---|---|---|---|
| Living | Ground | 77.50 | 40.90 | 3,169.75 |
| Kitchen | Ground | 38.75 | 39.83 | 1,543.41 |
| Dining | Ground | 52.74 | 41.98 | 2,214.03 |
| Maid Room | Ground | 23.14 | 19.38 | 448.45 |
| Maid Bathroom | Ground | 16.15 | 19.38 | 312.99 |
| Family Room 1 | Ground | 50.59 | 32.29 | 1,633.55 |
| Laundry | Ground | 13.46 | 19.38 | 260.85 |
| Guest Bathroom | Ground | 25.83 | 19.38 | 500.59 |
| Guest Bedroom | Ground | 39.83 | 44.13 | 1,757.70 |
| Verandah | Ground | 14.53 | 37.14 | 539.64 |
| Patio | Ground | 13.46 | 39.29 | 528.84 |
| Lobby 1 | Ground | 19.38 | 45.21 | 876.17 |
| Lobby 2 | Ground | 33.91 | 31.22 | 1,058.67 |
| Master Bedroom | First | 58.13 | 39.83 | 2,315.32 |
| Bedroom 2 | First | 38.75 | 39.83 | 1,543.41 |
| Bedroom 3 | First | 43.06 | 40.90 | 1,761.15 |
| Bedroom 4 | First | 37.67 | 58.13 | 2,189.76 |
| Master Bathroom | First | 32.29 | 24.76 | 799.50 |
| Bathroom 2 | First | 20.45 | 25.83 | 528.22 |
| Bathroom 3 | First | 20.45 | 25.83 | 528.22 |
| Bathroom 4 | First | 19.38 | 26.91 | 521.52 |
| Family Room 2 | First | 31.22 | 47.58 | 1,485.45 |
| Terrace 1 | First | 60.82 | 71.58 | 4,353.50 |
| Terrace 2 | First | 23.68 | 39.29 | 930.39 |
| Balcony | First | 14.53 | 44.67 | 649.06 |
| G Toilet | Ground | 23.68 | 15.07 | 356.86 |
| Store | Ground | 16.68 | 29.06 | 484.72 |
| Garage | Ground | 64.05 | 71.58 | 4,584.70 |
Type Executive Modern
5
7
G+1
N/A
N/A
N/A
N/A
N/A
N/A
60 Square Feet
556 Square Feet
N/A
N/A
This is a villa in Executive Modern Style in Cedre Villas which includes
| Title | Floor | Width (Square Feet) | Length (Square Feet) | Total (Square Feet) |
|---|---|---|---|---|
| Kitchen | Ground | 38.75 | 39.83 | 1,543.41 |
| Maid Room | Ground | 23.14 | 19.38 | 448.45 |
| Maid Bathroom | Ground | 16.15 | 19.38 | 312.99 |
| Laundry | Ground | 13.46 | 19.38 | 260.85 |
| Guest Bathroom | Ground | 25.83 | 19.38 | 500.59 |
| Guest Bedroom | Ground | 39.83 | 44.13 | 1,757.70 |
| Lobby 1 | Ground | 19.38 | 45.21 | 876.17 |
| Lobby 2 | Ground | 33.91 | 31.22 | 1,058.67 |
| Master Bedroom | First | 58.13 | 39.83 | 2,315.32 |
| Bedroom 2 | First | 38.75 | 39.83 | 1,543.41 |
| Bedroom 3 | First | 43.06 | 40.90 | 1,761.15 |
| Bedroom 4 | First | 37.67 | 58.13 | 2,189.76 |
| Master Bathroom | First | 32.29 | 24.76 | 799.50 |
| Bathroom 2 | First | 20.45 | 25.83 | 528.22 |
| Bathroom 3 | First | 20.45 | 25.83 | 528.22 |
| Bathroom 4 | First | 19.38 | 26.91 | 521.52 |
| Balcony | First | 14.53 | 44.67 | 649.06 |
| G Toilet | Ground | 23.68 | 15.07 | 356.86 |
| Store | Ground | 16.68 | 29.06 | 484.72 |
| Garage | Ground | 64.05 | 71.58 | 4,584.70 |
| Living | Ground | 77.50 | 41.44 | 3,211.60 |
| Dining | Ground | 52.74 | 41.44 | 2,185.55 |
| Family Room 1 | Ground | 43.06 | 39.83 | 1,715.08 |
| Verandah | Ground | 23.14 | 37.67 | 871.68 |
| Patio | Ground | 16.15 | 39.29 | 634.53 |
| Family Room | First | 33.91 | 32.29 | 1,094.95 |
| Terrace 1 | First | 26.37 | 41.98 | 1,107.01 |
| Terrace 2 | First | 66.20 | 73.73 | 4,880.93 |
Type Executive Traditional
5
7
G+1
N/A
N/A
N/A
N/A
N/A
N/A
45 Square Feet
556 Square Feet
N/A
N/A
This is a villa in Executive Traditional Style in Cedre Villas which includes
| Title | Floor | Width (Square Feet) | Length (Square Feet) | Total (Square Feet) |
|---|---|---|---|---|
| Living | Ground | 77.50 | 40.90 | 3,169.75 |
| Kitchen | Ground | 38.75 | 39.83 | 1,543.41 |
| Dining | Ground | 52.74 | 41.98 | 2,214.03 |
| Maid Room | Ground | 23.14 | 19.38 | 448.45 |
| Maid Bathroom | Ground | 16.15 | 19.38 | 312.99 |
| Laundry | Ground | 13.46 | 19.38 | 260.85 |
| Guest Bathroom | Ground | 25.83 | 19.38 | 500.59 |
| Guest Bedroom | Ground | 39.83 | 44.13 | 1,757.70 |
| Lobby 1 | Ground | 19.38 | 45.21 | 876.17 |
| Lobby 2 | Ground | 33.91 | 31.22 | 1,058.67 |
| Master Bedroom | First | 58.13 | 39.83 | 2,315.32 |
| Bedroom 2 | First | 38.75 | 39.83 | 1,543.41 |
| Bedroom 3 | First | 43.06 | 40.90 | 1,761.15 |
| Bedroom 4 | First | 37.67 | 58.13 | 2,189.76 |
| Master Bathroom | First | 32.29 | 24.76 | 799.50 |
| Bathroom 2 | First | 20.45 | 25.83 | 528.22 |
| Bathroom 3 | First | 20.45 | 25.83 | 528.22 |
| Bathroom 4 | First | 19.38 | 26.91 | 521.52 |
| G Toilet | Ground | 23.68 | 15.07 | 356.86 |
| Store | Ground | 16.68 | 29.06 | 484.72 |
| Garage | Ground | 64.05 | 71.58 | 4,584.70 |
| Family Room 1 | Ground | 43.06 | 39.83 | 1,715.08 |
| Verandah | Ground | 23.14 | 37.67 | 871.68 |
| Patio | Ground | 16.15 | 39.29 | 634.53 |
| Family Room 2 | First | 33.91 | 32.29 | 1,094.95 |
| Terrace 1 | First | 26.37 | 41.98 | 1,107.01 |
| Terrace 2 | First | 66.20 | 73.73 | 4,880.93 |
| Balcony | First | 11.30 | 43.06 | 486.58 |
Type Townhouse Arabic
3
4
G+1
N/A
N/A
N/A
N/A
N/A
N/A
N/A
403 Square Feet
N/A
N/A
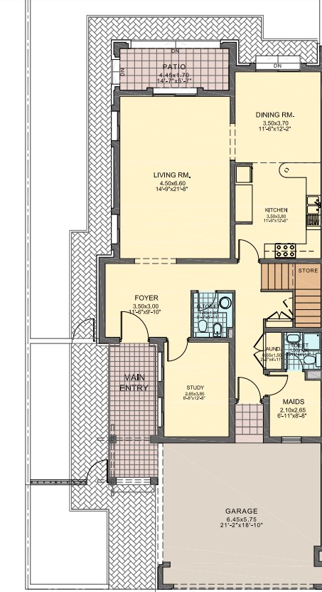
This is a townhouse in Townhouse Arabic Style in Cedre Villas which includes
| Title | Floor | Width (Square Feet) | Length (Square Feet) | Total (Square Feet) |
|---|---|---|---|---|
| Living | Ground | 71.04 | 48.44 | 3,441.18 |
| Kitchen | Ground | 40.90 | 37.67 | 1,540.70 |
| Dining | Ground | 39.83 | 37.67 | 1,500.40 |
| Maid Room | Ground | 28.52 | 22.60 | 644.55 |
| Maid Bathroom | Ground | 16.15 | 16.15 | 260.82 |
| Study | Ground | 41.44 | 28.52 | 1,181.87 |
| Laundry | Ground | 16.15 | 7.00 | 113.05 |
| G Toilet | Ground | 19.38 | 17.22 | 333.72 |
| Patio | Ground | 18.30 | 47.90 | 876.57 |
| Foyer | Ground | 32.29 | 37.67 | 1,216.36 |
| Master Bedroom | First | 71.04 | 48.44 | 3,441.18 |
| Bedroom 2 | First | 41.44 | 49.51 | 2,051.69 |
| Bedroom 3 | First | 38.43 | 37.67 | 1,447.66 |
| Master Bathroom | First | 32.29 | 26.91 | 868.92 |
| Bathroom 2 | First | 24.22 | 24.22 | 586.61 |
| Family Room | First | 46.29 | 37.67 | 1,743.74 |
| Terrace 1 | First | 19.38 | 50.59 | 980.43 |
| Terrace 2 | First | 36.60 | 34.98 | 1,280.27 |
| Terrace 3 | First | 30.14 | 68.89 | 2,076.34 |
| Garage | Ground | 61.89 | 69.43 | 4,297.02 |
Type Townhouse Modern
3
4
G+1
N/A
N/A
N/A
N/A
N/A
N/A
N/A
403 Square Feet
N/A
N/A
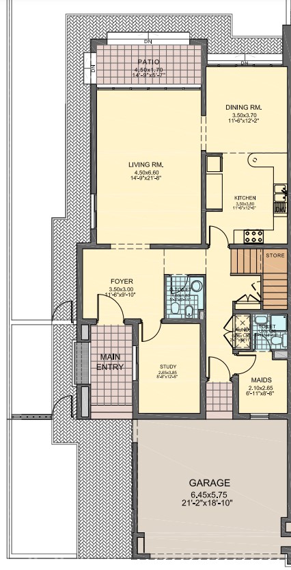
This is a townhouse in Townhouse Modern Style in Cedre Villas which includes
| Title | Floor | Width (Square Feet) | Length (Square Feet) | Total (Square Feet) |
|---|---|---|---|---|
| Living | Ground | 71.04 | 48.44 | 3,441.18 |
| Kitchen | Ground | 40.90 | 37.67 | 1,540.70 |
| Dining | Ground | 39.83 | 37.67 | 1,500.40 |
| Maid Room | Ground | 28.52 | 22.60 | 644.55 |
| Maid Bathroom | Ground | 16.15 | 16.15 | 260.82 |
| Study | Ground | 41.44 | 28.52 | 1,181.87 |
| Laundry | Ground | 16.15 | 7.00 | 113.05 |
| G Toilet | Ground | 19.38 | 17.22 | 333.72 |
| Patio | Ground | 18.30 | 47.90 | 876.57 |
| Foyer | Ground | 32.29 | 37.67 | 1,216.36 |
| Master Bedroom | First | 71.04 | 48.44 | 3,441.18 |
| Bedroom 2 | First | 41.44 | 49.51 | 2,051.69 |
| Bedroom 3 | First | 38.43 | 37.67 | 1,447.66 |
| Master Bathroom | First | 32.29 | 26.91 | 868.92 |
| Bathroom 2 | First | 24.22 | 24.22 | 586.61 |
| Family Room | First | 46.29 | 37.67 | 1,743.74 |
| Terrace 1 | First | 19.38 | 50.59 | 980.43 |
| Terrace 2 | First | 36.60 | 34.98 | 1,280.27 |
| Terrace 3 | First | 30.14 | 68.89 | 2,076.34 |
| Garage | Ground | 61.89 | 69.43 | 4,297.02 |
Type Townhouse Traditional
3
4
G+1
N/A
N/A
N/A
N/A
N/A
N/A
N/A
403 Square Feet
N/A
N/A
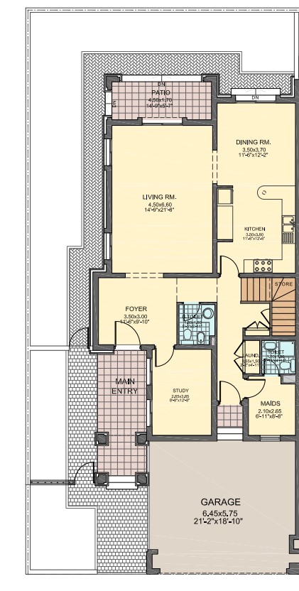
This is a townhouse in Townhouse Arabic Style in Cedre Villas which includes
| Title | Floor | Width (Square Feet) | Length (Square Feet) | Total (Square Feet) |
|---|---|---|---|---|
| Living | Ground | 71.04 | 48.44 | 3,441.18 |
| Kitchen | Ground | 40.90 | 37.67 | 1,540.70 |
| Dining | Ground | 39.83 | 37.67 | 1,500.40 |
| Maid Room | Ground | 28.52 | 22.60 | 644.55 |
| Maid Bathroom | Ground | 16.15 | 16.15 | 260.82 |
| Study | Ground | 41.44 | 28.52 | 1,181.87 |
| Laundry | Ground | 16.15 | 7.00 | 113.05 |
| G Toilet | Ground | 19.38 | 17.22 | 333.72 |
| Patio | Ground | 18.30 | 47.90 | 876.57 |
| Foyer | Ground | 32.29 | 37.67 | 1,216.36 |
| Master Bedroom | First | 71.04 | 48.44 | 3,441.18 |
| Bedroom 2 | First | 41.44 | 49.51 | 2,051.69 |
| Bedroom 3 | First | 38.43 | 37.67 | 1,447.66 |
| Master Bathroom | First | 32.29 | 26.91 | 868.92 |
| Bathroom 2 | First | 24.22 | 24.22 | 586.61 |
| Family Room | First | 46.29 | 37.67 | 1,743.74 |
| Terrace 1 | First | 19.38 | 50.59 | 980.43 |
| Terrace 2 | First | 36.60 | 34.98 | 1,280.27 |
| Terrace 3 | First | 30.14 | 68.89 | 2,076.34 |
| Garage | Ground | 61.89 | 69.43 | 4,297.02 |
Type Twinhouse Arabic
3
4
G+1
N/A
N/A
N/A
N/A
N/A
N/A
N/A
435 Square Feet
N/A
N/A
This is a townhouse in Townhouse Arabic Style in Cedre Villas which includes
| Title | Floor | Width (Square Feet) | Length (Square Feet) | Total (Square Feet) |
|---|---|---|---|---|
| Living | Ground | 52.74 | 57.05 | 3,008.82 |
| Kitchen | Ground | 37.14 | 39.83 | 1,479.29 |
| Dining | Ground | 43.06 | 43.06 | 1,854.16 |
| Maid Room | Ground | 37.14 | 22.60 | 839.36 |
| Maid Bathroom | Ground | 18.30 | 16.15 | 295.55 |
| Study | Ground | 44.13 | 41.98 | 1,852.58 |
| Laundry | Ground | 7.53 | 16.15 | 121.61 |
| G Toilet | Ground | 17.76 | 25.83 | 458.74 |
| Patio | Ground | 11.30 | 38.21 | 431.77 |
| Master Bedroom | First | 53.28 | 57.37 | 3,056.67 |
| Bedroom 2 | First | 44.46 | 39.61 | 1,761.06 |
| Bedroom 3 | First | 37.14 | 57.05 | 2,118.84 |
| Master Bathroom | First | 29.06 | 26.91 | 782.00 |
| Bathroom 2 | First | 19.38 | 25.83 | 500.59 |
| Family Room | First | 30.89 | 34.44 | 1,063.85 |
| Terrace 1 | First | 42.52 | 25.08 | 1,066.40 |
| Terrace 2 | First | 59.20 | 61.03 | 3,612.98 |
| Garage | Ground | 59.74 | 59.20 | 3,536.61 |
Type Twinhouse Modern
3
4
G+1
N/A
N/A
N/A
N/A
N/A
N/A
N/A
435 Square Feet
N/A
N/A
This is a townhouse in Townhouse Arabic Style in Cedre Villas which includes
| Title | Floor | Width (Square Feet) | Length (Square Feet) | Total (Square Feet) |
|---|---|---|---|---|
| Living | Ground | 52.74 | 57.05 | 3,008.82 |
| Kitchen | Ground | 37.14 | 39.83 | 1,479.29 |
| Dining | Ground | 43.06 | 43.06 | 1,854.16 |
| Maid Room | Ground | 37.14 | 22.60 | 839.36 |
| Maid Bathroom | Ground | 18.30 | 16.15 | 295.55 |
| Study | Ground | 44.13 | 41.98 | 1,852.58 |
| Laundry | Ground | 7.53 | 16.15 | 121.61 |
| G Toilet | Ground | 17.76 | 25.83 | 458.74 |
| Patio | Ground | 10.23 | 37.14 | 379.94 |
| Master Bedroom | First | 53.28 | 57.37 | 3,056.67 |
| Bedroom 2 | First | 44.46 | 39.61 | 1,761.06 |
| Bedroom 3 | First | 37.14 | 57.05 | 2,118.84 |
| Master Bathroom | First | 29.06 | 26.91 | 782.00 |
| Bathroom 2 | First | 19.38 | 25.83 | 500.59 |
| Family Room | First | 30.89 | 34.44 | 1,063.85 |
| Terrace 1 | First | 42.52 | 25.08 | 1,066.40 |
| Terrace 2 | First | 59.20 | 61.03 | 3,612.98 |
| Garage | Ground | 59.74 | 59.20 | 3,536.61 |
Type Twinhouse Traditional
3
4
G+1
N/A
N/A
N/A
N/A
N/A
N/A
N/A
435 Square Feet
N/A
N/A
This is a townhouse in Townhouse Arabic Style in Cedre Villas which includes
| Title | Floor | Width (Square Feet) | Length (Square Feet) | Total (Square Feet) |
|---|---|---|---|---|
| Living | Ground | 52.74 | 57.05 | 3,008.82 |
| Kitchen | Ground | 37.14 | 39.83 | 1,479.29 |
| Dining | Ground | 43.06 | 43.06 | 1,854.16 |
| Maid Room | Ground | 37.14 | 22.60 | 839.36 |
| Maid Bathroom | Ground | 18.30 | 16.15 | 295.55 |
| Study | Ground | 44.13 | 41.98 | 1,852.58 |
| Laundry | Ground | 7.53 | 16.15 | 121.61 |
| G Toilet | Ground | 17.76 | 25.83 | 458.74 |
| Patio | Ground | 10.23 | 37.67 | 385.36 |
| Master Bedroom | First | 53.28 | 57.37 | 3,056.67 |
| Bedroom 2 | First | 44.46 | 39.61 | 1,761.06 |
| Bedroom 3 | First | 37.14 | 57.05 | 2,118.84 |
| Master Bathroom | First | 29.06 | 26.91 | 782.00 |
| Bathroom 2 | First | 19.38 | 25.83 | 500.59 |
| Family Room | First | 30.89 | 34.44 | 1,063.85 |
| Terrace 1 | First | 42.52 | 25.08 | 1,066.40 |
| Terrace 2 | First | 59.20 | 61.03 | 3,612.98 |
| Garage | Ground | 59.74 | 59.20 | 3,536.61 |




















