Construction Status
Payment Plan
Anticipated Completion Date
| Description | Milestone Event | (%) Value |
|---|---|---|
| Down Payment | Immediate | 20% |
| 1st Installment | Within 2 Months of Sale Date (1st to 2nd Installment) | 14%% |
| 2nd Installment | Within 10 Months of Sale Date (3rd to 8th Installment) | 36%% |
| Payment At Handover | On Completion | 30% |
Title :
Binghatti Starlight
Type :
Free Hold
Project Number :
3195
Completion Status :
Under Construction
Life Cycle :
Developing
Master Development :
Al Jaddaf
Developer :
Plot Number :
N/A
Project Configuration :
3B+1G+1P+20
Number Of Units :
511
Number Of Floor :
25
Plot Area :
N/A
Built Up Area :
N/A
Construction Status :
N/A
Launch Date :
N/A
Registration Date :
15-Nov-2024
Construction Started Date :
30-Jul-2024
Anticipated Completion Date :
31-Mar-2026
Cost Consultants :
N/A
Piling Contractors :
N/A
Handover Date :
31-Mar-2026
Main Contractors :
N/A
Sub Contractors :
N/A
Architects :
N/A
MEP Contractors :
N/A
Project Managers :
N/A
Here's a refined “meat” description for Binghatti Starlight, a luxurious 25‑storey residential tower currently under development in Healthcare City Phase 2, Al Jaddaf, Dubai:
Nestled in Healthcare City Phase 2, Al Jaddaf, Binghatti Starlight occupies a strategic position in the heart of Dubai’s flourishing healthcare and wellness district. Residents will enjoy seamless connectivity—just minutes from Al Jaddaf Metro Station and Sheikh Rashid Road—linking you effortlessly to Downtown Dubai, Business Bay, and the rest of the city.
– Units: 1– to 3‑bedroom apartments, thoughtfully designed for optimal living.
– Layouts: Open-plan kitchens, spacious living areas, generous wardrobes.
– Finishes: Premium materials—porcelain flooring, stone countertops, top-tier cabinetry.
– Smart Home: Integrated automation for lighting, temperature, and security systems.
– Private Balconies: Each residence includes a balcony providing personal outdoor space.
– Positioned directly on a wide boulevard within Healthcare City Phase 2 for easy community access.
– Major routes like Sheikh Rashid Road and Al Khail Road are within a short drive, linking commuters to neighboring hubs like Dubai Internet City and Dubai Marina.
– Street-level drop-off and integrated private parking ensure convenience and security.
Residents will enjoy a resort-style experience with:
A rooftop infinity pool and sundeck offering a breathtaking cityscape backdrop.
A fully equipped fitness center and sauna/spa suite.
A serene yoga terrace for wellness and mindfulness.
Landscaped gardens with jogging paths, outdoor play zones for kids, and open green areas.
Multipurpose lounge spaces—ideal for socializing, relaxing, or coworking.
24/7 concierge, security, and video surveillance, plus dedicated visitor parking.
Designed by Binghatti’s signature avant-garde team, the tower combines geometric precision and sculptural elegance. The façade alternates between glass, aluminum panels, and stone cladding, creating depth and striking visual rhythm. Vertical fins and terraces accentuate its sleek silhouette, while protruding bay windows add character and flood interiors with natural light.
– Northern exposures offer uninterrupted views across Healthcare City’s master-planned ecosystem.
– Southern exposures frame Dubai’s iconic skyline—from the twisting helix of the Cayan Tower to the glittering mix of Downtown’s high-rises.
– Higher floors reveal panoramic vistas: shimmering waters of Dubai Creek, lush urban oases, and the distant Arabian Gulf.
| Title | Floor Level | From | To | Action |
|---|---|---|---|---|
| Level 1 to Roof | 11-13 and 15-19 | 11 | 19 | View Details |
| Level 1 to Roof | 3-6 and 8-10 | 3 | 10 | View Details |
| Level 1 | 1 | 1 | 1 | View Details |
| Level 14 | 14 | 144 | 14 | View Details |
| Level 2 | 2 | 2 | 2 | View Details |
| Level 20 | 20 | 20 | 20 | View Details |
| Level 7 | 7 | 7 | 7 | View Details |
| Roof Floor | Roof | Roof | Roof | View Details |
Level 1 to Roof
11-13 and 15-19
11
19
N/A
Level 1 to Roof
3-6 and 8-10
3
10
N/A
Level 1
1
1
1
N/A
Level 14
14
144
14
N/A
Level 2
2
2
2
N/A
Level 20
20
20
20
N/A
Level 7
7
7
7
N/A
Roof Floor
Roof
Roof
Roof
N/A
| Title | Action |
|---|---|
| Type 1 | View Details |
| Type 1 | View Details |
| Type 1 | View Details |
| Type 2 | View Details |
| Type 2 | View Details |
| Type 2 | View Details |
| Type 3 | View Details |
| Type 3 | View Details |
| Type 3 | View Details |
| Type 4 | View Details |
| Type 4 | View Details |
| Type 4 | View Details |
| Type 5 | View Details |
| Type 5 | View Details |
| Type 5 | View Details |
| Type 6 | View Details |
| Type 6 | View Details |
| Type 7 | View Details |
| Type 7 | View Details |
| Type 8 | View Details |
| Type 8 | View Details |
| Type 9 | View Details |
| Type 9 | View Details |
| Type 10 | View Details |
| Type 10 | View Details |
| Type 11 | View Details |
| Type 12 | View Details |
Type 1
2
2
N/A
Apartment
N/A
N/A
N/A
993.83 Square Feet
993.83 Square Feet
410.43 Square Feet
N/A
583.40 Square Feet
N/A
2 Bedroom Apartment with 2 Baths, Living and Dining room and a Kitchen.
| Title | Floor | Width (Square Feet) | Length (Square Feet) | Total (Square Feet) |
|---|---|---|---|---|
| Bedroom 1 | N/A | 193.75 | N/A | 0 |
| Bath 1 | N/A | N/A | N/A | N/A |
| Bedroom 2 | N/A | N/A | N/A | N/A |
| Bath 2 | N/A | N/A | N/A | N/A |
| Living Room | N/A | N/A | N/A | N/A |
| Dining room and Kitchen | N/A | N/A | N/A | N/A |
Type 1
Studio
1
N/A
Apartment
N/A
N/A
N/A
523.56 Square Feet
523.56 Square Feet
144.45 Square Feet
N/A
379.10 Square Feet
N/A
Studio Apartment with Bath, and a Kitchen.
| Title | Floor | Width (Square Feet) | Length (Square Feet) | Total (Square Feet) |
|---|---|---|---|---|
| Bedroom | N/A | N/A | N/A | N/A |
| Bath | N/A | N/A | N/A | N/A |
| Kitchen | N/A | N/A | N/A | N/A |
| Balcony | N/A | N/A | N/A | N/A |
Type 1
1
1
N/A
Apartment
N/A
N/A
N/A
993.83 Square Feet
993.83 Square Feet
410.43 Square Feet
N/A
583.40 Square Feet
N/A
| Title | Floor | Width (Square Feet) | Length (Square Feet) | Total (Square Feet) |
|---|---|---|---|---|
| Bedroom | N/A | N/A | N/A | 0 |
| Bath | N/A | N/A | N/A | N/A |
| Living Room | N/A | N/A | N/A | N/A |
| Dining room and Kitchen | N/A | N/A | N/A | N/A |
Type 2
2
2
N/A
Apartment
N/A
N/A
N/A
1371.75 Square Feet
1371.75 Square Feet
477.06 Square Feet
N/A
894.70 Square Feet
N/A
| Title | Floor | Width (Square Feet) | Length (Square Feet) | Total (Square Feet) |
|---|---|---|---|---|
| Bedroom 1 | N/A | 18.00 | N/A | 0 |
| Bath 1 | N/A | N/A | N/A | N/A |
| Bedroom 2 | N/A | N/A | N/A | N/A |
| Bath 2 | N/A | N/A | N/A | N/A |
| Living Room | N/A | N/A | N/A | N/A |
| Dining room and Kitchen | N/A | N/A | N/A | N/A |
Type 2
Studio
1
N/A
Apartment
N/A
N/A
N/A
476.84 Square Feet
476.84 Square Feet
97.84 Square Feet
N/A
379.0 Square Feet
N/A
| Title | Floor | Width (Square Feet) | Length (Square Feet) | Total (Square Feet) |
|---|---|---|---|---|
| Bedroom | N/A | N/A | N/A | N/A |
| Bath | N/A | N/A | N/A | N/A |
| Kitchen | N/A | N/A | N/A | N/A |
| Balcony | N/A | N/A | N/A | N/A |
Type 2
1
1
N/A
Apartment
N/A
N/A
N/A
858.21 Square Feet
858.21 Square Feet
274.91 Square Feet
N/A
583.30 Square Feet
N/A
| Title | Floor | Width (Square Feet) | Length (Square Feet) | Total (Square Feet) |
|---|---|---|---|---|
| Bedroom | N/A | N/A | N/A | 0 |
| Bath | N/A | N/A | N/A | N/A |
| Living Room | N/A | N/A | N/A | N/A |
| Dining room and Kitchen | N/A | N/A | N/A | N/A |
Type 3
1
1
N/A
Apartment
N/A
N/A
N/A
764.78 Square Feet
764.78 Square Feet
168.99 Square Feet
N/A
595.78 Square Feet
N/A
| Title | Floor | Width (Square Feet) | Length (Square Feet) | Total (Square Feet) |
|---|---|---|---|---|
| Bedroom | N/A | N/A | N/A | 0 |
| Bath | N/A | N/A | N/A | N/A |
| Living Room | N/A | N/A | N/A | N/A |
| Dining room and Kitchen | N/A | N/A | N/A | N/A |
Type 3
Studio
N/A
N/A
Apartment
N/A
N/A
N/A
498.05 Square Feet
498.05 Square Feet
138.53 Square Feet
N/A
359.51 Square Feet
N/A
| Title | Floor | Width (Square Feet) | Length (Square Feet) | Total (Square Feet) |
|---|---|---|---|---|
| Bedroom | N/A | N/A | N/A | N/A |
| Bath | N/A | N/A | N/A | N/A |
| Kitchen | N/A | N/A | N/A | N/A |
| Balcony | N/A | N/A | N/A | N/A |
Type 3
2
2
N/A
Apartment
N/A
N/A
N/A
1190.49 Square Feet
1190.49 Square Feet
432.60 Square Feet
N/A
757.89 Square Feet
N/A
| Title | Floor | Width (Square Feet) | Length (Square Feet) | Total (Square Feet) |
|---|---|---|---|---|
| Bedroom 1 | N/A | N/A | N/A | 0 |
| Bath 1 | N/A | N/A | N/A | N/A |
| Bedroom 2 | N/A | N/A | N/A | N/A |
| Bath 2 | N/A | N/A | N/A | N/A |
| Living Room | N/A | N/A | N/A | N/A |
| Dining room and Kitchen | N/A | N/A | N/A | N/A |
Type 4
2
2
N/A
Duplex
N/A
N/A
N/A
2607.13 Square Feet
2607.13 Square Feet
1347.43 Square Feet
N/A
1259.70 Square Feet
N/A
| Title | Floor | Width (Square Feet) | Length (Square Feet) | Total (Square Feet) |
|---|---|---|---|---|
| Bedroom 1 | N/A | N/A | N/A | 0 |
| Bath 1 | N/A | N/A | N/A | N/A |
| Bedroom 2 | N/A | N/A | N/A | N/A |
| Bath 2 | N/A | N/A | N/A | N/A |
| Living Room | N/A | N/A | N/A | N/A |
| Dining room and Kitchen | N/A | N/A | N/A | N/A |
Type 4
Studio
1
N/A
Apartment
N/A
N/A
N/A
452.19 Square Feet
452.19 Square Feet
92.68 Square Feet
N/A
359.51 Square Feet
N/A
| Title | Floor | Width (Square Feet) | Length (Square Feet) | Total (Square Feet) |
|---|---|---|---|---|
| Bedroom | N/A | N/A | N/A | N/A |
| Bath | N/A | N/A | N/A | N/A |
| Kitchen | N/A | N/A | N/A | N/A |
| Balcony | N/A | N/A | N/A | N/A |
Type 4
1
1
N/A
Apartment
N/A
N/A
N/A
739.27 Square Feet
739.27 Square Feet
143.91 Square Feet
N/A
595.35 Square Feet
N/A
| Title | Floor | Width (Square Feet) | Length (Square Feet) | Total (Square Feet) |
|---|---|---|---|---|
| Bath | N/A | N/A | N/A | N/A |
| Living Room | N/A | N/A | N/A | N/A |
| Dining room and Kitchen | N/A | N/A | N/A | N/A |
| Balcony | N/A | N/A | N/A | N/A |
| Bedroom | N/A | N/A | N/A | 0 |
Type 5
Studio
1
N/A
Apartment
N/A
N/A
N/A
475.12 Square Feet
475.12 Square Feet
133.58 Square Feet
N/A
341.54 Square Feet
N/A
| Title | Floor | Width (Square Feet) | Length (Square Feet) | Total (Square Feet) |
|---|---|---|---|---|
| Bedroom | N/A | N/A | N/A | N/A |
| Bath | N/A | N/A | N/A | N/A |
| Kitchen | N/A | N/A | N/A | N/A |
| Balcony | N/A | N/A | N/A | N/A |
Type 5
1
1
N/A
Apartment
N/A
N/A
N/A
753.26 Square Feet
753.26 Square Feet
143.16 Square Feet
N/A
610.10 Square Feet
N/A
| Title | Floor | Width (Square Feet) | Length (Square Feet) | Total (Square Feet) |
|---|---|---|---|---|
| Bath | N/A | N/A | N/A | N/A |
| Living Room | N/A | N/A | N/A | N/A |
| Dining room and Kitchen | N/A | N/A | N/A | N/A |
| Balcony | N/A | N/A | N/A | N/A |
| Bedroom | N/A | N/A | N/A | 0 |
Type 5
2
2
N/A
Apartment
N/A
N/A
N/A
2635.01 Square Feet
2635.01 Square Feet
1219.66 Square Feet
N/A
1415.35 Square Feet
N/A
| Title | Floor | Width (Square Feet) | Length (Square Feet) | Total (Square Feet) |
|---|---|---|---|---|
| Bedroom 1 | N/A | N/A | N/A | 0 |
| Bath 1 | N/A | N/A | N/A | N/A |
| Bedroom 2 | N/A | N/A | N/A | N/A |
| Bath 2 | N/A | N/A | N/A | N/A |
| Living Room | N/A | N/A | N/A | N/A |
| Dining room and Kitchen | N/A | N/A | N/A | N/A |
Type 6
1
1
N/A
Apartment
N/A
N/A
N/A
1090.49 Square Feet
1090.49 Square Feet
285.78 Square Feet
N/A
804.71 Square Feet
N/A
| Title | Floor | Width (Square Feet) | Length (Square Feet) | Total (Square Feet) |
|---|---|---|---|---|
| Bedroom | N/A | N/A | N/A | 0 |
| Bath | N/A | N/A | N/A | N/A |
| Living Room | N/A | N/A | N/A | N/A |
| Dining room and Kitchen | N/A | N/A | N/A | N/A |
| Balcony | N/A | N/A | N/A | N/A |
Type 6
Studio
1
N/A
Apartment
N/A
N/A
N/A
415.16 Square Feet
415.16 Square Feet
86.11 Square Feet
N/A
329.05 Square Feet
N/A
| Title | Floor | Width (Square Feet) | Length (Square Feet) | Total (Square Feet) |
|---|---|---|---|---|
| Bedroom | N/A | N/A | N/A | N/A |
| Bath | N/A | N/A | N/A | N/A |
| Kitchen | N/A | N/A | N/A | N/A |
| Balcony | N/A | N/A | N/A | N/A |
Type 7
1
1
N/A
Apartment
N/A
N/A
N/A
730.55 Square Feet
730.55 Square Feet
168.46 Square Feet
N/A
562.09 Square Feet
N/A
| Title | Floor | Width (Square Feet) | Length (Square Feet) | Total (Square Feet) |
|---|---|---|---|---|
| Bedroom | N/A | N/A | N/A | 0 |
| Bath | N/A | N/A | N/A | N/A |
| Living Room | N/A | N/A | N/A | N/A |
| Dining room and Kitchen | N/A | N/A | N/A | N/A |
| Balcony | N/A | N/A | N/A | N/A |
Type 7
Studio
1
N/A
Apartment
N/A
N/A
N/A
531.84 Square Feet
531.84 Square Feet
193.21 Square Feet
N/A
338.63 Square Feet
N/A
| Title | Floor | Width (Square Feet) | Length (Square Feet) | Total (Square Feet) |
|---|---|---|---|---|
| Bedroom | N/A | N/A | N/A | N/A |
| Bath | N/A | N/A | N/A | N/A |
| Kitchen | N/A | N/A | N/A | N/A |
| Balcony | N/A | N/A | N/A | N/A |
Type 8
Studio
1
N/A
Apartment
N/A
N/A
N/A
433.79 Square Feet
433.79 Square Feet
94.94 Square Feet
N/A
338.85 Square Feet
N/A
| Title | Floor | Width (Square Feet) | Length (Square Feet) | Total (Square Feet) |
|---|---|---|---|---|
| Bedroom | N/A | N/A | N/A | N/A |
| Bath | N/A | N/A | N/A | N/A |
| Kitchen | N/A | N/A | N/A | N/A |
| Balcony | N/A | N/A | N/A | N/A |
Type 8
1
1
N/A
Apartment
N/A
N/A
N/A
801.59 Square Feet
801.59 Square Feet
208.93 Square Feet
N/A
592.66 Square Feet
N/A
| Title | Floor | Width (Square Feet) | Length (Square Feet) | Total (Square Feet) |
|---|---|---|---|---|
| Bedroom | N/A | N/A | N/A | 0 |
| Bath | N/A | N/A | N/A | N/A |
| Living Room | N/A | N/A | N/A | N/A |
| Dining room and Kitchen | N/A | N/A | N/A | N/A |
| Balcony | N/A | N/A | N/A | N/A |
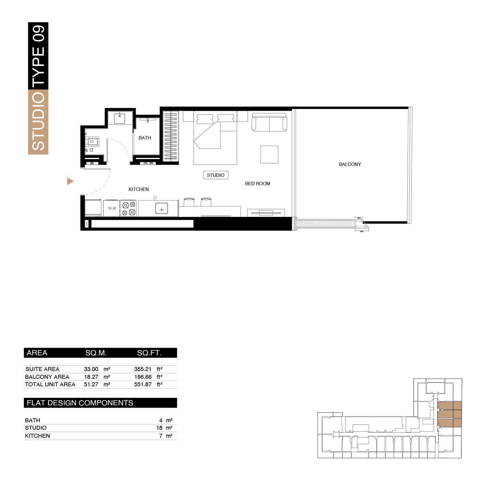
Type 9
Studio
1
N/A
Apartment
N/A
N/A
N/A
551.87 Square Feet
551.87 Square Feet
196.66 Square Feet
N/A
355.21 Square Feet
N/A
| Title | Floor | Width (Square Feet) | Length (Square Feet) | Total (Square Feet) |
|---|---|---|---|---|
| Bedroom | N/A | N/A | N/A | N/A |
| Bath | N/A | N/A | N/A | N/A |
| Kitchen | N/A | N/A | N/A | N/A |
| Balcony | N/A | N/A | N/A | N/A |
Type 9
1
1
N/A
Apartment
N/A
N/A
N/A
1369.49 Square Feet
1369.49 Square Feet
744.86 Square Feet
N/A
624.63 Square Feet
N/A
| Title | Floor | Width (Square Feet) | Length (Square Feet) | Total (Square Feet) |
|---|---|---|---|---|
| Bedroom | N/A | N/A | N/A | 0 |
| Bath | N/A | N/A | N/A | N/A |
| Living Room | N/A | N/A | N/A | N/A |
| Dining room and Kitchen | N/A | N/A | N/A | N/A |
| Balcony | N/A | N/A | N/A | N/A |
Type 10
Studio
1
N/A
Apartment
N/A
N/A
N/A
450.15 Square Feet
450.15 Square Feet
94.94 Square Feet
N/A
355.21 Square Feet
N/A
| Title | Floor | Width (Square Feet) | Length (Square Feet) | Total (Square Feet) |
|---|---|---|---|---|
| Bedroom | N/A | N/A | N/A | N/A |
| Bath | N/A | N/A | N/A | N/A |
| Kitchen | N/A | N/A | N/A | N/A |
| Balcony | N/A | N/A | N/A | N/A |
Type 10
1
1
N/A
Apartment
N/A
N/A
N/A
737.0 Square Feet
737.0 Square Feet
191.17 Square Feet
N/A
545.84 Square Feet
N/A
| Title | Floor | Width (Square Feet) | Length (Square Feet) | Total (Square Feet) |
|---|---|---|---|---|
| Bedroom | N/A | N/A | N/A | 0 |
| Bath | N/A | N/A | N/A | N/A |
| Living Room | N/A | N/A | N/A | N/A |
| Dining room and Kitchen | N/A | N/A | N/A | N/A |
Type 11
1
1
N/A
Apartment
N/A
N/A
N/A
1194.90 Square Feet
1194.90 Square Feet
637.01 Square Feet
N/A
557.89 Square Feet
N/A
| Title | Floor | Width (Square Feet) | Length (Square Feet) | Total (Square Feet) |
|---|---|---|---|---|
| Bedroom | N/A | N/A | N/A | 0 |
| Bath | N/A | N/A | N/A | N/A |
| Living Room | N/A | N/A | N/A | N/A |
| Dining room and Kitchen | N/A | N/A | N/A | N/A |
| Balcony | N/A | N/A | N/A | N/A |
Type 12
1
1
N/A
Apartment
N/A
N/A
N/A
912.78 Square Feet
912.78 Square Feet
354.89 Square Feet
N/A
557.89 Square Feet
N/A
| Title | Floor | Width (Square Feet) | Length (Square Feet) | Total (Square Feet) |
|---|---|---|---|---|
| Bedroom | N/A | N/A | N/A | 0 |
| Bath | N/A | N/A | N/A | N/A |
| Living Room | N/A | N/A | N/A | N/A |
| Dining room and Kitchen | N/A | N/A | N/A | N/A |


