Under Construction
Title :
Alvorada 1
Type :
Free Hold
Project Number :
N/A
Completion Status :
Completed/Ready
Life Cycle :
N/A
Master Development :
Alvorada
Developer :
Plot Number :
N/A
Project Configuration :
N/A
Number Of Units :
60
Number Of Sold Units :
N/A
Number Of Remaining Units :
N/A
Number Of Floor :
2
Plot Area :
N/A
Built Up Area :
N/A
Status Percentage :
100
Launch Date :
N/A
Registration Date :
N/A
Construction Started Date :
N/A
Anticipated Completion Date :
N/A
Cost Consultants :
N/A
Piling Contractors :
N/A
Handover Date :
N/A
Main Contractors :
N/A
Sub Contractors :
N/A
Architects :
N/A
MEP Contractors :
N/A
Project Managers :
N/A
Alvorada 1 is one of the prestigious villa communities in the gated development Arabian Ranches by Emaar Properties. It is a part of Alvorada featuring 3- to 5-bedroom houses in different configurations. Set on the western side of the parent community, the neighborhood has direct access to Al Qudra Road (D63) that connects it with Sheikh Mohammed Bin Zayed Road (E311) in a short drive.
IN A NUTSHELL
FACILITIES and AMENITIES:
Shopping Areas:
CLINICS AND HOSPITALS NEAR ALVORADA :
MALLS NEAR ALVORADA :
TYPE A1
3
4
G+1
N/A
N/A
3765 Square Feet
3765 Square Feet
N/A
N/A
N/A
N/A
N/A
N/A
This is TYPE A1 3 Bed Room Villa in Alvorada 1 Which Includes Dining Area,Kitchen ,Living area , Maid Room, 2 Bath room , in Ground Floor and 2 Bed Rooms ,1 M.Bedroom ,2 Bath Rooms and In First Floor
TYPE A2
3
4
G+1
N/A
N/A
3566 Square Feet
3566 Square Feet
N/A
N/A
N/A
N/A
N/A
N/A
This is TYPE A2 3 Bed Room Villa in Alvorada 1 Which Includes Dining Area,Kitchen ,Living area , Maid Room, 2 Bath room in Ground Floor and 2 Bed Rooms ,1 M.Bedroom ,2 Bath Rooms and Blacony In First Floor
TYPE B1
4
4
G+1
N/A
N/A
3884 Square Feet
3884 Square Feet
N/A
N/A
N/A
N/A
N/A
N/A
This is TYPE B1 4 Bed Room Villa in Alvorada 1 Which Includes Dining Area,Kitchen ,Living area , Maid Room, 2 Bath room ,Guest Bedroom in Ground Floor and 2 Bed Rooms ,1 M.Bedroom ,2 Bath Rooms and 2 Balconies In First Floor
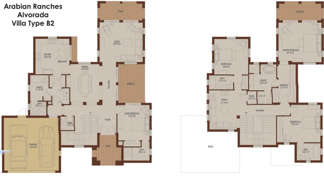
TYPE B2
4
6
G+1
N/A
N/A
4020 Square Feet
4020 Square Feet
N/A
N/A
N/A
N/A
N/A
N/A
This is TYPE B2 4 Bed Room Villa in Alvorada 1 Which Includes Dining Area,Kitchen ,Living area , Maid Room, 3 Bath rooms ,Guest Bedroom in Ground Floor and 2 Bed Rooms ,1 M.Bedroom ,3 Bath Rooms In First Floor
TYPE C1
5
6
G+1
N/A
N/A
4844 Square Feet
4844 Square Feet
N/A
N/A
N/A
N/A
N/A
N/A
This is TYPE C1 5 Bed Room Villa in Alvorada 1 Which Includes Dining Area,Kitchen ,Living area , Maid Room, 3 Bath rooms ,Guest Bedroom in Ground Floor and 3 Bed Rooms ,1 M.Bedroom ,3 Bath Rooms and 2 Balconies In First Floor
TYPE C2
5
5
G+1
N/A
N/A
4424 Square Feet
4424 Square Feet
N/A
N/A
N/A
N/A
N/A
N/A
This is TYPE C2 5 Bed Room Villa in Alvorada 1 Which Includes Dining Area,Kitchen ,Living area , Maid Room, 2 Bath rooms ,Guest Bedroom in Ground Floor and 3 Bed Rooms ,1 M.Bedroom ,3 Bath Rooms and 2 Balconies In First Floor





